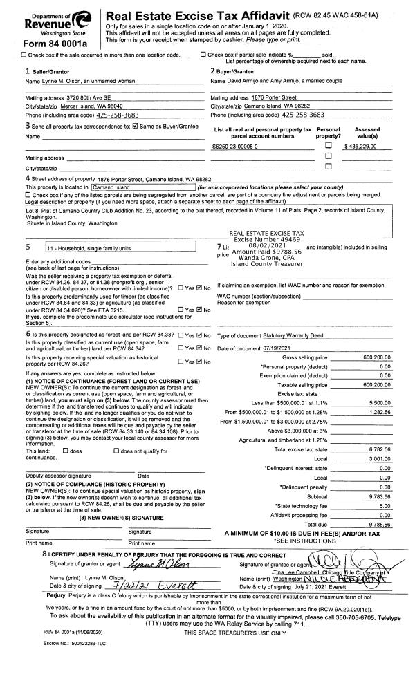
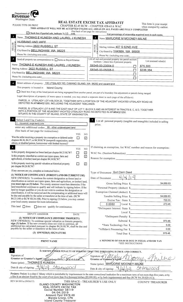
Property
Account |
| Property ID: | 680347 | Abbreviated Legal Description: | BAYRIDGE - PRD LOT 2 |
| Geographic ID: | S6072-00-00002-0 | Agent Code: | |
| Type: | Real | | |
| Tax Area: | 710 - APPRAISER-S Whid Schl Dist, outside Langley, improved & 1 acre or less | Land Use Code | 11 |
| Open Space: | N | DFL | N |
| Historic Property: | N | Remodel Property: | N |
| Multi-Family Redevelopment: | N | | |
| Township: | | Section: | |
| Range: | |
Location |
| Address: | 2872 DOC SAVAGE DR LANGLEY, WA 98260 | Mapsco: | |
| Neighborhood: | Cycle 4 | Map ID: | 746 |
| Neighborhood CD: | 4 |
Owner |
| Name: | COWEN III, RAY E | Owner ID: | 290364 |
| Mailing Address: | BARBARA JEFFERIES 2872 DOC SAVAGE DR LANGLEY, WA 98260 | % Ownership: | 100.0000000000% |
| | | Exemptions: | |
Taxes and Assessment Details
Values
| (+) Improvement Homesite Value: | + | $0 | |
| (+) Improvement Non-Homesite Value: | + | $534,202 | |
| (+) Land Homesite Value: | + | $0 | |
| (+) Land Non-Homesite Value: | + | $280,000 | |
| (+) Curr Use (HS): | + | $0 | $0 |
| (+) Curr Use (NHS): | + | $0 | $0 |
| | | -------------------------- | |
| (=) Market Value: | = | $814,202 | |
| (–) Productivity Loss: | – | $0 | |
| | | -------------------------- | |
| (=) Subtotal: | = | $814,202 | |
| (+) Senior Appraised Value: | + | $0 | |
| (+) Non-Senior Appraised Value: | + | $814,202 | |
| | | -------------------------- | |
| (=) Total Appraised Value: | = | $814,202 | |
| (–) Senior Exemption Loss: | – | $0 | |
| (–) Exemption Loss: | – | $0 | |
| | | -------------------------- | |
| (=) Taxable Value: | = | $814,202 | |
Taxing Jurisdiction
| Owner: | COWEN III, RAY E | | |
| % Ownership: | 100.0000000000% | | |
| Total Value: | $814,202 | | |
| Tax Area: | 710 - APPRAISER-S Whid Schl Dist, outside Langley, improved & 1 acre or less |
| CF | Conservation Futures | 0.0316035091 | $814,202 | $814,202 | $25.73 | | |
| FIRE3 | Fire & Rescue Dist #3 S Whidbey GEN | 1.2004855531 | $814,202 | $814,202 | $977.44 | | |
| HOBOND | Hospital BOND | 0.1910887512 | $814,202 | $814,202 | $155.58 | | |
| HOGEN | Hospital GEN | 0.3902502903 | $814,202 | $814,202 | $317.74 | | |
| CE | County Current Expense | 0.3708482477 | $814,202 | $814,202 | $301.95 | | |
| CR | County Roads | 0.4584763726 | $814,202 | $814,202 | $373.29 | | |
| ISLANDEMS | Hospital GEN (EMS) | 0.5000000000 | $814,202 | $814,202 | $407.10 | | |
| LIB | Library Sno-Isle GEN | 0.3153421757 | $814,202 | $814,202 | $256.75 | | |
| PORTWHID | Port of S Whidbey GEN | 0.1094540357 | $814,202 | $814,202 | $89.12 | | |
| SCH206BOND | School 206 BOND | 0.3161759235 | $814,202 | $814,202 | $257.43 | | |
| SCH206MO | School 206 Enrichment | 0.4547169547 | $814,202 | $814,202 | $370.23 | | |
| ST | State School | 1.3035497053 | $814,202 | $814,202 | $1,061.35 | | |
| ST2 | State School Part 2 | 0.8169543533 | $814,202 | $814,202 | $665.17 | | |
| SWHIDPRBD | P & R S Whidbey BOND | 0.0152817568 | $814,202 | $814,202 | $12.44 | | |
| SWHIDPRBD2 | P & R S Whidbey BOND2 | 0.0138911264 | $814,202 | $814,202 | $11.31 | | |
| SWHIDPRMT | P & R S Whidbey GEN | 0.2053334452 | $814,202 | $814,202 | $167.18 | | |
| | Total Tax Rate: | 6.6934522006 | | | | | |
| | | | | Taxes w/Current Exemptions: | $5,449.81 | | |
| | | | | Taxes w/o Exemptions: | $5,449.81 | | |
Improvement / Building
| Improvement #1: | RESIDENTIAL | State Code: | Y | 2732.0 sqft | Value: | $534,202 |
| Bathrooms: | 2.5 | Bedrooms: | 2 | | Ceiling: | DRYWALL PAINTED | Cooling: | HEAT PUMP/CONV/V | | Exterior Wall/Cover: | CEMENT FIBER | Floor Covering: | HARDWOOD 100% | | Floor Structure: | WOOD W/SUBFLOOR | Foundation: | CONCRETE | | Interior Finish: | DRYWALL PAINT | Plumbing Fixture Cnt: | 20 | | Roof Slope: | 4" IN 12" | Roof Structure/Cover: | CJ ALUMINIUM HEAVY |
|
| | Type | Description | Class CD | Sub Class CD | Year Built | Area |
| | BAS | BASE/MAIN FLOOR | 3 | 0 | 1998 | 1084.0 |
| | BAS | BASE/MAIN FLOOR | 3 | 0 | 1998 | 624.0 |
| | DGR | DETACHED GARAGE | 3 | 0 | 1998 | 784.0 |
| | BIG | BUILT IN GARAGE | 3 | 0 | 1998 | 624.0 |
| | UPS | UPPER STORY | 3 | 0 | 1998 | 1024.0 |
| | OWP | OPEN WOOD PORCH W/STEPS | 3 | 0 | 1998 | 110.0 |
| | OWC | OPEN WOOD PORCH W/STEPS/ROOF/C | 3 | 0 | 1998 | 264.0 |
| | OWC | OPEN WOOD PORCH W/STEPS/ROOF/C | 3 | 0 | 1998 | 448.0 |
| | OWP | OPEN WOOD PORCH W/STEPS | 3 | 0 | 1998 | 72.0 |
Sketch
Property Image
Land
| 1 | 16 | AC (00.51-01.00) | 0.0000 | 0.00 | 0.00 | 0.00 | 1.00 | $280,000 | $0 |
Roll Value History
| 2026 | N/A | N/A | N/A | N/A | N/A |
| 2025 | $534,202 | $280,000 | $0 | $814,202 | $814,202 |
| 2024 | $540,619 | $280,000 | $0 | $820,619 | $820,619 |
| 2023 | $547,035 | $280,000 | $0 | $827,035 | $827,035 |
| 2022 | $501,154 | $250,000 | $0 | $751,154 | $751,154 |
| 2021 | $440,844 | $210,000 | $0 | $650,844 | $650,844 |
| 2020 | $420,689 | $210,000 | $0 | $630,689 | $630,689 |
| 2019 | $292,080 | $250,000 | $0 | $542,080 | $542,080 |
| 2018 | $292,957 | $190,000 | $0 | $482,957 | $482,957 |
| 2017 | $294,712 | $160,000 | $0 | $454,712 | $454,712 |
| 2016 | $298,220 | $160,000 | $0 | $458,220 | $458,220 |
| 2015 | $301,727 | $135,000 | $0 | $436,727 | $436,727 |
| 2014 | $296,286 | $123,250 | $0 | $419,536 | $419,536 |
| 2013 | $299,857 | $123,250 | $0 | $423,107 | $423,107 |
| 2012 | $303,428 | $123,250 | $0 | $426,678 | $426,678 |
| 2011 | $306,995 | $145,000 | $0 | $451,995 | $451,995 |
| 2010 | $318,200 | $145,000 | $0 | $463,200 | $463,200 |
| 2009 | $331,750 | $175,000 | $0 | $506,750 | $506,750 |
| 2008 | $273,150 | $200,000 | $0 | $473,150 | $473,150 |
| 2007 | $276,241 | $200,000 | $0 | $476,241 | $476,241 |
Deed and Sales History
| 1 | 06/18/2019 | WD | Warranty Deed | WRIGHT, LARRY R | COWEN III, RAY E | | | $650,000.00 | 39093 | 4465878 |
| 2 | 05/13/2004 | WD | Warranty Deed | MARCIN, DAVID H | WRIGHT, LARRY R | | | $385,000.00 | 42036 | 4100689 |
| 3 | 07/01/1997 | WD | Warranty Deed | AYLESWORTH, L J | MARCIN, DAVID H | | | $87,000.00 | 72625 | 97012389 |
| 4 | 10/01/1996 | WD | Warranty Deed | STORKSON, DARRELL/MARJORIE& | AYLESWORTH, L J | | | $76,000.00 | 63630 | 96017681 |
| 5 | 01/01/1900 | OTHER | Other - Misc. Documents | Unknown | STORKSON, DARRELL/MARJORIE& | | | $0.00 | 112 | 90000305 |
Payout Agreement
| No payout information available.. |