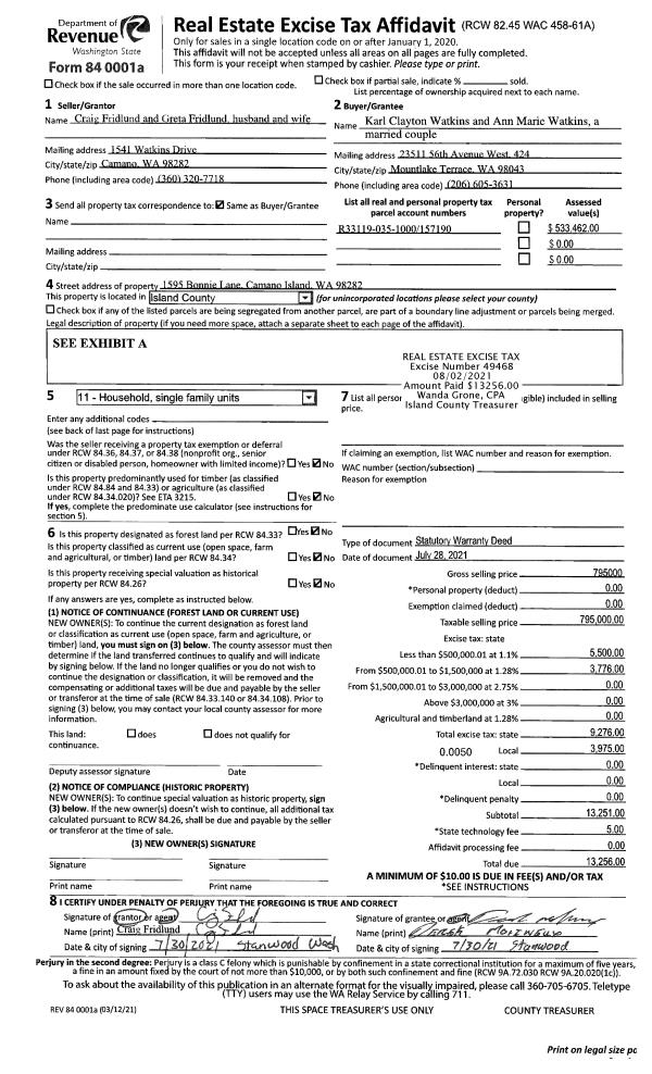
Property
Account |
| Property ID: | 680356 | Abbreviated Legal Description: | BAYRIDGE - PRD LOT 3 |
| Geographic ID: | S6072-00-00003-0 | Agent Code: | |
| Type: | Real | | |
| Tax Area: | 710 - APPRAISER-S Whid Schl Dist, outside Langley, improved & 1 acre or less | Land Use Code | 11 |
| Open Space: | N | DFL | N |
| Historic Property: | N | Remodel Property: | N |
| Multi-Family Redevelopment: | N | | |
| Township: | | Section: | |
| Range: | |
Location |
| Address: | 2876 DOC SAVAGE DR LANGLEY, WA 98260 | Mapsco: | |
| Neighborhood: | Cycle 4 | Map ID: | 746 |
| Neighborhood CD: | 4 |
Owner |
| Name: | GRONE, DANIEL W | Owner ID: | 270044 |
| Mailing Address: | WANDA J GRONE 2876 DOC SAVAGE LANGLEY, WA 98260 | % Ownership: | 100.0000000000% |
| | | Exemptions: | |
Taxes and Assessment Details
Values
| (+) Improvement Homesite Value: | + | $0 | |
| (+) Improvement Non-Homesite Value: | + | $500,149 | |
| (+) Land Homesite Value: | + | $0 | |
| (+) Land Non-Homesite Value: | + | $260,000 | |
| (+) Curr Use (HS): | + | $0 | $0 |
| (+) Curr Use (NHS): | + | $0 | $0 |
| | | -------------------------- | |
| (=) Market Value: | = | $760,149 | |
| (–) Productivity Loss: | – | $0 | |
| | | -------------------------- | |
| (=) Subtotal: | = | $760,149 | |
| (+) Senior Appraised Value: | + | $0 | |
| (+) Non-Senior Appraised Value: | + | $760,149 | |
| | | -------------------------- | |
| (=) Total Appraised Value: | = | $760,149 | |
| (–) Senior Exemption Loss: | – | $0 | |
| (–) Exemption Loss: | – | $0 | |
| | | -------------------------- | |
| (=) Taxable Value: | = | $760,149 | |
Taxing Jurisdiction
| Owner: | GRONE, DANIEL W | | |
| % Ownership: | 100.0000000000% | | |
| Total Value: | $760,149 | | |
| Tax Area: | 710 - APPRAISER-S Whid Schl Dist, outside Langley, improved & 1 acre or less |
| CF | Conservation Futures | 0.0316035091 | $760,149 | $760,149 | $24.02 | | |
| FIRE3 | Fire & Rescue Dist #3 S Whidbey GEN | 1.2004855531 | $760,149 | $760,149 | $912.55 | | |
| HOBOND | Hospital BOND | 0.1910887512 | $760,149 | $760,149 | $145.26 | | |
| HOGEN | Hospital GEN | 0.3902502903 | $760,149 | $760,149 | $296.65 | | |
| CE | County Current Expense | 0.3708482477 | $760,149 | $760,149 | $281.90 | | |
| CR | County Roads | 0.4584763726 | $760,149 | $760,149 | $348.51 | | |
| ISLANDEMS | Hospital GEN (EMS) | 0.5000000000 | $760,149 | $760,149 | $380.07 | | |
| LIB | Library Sno-Isle GEN | 0.3153421757 | $760,149 | $760,149 | $239.71 | | |
| PORTWHID | Port of S Whidbey GEN | 0.1094540357 | $760,149 | $760,149 | $83.20 | | |
| SCH206BOND | School 206 BOND | 0.3161759235 | $760,149 | $760,149 | $240.34 | | |
| SCH206MO | School 206 Enrichment | 0.4547169547 | $760,149 | $760,149 | $345.65 | | |
| ST | State School | 1.3035497053 | $760,149 | $760,149 | $990.89 | | |
| ST2 | State School Part 2 | 0.8169543533 | $760,149 | $760,149 | $621.01 | | |
| SWHIDPRBD | P & R S Whidbey BOND | 0.0152817568 | $760,149 | $760,149 | $11.62 | | |
| SWHIDPRBD2 | P & R S Whidbey BOND2 | 0.0138911264 | $760,149 | $760,149 | $10.56 | | |
| SWHIDPRMT | P & R S Whidbey GEN | 0.2053334452 | $760,149 | $760,149 | $156.08 | | |
| | Total Tax Rate: | 6.6934522006 | | | | | |
| | | | | Taxes w/Current Exemptions: | $5,088.02 | | |
| | | | | Taxes w/o Exemptions: | $5,088.02 | | |
Improvement / Building
| Improvement #1: | RESIDENTIAL | State Code: | Y | 2676.1 sqft | Value: | $500,149 |
| Bathrooms: | 2.5 | Bedrooms: | 3 | | Ceiling: | DRYWALL PAINTED | Exterior Wall/Cover: | WOOD SIDING | | Floor Covering: | HARDWOOD/CARP 20-80 | Floor Structure: | WOOD W/SUBFLOOR | | Foundation: | CONCRETE | Heating: | FHA GAS | | Interior Finish: | DRYWALL PAINT | Plumbing Fixture Cnt: | 14 | | Roof Slope: | 8" IN 12" | Roof Structure/Cover: | CJ ASPHALT |
|
| | Type | Description | Class CD | Sub Class CD | Year Built | Area |
| | BAS | BASE/MAIN FLOOR | 4 | 0 | 1999 | 1484.5 |
| | AGR | ATTACHED GARAGE | 4 | 0 | 1999 | 733.0 |
| | BIG | BUILT IN GARAGE | 4 | 0 | 1999 | 201.5 |
| | UPS | UPPER STORY | 4 | 0 | 1999 | 1191.6 |
| | OWP | OPEN WOOD PORCH W/STEPS | 4 | 0 | 1999 | 84.0 |
| | OWC | OPEN WOOD PORCH W/STEPS/ROOF/C | 4 | 0 | 1999 | 54.0 |
| | UTY | STORAGE/UTILITY | 4 | 0 | 1999 | 204.0 |
Sketch
Property Image
Land
| 1 | 16 | AC (00.51-01.00) | 0.0000 | 0.00 | 0.00 | 0.00 | 1.00 | $260,000 | $0 |
Roll Value History
| 2026 | N/A | N/A | N/A | N/A | N/A |
| 2025 | $500,149 | $260,000 | $0 | $760,149 | $760,149 |
| 2024 | $506,305 | $260,000 | $0 | $766,305 | $766,305 |
| 2023 | $512,462 | $260,000 | $0 | $772,462 | $772,462 |
| 2022 | $469,617 | $240,000 | $0 | $709,617 | $709,617 |
| 2021 | $413,199 | $165,000 | $0 | $578,199 | $578,199 |
| 2020 | $377,607 | $165,000 | $0 | $542,607 | $542,607 |
| 2019 | $284,874 | $220,000 | $0 | $504,874 | $504,874 |
| 2018 | $285,729 | $190,000 | $0 | $475,729 | $475,729 |
| 2017 | $287,413 | $160,000 | $0 | $447,413 | $447,413 |
| 2016 | $290,836 | $160,000 | $0 | $450,836 | $450,836 |
| 2015 | $294,256 | $135,000 | $0 | $429,256 | $429,256 |
| 2014 | $281,582 | $123,250 | $0 | $404,832 | $404,832 |
| 2013 | $284,935 | $123,250 | $0 | $408,185 | $142,758 |
| 2012 | $288,286 | $123,250 | $0 | $411,536 | $142,758 |
| 2011 | $291,639 | $145,000 | $0 | $436,639 | $142,758 |
| 2010 | $302,035 | $145,000 | $0 | $447,035 | $142,758 |
| 2009 | $314,784 | $175,000 | $0 | $489,784 | $142,758 |
| 2008 | $311,069 | $200,000 | $0 | $511,069 | $142,758 |
| 2007 | $314,502 | $200,000 | $0 | $514,502 | $142,758 |
Deed and Sales History
| 1 | 04/30/2015 | WD | Warranty Deed | ROBERTS, MICHAEL | GRONE, DANIEL W | | | $482,000.00 | 19422 | 4377728 |
| 2 | 03/22/2001 | QCD | Quit Claim Deed | R & K BUILDERS INC, | ROBERTS, MICHAEL | | | $0.00 | 11107 | 20029014 |
| 3 | 03/19/1999 | WD | Warranty Deed | MARTIN, CLYDE & | R & K BUILDERS INC, | | | $77,000.00 | 91025 | 99007093 |
| 4 | 03/01/1995 | WD | Warranty Deed | STORKSON, DARRELL/MARJORIE& | MARTIN, CLYDE & | | | $67,500.00 | 50834 | 95004109 |
| 5 | 01/01/1900 | OTHER | Other - Misc. Documents | Unknown | STORKSON, DARRELL/MARJORIE& | | | $0.00 | 112 | 90000305 |
Payout Agreement
| No payout information available.. |