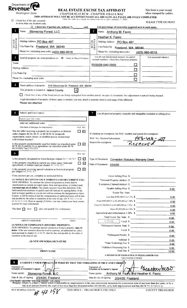
Property
Account |
| Property ID: | 68036 | Abbreviated Legal Description: | 50 - W165' OF W/2 NW NE EX RD 36D253 |
| Geographic ID: | R23028-467-2860 | Agent Code: | |
| Type: | Real | | |
| Tax Area: | 312 - APPRAISER-Cpvl Schl Dist, outside Cpvl, improved, greater than 1 acre | Land Use Code | 11 |
| Open Space: | N | DFL | N |
| Historic Property: | N | Remodel Property: | N |
| Multi-Family Redevelopment: | N | | |
| Township: | 30 | Section: | 28 |
| Range: | R2 |
Location |
| Address: | 1017 CLASSIC RD GREENBANK, WA 98253 | Mapsco: | |
| Neighborhood: | Cycle 3 | Map ID: | 424 |
| Neighborhood CD: | 3 |
Owner |
| Name: | HINDS, JOSHUA | Owner ID: | 301921 |
| Mailing Address: | DONNELI K HINDS 15011 3RD LANE NE DUVALL, WA 98019 | % Ownership: | 100.0000000000% |
| | | Exemptions: | |
Taxes and Assessment Details
Values
| (+) Improvement Homesite Value: | + | $0 | |
| (+) Improvement Non-Homesite Value: | + | $4,000 | |
| (+) Land Homesite Value: | + | $0 | |
| (+) Land Non-Homesite Value: | + | $210,000 | |
| (+) Curr Use (HS): | + | $0 | $0 |
| (+) Curr Use (NHS): | + | $0 | $0 |
| | | -------------------------- | |
| (=) Market Value: | = | $214,000 | |
| (–) Productivity Loss: | – | $0 | |
| | | -------------------------- | |
| (=) Subtotal: | = | $214,000 | |
| (+) Senior Appraised Value: | + | $0 | |
| (+) Non-Senior Appraised Value: | + | $214,000 | |
| | | -------------------------- | |
| (=) Total Appraised Value: | = | $214,000 | |
| (–) Senior Exemption Loss: | – | $0 | |
| (–) Exemption Loss: | – | $0 | |
| | | -------------------------- | |
| (=) Taxable Value: | = | $214,000 | |
Taxing Jurisdiction
| Owner: | HINDS, JOSHUA | | |
| % Ownership: | 100.0000000000% | | |
| Total Value: | $214,000 | | |
| Tax Area: | 312 - APPRAISER-Cpvl Schl Dist, outside Cpvl, improved, greater than 1 acre |
| CF | Conservation Futures | 0.0316035091 | $214,000 | $214,000 | $6.76 | | |
| CEM2 | Cemetery #2 | 0.0095056933 | $214,000 | $214,000 | $2.03 | | |
| FIRE5 | Fire & Rescue Dist #5 C Whidbey GEN | 1.2008080668 | $214,000 | $214,000 | $256.97 | | |
| FIRE5BOND | Fire & Rescue Dist #5 C Whidbey BOND | 0.1400090713 | $214,000 | $214,000 | $29.96 | | |
| HOBOND | Hospital BOND | 0.1910887512 | $214,000 | $214,000 | $40.89 | | |
| HOGEN | Hospital GEN | 0.3902502903 | $214,000 | $214,000 | $83.51 | | |
| CE | County Current Expense | 0.3708482477 | $214,000 | $214,000 | $79.36 | | |
| CR | County Roads | 0.4584763726 | $214,000 | $214,000 | $98.11 | | |
| ISLANDEMS | Hospital GEN (EMS) | 0.5000000000 | $214,000 | $214,000 | $107.00 | | |
| LIB | Library Sno-Isle GEN | 0.3153421757 | $214,000 | $214,000 | $67.48 | | |
| LIBCAP | Library Sno-Isle BOND (Cap Fac Imp Area) | 0.0543427938 | $214,000 | $214,000 | $11.63 | | |
| POCOUP | Port of Coupeville GEN | 0.1093371703 | $214,000 | $214,000 | $23.40 | | |
| POCOUPIDD | Port of Coupeville IDD | 0.3409740022 | $214,000 | $214,000 | $72.97 | | |
| COUPSDTECH | School 204 CP (TECH) | 0.7545480007 | $214,000 | $214,000 | $161.47 | | |
| SCH204MO | School 204 Enrichment | 0.6716186034 | $214,000 | $214,000 | $143.73 | | |
| ST | State School | 1.3035497053 | $214,000 | $214,000 | $278.96 | | |
| ST2 | State School Part 2 | 0.8169543533 | $214,000 | $214,000 | $174.83 | | |
| | Total Tax Rate: | 7.6592568070 | | | | | |
| | | | | Taxes w/Current Exemptions: | $1,639.06 | | |
| | | | | Taxes w/o Exemptions: | $1,639.06 | | |
Improvement / Building
| Improvement #1: | RESIDENTIAL | State Code: | Y | 0.0 sqft | Value: | $4,000 |
Sketch
| No sketches available for this property. |
Property Image
Land
| 1 | 32 | AC (03.01-09.99) | 4.9200 | 214315.20 | 0.00 | 0.00 | 1.00 | $210,000 | $0 |
Roll Value History
| 2026 | N/A | N/A | N/A | N/A | N/A |
| 2025 | $4,000 | $210,000 | $0 | $214,000 | $214,000 |
| 2024 | $4,000 | $200,000 | $0 | $204,000 | $204,000 |
| 2023 | $4,000 | $180,000 | $0 | $184,000 | $184,000 |
| 2022 | $4,000 | $170,000 | $0 | $174,000 | $174,000 |
| 2021 | $4,000 | $115,000 | $0 | $119,000 | $119,000 |
| 2020 | $4,000 | $90,000 | $0 | $94,000 | $94,000 |
| 2019 | $4,000 | $120,000 | $0 | $124,000 | $124,000 |
| 2018 | $4,000 | $85,000 | $0 | $89,000 | $89,000 |
| 2017 | $35,481 | $160,000 | $0 | $195,481 | $195,481 |
| 2016 | $35,481 | $165,000 | $0 | $200,481 | $200,481 |
| 2015 | $35,481 | $55,000 | $0 | $90,481 | $90,481 |
| 2014 | $35,481 | $55,000 | $0 | $90,481 | $90,481 |
| 2013 | $35,481 | $59,500 | $0 | $94,981 | $94,981 |
| 2012 | $35,481 | $59,500 | $0 | $94,981 | $94,981 |
| 2011 | $35,481 | $70,000 | $0 | $105,481 | $105,481 |
| 2010 | $36,321 | $70,000 | $0 | $106,321 | $106,321 |
| 2009 | $37,133 | $79,300 | $0 | $116,433 | $116,433 |
| 2008 | $37,133 | $166,050 | $0 | $203,183 | $203,183 |
| 2007 | $20,733 | $152,520 | $0 | $173,253 | $173,253 |
Deed and Sales History
| 1 | 10/28/2021 | PRD | Personal Representatives Deed | HINDS, TIMOTHY DALE | HINDS, JOSHUA | | | $0.00 | 50840 | 4533594 |
| 2 | 01/25/2002 | DECREE | Divorce Decree/Legal Separation | HINDS, TIM | HINDS, TIMOTHY DALE | | | $0.00 | 20382 | 4009837 |
| 3 | 06/01/1995 | TRUSTEED | Trustee's Deed | HUBER, ALVIN J | HINDS, TIM | | | $37,000.00 | 52015 | 95009374 |
| 4 | 01/01/1900 | OTHER | Other - Misc. Documents | Unknown | HUBER, ALVIN J | | | $0.00 | 0 | 0 |
Payout Agreement
| No payout information available.. |