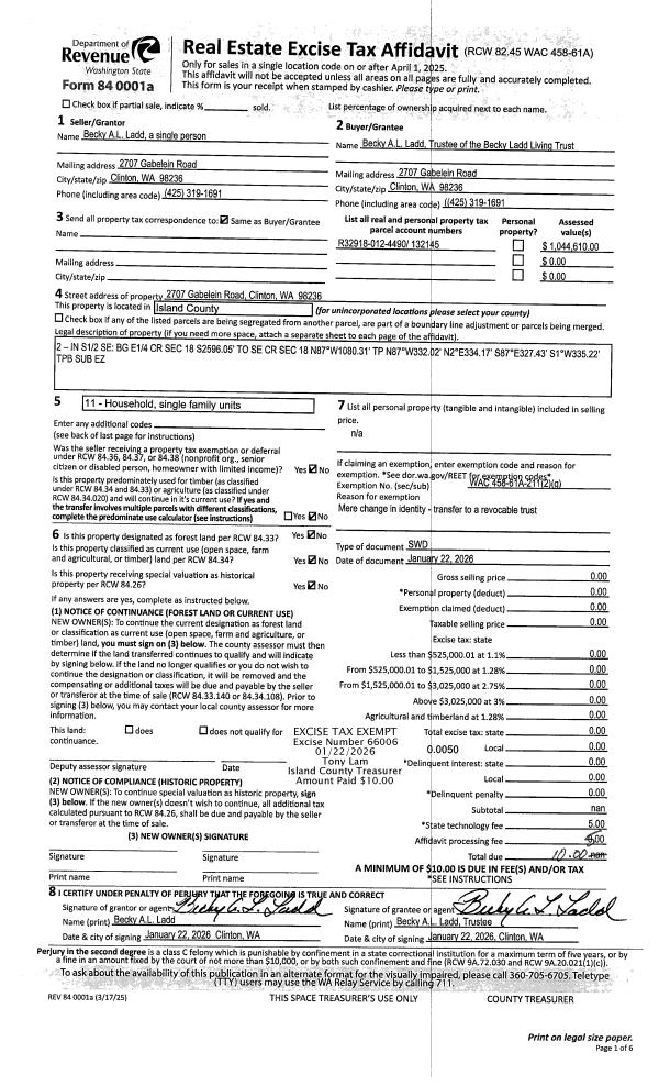
Property
Account |
| Property ID: | 68090 | Abbreviated Legal Description: | 29 - S/2 N/2 NE NW EX HWY EX PT TO ST HWY AF#99013060 |
| Geographic ID: | R23028-483-2121 | Agent Code: | |
| Type: | Real | | |
| Tax Area: | 312 - APPRAISER-Cpvl Schl Dist, outside Cpvl, improved, greater than 1 acre | Land Use Code | 11 |
| Open Space: | N | DFL | N |
| Historic Property: | N | Remodel Property: | N |
| Multi-Family Redevelopment: | N | | |
| Township: | 30 | Section: | 28 |
| Range: | R2 |
Location |
| Address: | | Mapsco: | |
| Neighborhood: | Cycle 3 | Map ID: | 423 |
| Neighborhood CD: | 3 |
Owner |
| Name: | OTHUS, DAVID S | Owner ID: | 63218 |
| Mailing Address: | MICHELLE M OTHUS 434 HAROLD PLACE CAMANO ISLAND, WA 98282 | % Ownership: | 100.0000000000% |
| | | Exemptions: | |
Taxes and Assessment Details
Values
| (+) Improvement Homesite Value: | + | $0 | |
| (+) Improvement Non-Homesite Value: | + | $4,000 | |
| (+) Land Homesite Value: | + | $0 | |
| (+) Land Non-Homesite Value: | + | $210,000 | |
| (+) Curr Use (HS): | + | $0 | $0 |
| (+) Curr Use (NHS): | + | $0 | $0 |
| | | -------------------------- | |
| (=) Market Value: | = | $214,000 | |
| (–) Productivity Loss: | – | $0 | |
| | | -------------------------- | |
| (=) Subtotal: | = | $214,000 | |
| (+) Senior Appraised Value: | + | $0 | |
| (+) Non-Senior Appraised Value: | + | $214,000 | |
| | | -------------------------- | |
| (=) Total Appraised Value: | = | $214,000 | |
| (–) Senior Exemption Loss: | – | $0 | |
| (–) Exemption Loss: | – | $0 | |
| | | -------------------------- | |
| (=) Taxable Value: | = | $214,000 | |
Taxing Jurisdiction
| Owner: | OTHUS, DAVID S | | |
| % Ownership: | 100.0000000000% | | |
| Total Value: | $214,000 | | |
| Tax Area: | 312 - APPRAISER-Cpvl Schl Dist, outside Cpvl, improved, greater than 1 acre |
| CF | Conservation Futures | 0.0316035091 | $214,000 | $214,000 | $6.76 | | |
| CEM2 | Cemetery #2 | 0.0095056933 | $214,000 | $214,000 | $2.03 | | |
| FIRE5 | Fire & Rescue Dist #5 C Whidbey GEN | 1.2008080668 | $214,000 | $214,000 | $256.97 | | |
| FIRE5BOND | Fire & Rescue Dist #5 C Whidbey BOND | 0.1400090713 | $214,000 | $214,000 | $29.96 | | |
| HOBOND | Hospital BOND | 0.1910887512 | $214,000 | $214,000 | $40.89 | | |
| HOGEN | Hospital GEN | 0.3902502903 | $214,000 | $214,000 | $83.51 | | |
| CE | County Current Expense | 0.3708482477 | $214,000 | $214,000 | $79.36 | | |
| CR | County Roads | 0.4584763726 | $214,000 | $214,000 | $98.11 | | |
| ISLANDEMS | Hospital GEN (EMS) | 0.5000000000 | $214,000 | $214,000 | $107.00 | | |
| LIB | Library Sno-Isle GEN | 0.3153421757 | $214,000 | $214,000 | $67.48 | | |
| LIBCAP | Library Sno-Isle BOND (Cap Fac Imp Area) | 0.0543427938 | $214,000 | $214,000 | $11.63 | | |
| POCOUP | Port of Coupeville GEN | 0.1093371703 | $214,000 | $214,000 | $23.40 | | |
| POCOUPIDD | Port of Coupeville IDD | 0.3409740022 | $214,000 | $214,000 | $72.97 | | |
| COUPSDTECH | School 204 CP (TECH) | 0.7545480007 | $214,000 | $214,000 | $161.47 | | |
| SCH204MO | School 204 Enrichment | 0.6716186034 | $214,000 | $214,000 | $143.73 | | |
| ST | State School | 1.3035497053 | $214,000 | $214,000 | $278.96 | | |
| ST2 | State School Part 2 | 0.8169543533 | $214,000 | $214,000 | $174.83 | | |
| | Total Tax Rate: | 7.6592568070 | | | | | |
| | | | | Taxes w/Current Exemptions: | $1,639.06 | | |
| | | | | Taxes w/o Exemptions: | $1,639.06 | | |
Improvement / Building
| Improvement #1: | RESIDENTIAL | State Code: | Y | 0.0 sqft | Value: | $4,000 |
Sketch
Property Image
Land
| 1 | 32 | AC (03.01-09.99) | 9.5800 | 417304.80 | 0.00 | 0.00 | 1.00 | $210,000 | $0 |
Roll Value History
| 2026 | N/A | N/A | N/A | N/A | N/A |
| 2025 | $4,000 | $210,000 | $0 | $214,000 | $214,000 |
| 2024 | $4,000 | $200,000 | $0 | $204,000 | $204,000 |
| 2023 | $4,000 | $180,000 | $0 | $184,000 | $184,000 |
| 2022 | $7,444 | $170,000 | $0 | $177,444 | $177,444 |
| 2021 | $7,319 | $135,000 | $0 | $142,319 | $142,319 |
| 2020 | $7,343 | $130,000 | $0 | $137,343 | $137,343 |
| 2019 | $5,816 | $135,000 | $0 | $140,816 | $140,816 |
| 2018 | $6,032 | $85,000 | $0 | $91,032 | $91,032 |
| 2017 | $6,463 | $100,000 | $0 | $106,463 | $106,463 |
| 2016 | $0 | $100,000 | $0 | $100,000 | $100,000 |
| 2015 | $0 | $100,000 | $0 | $100,000 | $100,000 |
| 2014 | $0 | $125,000 | $0 | $125,000 | $125,000 |
| 2013 | $16,242 | $181,062 | $0 | $197,304 | $197,304 |
| 2012 | $16,673 | $181,062 | $0 | $197,735 | $197,735 |
| 2011 | $17,104 | $201,180 | $0 | $218,284 | $218,284 |
| 2010 | $16,525 | $201,180 | $0 | $217,705 | $217,705 |
| 2009 | $16,916 | $210,760 | $0 | $227,676 | $227,676 |
| 2008 | $17,584 | $232,794 | $0 | $250,378 | $250,378 |
| 2007 | $18,030 | $220,340 | $0 | $238,370 | $238,370 |
Deed and Sales History
| 1 | 11/04/2021 | WD | Warranty Deed | HIGGINS, SHEENA K | OTHUS, DAVID S | | | $225,000.00 | 50758 | 4533160 |
|   | |
| 2 | 05/03/2005 | QCD | Quit Claim Deed | HIGGINS, SCOTT | HIGGINS, SHEENA K | | | $0.00 | 52430 | 4135724 |
| 3 | 04/15/1999 | WD | Warranty Deed | HIGGINS, SCOTT | HIGGINS, SCOTT | | | $3,455.00 | 92086 | 99013060 |
| 4 | 06/01/1993 | OTHER | Other - Misc. Documents | HIGGINS, SCOTT | HIGGINS, SCOTT | | | $800.00 | 32162 | 0 |
| 5 | 09/01/1992 | WD | Warranty Deed | JEALOUS, MATT J | HIGGINS, SCOTT | | | $55,000.00 | 23627 | 92017473 |
| 6 | 08/01/1989 | OTHER | Other - Misc. Documents | JEALOUS, MATT J | JEALOUS, MATT J | | | $15,425.00 | 93434 | 0 |
| 7 | 08/01/1989 | WD | Warranty Deed | JAKOBSEN, SVEN A | JEALOUS, MATT J | | | $15,800.00 | 93435 | 89011510 |
| 8 | 03/01/1985 | OTHER | Other - Misc. Documents | JAKOBSEN, SVEN A | JAKOBSEN, SVEN A | | | $16,000.00 | 50514 | 0 |
| 9 | 03/01/1985 | REC | Real Estate Contract | READ, CHARLES T | JAKOBSEN, SVEN A | | | $0.00 | 50515 | 85002328 |
| 10 | 07/01/1978 | OTHER | Other - Misc. Documents | READ, CHARLES E | READ, CHARLES T | | | $0.00 | 83936 | 3381220 |
| 11 | 01/01/1900 | OTHER | Other - Misc. Documents | Unknown | READ, CHARLES E | | | $9,996.00 | 0 | 0 |
Payout Agreement
| No payout information available.. |