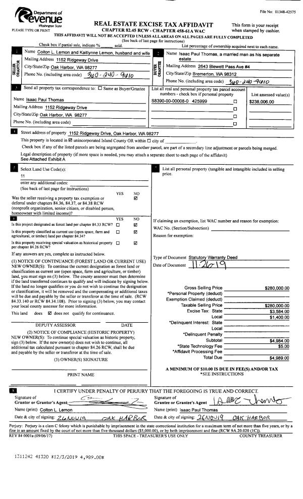
Property
Account |
| Property ID: | 68198 | Abbreviated Legal Description: | 9 - W/2 OF SEC 29 LY E OF CORD |
| Geographic ID: | R23029-290-1590 | Agent Code: | |
| Type: | Real | | |
| Tax Area: | 311 - APPRAISER-Cpvl Schl Dist, outside Cpvl, vacant, greater than 50 acres | Land Use Code | 76 |
| Open Space: | N | DFL | N |
| Historic Property: | N | Remodel Property: | N |
| Multi-Family Redevelopment: | N | | |
| Township: | 30 | Section: | 29 |
| Range: | R2 |
Location |
| Address: | COUPEVILLE, WA 98239 | Mapsco: | |
| Neighborhood: | Cycle 3 | Map ID: | 427 |
| Neighborhood CD: | 3 |
Owner |
| Name: | WASHINGTON STATE PARKS AND RECREATION | Owner ID: | 25657 |
| Mailing Address: | COMMISSION NORTHWEST REGION 220 N WALNUT ST BURLINGTON, WA 98233 | % Ownership: | 100.0000000000% |
| | | Exemptions: | EX |
Taxes and Assessment Details
Values
| (+) Improvement Homesite Value: | + | $0 | |
| (+) Improvement Non-Homesite Value: | + | $0 | |
| (+) Land Homesite Value: | + | $0 | |
| (+) Land Non-Homesite Value: | + | $2,601,300 | |
| (+) Curr Use (HS): | + | $0 | $0 |
| (+) Curr Use (NHS): | + | $0 | $0 |
| | | -------------------------- | |
| (=) Market Value: | = | $2,601,300 | |
| (–) Productivity Loss: | – | $0 | |
| | | -------------------------- | |
| (=) Subtotal: | = | $2,601,300 | |
| (+) Senior Appraised Value: | + | $0 | |
| (+) Non-Senior Appraised Value: | + | $2,601,300 | |
| | | -------------------------- | |
| (=) Total Appraised Value: | = | $2,601,300 | |
| (–) Senior Exemption Loss: | – | $0 | |
| (–) Exemption Loss: | – | $2,601,300 | |
| | | -------------------------- | |
| (=) Taxable Value: | = | $0 | |
Taxing Jurisdiction
| Owner: | WASHINGTON STATE PARKS AND RECREATION | | |
| % Ownership: | 100.0000000000% | | |
| Total Value: | $2,601,300 | | |
| Tax Area: | 311 - APPRAISER-Cpvl Schl Dist, outside Cpvl, vacant, greater than 50 acres |
| CF | Conservation Futures | 0.0316035091 | $2,601,300 | $0 | $0.00 | | |
| CEM2 | Cemetery #2 | 0.0095056933 | $2,601,300 | $0 | $0.00 | | |
| HOBOND | Hospital BOND | 0.1910887512 | $2,601,300 | $0 | $0.00 | | |
| HOGEN | Hospital GEN | 0.3902502903 | $2,601,300 | $0 | $0.00 | | |
| CE | County Current Expense | 0.3708482477 | $2,601,300 | $0 | $0.00 | | |
| CR | County Roads | 0.4584763726 | $2,601,300 | $0 | $0.00 | | |
| ISLANDEMS | Hospital GEN (EMS) | 0.5000000000 | $2,601,300 | $0 | $0.00 | | |
| LIB | Library Sno-Isle GEN | 0.3153421757 | $2,601,300 | $0 | $0.00 | | |
| LIBCAP | Library Sno-Isle BOND (Cap Fac Imp Area) | 0.0543427938 | $2,601,300 | $0 | $0.00 | | |
| POCOUP | Port of Coupeville GEN | 0.1093371703 | $2,601,300 | $0 | $0.00 | | |
| POCOUPIDD | Port of Coupeville IDD | 0.3409740022 | $2,601,300 | $0 | $0.00 | | |
| COUPSDTECH | School 204 CP (TECH) | 0.7545480007 | $2,601,300 | $0 | $0.00 | | |
| SCH204MO | School 204 Enrichment | 0.6716186034 | $2,601,300 | $0 | $0.00 | | |
| ST | State School | 1.3035497053 | $2,601,300 | $0 | $0.00 | | |
| ST2 | State School Part 2 | 0.8169543533 | $2,601,300 | $0 | $0.00 | | |
| | Total Tax Rate: | 6.3184396689 | | | | | |
| | | | | Taxes w/Current Exemptions: | $0.00 | | |
| | | | | Taxes w/o Exemptions: | $16,436.16 | | |
Improvement / Building
Sketch
| No sketches available for this property. |
Property Image
Land
| 1 | 37 | AC (31.00-+) | 262.1300 | 11418382.80 | 0.00 | 0.00 | 1.00 | $2,601,300 | $0 |
Roll Value History
| 2026 | N/A | N/A | N/A | N/A | N/A |
| 2025 | $0 | $2,601,300 | $0 | $2,601,300 | $0 |
| 2024 | $0 | $1,965,000 | $0 | $1,965,000 | $0 |
| 2023 | $0 | $1,965,000 | $0 | $1,965,000 | $0 |
| 2022 | $0 | $1,965,000 | $0 | $1,965,000 | $0 |
| 2021 | $0 | $1,965,000 | $0 | $1,965,000 | $0 |
| 2020 | $0 | $1,965,000 | $0 | $1,965,000 | $0 |
| 2019 | $0 | $1,965,000 | $0 | $1,965,000 | $0 |
| 2018 | $0 | $1,965,000 | $0 | $1,965,000 | $0 |
| 2017 | $0 | $1,500,000 | $0 | $1,500,000 | $0 |
| 2016 | $0 | $1,500,000 | $0 | $1,500,000 | $0 |
| 2015 | $0 | $1,500,000 | $0 | $1,500,000 | $0 |
| 2014 | $0 | $1,163,883 | $0 | $1,163,883 | $0 |
| 2013 | $0 | $1,163,883 | $0 | $1,163,883 | $0 |
| 2012 | $0 | $1,163,883 | $0 | $1,163,883 | $0 |
| 2011 | $0 | $1,163,883 | $0 | $1,163,883 | $0 |
| 2010 | $0 | $1,163,883 | $0 | $1,163,883 | $0 |
| 2009 | $0 | $1,163,883 | $0 | $1,163,883 | $0 |
| 2008 | $0 | $1,163,883 | $0 | $1,163,883 | $0 |
| 2007 | $0 | $1,163,883 | $0 | $1,163,883 | $0 |
Deed and Sales History
| 1 | 07/01/1992 | QCD | Quit Claim Deed | UNIVERSITY, RESERVE | WASH, ST P | | | $0.00 | 23049 | 92014854 |
| 2 | 01/01/1900 | OTHER | Other - Misc. Documents | Unknown | UNIVERSITY, RESERVE | | | $0.00 | 0 | 0 |
Payout Agreement
| No payout information available.. |