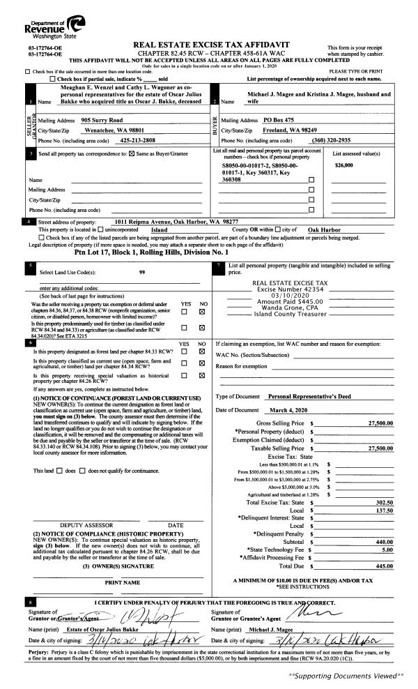
Property
Account |
| Property ID: | 68303 | Abbreviated Legal Description: | PT GL2 DESC FOLL: BG MC COM TO SEC 19 & 30 ALG ML SD GL2 S8*W246.74' S57*E1001.70' S49*E104.01' TP NWLYCR TR DESC & TPB ALG SD ML S49*E100' N56*E408.55' N48W99.71' S56*W409.55' TPB EX RDS EX ANY PT LY TR DEEDED TO CYRIL E CAFFIERE AF#59615 TGW PT OF NE |
| Geographic ID: | R23030-428-3570 | Agent Code: | |
| Type: | Real | | |
| Tax Area: | 310 - APPRAISER-Cpvl Schl Dist, outside Cpvl, improved & 1 acre or less | Land Use Code | 11 |
| Open Space: | N | DFL | N |
| Historic Property: | N | Remodel Property: | N |
| Multi-Family Redevelopment: | N | | |
| Township: | 30 | Section: | 30 |
| Range: | R2 |
Location |
| Address: | 4048 SMUGGLERS COVE RD GREENBANK, WA 98253 | Mapsco: | |
| Neighborhood: | Cycle 3 | Map ID: | 429 |
| Neighborhood CD: | 3 |
Owner |
| Name: | SANTORSOLA, ANTHONY A | Owner ID: | 193821 |
| Mailing Address: | JULIE T SANTORSOLA 8627 NE 121ST PLACE KIRKLAND, WA 98034-6023 | % Ownership: | 100.0000000000% |
| | | Exemptions: | |
Taxes and Assessment Details
Values
| (+) Improvement Homesite Value: | + | $0 | |
| (+) Improvement Non-Homesite Value: | + | $151,624 | |
| (+) Land Homesite Value: | + | $0 | |
| (+) Land Non-Homesite Value: | + | $556,500 | |
| (+) Curr Use (HS): | + | $0 | $0 |
| (+) Curr Use (NHS): | + | $0 | $0 |
| | | -------------------------- | |
| (=) Market Value: | = | $708,124 | |
| (–) Productivity Loss: | – | $0 | |
| | | -------------------------- | |
| (=) Subtotal: | = | $708,124 | |
| (+) Senior Appraised Value: | + | $0 | |
| (+) Non-Senior Appraised Value: | + | $708,124 | |
| | | -------------------------- | |
| (=) Total Appraised Value: | = | $708,124 | |
| (–) Senior Exemption Loss: | – | $0 | |
| (–) Exemption Loss: | – | $0 | |
| | | -------------------------- | |
| (=) Taxable Value: | = | $708,124 | |
Taxing Jurisdiction
| Owner: | SANTORSOLA, ANTHONY A | | |
| % Ownership: | 100.0000000000% | | |
| Total Value: | $708,124 | | |
| Tax Area: | 310 - APPRAISER-Cpvl Schl Dist, outside Cpvl, improved & 1 acre or less |
| CF | Conservation Futures | 0.0316035091 | $708,124 | $708,124 | $22.38 | | |
| CEM2 | Cemetery #2 | 0.0095056933 | $708,124 | $708,124 | $6.73 | | |
| FIRE5 | Fire & Rescue Dist #5 C Whidbey GEN | 1.2008080668 | $708,124 | $708,124 | $850.32 | | |
| FIRE5BOND | Fire & Rescue Dist #5 C Whidbey BOND | 0.1400090713 | $708,124 | $708,124 | $99.14 | | |
| HOBOND | Hospital BOND | 0.1910887512 | $708,124 | $708,124 | $135.31 | | |
| HOGEN | Hospital GEN | 0.3902502903 | $708,124 | $708,124 | $276.35 | | |
| CE | County Current Expense | 0.3708482477 | $708,124 | $708,124 | $262.61 | | |
| CR | County Roads | 0.4584763726 | $708,124 | $708,124 | $324.66 | | |
| ISLANDEMS | Hospital GEN (EMS) | 0.5000000000 | $708,124 | $708,124 | $354.06 | | |
| LIB | Library Sno-Isle GEN | 0.3153421757 | $708,124 | $708,124 | $223.30 | | |
| LIBCAP | Library Sno-Isle BOND (Cap Fac Imp Area) | 0.0543427938 | $708,124 | $708,124 | $38.48 | | |
| POCOUP | Port of Coupeville GEN | 0.1093371703 | $708,124 | $708,124 | $77.42 | | |
| POCOUPIDD | Port of Coupeville IDD | 0.3409740022 | $708,124 | $708,124 | $241.45 | | |
| COUPSDTECH | School 204 CP (TECH) | 0.7545480007 | $708,124 | $708,124 | $534.31 | | |
| SCH204MO | School 204 Enrichment | 0.6716186034 | $708,124 | $708,124 | $475.59 | | |
| ST | State School | 1.3035497053 | $708,124 | $708,124 | $923.07 | | |
| ST2 | State School Part 2 | 0.8169543533 | $708,124 | $708,124 | $578.50 | | |
| | Total Tax Rate: | 7.6592568070 | | | | | |
| | | | | Taxes w/Current Exemptions: | $5,423.68 | | |
| | | | | Taxes w/o Exemptions: | $5,423.68 | | |
Improvement / Building
| Improvement #1: | RESIDENTIAL | State Code: | Y | 828.0 sqft | Value: | $151,624 |
| Bathrooms: | 1 | Bedrooms: | 1 | | Ceiling: | TONGUE & GROOVE | Exterior Wall/Cover: | WOOD SIDING | | Floor Covering: | CARPET/VINYL 60-40 | Floor Structure: | WOOD W/SUBFLOOR | | Foundation: | CONCRETE | Heating: | BASEBOARD ELECTRIC | | Interior Finish: | DRYWALL PAINT | Plumbing Fixture Cnt: | 6 | | Roof Slope: | FLAT | Roof Structure/Cover: | BEAM BUILT-UP ROCK |
|
| | Type | Description | Class CD | Sub Class CD | Year Built | Area |
| | BAS | BASE/MAIN FLOOR | 3 | 0 | 1962 | 828.0 |
| | OWP | OPEN WOOD PORCH W/STEPS | 3 | 0 | 1962 | 1132.8 |
| | OWR | OPEN WOOD PORCH W/STEPS/ROOF | 3 | 0 | 1962 | 120.0 |
| | UTY | STORAGE/UTILITY | 3 | 0 | 1962 | 448.0 |
| | UTY | STORAGE/UTILITY | 3 | 0 | 1962 | 192.0 |
Sketch
Property Image
Land
| 1 | HB | HIGH BLUFF | 0.0000 | 0.00 | 100.00 | 0.00 | 1.00 | $556,500 | $0 |
Roll Value History
| 2026 | N/A | N/A | N/A | N/A | N/A |
| 2025 | $151,624 | $556,500 | $0 | $708,124 | $708,124 |
| 2024 | $157,232 | $525,000 | $0 | $682,232 | $682,232 |
| 2023 | $159,840 | $500,000 | $0 | $659,840 | $659,840 |
| 2022 | $137,765 | $480,000 | $0 | $617,765 | $617,765 |
| 2021 | $121,716 | $400,000 | $0 | $521,716 | $521,716 |
| 2020 | $118,901 | $400,000 | $0 | $518,901 | $518,901 |
| 2019 | $46,492 | $400,000 | $0 | $446,492 | $446,492 |
| 2018 | $46,642 | $350,000 | $0 | $396,642 | $396,642 |
| 2017 | $46,945 | $350,000 | $0 | $396,945 | $396,945 |
| 2016 | $47,551 | $350,000 | $0 | $397,551 | $397,551 |
| 2015 | $48,157 | $350,000 | $0 | $398,157 | $398,157 |
| 2014 | $48,763 | $350,000 | $0 | $398,763 | $398,763 |
| 2013 | $51,123 | $293,078 | $0 | $344,201 | $344,201 |
| 2012 | $51,756 | $293,078 | $0 | $344,834 | $344,834 |
| 2011 | $52,387 | $293,078 | $0 | $345,465 | $345,465 |
| 2010 | $53,142 | $293,078 | $0 | $346,220 | $346,220 |
| 2009 | $55,652 | $369,416 | $0 | $425,068 | $425,068 |
| 2008 | $80,829 | $344,587 | $0 | $425,416 | $425,416 |
| 2007 | $66,169 | $369,416 | $0 | $435,585 | $435,585 |
Deed and Sales History
| 1 | 09/19/2008 | BLA | DNU - Boundary Line Adjustment | SANTORSOLA, ANTHONY A | SANTORSOLA, ANTHONY A | | | $0.00 | 80930 | 4130530 |
| 2 | 05/19/2005 | QCD | Quit Claim Deed | SANTORSOLA, ANTHONY A | SANTORSOLA, ANTHONY A | | | $2,468.00 | 52183 | 4134506 |
| 3 | 11/16/2004 | WD | Warranty Deed | PERKINS, ALAN | SANTORSOLA, ANTHONY A | | | $400,379.00 | 45513 | 4118969 |
| 4 | 04/04/2003 | WD | Warranty Deed | BLACKWELL, M L | PERKINS, ALAN | | | $290,070.00 | 31458 | 4054344 |
| 5 | 01/01/1900 | OTHER | Other - Misc. Documents | Unknown | BLACKWELL, M L | | | $0.00 | 0 | 0 |
Payout Agreement
| No payout information available.. |