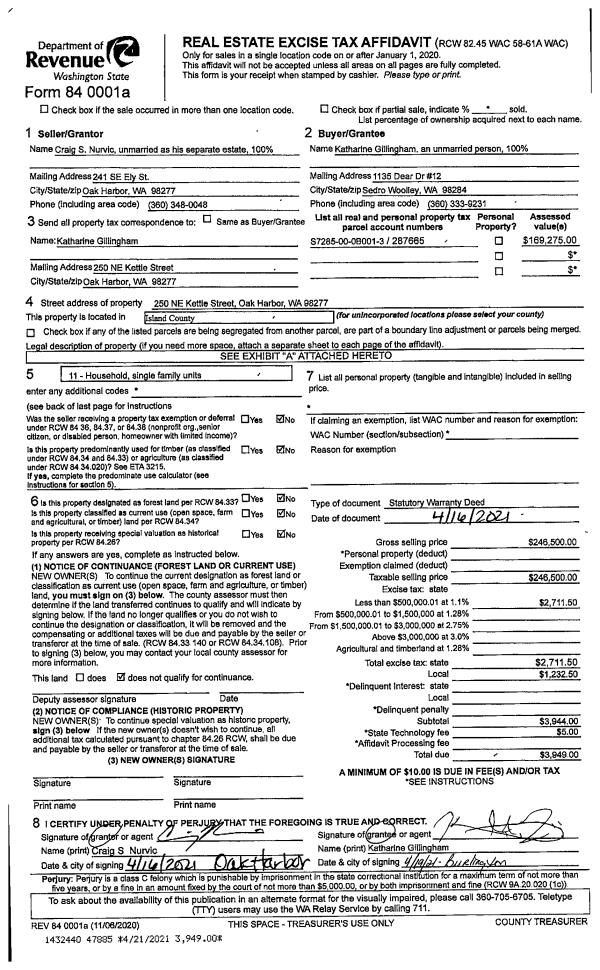
Property
Account |
| Property ID: | 683237 | Abbreviated Legal Description: | PEHLING LOTS 3 & 4 BLK 1 FR 01001-0 |
| Geographic ID: | S7720-00-01003-0 | Agent Code: | |
| Type: | Real | | |
| Tax Area: | 710 - APPRAISER-S Whid Schl Dist, outside Langley, improved & 1 acre or less | Land Use Code | 11 |
| Open Space: | N | DFL | N |
| Historic Property: | N | Remodel Property: | N |
| Multi-Family Redevelopment: | N | | |
| Township: | | Section: | |
| Range: | |
Location |
| Address: | 3151 SARATOGA RD LANGLEY, WA 98260 | Mapsco: | |
| Neighborhood: | Cycle 3 | Map ID: | 370 |
| Neighborhood CD: | 3 |
Owner |
| Name: | WITTENMEIER, ERIC R | Owner ID: | 296774 |
| Mailing Address: | MELINDA ANN WITTENMEIER 3151 SARATOGA RD LANGLEY, WA 98260 | % Ownership: | 100.0000000000% |
| | | Exemptions: | |
Taxes and Assessment Details
Values
| (+) Improvement Homesite Value: | + | $0 | |
| (+) Improvement Non-Homesite Value: | + | $419,387 | |
| (+) Land Homesite Value: | + | $0 | |
| (+) Land Non-Homesite Value: | + | $650,000 | |
| (+) Curr Use (HS): | + | $0 | $0 |
| (+) Curr Use (NHS): | + | $0 | $0 |
| | | -------------------------- | |
| (=) Market Value: | = | $1,069,387 | |
| (–) Productivity Loss: | – | $0 | |
| | | -------------------------- | |
| (=) Subtotal: | = | $1,069,387 | |
| (+) Senior Appraised Value: | + | $0 | |
| (+) Non-Senior Appraised Value: | + | $1,069,387 | |
| | | -------------------------- | |
| (=) Total Appraised Value: | = | $1,069,387 | |
| (–) Senior Exemption Loss: | – | $0 | |
| (–) Exemption Loss: | – | $0 | |
| | | -------------------------- | |
| (=) Taxable Value: | = | $1,069,387 | |
Taxing Jurisdiction
| Owner: | WITTENMEIER, ERIC R | | |
| % Ownership: | 100.0000000000% | | |
| Total Value: | $1,069,387 | | |
| Tax Area: | 710 - APPRAISER-S Whid Schl Dist, outside Langley, improved & 1 acre or less |
| CF | Conservation Futures | 0.0316035091 | $1,069,387 | $1,069,387 | $33.80 | | |
| FIRE3 | Fire & Rescue Dist #3 S Whidbey GEN | 1.2004855531 | $1,069,387 | $1,069,387 | $1,283.78 | | |
| HOBOND | Hospital BOND | 0.1910887512 | $1,069,387 | $1,069,387 | $204.35 | | |
| HOGEN | Hospital GEN | 0.3902502903 | $1,069,387 | $1,069,387 | $417.33 | | |
| CE | County Current Expense | 0.3708482477 | $1,069,387 | $1,069,387 | $396.58 | | |
| CR | County Roads | 0.4584763726 | $1,069,387 | $1,069,387 | $490.29 | | |
| ISLANDEMS | Hospital GEN (EMS) | 0.5000000000 | $1,069,387 | $1,069,387 | $534.69 | | |
| LIB | Library Sno-Isle GEN | 0.3153421757 | $1,069,387 | $1,069,387 | $337.22 | | |
| PORTWHID | Port of S Whidbey GEN | 0.1094540357 | $1,069,387 | $1,069,387 | $117.05 | | |
| SCH206BOND | School 206 BOND | 0.3161759235 | $1,069,387 | $1,069,387 | $338.11 | | |
| SCH206MO | School 206 Enrichment | 0.4547169547 | $1,069,387 | $1,069,387 | $486.27 | | |
| ST | State School | 1.3035497053 | $1,069,387 | $1,069,387 | $1,394.00 | | |
| ST2 | State School Part 2 | 0.8169543533 | $1,069,387 | $1,069,387 | $873.64 | | |
| SWHIDPRBD | P & R S Whidbey BOND | 0.0152817568 | $1,069,387 | $1,069,387 | $16.34 | | |
| SWHIDPRBD2 | P & R S Whidbey BOND2 | 0.0138911264 | $1,069,387 | $1,069,387 | $14.85 | | |
| SWHIDPRMT | P & R S Whidbey GEN | 0.2053334452 | $1,069,387 | $1,069,387 | $219.58 | | |
| | Total Tax Rate: | 6.6934522006 | | | | | |
| | | | | Taxes w/Current Exemptions: | $7,157.88 | | |
| | | | | Taxes w/o Exemptions: | $7,157.88 | | |
Improvement / Building
| Improvement #1: | RESIDENTIAL | State Code: | Y | 2977.0 sqft | Value: | $419,387 |
| Bathrooms: | 3 | Bedrooms: | 3 | | Ceiling: | DRYWALL PAINTED | Exterior Wall/Cover: | SHINGLE | | Floor Covering: | CERAMIC TILE/CPT 40-60 | Floor Structure: | WOOD W/SUBFLOOR | | Foundation: | CONCRETE | Heating: | FHA GAS | | Interior Finish: | DRYWALL PAINT | Plumbing Fixture Cnt: | 13 | | Roof Slope: | 12" IN 12" | Roof Structure/Cover: | CJ ASPHALT |
|
| | Type | Description | Class CD | Sub Class CD | Year Built | Area |
| | BAS | BASE/MAIN FLOOR | 4 | 0 | 1998 | 1120.0 |
| | BAW | BALCONY WOOD RAIL | 4 | 0 | 1998 | 28.3 |
| | OWP | OPEN WOOD PORCH W/STEPS | 4 | 0 | 1998 | 64.0 |
| | OWP | OPEN WOOD PORCH W/STEPS | 4 | 0 | 1998 | 121.0 |
| | OWP | OPEN WOOD PORCH W/STEPS | 4 | 0 | 1998 | 580.0 |
| | OWC | OPEN WOOD PORCH W/STEPS/ROOF/C | 4 | 0 | 1998 | 32.0 |
| | UPH | HALF STORY | 4 | 0 | 1998 | 361.0 |
| | LOF | LOFT | 4 | 0 | 1998 | 376.0 |
| | DWN | DOWNSTAIRS LIVING AREA | 4 | 0 | 1998 | 1120.0 |
| | DGR | DETACHED GARAGE | 4 | 0 | 1998 | 480.0 |
Sketch
Property Image
Land
| 1 | HB | HIGH BLUFF | 0.0000 | 0.00 | 120.00 | 0.00 | 1.00 | $650,000 | $0 |
Roll Value History
| 2026 | N/A | N/A | N/A | N/A | N/A |
| 2025 | $419,387 | $650,000 | $0 | $1,069,387 | $1,069,387 |
| 2024 | $424,815 | $650,000 | $0 | $1,074,815 | $1,074,815 |
| 2023 | $430,243 | $575,000 | $0 | $1,005,243 | $1,005,243 |
| 2022 | $394,494 | $650,000 | $0 | $1,044,494 | $1,044,494 |
| 2021 | $347,302 | $375,000 | $0 | $722,302 | $722,302 |
| 2020 | $339,228 | $250,000 | $0 | $589,228 | $589,228 |
| 2019 | $252,082 | $300,000 | $0 | $552,082 | $552,082 |
| 2018 | $252,877 | $300,000 | $0 | $552,877 | $552,877 |
| 2017 | $254,462 | $300,000 | $0 | $554,462 | $554,462 |
| 2016 | $257,641 | $300,000 | $0 | $557,641 | $557,641 |
| 2015 | $260,822 | $300,000 | $0 | $560,822 | $560,822 |
| 2014 | $264,003 | $300,000 | $0 | $564,003 | $564,003 |
| 2013 | $262,316 | $280,900 | $0 | $543,216 | $543,216 |
| 2012 | $265,249 | $280,900 | $0 | $546,149 | $546,149 |
| 2011 | $268,179 | $280,900 | $0 | $549,079 | $549,079 |
| 2010 | $277,673 | $312,112 | $0 | $589,785 | $589,785 |
| 2009 | $289,244 | $434,053 | $0 | $723,297 | $723,297 |
| 2008 | $292,817 | $502,136 | $0 | $794,953 | $794,953 |
| 2007 | $296,495 | $502,136 | $0 | $798,631 | $798,631 |
Deed and Sales History
| 1 | 08/28/2020 | QCD | Quit Claim Deed | WITTENMEIER, ERIC | WITTENMEIER, ERIC R | | | $0.00 | 45826 | 4503080 |
| 2 | 11/24/2014 | WD | Warranty Deed | WITTENMEIER, ERIC | WITTENMEIER, ERIC | | | $0.00 | 18426 | 4372854 |
| 3 | 11/25/2014 | WD | Warranty Deed | FRASIER, ERIC M | WITTENMEIER, ERIC | | | $482,250.00 | 17700 | 4369110 |
| 4 | 08/14/2009 | WD | Warranty Deed | ROSENBERGER, JAMES A | FRASIER, ERIC M | | | $605,000.00 | 91918 | 4258696 |
| 5 | 07/01/1995 | OTHER | Other - Misc. Documents | ROSENBERGER, JAMES A | ROSENBERGER, JAMES A | | | $0.00 | 66511 | 95010301 |
| 6 | 11/01/1994 | QCD | Quit Claim Deed | ROSENBERGER, WM A | ROSENBERGER, JAMES A | | | $0.00 | 44986 | 94025405 |
| 7 | 01/01/1994 | WD | Warranty Deed | SEWARD, JONNIE P | ROSENBERGER, WM A | | | $90,000.00 | 40214 | 94001211 |
| 8 | 01/01/1900 | OTHER | Other - Misc. Documents | Unknown | SEWARD, JONNIE P | | | $0.00 | 0 | 0 |
Payout Agreement
| No payout information available.. |