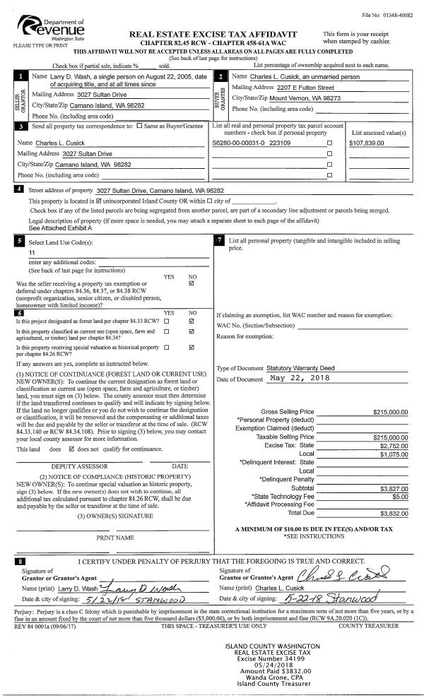
Property
Account |
| Property ID: | 685057 | Abbreviated Legal Description: | LOT 2 SP 40-91.13101.268-3600 V2 SP P399 AF#93008775 |
| Geographic ID: | R13101-335-3520 | Agent Code: | |
| Type: | Real | | |
| Tax Area: | 312 - APPRAISER-Cpvl Schl Dist, outside Cpvl, improved, greater than 1 acre | Land Use Code | 11 |
| Open Space: | N | DFL | N |
| Historic Property: | N | Remodel Property: | N |
| Multi-Family Redevelopment: | N | | |
| Township: | 31 | Section: | 01 |
| Range: | R1 |
Location |
| Address: | 130 PERCHERON LN COUPEVILLE, WA 98239 | Mapsco: | |
| Neighborhood: | Cycle 2 | Map ID: | 20 |
| Neighborhood CD: | 2 |
Owner |
| Name: | DANIELS TTEE, DANNY L. | Owner ID: | 304524 |
| Mailing Address: | 130 PERCHERON LN COUPEVILLE, WA 98239 | % Ownership: | 100.0000000000% |
| | | Exemptions: | |
Taxes and Assessment Details
Values
| (+) Improvement Homesite Value: | + | $0 | |
| (+) Improvement Non-Homesite Value: | + | $752,737 | |
| (+) Land Homesite Value: | + | $0 | |
| (+) Land Non-Homesite Value: | + | $340,000 | |
| (+) Curr Use (HS): | + | $0 | $0 |
| (+) Curr Use (NHS): | + | $0 | $0 |
| | | -------------------------- | |
| (=) Market Value: | = | $1,092,737 | |
| (–) Productivity Loss: | – | $0 | |
| | | -------------------------- | |
| (=) Subtotal: | = | $1,092,737 | |
| (+) Senior Appraised Value: | + | $0 | |
| (+) Non-Senior Appraised Value: | + | $1,092,737 | |
| | | -------------------------- | |
| (=) Total Appraised Value: | = | $1,092,737 | |
| (–) Senior Exemption Loss: | – | $0 | |
| (–) Exemption Loss: | – | $0 | |
| | | -------------------------- | |
| (=) Taxable Value: | = | $1,092,737 | |
Taxing Jurisdiction
| Owner: | DANIELS TTEE, DANNY L. | | |
| % Ownership: | 100.0000000000% | | |
| Total Value: | $1,092,737 | | |
| Tax Area: | 312 - APPRAISER-Cpvl Schl Dist, outside Cpvl, improved, greater than 1 acre |
| CF | Conservation Futures | 0.0316035091 | $1,092,737 | $1,092,737 | $34.53 | | |
| CEM2 | Cemetery #2 | 0.0095056933 | $1,092,737 | $1,092,737 | $10.39 | | |
| FIRE5 | Fire & Rescue Dist #5 C Whidbey GEN | 1.2008080668 | $1,092,737 | $1,092,737 | $1,312.17 | | |
| FIRE5BOND | Fire & Rescue Dist #5 C Whidbey BOND | 0.1400090713 | $1,092,737 | $1,092,737 | $152.99 | | |
| HOBOND | Hospital BOND | 0.1910887512 | $1,092,737 | $1,092,737 | $208.81 | | |
| HOGEN | Hospital GEN | 0.3902502903 | $1,092,737 | $1,092,737 | $426.44 | | |
| CE | County Current Expense | 0.3708482477 | $1,092,737 | $1,092,737 | $405.24 | | |
| CR | County Roads | 0.4584763726 | $1,092,737 | $1,092,737 | $500.99 | | |
| ISLANDEMS | Hospital GEN (EMS) | 0.5000000000 | $1,092,737 | $1,092,737 | $546.37 | | |
| LIB | Library Sno-Isle GEN | 0.3153421757 | $1,092,737 | $1,092,737 | $344.59 | | |
| LIBCAP | Library Sno-Isle BOND (Cap Fac Imp Area) | 0.0543427938 | $1,092,737 | $1,092,737 | $59.38 | | |
| POCOUP | Port of Coupeville GEN | 0.1093371703 | $1,092,737 | $1,092,737 | $119.48 | | |
| POCOUPIDD | Port of Coupeville IDD | 0.3409740022 | $1,092,737 | $1,092,737 | $372.59 | | |
| COUPSDTECH | School 204 CP (TECH) | 0.7545480007 | $1,092,737 | $1,092,737 | $824.52 | | |
| SCH204MO | School 204 Enrichment | 0.6716186034 | $1,092,737 | $1,092,737 | $733.90 | | |
| ST | State School | 1.3035497053 | $1,092,737 | $1,092,737 | $1,424.44 | | |
| ST2 | State School Part 2 | 0.8169543533 | $1,092,737 | $1,092,737 | $892.72 | | |
| | Total Tax Rate: | 7.6592568070 | | | | | |
| | | | | Taxes w/Current Exemptions: | $8,369.55 | | |
| | | | | Taxes w/o Exemptions: | $8,369.55 | | |
Improvement / Building
| Improvement #1: | RESIDENTIAL | State Code: | Y | 2152.5 sqft | Value: | $752,737 |
| Bathrooms: | 2 | Bedrooms: | 3 | | Ceiling: | DRYWALL PAINTED | Exterior Wall/Cover: | STUCCO | | Floor Covering: | TILE CERAMIC | Floor Structure: | SLAB ABOVE GRADE | | Foundation: | SLAB/CONCRETE | Heating: | RADIANT FLOOR | | Interior Finish: | DRYWALL PAINT | Plumbing Fixture Cnt: | 16 | | Roof Slope: | 5" IN 12" | Roof Structure/Cover: | CJ ASPHALT |
|
| | Type | Description | Class CD | Sub Class CD | Year Built | Area |
| | BAS | BASE/MAIN FLOOR | 4 | 0 | 2005 | 2152.5 |
| | oPOL | POLE BARN | 4 | 0 | 2005 | 1440.0 |
| | OCP | OPEN CARPORT | 4 | 0 | 2005 | 288.0 |
| | OP4 | OPEN PORCH W/CEILING-ROOF | 4 | 0 | 2005 | 47.5 |
| | AGR | ATTACHED GARAGE | 4 | 0 | 2005 | 884.7 |
| | ENP | ENCLOSED PORCH | 4 | 0 | 2005 | 339.0 |
| | CPD | OPEN CARPORT DIRT FLOOR | 4 | 0 | 2005 | 287.9 |
Sketch
| No sketches available for this property. |
Property Image
Land
| 1 | HS | HOMESITE | 1.0000 | 43560.00 | 0.00 | 0.00 | 1.00 | $220,000 | $0 |
| 2 | HS | HOMESITE | 4.0000 | 174240.00 | 0.00 | 0.00 | 1.00 | $120,000 | $0 |
Roll Value History
| 2026 | N/A | N/A | N/A | N/A | N/A |
| 2025 | $752,737 | $340,000 | $0 | $1,092,737 | $1,092,737 |
| 2024 | $744,867 | $290,000 | $0 | $1,034,867 | $1,034,867 |
| 2023 | $753,707 | $280,000 | $0 | $1,033,707 | $1,033,707 |
| 2022 | $690,633 | $250,000 | $0 | $940,633 | $940,633 |
| 2021 | $607,517 | $170,000 | $0 | $777,517 | $777,517 |
| 2020 | $590,907 | $160,000 | $0 | $750,907 | $750,907 |
| 2019 | $438,722 | $230,000 | $0 | $668,722 | $668,722 |
| 2018 | $424,051 | $200,000 | $0 | $624,051 | $624,051 |
| 2017 | $426,076 | $200,000 | $972 | $467,048 | $467,048 |
| 2016 | $430,513 | $140,000 | $972 | $459,485 | $459,485 |
| 2015 | $434,952 | $114,750 | $972 | $458,874 | $458,874 |
| 2014 | $439,389 | $114,750 | $972 | $463,311 | $463,311 |
| 2013 | $443,825 | $114,750 | $972 | $467,747 | $467,747 |
| 2012 | $459,548 | $114,750 | $972 | $483,470 | $483,470 |
| 2011 | $463,986 | $135,000 | $972 | $564,958 | $564,958 |
| 2010 | $0 | $80,000 | $972 | $972 | $972 |
| 2009 | $0 | $98,000 | $972 | $972 | $972 |
| 2008 | $0 | $80,250 | $972 | $972 | $972 |
| 2007 | $0 | $80,000 | $972 | $972 | $972 |
Deed and Sales History
| 1 | 05/25/2022 | WD | Warranty Deed | HILL TTEE, CORALEE EDYTHE | DANIELS TTEE, DANNY L. | | | $975,000.00 | 53308 | 4546088 |
| 2 | 08/03/2018 | WD | Warranty Deed | HALSTEAD, ROBERT L | HILL TTEE, CORALEE EDYTHE | | | $661,000.00 | 35368 | 4449540 |
| 3 | 01/01/1900 | OTHER | Other - Misc. Documents | Unknown | HALSTEAD, ROBERT L | | | $0.00 | 11893 | 91008060 |
Payout Agreement
| No payout information available.. |