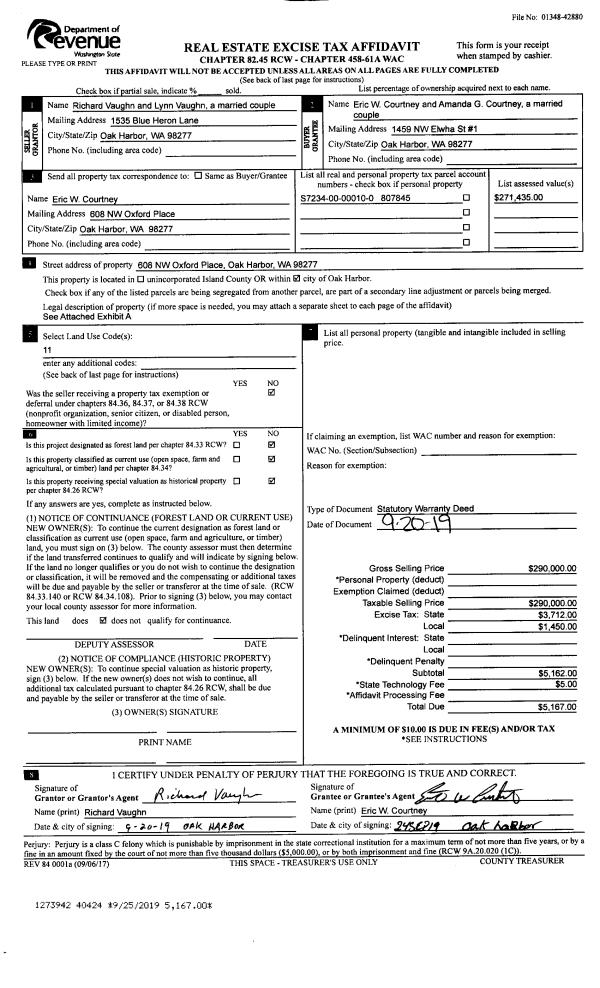
Property
Account |
| Property ID: | 68535 | Abbreviated Legal Description: | 22 - E/2 SW SE SW TGW EZ |
| Geographic ID: | R23032-033-1840 | Agent Code: | |
| Type: | Real | | |
| Tax Area: | 312 - APPRAISER-Cpvl Schl Dist, outside Cpvl, improved, greater than 1 acre | Land Use Code | 11 |
| Open Space: | N | DFL | N |
| Historic Property: | N | Remodel Property: | N |
| Multi-Family Redevelopment: | N | | |
| Township: | 30 | Section: | 32 |
| Range: | R2 |
Location |
| Address: | | Mapsco: | |
| Neighborhood: | Cycle 3 | Map ID: | 431 |
| Neighborhood CD: | 3 |
Owner |
| Name: | WINTER, ANGELA | Owner ID: | 304715 |
| Mailing Address: | 1434 11TH AVE SW OLYMPIA, WA 98502 | % Ownership: | 100.0000000000% |
| | | Exemptions: | |
Taxes and Assessment Details
Values
| (+) Improvement Homesite Value: | + | $0 | |
| (+) Improvement Non-Homesite Value: | + | $2,300 | |
| (+) Land Homesite Value: | + | $0 | |
| (+) Land Non-Homesite Value: | + | $210,000 | |
| (+) Curr Use (HS): | + | $0 | $0 |
| (+) Curr Use (NHS): | + | $0 | $0 |
| | | -------------------------- | |
| (=) Market Value: | = | $212,300 | |
| (–) Productivity Loss: | – | $0 | |
| | | -------------------------- | |
| (=) Subtotal: | = | $212,300 | |
| (+) Senior Appraised Value: | + | $0 | |
| (+) Non-Senior Appraised Value: | + | $212,300 | |
| | | -------------------------- | |
| (=) Total Appraised Value: | = | $212,300 | |
| (–) Senior Exemption Loss: | – | $0 | |
| (–) Exemption Loss: | – | $0 | |
| | | -------------------------- | |
| (=) Taxable Value: | = | $212,300 | |
Taxing Jurisdiction
| Owner: | WINTER, ANGELA | | |
| % Ownership: | 100.0000000000% | | |
| Total Value: | $212,300 | | |
| Tax Area: | 312 - APPRAISER-Cpvl Schl Dist, outside Cpvl, improved, greater than 1 acre |
| CF | Conservation Futures | 0.0316035091 | $212,300 | $212,300 | $6.71 | | |
| CEM2 | Cemetery #2 | 0.0095056933 | $212,300 | $212,300 | $2.02 | | |
| FIRE5 | Fire & Rescue Dist #5 C Whidbey GEN | 1.2008080668 | $212,300 | $212,300 | $254.93 | | |
| FIRE5BOND | Fire & Rescue Dist #5 C Whidbey BOND | 0.1400090713 | $212,300 | $212,300 | $29.72 | | |
| HOBOND | Hospital BOND | 0.1910887512 | $212,300 | $212,300 | $40.57 | | |
| HOGEN | Hospital GEN | 0.3902502903 | $212,300 | $212,300 | $82.85 | | |
| CE | County Current Expense | 0.3708482477 | $212,300 | $212,300 | $78.73 | | |
| CR | County Roads | 0.4584763726 | $212,300 | $212,300 | $97.33 | | |
| ISLANDEMS | Hospital GEN (EMS) | 0.5000000000 | $212,300 | $212,300 | $106.15 | | |
| LIB | Library Sno-Isle GEN | 0.3153421757 | $212,300 | $212,300 | $66.95 | | |
| LIBCAP | Library Sno-Isle BOND (Cap Fac Imp Area) | 0.0543427938 | $212,300 | $212,300 | $11.54 | | |
| POCOUP | Port of Coupeville GEN | 0.1093371703 | $212,300 | $212,300 | $23.21 | | |
| POCOUPIDD | Port of Coupeville IDD | 0.3409740022 | $212,300 | $212,300 | $72.39 | | |
| COUPSDTECH | School 204 CP (TECH) | 0.7545480007 | $212,300 | $212,300 | $160.19 | | |
| SCH204MO | School 204 Enrichment | 0.6716186034 | $212,300 | $212,300 | $142.58 | | |
| ST | State School | 1.3035497053 | $212,300 | $212,300 | $276.74 | | |
| ST2 | State School Part 2 | 0.8169543533 | $212,300 | $212,300 | $173.44 | | |
| | Total Tax Rate: | 7.6592568070 | | | | | |
| | | | | Taxes w/Current Exemptions: | $1,626.05 | | |
| | | | | Taxes w/o Exemptions: | $1,626.05 | | |
Improvement / Building
| Improvement #1: | MISC | State Code: | Y | 140.0 sqft | Value: | $2,300 |
| | Type | Description | Class CD | Sub Class CD | Year Built | Area |
| | UTY | STORAGE/UTILITY | 3 | 0 | 1900 | 140.0 |
| | UPS | UPPER STORY | 3 | 0 | 1900 | 140.0 |
| | OWP | OPEN WOOD PORCH W/STEPS | 3 | 0 | 1900 | 80.0 |
| | OWP | OPEN WOOD PORCH W/STEPS | 3 | 0 | 1900 | 100.0 |
Sketch
Property Image
Land
| 1 | 32 | AC (03.01-09.99) | 5.0000 | 0.00 | 0.00 | 0.00 | 1.00 | $210,000 | $0 |
Roll Value History
| 2026 | N/A | N/A | N/A | N/A | N/A |
| 2025 | $2,300 | $210,000 | $0 | $212,300 | $212,300 |
| 2024 | $2,300 | $200,000 | $0 | $202,300 | $202,300 |
| 2023 | $2,300 | $180,000 | $0 | $182,300 | $182,300 |
| 2022 | $2,300 | $170,000 | $0 | $172,300 | $172,300 |
| 2021 | $2,300 | $115,000 | $0 | $117,300 | $117,300 |
| 2020 | $2,300 | $90,000 | $0 | $92,300 | $92,300 |
| 2019 | $4,349 | $120,000 | $0 | $124,349 | $124,349 |
| 2018 | $4,349 | $25,000 | $0 | $29,349 | $29,349 |
| 2017 | $4,349 | $25,000 | $0 | $29,349 | $29,349 |
| 2016 | $4,349 | $25,000 | $0 | $29,349 | $29,349 |
| 2015 | $4,349 | $25,000 | $0 | $29,349 | $29,349 |
| 2014 | $4,349 | $35,000 | $0 | $39,349 | $39,349 |
| 2013 | $4,349 | $34,020 | $0 | $38,369 | $38,369 |
| 2012 | $4,349 | $34,020 | $0 | $38,369 | $38,369 |
| 2011 | $4,349 | $37,800 | $0 | $42,149 | $42,149 |
| 2010 | $5,609 | $37,800 | $0 | $43,409 | $43,409 |
| 2009 | $5,763 | $54,600 | $0 | $60,363 | $60,363 |
| 2008 | $5,750 | $42,167 | $0 | $47,917 | $47,917 |
| 2007 | $0 | $36,400 | $0 | $36,400 | $36,400 |
Deed and Sales History
| 1 | 08/21/2023 | QCD | Quit Claim Deed | WINTER, ANNE M | WINTER, ANGELA | | | $0.00 | 57697 | 4563789 |
| 2 | 09/24/2021 | QCD | Quit Claim Deed | WINTER, ANNE M | WINTER, ANGELA | | | $0.00 | 53452 | 4546548 |
| 3 | 10/01/1994 | WD | Warranty Deed | CRAWFORD, JOHN D | WINTER, ANNE M | | | $18,000.00 | 44223 | 94021813 |
| 4 | 09/01/1982 | TRUSTEED | Trustee's Deed | KOLODEJ, PAUL | CRAWFORD, JOHN D | | | $12,000.00 | 22165 | 400467 |
| 5 | 01/01/1900 | OTHER | Other - Misc. Documents | Unknown | KOLODEJ, PAUL | | | $0.00 | 0 | 0 |
Payout Agreement
| No payout information available.. |