Property
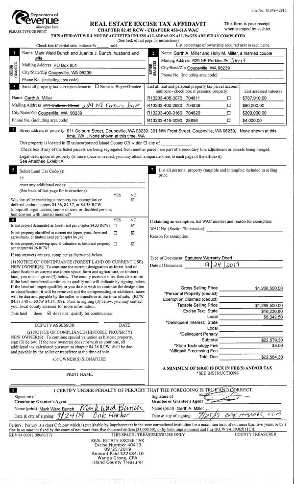
Account |
| Property ID: | 68553 | Abbreviated Legal Description: | 28 - E660' OF N/2 OF S/2 OF SW SW TGW EZ |
| Geographic ID: | R23032-050-1020 | Agent Code: | |
| Type: | Real | | |
| Tax Area: | 312 - APPRAISER-Cpvl Schl Dist, outside Cpvl, improved, greater than 1 acre | Land Use Code | 11 |
| Open Space: | N | DFL | N |
| Historic Property: | N | Remodel Property: | N |
| Multi-Family Redevelopment: | N | | |
| Township: | 30 | Section: | 32 |
| Range: | R2 |
Location |
| Address: | 464 BOYER LN FREELAND, WA 98249 | Mapsco: | |
| Neighborhood: | Cycle 3 | Map ID: | 431 |
| Neighborhood CD: | 3 |
Owner |
| Name: | BITTNER JTWROS, EDWIN | Owner ID: | 313828 |
| Mailing Address: | DAWN WEDDLE JTWROS 17619 116TH PL NE ARLINGTON, WA 98223 | % Ownership: | 100.0000000000% |
| | | Exemptions: | |
Taxes and Assessment Details
Values
| (+) Improvement Homesite Value: | + | $0 | |
| (+) Improvement Non-Homesite Value: | + | $291,916 | |
| (+) Land Homesite Value: | + | $0 | |
| (+) Land Non-Homesite Value: | + | $350,000 | |
| (+) Curr Use (HS): | + | $0 | $0 |
| (+) Curr Use (NHS): | + | $0 | $0 |
| | | -------------------------- | |
| (=) Market Value: | = | $641,916 | |
| (–) Productivity Loss: | – | $0 | |
| | | -------------------------- | |
| (=) Subtotal: | = | $641,916 | |
| (+) Senior Appraised Value: | + | $0 | |
| (+) Non-Senior Appraised Value: | + | $641,916 | |
| | | -------------------------- | |
| (=) Total Appraised Value: | = | $641,916 | |
| (–) Senior Exemption Loss: | – | $0 | |
| (–) Exemption Loss: | – | $0 | |
| | | -------------------------- | |
| (=) Taxable Value: | = | $641,916 | |
Taxing Jurisdiction
| Owner: | BITTNER JTWROS, EDWIN | | |
| % Ownership: | 100.0000000000% | | |
| Total Value: | $641,916 | | |
| Tax Area: | 312 - APPRAISER-Cpvl Schl Dist, outside Cpvl, improved, greater than 1 acre |
| CF | Conservation Futures | 0.0316035091 | $641,916 | $641,916 | $20.29 | | |
| CEM2 | Cemetery #2 | 0.0095056933 | $641,916 | $641,916 | $6.10 | | |
| FIRE5 | Fire & Rescue Dist #5 C Whidbey GEN | 1.2008080668 | $641,916 | $641,916 | $770.82 | | |
| FIRE5BOND | Fire & Rescue Dist #5 C Whidbey BOND | 0.1400090713 | $641,916 | $641,916 | $89.87 | | |
| HOBOND | Hospital BOND | 0.1910887512 | $641,916 | $641,916 | $122.66 | | |
| HOGEN | Hospital GEN | 0.3902502903 | $641,916 | $641,916 | $250.51 | | |
| CE | County Current Expense | 0.3708482477 | $641,916 | $641,916 | $238.05 | | |
| CR | County Roads | 0.4584763726 | $641,916 | $641,916 | $294.30 | | |
| ISLANDEMS | Hospital GEN (EMS) | 0.5000000000 | $641,916 | $641,916 | $320.96 | | |
| LIB | Library Sno-Isle GEN | 0.3153421757 | $641,916 | $641,916 | $202.42 | | |
| LIBCAP | Library Sno-Isle BOND (Cap Fac Imp Area) | 0.0543427938 | $641,916 | $641,916 | $34.88 | | |
| POCOUP | Port of Coupeville GEN | 0.1093371703 | $641,916 | $641,916 | $70.19 | | |
| POCOUPIDD | Port of Coupeville IDD | 0.3409740022 | $641,916 | $641,916 | $218.88 | | |
| COUPSDTECH | School 204 CP (TECH) | 0.7545480007 | $641,916 | $641,916 | $484.36 | | |
| SCH204MO | School 204 Enrichment | 0.6716186034 | $641,916 | $641,916 | $431.12 | | |
| ST | State School | 1.3035497053 | $641,916 | $641,916 | $836.77 | | |
| ST2 | State School Part 2 | 0.8169543533 | $641,916 | $641,916 | $524.42 | | |
| | Total Tax Rate: | 7.6592568070 | | | | | |
| | | | | Taxes w/Current Exemptions: | $4,916.60 | | |
| | | | | Taxes w/o Exemptions: | $4,916.60 | | |
Improvement / Building
| Improvement #1: | RESIDENTIAL | State Code: | Y | 1854.0 sqft | Value: | $291,916 |
| Bathrooms: | 2 | Bedrooms: | 2 | | Ceiling: | DRYWALL PAINTED | Exterior Wall/Cover: | PLY/HARDBOARD T-111 | | Floor Covering: | CARPET/VINYL 80-20 | Floor Structure: | WOOD W/SUBFLOOR | | Foundation: | CONCRETE | Heating: | WALL HEAT ELECTRIC | | Interior Finish: | DRYWALL PAINT | Plumbing Fixture Cnt: | 9 | | Roof Slope: | 6" IN 12" | Roof Structure/Cover: | CJ ASPHALT |
|
| | Type | Description | Class CD | Sub Class CD | Year Built | Area |
| | BAS | BASE/MAIN FLOOR | 3 | 0 | 1984 | 1182.0 |
| | UPS | UPPER STORY | 3 | 0 | 1984 | 512.0 |
| | BAW | BALCONY WOOD RAIL | 3 | 0 | 1984 | 64.0 |
| | OWP | OPEN WOOD PORCH W/STEPS | 3 | 0 | 1984 | 56.0 |
| | UTY | STORAGE/UTILITY | 3 | 0 | 1984 | 120.0 |
| | OWP | OPEN WOOD PORCH W/STEPS | 3 | 0 | 1984 | 56.0 |
| | OWP | OPEN WOOD PORCH W/STEPS | 3 | 0 | 1984 | 156.0 |
| | LOF | LOFT | 3 | 0 | 1984 | 160.0 |
| | UTY | STORAGE/UTILITY | 3 | 0 | 1984 | 650.0 |
| | UTY | STORAGE/UTILITY | 3 | 0 | 2019 | 1600.0 |
| | CPD | OPEN CARPORT DIRT FLOOR | 3 | 0 | 2019 | 480.0 |
Sketch
Property Image
Land
| 1 | 32 | AC (03.01-09.99) | 5.0000 | 0.00 | 0.00 | 0.00 | 1.00 | $350,000 | $0 |
Roll Value History
| 2026 | N/A | N/A | N/A | N/A | N/A |
| 2025 | $291,916 | $350,000 | $0 | $641,916 | $641,916 |
| 2024 | $295,967 | $340,000 | $0 | $635,967 | $635,967 |
| 2023 | $300,017 | $320,000 | $0 | $620,017 | $620,017 |
| 2022 | $275,646 | $260,000 | $0 | $535,646 | $535,646 |
| 2021 | $243,308 | $230,000 | $0 | $473,308 | $473,308 |
| 2020 | $237,701 | $180,000 | $0 | $417,701 | $417,701 |
| 2019 | $150,656 | $220,000 | $0 | $370,656 | $370,656 |
| 2018 | $113,273 | $170,000 | $0 | $283,273 | $283,273 |
| 2017 | $114,138 | $160,000 | $0 | $274,138 | $274,138 |
| 2016 | $115,867 | $120,000 | $0 | $235,867 | $235,867 |
| 2015 | $117,598 | $130,000 | $0 | $247,598 | $247,598 |
| 2014 | $119,326 | $125,000 | $0 | $244,326 | $244,326 |
| 2013 | $128,687 | $121,500 | $0 | $250,187 | $250,187 |
| 2012 | $130,442 | $121,500 | $0 | $251,942 | $251,942 |
| 2011 | $132,200 | $135,000 | $0 | $267,200 | $267,200 |
| 2010 | $138,837 | $135,000 | $0 | $273,837 | $273,837 |
| 2009 | $145,132 | $195,000 | $0 | $340,132 | $340,132 |
| 2008 | $145,132 | $150,000 | $0 | $295,132 | $295,132 |
| 2007 | $147,395 | $147,500 | $0 | $294,895 | $294,895 |
Deed and Sales History
| 1 | 08/26/2024 | PRD | Personal Representatives Deed | BITTNER, EDWIN JAMES | BITTNER JTWROS, EDWIN | | | $0.00 | 61221 | 4576920 |
| 2 | 06/26/2019 | OTHER | Other - Misc. Documents | BITTNER, EDWIN JAMES | BITTNER, EDWIN JAMES | | | | 88145 | |
| 3 | 08/25/1998 | WD | Warranty Deed | MARKOWITZ TRUSTEE, RUSS | BITTNER, EDWIN JAMES | | | $147,000.00 | 83412 | 98017778 |
| 4 | 07/20/1998 | QCD | Quit Claim Deed | SCOTT, BRIAN S | MARKOWITZ TRUSTEE, RUSS | | | $14,763.00 | 82800 | 98014552 |
| 5 | 06/29/1998 | TRUSTEED | Trustee's Deed | TREECE, DAVID | SCOTT, BRIAN S | | | $0.00 | 82598 | 98013412 |
| 6 | 01/01/1988 | DECREE | Divorce Decree/Legal Separation | TREECE, DAVID D | TREECE, DAVID | | | $0.00 | 81050 | 88004025 |
| 7 | 10/01/1980 | EXECUTORD | Executor Deed | WILKERSON, JOAN E | TREECE, DAVID D | | | $35,000.00 | 3558 | 375470 |
| 8 | 04/01/1979 | OTHER | Other - Misc. Documents | WI, | WILKERSON, JOAN E | | | $0.00 | 58562 | 0 |
| 9 | 11/01/1978 | OTHER | Other - Misc. Documents | BITTNER, EDWIN J | WI, | | | $0.00 | 0 | 3425450 |
| 10 | 01/01/1900 | OTHER | Other - Misc. Documents | Unknown | SCOTT, BRIAN S | | | $0.00 | 82598 | 98013412 |
| 11 | 01/01/1900 | OTHER | Other - Misc. Documents | SCOTT, BRIAN S | MARKOWITZ, RUSS T | | | $0.00 | 82800 | 98014552 |
| 12 | 01/01/1900 | OTHER | Other - Misc. Documents | MARKOWITZ, RUSS T | BITTNER, EDWIN J | | | $0.00 | 83412 | 98017778 |
Payout Agreement
| No payout information available.. |