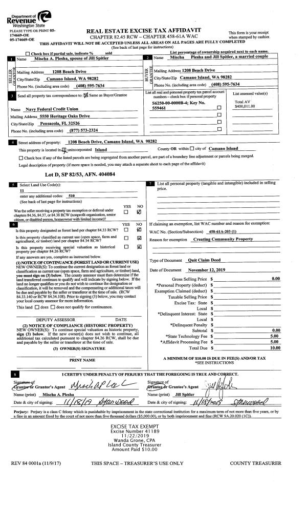
Property
Account |
| Property ID: | 685663 | Abbreviated Legal Description: | PT GL 4: BG PT 1320'W OF NE CR GL 4 S45*E670'TPB S45*E 125' S76*W TO ML WLY ALG SD ML TP S76*W OF TPB N76*E TO TPB TGW: BG PT 1320'W OF NECR GL 4 S45*E595'TPB S45*E75' S76*W TO ML NWLY ALG ML TP S76*W OF TPB N76*E TO TPB AMEND EZ AF#92021689 FR 209-43 |
| Geographic ID: | R22906-212-4370 | Agent Code: | |
| Type: | Real | | |
| Tax Area: | 782 - APPRAISER-S Whid Schl Dist, Special District, improved, greater than 1 acre | Land Use Code | 11 |
| Open Space: | N | DFL | N |
| Historic Property: | N | Remodel Property: | N |
| Multi-Family Redevelopment: | N | | |
| Township: | 29 | Section: | 06 |
| Range: | R2 |
Location |
| Address: | 5036 SCURLOCK RD FREELAND, WA 98249 | Mapsco: | |
| Neighborhood: | Cycle 3 | Map ID: | 299 |
| Neighborhood CD: | 3 |
Owner |
| Name: | CHAO, PHOEBE | Owner ID: | 293036 |
| Mailing Address: | BUCK WOOLLEY 5036 SCURLOCK RD FREELAND, WA 98249 | % Ownership: | 100.0000000000% |
| | | Exemptions: | |
Taxes and Assessment Details
Values
| (+) Improvement Homesite Value: | + | $0 | |
| (+) Improvement Non-Homesite Value: | + | $389,032 | |
| (+) Land Homesite Value: | + | $0 | |
| (+) Land Non-Homesite Value: | + | $701,200 | |
| (+) Curr Use (HS): | + | $0 | $0 |
| (+) Curr Use (NHS): | + | $0 | $0 |
| | | -------------------------- | |
| (=) Market Value: | = | $1,090,232 | |
| (–) Productivity Loss: | – | $0 | |
| | | -------------------------- | |
| (=) Subtotal: | = | $1,090,232 | |
| (+) Senior Appraised Value: | + | $0 | |
| (+) Non-Senior Appraised Value: | + | $1,090,232 | |
| | | -------------------------- | |
| (=) Total Appraised Value: | = | $1,090,232 | |
| (–) Senior Exemption Loss: | – | $0 | |
| (–) Exemption Loss: | – | $0 | |
| | | -------------------------- | |
| (=) Taxable Value: | = | $1,090,232 | |
Taxing Jurisdiction
| Owner: | CHAO, PHOEBE | | |
| % Ownership: | 100.0000000000% | | |
| Total Value: | $1,090,232 | | |
| Tax Area: | 782 - APPRAISER-S Whid Schl Dist, Special District, improved, greater than 1 acre |
| CF | Conservation Futures | 0.0316035091 | $1,090,232 | $1,090,232 | $34.46 | | |
| FIRE3 | Fire & Rescue Dist #3 S Whidbey GEN | 1.2004855531 | $1,090,232 | $1,090,232 | $1,308.81 | | |
| HOBOND | Hospital BOND | 0.1910887512 | $1,090,232 | $1,090,232 | $208.33 | | |
| HOGEN | Hospital GEN | 0.3902502903 | $1,090,232 | $1,090,232 | $425.46 | | |
| CE | County Current Expense | 0.3708482477 | $1,090,232 | $1,090,232 | $404.31 | | |
| CR | County Roads | 0.4584763726 | $1,090,232 | $1,090,232 | $499.85 | | |
| ISLANDEMS | Hospital GEN (EMS) | 0.5000000000 | $1,090,232 | $1,090,232 | $545.12 | | |
| LIB | Library Sno-Isle GEN | 0.3153421757 | $1,090,232 | $1,090,232 | $343.80 | | |
| PORTWHID | Port of S Whidbey GEN | 0.1094540357 | $1,090,232 | $1,090,232 | $119.33 | | |
| SCH206BOND | School 206 BOND | 0.3161759235 | $1,090,232 | $1,090,232 | $344.71 | | |
| SCH206MO | School 206 Enrichment | 0.4547169547 | $1,090,232 | $1,090,232 | $495.75 | | |
| ST | State School | 1.3035497053 | $1,090,232 | $1,090,232 | $1,421.17 | | |
| ST2 | State School Part 2 | 0.8169543533 | $1,090,232 | $1,090,232 | $890.67 | | |
| SWHIDPRBD | P & R S Whidbey BOND | 0.0152817568 | $1,090,232 | $1,090,232 | $16.66 | | |
| SWHIDPRBD2 | P & R S Whidbey BOND2 | 0.0138911264 | $1,090,232 | $1,090,232 | $15.14 | | |
| SWHIDPRMT | P & R S Whidbey GEN | 0.2053334452 | $1,090,232 | $1,090,232 | $223.86 | | |
| | Total Tax Rate: | 6.6934522006 | | | | | |
| | | | | Taxes w/Current Exemptions: | $7,297.43 | | |
| | | | | Taxes w/o Exemptions: | $7,297.43 | | |
Improvement / Building
| Improvement #1: | RESIDENTIAL | State Code: | Y | 1980.0 sqft | Value: | $389,032 |
| Bathrooms: | 2 | Bedrooms: | 2 | | Ceiling: | TONGUE & GROOVE | Exterior Wall/Cover: | WOOD SIDING | | Floor Covering: | TILE CERAMIC | Floor Structure: | WOOD W/SUBFLOOR | | Foundation: | CONCRETE | Heating: | FHA OIL | | Interior Finish: | DRYWALL PAINT | Plumbing Fixture Cnt: | 9 | | Roof Slope: | 3" IN 12" | Roof Structure/Cover: | BEAM BUILT-UP ROCK |
|
| | Type | Description | Class CD | Sub Class CD | Year Built | Area |
| | BAS | BASE/MAIN FLOOR | 4 | 0 | 1967 | 1656.0 |
| | UPS | UPPER STORY | 4 | 0 | 1967 | 324.0 |
| | OWP | OPEN WOOD PORCH W/STEPS | 4 | 0 | 1967 | 144.0 |
| | OWP | OPEN WOOD PORCH W/STEPS | 4 | 0 | 1967 | 486.0 |
| | OWC | OPEN WOOD PORCH W/STEPS/ROOF/C | 4 | 0 | 1967 | 48.0 |
| | CPD | OPEN CARPORT DIRT FLOOR | 4 | 0 | 1967 | 896.0 |
Sketch
Property Image
Land
| 1 | HB | HIGH BLUFF | 1.1900 | 51836.40 | 156.00 | 0.00 | 1.00 | $701,200 | $0 |
Roll Value History
| 2026 | N/A | N/A | N/A | N/A | N/A |
| 2025 | $389,032 | $701,200 | $0 | $1,090,232 | $1,090,232 |
| 2024 | $394,202 | $661,500 | $0 | $1,055,702 | $1,055,702 |
| 2023 | $399,372 | $630,000 | $0 | $1,029,372 | $1,029,372 |
| 2022 | $366,320 | $600,000 | $0 | $966,320 | $966,320 |
| 2021 | $322,618 | $500,000 | $0 | $822,618 | $822,618 |
| 2020 | $315,220 | $500,000 | $0 | $815,220 | $815,220 |
| 2019 | $233,067 | $600,000 | $0 | $833,067 | $833,067 |
| 2018 | $233,771 | $500,000 | $0 | $733,771 | $733,771 |
| 2017 | $235,183 | $500,000 | $0 | $735,183 | $735,183 |
| 2016 | $238,006 | $500,000 | $0 | $738,006 | $738,006 |
| 2015 | $212,604 | $500,000 | $0 | $712,604 | $712,604 |
| 2014 | $215,427 | $500,000 | $0 | $715,427 | $715,427 |
| 2013 | $218,250 | $432,354 | $0 | $650,604 | $650,604 |
| 2012 | $221,072 | $432,354 | $0 | $653,426 | $653,426 |
| 2011 | $223,894 | $432,354 | $0 | $656,248 | $656,248 |
| 2010 | $236,075 | $432,354 | $0 | $668,429 | $668,429 |
| 2009 | $246,200 | $576,473 | $0 | $822,673 | $822,673 |
| 2008 | $249,352 | $576,473 | $0 | $825,825 | $825,825 |
| 2007 | $176,000 | $364,856 | $0 | $540,856 | $540,856 |
Deed and Sales History
| 1 | 12/20/2019 | WD | Warranty Deed | CULVER, NORMAN C | CHAO, PHOEBE | | | $820,000.00 | 41627 | 4478298 |
| 2 | 10/13/2015 | ESTSEPPROP | Establish Separate Property | CULVER, NORMAN C | CULVER, NORMAN C | | | $0.00 | 21782 | 4387866 |
| 3 | 10/13/2015 | WD | Warranty Deed | TUINHOUT JTWROS, GLORIA G | CULVER, NORMAN C | | | $750,000.00 | 21781 | 4387865 |
| 4 | 07/11/2007 | QCD | Quit Claim Deed | TUINHOUT, GLORIA G | TUINHOUT JTWROS, GLORIA G | | | $0.00 | 72388 | 4207027 |
| 5 | 05/04/2005 | WD | Warranty Deed | MATTHEWS, MARTIN | TUINHOUT, GLORIA G | | | $555,000.00 | 52034 | 4133703 |
| 6 | 07/01/1993 | OTHER | Other - Misc. Documents | MATTHEWS, MARTIN | MATTHEWS, MARTIN | | | $0.00 | 65460 | 93013342 |
| 7 | 01/01/1900 | OTHER | Other - Misc. Documents | Unknown | MATTHEWS, MARTIN | | | $0.00 | 52212 | 85008668 |
Payout Agreement
| No payout information available.. |