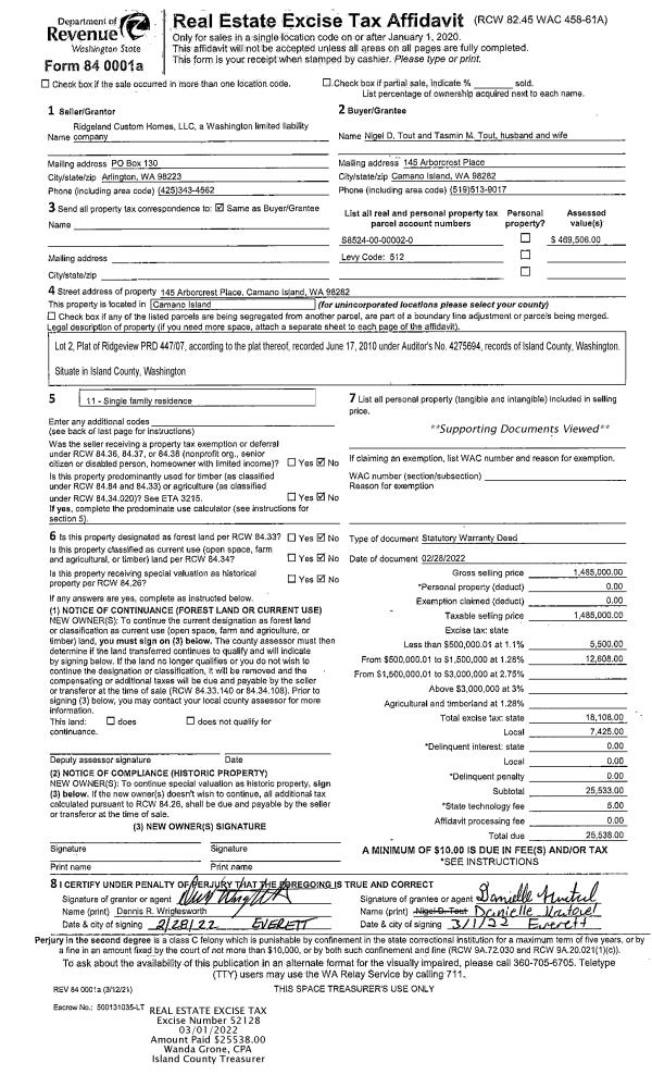
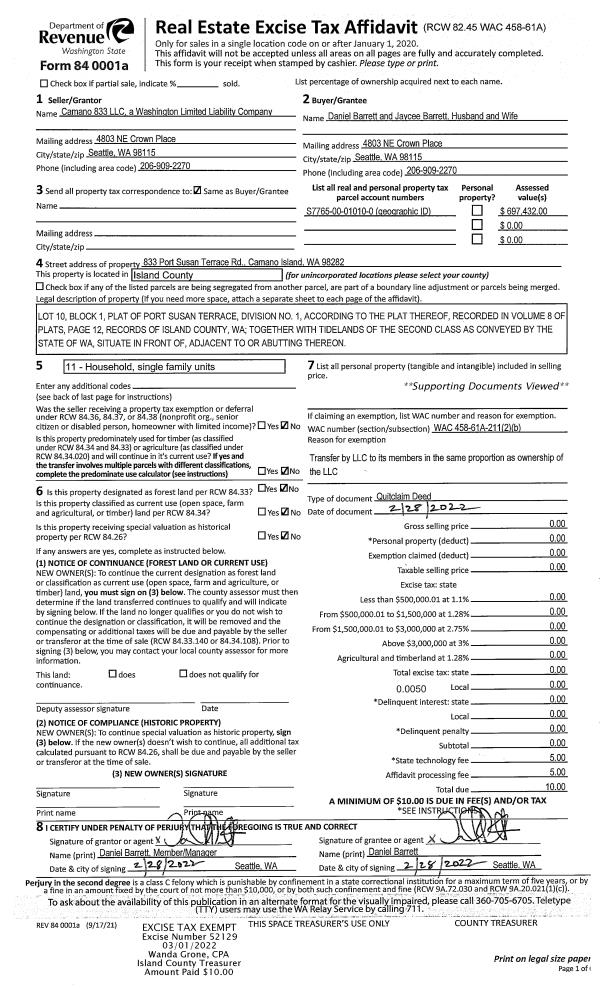
Property
Account |
| Property ID: | 686243 | Abbreviated Legal Description: | PT N400' OF GL 1 LY E OF BAYVIEW RD EX E864' EX N30' ALSO EX: BG NECR GL 1 N87*W 865.44' S01*E30.05'TPB S01*E370.62' N87*W179.19' N03*E370.09'TP SLN QUIGLEY RD S87*E149.31'TPB FR 485-1250 EX PT TO IS CO AF# 4128961 |
| Geographic ID: | R32908-485-1170 | Agent Code: | |
| Type: | Real | | |
| Tax Area: | 712 - APPRAISER-S Whid Schl Dist, outside Langley, improved, greater than 1 acre | Land Use Code | 11 |
| Open Space: | N | DFL | N |
| Historic Property: | N | Remodel Property: | N |
| Multi-Family Redevelopment: | N | | |
| Township: | 29 | Section: | 08 |
| Range: | R3 |
Location |
| Address: | 5207 BAYVIEW RD LANGLEY, WA 98260 | Mapsco: | |
| Neighborhood: | Cycle 4 | Map ID: | 748 |
| Neighborhood CD: | 4 |
Owner |
| Name: | DEMARTINI, SUSAN | Owner ID: | 315962 |
| Mailing Address: | 5207 BAY VIEW LANGLEY, WA 98260 | % Ownership: | 100.0000000000% |
| | | Exemptions: | |
Taxes and Assessment Details
Values
| (+) Improvement Homesite Value: | + | $0 | |
| (+) Improvement Non-Homesite Value: | + | $476,230 | |
| (+) Land Homesite Value: | + | $0 | |
| (+) Land Non-Homesite Value: | + | $290,000 | |
| (+) Curr Use (HS): | + | $0 | $0 |
| (+) Curr Use (NHS): | + | $0 | $0 |
| | | -------------------------- | |
| (=) Market Value: | = | $766,230 | |
| (–) Productivity Loss: | – | $0 | |
| | | -------------------------- | |
| (=) Subtotal: | = | $766,230 | |
| (+) Senior Appraised Value: | + | $0 | |
| (+) Non-Senior Appraised Value: | + | $766,230 | |
| | | -------------------------- | |
| (=) Total Appraised Value: | = | $766,230 | |
| (–) Senior Exemption Loss: | – | $0 | |
| (–) Exemption Loss: | – | $0 | |
| | | -------------------------- | |
| (=) Taxable Value: | = | $766,230 | |
Taxing Jurisdiction
| Owner: | DEMARTINI, SUSAN | | |
| % Ownership: | 100.0000000000% | | |
| Total Value: | $766,230 | | |
| Tax Area: | 712 - APPRAISER-S Whid Schl Dist, outside Langley, improved, greater than 1 acre |
| CF | Conservation Futures | 0.0316035091 | $766,230 | $766,230 | $24.22 | | |
| FIRE3 | Fire & Rescue Dist #3 S Whidbey GEN | 1.2004855531 | $766,230 | $766,230 | $919.85 | | |
| HOBOND | Hospital BOND | 0.1910887512 | $766,230 | $766,230 | $146.42 | | |
| HOGEN | Hospital GEN | 0.3902502903 | $766,230 | $766,230 | $299.02 | | |
| CE | County Current Expense | 0.3708482477 | $766,230 | $766,230 | $284.16 | | |
| CR | County Roads | 0.4584763726 | $766,230 | $766,230 | $351.30 | | |
| ISLANDEMS | Hospital GEN (EMS) | 0.5000000000 | $766,230 | $766,230 | $383.12 | | |
| LIB | Library Sno-Isle GEN | 0.3153421757 | $766,230 | $766,230 | $241.62 | | |
| PORTWHID | Port of S Whidbey GEN | 0.1094540357 | $766,230 | $766,230 | $83.87 | | |
| SCH206BOND | School 206 BOND | 0.3161759235 | $766,230 | $766,230 | $242.26 | | |
| SCH206MO | School 206 Enrichment | 0.4547169547 | $766,230 | $766,230 | $348.42 | | |
| ST | State School | 1.3035497053 | $766,230 | $766,230 | $998.82 | | |
| ST2 | State School Part 2 | 0.8169543533 | $766,230 | $766,230 | $625.97 | | |
| SWHIDPRBD | P & R S Whidbey BOND | 0.0152817568 | $766,230 | $766,230 | $11.71 | | |
| SWHIDPRBD2 | P & R S Whidbey BOND2 | 0.0138911264 | $766,230 | $766,230 | $10.64 | | |
| SWHIDPRMT | P & R S Whidbey GEN | 0.2053334452 | $766,230 | $766,230 | $157.33 | | |
| | Total Tax Rate: | 6.6934522006 | | | | | |
| | | | | Taxes w/Current Exemptions: | $5,128.73 | | |
| | | | | Taxes w/o Exemptions: | $5,128.73 | | |
Improvement / Building
| Improvement #1: | RESIDENTIAL | State Code: | Y | 1420.3 sqft | Value: | $242,044 |
| Bathrooms: | 2 | Bedrooms: | 3 | | Ceiling: | DRYWALL PAINTED | Exterior Wall/Cover: | WOOD SIDING | | Floor Covering: | CARPET/VINYL 60-40 | Floor Structure: | WOOD W/SUBFLOOR | | Foundation: | CONCRETE | Heating: | FHA GAS | | Interior Finish: | DRYWALL PAINT | Plumbing Fixture Cnt: | 10 | | Roof Slope: | 8" IN 12" | Roof Structure/Cover: | CJ ASPHALT |
|
| | Type | Description | Class CD | Sub Class CD | Year Built | Area |
| | BAS | BASE/MAIN FLOOR | 3 | 0 | 1927 | 1420.3 |
| | UB6 | BASEMENT UNFINISHED 6" | 3 | 0 | 1927 | 690.0 |
| | OP2 | OPEN PORCH W/STEPS | 3 | 0 | 1927 | 48.0 |
| | OP3 | OPEN PORCH W/ROOF | 3 | 0 | 1927 | 113.9 |
| | OWP | OPEN WOOD PORCH W/STEPS | 3 | 0 | 1927 | 192.0 |
| | OWP | OPEN WOOD PORCH W/STEPS | 3 | 0 | 1927 | 299.7 |
| | OWC | OPEN WOOD PORCH W/STEPS/ROOF/C | 3 | 0 | 1927 | 30.0 |
| | ENP | ENCLOSED PORCH | 3 | 0 | 1927 | 82.4 |
| Improvement #2: | RESIDENTIAL | State Code: | Y | 900.0 sqft | Value: | $234,186 |
| Bathrooms: | 1 | Bedrooms: | 0 | | Ceiling: | DRYWALL PAINTED | Exterior Wall/Cover: | SHINGLE | | Floor Covering: | VINYL 100% | Floor Structure: | WOOD W/SUBFLOOR | | Foundation: | SLAB/CONCRETE | Heating: | WALL HEAT ELECTRIC | | Interior Finish: | DRYWALL PAINT | Plumbing Fixture Cnt: | 3 | | Roof Slope: | 8" IN 12" | Roof Structure/Cover: | CJ ALUMINIUM HEAVY |
|
| | Type | Description | Class CD | Sub Class CD | Year Built | Area |
| | BAS | BASE/MAIN FLOOR | 3 | 0 | 2010 | 900.0 |
| | BIG | BUILT IN GARAGE | 3 | 0 | 2010 | 900.0 |
| | ENP | ENCLOSED PORCH | 3 | 0 | 2010 | 480.0 |
Sketch
Property Image
Land
| 1 | 17 | AC (01.01-02.00) | 0.0000 | 0.00 | 0.00 | 0.00 | 1.00 | $290,000 | $0 |
Roll Value History
| 2026 | N/A | N/A | N/A | N/A | N/A |
| 2025 | $476,230 | $290,000 | $0 | $766,230 | $766,230 |
| 2024 | $482,379 | $280,000 | $0 | $762,379 | $762,379 |
| 2023 | $487,864 | $260,000 | $0 | $747,864 | $747,864 |
| 2022 | $446,848 | $250,000 | $0 | $696,848 | $696,848 |
| 2021 | $392,778 | $200,000 | $0 | $592,778 | $592,778 |
| 2020 | $378,177 | $200,000 | $0 | $578,177 | $578,177 |
| 2019 | $273,603 | $230,000 | $0 | $503,603 | $503,603 |
| 2018 | $274,436 | $170,000 | $0 | $444,436 | $444,436 |
| 2017 | $266,762 | $150,000 | $0 | $416,762 | $416,762 |
| 2016 | $269,989 | $135,000 | $0 | $404,989 | $404,989 |
| 2015 | $273,214 | $135,000 | $0 | $408,214 | $408,214 |
| 2014 | $280,402 | $110,500 | $0 | $390,902 | $390,902 |
| 2013 | $283,835 | $110,500 | $0 | $394,335 | $394,335 |
| 2012 | $287,263 | $110,500 | $0 | $397,763 | $397,763 |
| 2011 | $232,309 | $130,000 | $0 | $362,309 | $362,309 |
| 2010 | $191,987 | $130,000 | $0 | $321,987 | $321,987 |
| 2009 | $197,312 | $155,000 | $0 | $352,312 | $352,312 |
| 2008 | $124,359 | $160,000 | $0 | $284,359 | $284,359 |
| 2007 | $111,285 | $160,000 | $0 | $271,285 | $271,285 |
Deed and Sales History
| 1 | 03/27/2025 | QCD | Quit Claim Deed | BUTTERS, FRIDA | DEMARTINI, SUSAN | | | $0.00 | 62961 | 4583806 |
| 2 | 03/28/2025 | QCD | Quit Claim Deed | HARRETT, CHRISTIAN | DEMARTINI, SUSAN | | | $0.00 | 62960 | 4583805 |
| 3 | 10/26/2021 | QCD | Quit Claim Deed | PLATZ, DEVIN | BUTTERS-HARRETT, SUSAN | | | $0.00 | 50669 | 4532598 |
| 4 | 10/26/2021 | WD | Warranty Deed | IZETT, CRAIG D | BUTTERS-HARRETT, SUSAN | | | $599,000.00 | 50668 | 4532597 |
| 5 | 10/26/2005 | QCD | Quit Claim Deed | IZETT, CRAIG D | IZETT, CRAIG D | | | $5,296.00 | 70692 | 4128961 |
| 6 | 04/01/1997 | WD | Warranty Deed | BOHNKE, WILLIS W | IZETT, CRAIG D | | | $140,000.00 | 71331 | 97006028 |
| 7 | 07/01/1993 | OTHER | Other - Misc. Documents | BOHNKE, WILLIS W | BOHNKE, WILLIS W | | | $0.00 | 65498 | 93014382 |
| 8 | 01/01/1900 | OTHER | Other - Misc. Documents | Unknown | BOHNKE, WILLIS W | | | $0.00 | 0 | 0 |
Payout Agreement
| No payout information available.. |