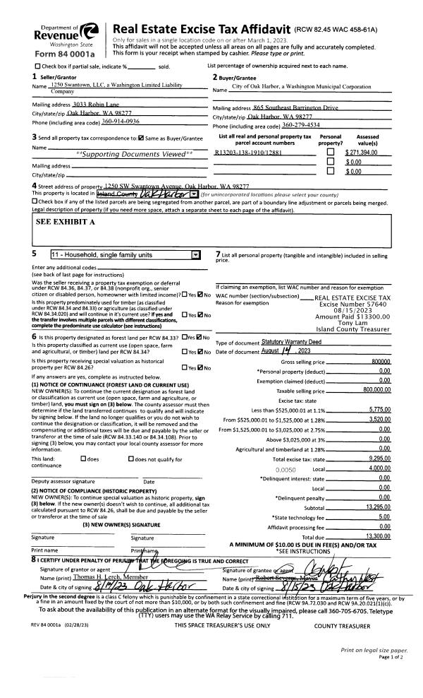
Property
Account |
| Property ID: | 686458 | Abbreviated Legal Description: | LOT 1 SP 14-92.33218.095-4420 V2 SP P412 AF#93015095 |
| Geographic ID: | R33218-050-4210 | Agent Code: | |
| Type: | Real | | |
| Tax Area: | 512 - APPRAISER-Stan/Cam Schl Dist, improved, greater than 1 acre | Land Use Code | 11 |
| Open Space: | N | DFL | N |
| Historic Property: | N | Remodel Property: | N |
| Multi-Family Redevelopment: | N | | |
| Township: | 32 | Section: | 18 |
| Range: | R3 |
Location |
| Address: | 1250 OLSEN RD CAMANO ISLAND, WA 98282 | Mapsco: | |
| Neighborhood: | North Camano | Map ID: | 958 |
| Neighborhood CD: | 06-C |
Owner |
| Name: | HAUGEN TTEE, MARY MARGARET | Owner ID: | 305221 |
| Mailing Address: | 1250 OLSEN RD CAMANO ISLAND, WA 98282 | % Ownership: | 100.0000000000% |
| | | Exemptions: | |
Taxes and Assessment Details
Values
| (+) Improvement Homesite Value: | + | $0 | |
| (+) Improvement Non-Homesite Value: | + | $442,692 | |
| (+) Land Homesite Value: | + | $0 | |
| (+) Land Non-Homesite Value: | + | $350,000 | |
| (+) Curr Use (HS): | + | $0 | $0 |
| (+) Curr Use (NHS): | + | $0 | $0 |
| | | -------------------------- | |
| (=) Market Value: | = | $792,692 | |
| (–) Productivity Loss: | – | $0 | |
| | | -------------------------- | |
| (=) Subtotal: | = | $792,692 | |
| (+) Senior Appraised Value: | + | $0 | |
| (+) Non-Senior Appraised Value: | + | $792,692 | |
| | | -------------------------- | |
| (=) Total Appraised Value: | = | $792,692 | |
| (–) Senior Exemption Loss: | – | $0 | |
| (–) Exemption Loss: | – | $0 | |
| | | -------------------------- | |
| (=) Taxable Value: | = | $792,692 | |
Taxing Jurisdiction
| Owner: | HAUGEN TTEE, MARY MARGARET | | |
| % Ownership: | 100.0000000000% | | |
| Total Value: | $792,692 | | |
| Tax Area: | 512 - APPRAISER-Stan/Cam Schl Dist, improved, greater than 1 acre |
| CF | Conservation Futures | 0.0316035091 | $792,692 | $792,692 | $25.05 | | |
| EMS1 | Fire & Rescue Dist #1 Camano GEN (EMS) | 0.3677864386 | $792,692 | $792,692 | $291.54 | | |
| FIRE1 | Fire & Rescue Dist #1 Camano GEN | 1.2502910536 | $792,692 | $792,692 | $991.10 | | |
| FIRE1BOND | Fire & Rescue Dist #1 Camano BOND | 0.1570001679 | $792,692 | $792,692 | $124.45 | | |
| CE | County Current Expense | 0.3708482477 | $792,692 | $792,692 | $293.97 | | |
| CR | County Roads | 0.4584763726 | $792,692 | $792,692 | $363.43 | | |
| LCIB | Library Sno-Isle BOND (Camano Island) | 0.0396325772 | $792,692 | $792,692 | $31.42 | | |
| LIB | Library Sno-Isle GEN | 0.3153421757 | $792,692 | $792,692 | $249.97 | | |
| SCH205_401 | School 205-401 Enrichment | 1.2698420524 | $792,692 | $792,692 | $1,006.59 | | |
| SCH205BOND | School 205-401 BOND | 0.9396497583 | $792,692 | $792,692 | $744.85 | | |
| ST | State School | 1.3035497053 | $792,692 | $792,692 | $1,033.31 | | |
| ST2 | State School Part 2 | 0.8169543533 | $792,692 | $792,692 | $647.59 | | |
| | Total Tax Rate: | 7.3209764117 | | | | | |
| | | | | Taxes w/Current Exemptions: | $5,803.27 | | |
| | | | | Taxes w/o Exemptions: | $5,803.27 | | |
Improvement / Building
| Improvement #1: | RESIDENTIAL | State Code: | Y | 2364.0 sqft | Value: | $442,692 |
| Bathrooms: | 2 | Bedrooms: | 2 | | Ceiling: | DRYWALL PAINTED | Cooling: | HEAT PUMP/CONV/V | | Exterior Wall/Cover: | WOOD SIDING | Floor Covering: | CERAMIC TILE/CPT 40-60 | | Floor Structure: | WOOD W/SUBFLOOR | Foundation: | CONCRETE | | Interior Finish: | DRYWALL PAINT | Plumbing Fixture Cnt: | 11 | | Roof Slope: | 4" IN 12" | Roof Structure/Cover: | BEAM ASPHALT |
|
| | Type | Description | Class CD | Sub Class CD | Year Built | Area |
| | BAS | BASE/MAIN FLOOR | 3 | 0 | 1965 | 2364.0 |
| | OP4 | OPEN PORCH W/CEILING-ROOF | 3 | 0 | 1965 | 40.0 |
| | OP4 | OPEN PORCH W/CEILING-ROOF | 3 | 0 | 1965 | 63.0 |
| | OWP | OPEN WOOD PORCH W/STEPS | 3 | 0 | 1965 | 30.0 |
| | OWP | OPEN WOOD PORCH W/STEPS | 3 | 0 | 1965 | 240.0 |
| | DGR | DETACHED GARAGE | 3 | 0 | 1965 | 720.0 |
| | DGR | DETACHED GARAGE | 3 | 0 | 1965 | 672.0 |
Sketch
Property Image
Land
| 1 | 18 | AC (02.01-03.00) | 0.0000 | 0.00 | 0.00 | 0.00 | 1.00 | $350,000 | $0 |
Roll Value History
| 2026 | N/A | N/A | N/A | N/A | N/A |
| 2025 | $442,692 | $350,000 | $0 | $792,692 | $792,692 |
| 2024 | $448,141 | $340,000 | $0 | $788,141 | $788,141 |
| 2023 | $453,590 | $330,000 | $0 | $783,590 | $783,590 |
| 2022 | $405,799 | $320,000 | $0 | $725,799 | $725,799 |
| 2021 | $357,154 | $230,000 | $0 | $587,154 | $587,154 |
| 2020 | $348,720 | $200,000 | $0 | $548,720 | $548,720 |
| 2019 | $270,718 | $220,000 | $0 | $490,718 | $490,718 |
| 2018 | $271,512 | $210,000 | $0 | $481,512 | $481,512 |
| 2017 | $273,099 | $150,000 | $0 | $423,099 | $423,099 |
| 2016 | $258,026 | $140,000 | $0 | $398,026 | $398,026 |
| 2015 | $261,281 | $100,000 | $0 | $361,281 | $361,281 |
| 2014 | $264,535 | $100,000 | $0 | $364,535 | $364,535 |
| 2013 | $267,788 | $120,000 | $0 | $387,788 | $387,788 |
| 2012 | $271,041 | $120,000 | $0 | $391,041 | $391,041 |
| 2011 | $274,295 | $150,000 | $0 | $424,295 | $424,295 |
| 2010 | $291,280 | $150,000 | $0 | $441,280 | $441,280 |
| 2009 | $303,125 | $175,000 | $0 | $478,125 | $478,125 |
| 2008 | $315,855 | $175,000 | $0 | $490,855 | $490,855 |
| 2007 | $320,492 | $175,000 | $0 | $495,492 | $495,492 |
Deed and Sales History
| 1 | 07/14/2022 | QCD | Quit Claim Deed | HAUGEN, MARY MARGARET | HAUGEN TTEE, MARY MARGARET | | | $0.00 | 53962 | 4548924 |
| 2 | 02/10/2022 | PRD | Personal Representatives Deed | ESTATE OF BASIL L BRADLEY | HAUGEN, MARY MARGARET | | | $0.00 | 52085 | 4540465 |
| 3 | 08/27/2000 | WD | Warranty Deed | BADLEY, BASIL L | BADLEY, BASIL L | | | $0.00 | 23525 | 4395830 |
| 4 | 08/27/2000 | WD | Warranty Deed | BADLEY, BASIL L | BADLEY, BASIL L | | | $0.00 | 23524 | 4395829 |
| 5 | 05/05/2015 | REC | Real Estate Contract | SHROYER, DONNA F | BADLEY, BASIL L | | | $400,000.00 | 19500 | 4378071 |
| 6 | 05/18/2015 | CPADC | Comm Prop Agmnt & Death Cert | SHROYER, DAVID | SHROYER, DONNA F | | | | 86123 | |
| 7 | 09/01/1993 | WD | Warranty Deed | SHROYER, DONNA F | SHROYER, DAVID & | | | $44,600.00 | 33523 | 93018305 |
| 8 | 08/01/1993 | WD | Warranty Deed | OLSEN, HATTIE R | SHROYER, DONNA F | | | $0.00 | 33522 | 93018304 |
| 9 | 01/01/1900 | OTHER | Other - Misc. Documents | Unknown | OLSEN, HATTIE R | | | $0.00 | 64495 | 91015393 |
Payout Agreement
| No payout information available.. |