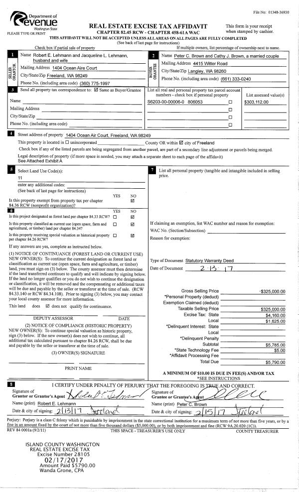
Property
Account |
| Property ID: | 686822 | Abbreviated Legal Description: | LOT B SP 2-91.32928.060-3050 V2 SP P415 AF#93015875 TGW & SUB EZ AF#94026144 |
| Geographic ID: | R32928-057-2900 | Agent Code: | |
| Type: | Real | | |
| Tax Area: | 712 - APPRAISER-S Whid Schl Dist, outside Langley, improved, greater than 1 acre | Land Use Code | 11 |
| Open Space: | N | DFL | N |
| Historic Property: | N | Remodel Property: | N |
| Multi-Family Redevelopment: | N | | |
| Township: | 29 | Section: | 28 |
| Range: | R3 |
Location |
| Address: | 3450 DOC BRENNAN LN CLINTON, WA 98236 | Mapsco: | |
| Neighborhood: | Cycle 4 | Map ID: | 825 |
| Neighborhood CD: | 4 |
Owner |
| Name: | DEPOSIT, EVAN J | Owner ID: | 308293 |
| Mailing Address: | ANN E DEPOSIT PO BOX 489 FREELAND, WA 98249 | % Ownership: | 100.0000000000% |
| | | Exemptions: | |
Taxes and Assessment Details
Values
| (+) Improvement Homesite Value: | + | $0 | |
| (+) Improvement Non-Homesite Value: | + | $443,842 | |
| (+) Land Homesite Value: | + | $0 | |
| (+) Land Non-Homesite Value: | + | $370,000 | |
| (+) Curr Use (HS): | + | $0 | $0 |
| (+) Curr Use (NHS): | + | $0 | $0 |
| | | -------------------------- | |
| (=) Market Value: | = | $813,842 | |
| (–) Productivity Loss: | – | $0 | |
| | | -------------------------- | |
| (=) Subtotal: | = | $813,842 | |
| (+) Senior Appraised Value: | + | $0 | |
| (+) Non-Senior Appraised Value: | + | $813,842 | |
| | | -------------------------- | |
| (=) Total Appraised Value: | = | $813,842 | |
| (–) Senior Exemption Loss: | – | $0 | |
| (–) Exemption Loss: | – | $0 | |
| | | -------------------------- | |
| (=) Taxable Value: | = | $813,842 | |
Taxing Jurisdiction
| Owner: | DEPOSIT, EVAN J | | |
| % Ownership: | 100.0000000000% | | |
| Total Value: | $813,842 | | |
| Tax Area: | 712 - APPRAISER-S Whid Schl Dist, outside Langley, improved, greater than 1 acre |
| CF | Conservation Futures | 0.0316035091 | $813,842 | $813,842 | $25.72 | | |
| FIRE3 | Fire & Rescue Dist #3 S Whidbey GEN | 1.2004855531 | $813,842 | $813,842 | $977.01 | | |
| HOBOND | Hospital BOND | 0.1910887512 | $813,842 | $813,842 | $155.52 | | |
| HOGEN | Hospital GEN | 0.3902502903 | $813,842 | $813,842 | $317.60 | | |
| CE | County Current Expense | 0.3708482477 | $813,842 | $813,842 | $301.81 | | |
| CR | County Roads | 0.4584763726 | $813,842 | $813,842 | $373.13 | | |
| ISLANDEMS | Hospital GEN (EMS) | 0.5000000000 | $813,842 | $813,842 | $406.92 | | |
| LIB | Library Sno-Isle GEN | 0.3153421757 | $813,842 | $813,842 | $256.64 | | |
| PORTWHID | Port of S Whidbey GEN | 0.1094540357 | $813,842 | $813,842 | $89.08 | | |
| SCH206BOND | School 206 BOND | 0.3161759235 | $813,842 | $813,842 | $257.32 | | |
| SCH206MO | School 206 Enrichment | 0.4547169547 | $813,842 | $813,842 | $370.07 | | |
| ST | State School | 1.3035497053 | $813,842 | $813,842 | $1,060.88 | | |
| ST2 | State School Part 2 | 0.8169543533 | $813,842 | $813,842 | $664.87 | | |
| SWHIDPRBD | P & R S Whidbey BOND | 0.0152817568 | $813,842 | $813,842 | $12.44 | | |
| SWHIDPRBD2 | P & R S Whidbey BOND2 | 0.0138911264 | $813,842 | $813,842 | $11.31 | | |
| SWHIDPRMT | P & R S Whidbey GEN | 0.2053334452 | $813,842 | $813,842 | $167.11 | | |
| | Total Tax Rate: | 6.6934522006 | | | | | |
| | | | | Taxes w/Current Exemptions: | $5,447.43 | | |
| | | | | Taxes w/o Exemptions: | $5,447.43 | | |
Improvement / Building
| Improvement #1: | RESIDENTIAL | State Code: | Y | 1802.4 sqft | Value: | $443,842 |
| Bathrooms: | 2.5 | Bedrooms: | 3 | | Ceiling: | DRYWALL PAINTED | Cooling: | HEAT PUMP/CONV/V | | Exterior Wall/Cover: | WOOD SIDING | Floor Covering: | HARDWOOD/CARP 80-20 | | Floor Structure: | WOOD W/SUBFLOOR | Foundation: | CONCRETE | | Interior Finish: | DRYWALL PAINT | Plumbing Fixture Cnt: | 11 | | Roof Slope: | 6" IN 12" | Roof Structure/Cover: | CJ ASPHALT |
|
| | Type | Description | Class CD | Sub Class CD | Year Built | Area |
| | BAS | BASE/MAIN FLOOR | 3 | 0 | 1991 | 906.4 |
| | AGR | ATTACHED GARAGE | 3 | 0 | 1991 | 784.0 |
| | UPS | UPPER STORY | 3 | 0 | 1991 | 896.0 |
| | OWP | OPEN WOOD PORCH W/STEPS | 3 | 0 | 1991 | 156.0 |
| | ENP | ENCLOSED PORCH | 3 | 0 | 1991 | 75.1 |
| | OWR | OPEN WOOD PORCH W/STEPS/ROOF | 3 | 0 | 1991 | 224.0 |
| | DGR | DETACHED GARAGE | 3 | 0 | 1991 | 1752.0 |
| | CPD | OPEN CARPORT DIRT FLOOR | 3 | 0 | 1991 | 360.0 |
| | OWP | OPEN WOOD PORCH W/STEPS | 3 | 0 | 1991 | 256.0 |
Sketch
Property Image
Land
| 1 | 32 | AC (03.01-09.99) | 5.0000 | 0.00 | 0.00 | 0.00 | 1.00 | $370,000 | $0 |
Roll Value History
| 2026 | N/A | N/A | N/A | N/A | N/A |
| 2025 | $443,842 | $370,000 | $0 | $813,842 | $813,842 |
| 2024 | $448,313 | $350,000 | $0 | $798,313 | $798,313 |
| 2023 | $452,783 | $330,000 | $0 | $782,783 | $782,783 |
| 2022 | $414,030 | $280,000 | $0 | $694,030 | $694,030 |
| 2021 | $363,562 | $230,000 | $0 | $593,562 | $593,562 |
| 2020 | $304,119 | $190,000 | $0 | $494,119 | $494,119 |
| 2019 | $226,655 | $250,000 | $0 | $476,655 | $476,655 |
| 2018 | $227,231 | $210,000 | $0 | $437,231 | $437,231 |
| 2017 | $228,388 | $190,000 | $0 | $418,388 | $418,388 |
| 2016 | $174,923 | $165,000 | $0 | $339,923 | $339,923 |
| 2015 | $165,945 | $135,000 | $0 | $300,945 | $300,945 |
| 2014 | $173,336 | $160,000 | $0 | $333,336 | $333,336 |
| 2013 | $175,532 | $160,000 | $0 | $335,532 | $335,532 |
| 2012 | $177,730 | $160,000 | $0 | $337,730 | $337,730 |
| 2011 | $179,926 | $160,000 | $0 | $339,926 | $339,926 |
| 2010 | $180,275 | $160,000 | $0 | $340,275 | $340,275 |
| 2009 | $188,126 | $220,000 | $0 | $408,126 | $408,126 |
| 2008 | $193,413 | $215,000 | $0 | $408,413 | $408,413 |
| 2007 | $195,900 | $215,000 | $0 | $410,900 | $410,900 |
Deed and Sales History
| 1 | 04/26/2023 | WD | Warranty Deed | BOHLING TRUSTEE, DENNIS J | DEPOSIT, EVAN J | | | $875,000.00 | 56559 | 4559396 |
| 2 | 02/10/2017 | TRUSTEED | Trustee's Deed | BOHLING, DENNIS J | BOHLING TRUSTEE, DENNIS J | | | $0.00 | 28044 | 4416909 |
| 3 | 08/29/2001 | WD | Warranty Deed | QUADE, ROLLAND O | BOHLING, DENNIS J | | | $259,900.00 | 13366 | 20041820 |
Payout Agreement
| No payout information available.. |