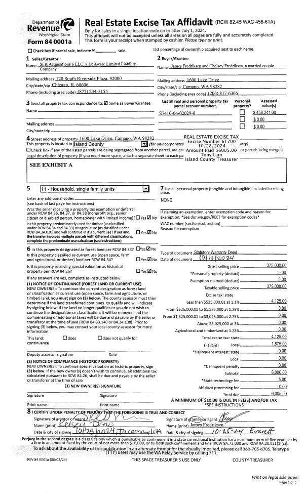
Property
Account |
| Property ID: | 686868 | Abbreviated Legal Description: | BONNIE VIEW LOT 5 BLK 1 |
| Geographic ID: | S6145-00-01005-0 | Agent Code: | |
| Type: | Real | | |
| Tax Area: | 110 - APPRAISER-OH Schl Dist, outside OH, improved & 1 acre or less | Land Use Code | 11 |
| Open Space: | N | DFL | N |
| Historic Property: | N | Remodel Property: | N |
| Multi-Family Redevelopment: | N | | |
| Township: | | Section: | |
| Range: | |
Location |
| Address: | 1476 BONNIE VIEW ACRES RD OAK HARBOR, WA 98277 | Mapsco: | |
| Neighborhood: | Cycle 1 | Map ID: | 123 |
| Neighborhood CD: | 1 |
Owner |
| Name: | HELLMANN JR, JOHN L | Owner ID: | 196230 |
| Mailing Address: | JOANN J HELLMANN 1476 BONNIE VIEW ACRES RD OAK HARBOR, WA 98277 | % Ownership: | 100.0000000000% |
| | | Exemptions: | |
Taxes and Assessment Details
Values
| (+) Improvement Homesite Value: | + | $0 | |
| (+) Improvement Non-Homesite Value: | + | $366,081 | |
| (+) Land Homesite Value: | + | $0 | |
| (+) Land Non-Homesite Value: | + | $180,000 | |
| (+) Curr Use (HS): | + | $0 | $0 |
| (+) Curr Use (NHS): | + | $0 | $0 |
| | | -------------------------- | |
| (=) Market Value: | = | $546,081 | |
| (–) Productivity Loss: | – | $0 | |
| | | -------------------------- | |
| (=) Subtotal: | = | $546,081 | |
| (+) Senior Appraised Value: | + | $0 | |
| (+) Non-Senior Appraised Value: | + | $546,081 | |
| | | -------------------------- | |
| (=) Total Appraised Value: | = | $546,081 | |
| (–) Senior Exemption Loss: | – | $0 | |
| (–) Exemption Loss: | – | $0 | |
| | | -------------------------- | |
| (=) Taxable Value: | = | $546,081 | |
Taxing Jurisdiction
| Owner: | HELLMANN JR, JOHN L | | |
| % Ownership: | 100.0000000000% | | |
| Total Value: | $546,081 | | |
| Tax Area: | 110 - APPRAISER-OH Schl Dist, outside OH, improved & 1 acre or less |
| CF | Conservation Futures | 0.0316035091 | $546,081 | $546,081 | $17.26 | | |
| CEM1 | Cemetery #1 | 0.0040320932 | $546,081 | $546,081 | $2.20 | | |
| FIRE2 | Fire & Rescue Dist #2 N Whidbey GEN | 0.5475949600 | $546,081 | $546,081 | $299.03 | | |
| HOBOND | Hospital BOND | 0.1910887512 | $546,081 | $546,081 | $104.35 | | |
| HOGEN | Hospital GEN | 0.3902502903 | $546,081 | $546,081 | $213.11 | | |
| CE | County Current Expense | 0.3708482477 | $546,081 | $546,081 | $202.51 | | |
| CR | County Roads | 0.4584763726 | $546,081 | $546,081 | $250.37 | | |
| ISLANDEMS | Hospital GEN (EMS) | 0.5000000000 | $546,081 | $546,081 | $273.04 | | |
| LIB | Library Sno-Isle GEN | 0.3153421757 | $546,081 | $546,081 | $172.20 | | |
| NWHIDPRMT | P & R N Whidbey GEN | 0.2004466701 | $546,081 | $546,081 | $109.46 | | |
| SCH201MO | School 201 Enrichment | 1.8559231640 | $546,081 | $546,081 | $1,013.48 | | |
| ST | State School | 1.3035497053 | $546,081 | $546,081 | $711.84 | | |
| ST2 | State School Part 2 | 0.8169543533 | $546,081 | $546,081 | $446.12 | | |
| | Total Tax Rate: | 6.9861102925 | | | | | |
| | | | | Taxes w/Current Exemptions: | $3,814.97 | | |
| | | | | Taxes w/o Exemptions: | $3,814.97 | | |
Improvement / Building
| Improvement #1: | RESIDENTIAL | State Code: | Y | 1690.0 sqft | Value: | $366,081 |
| Bathrooms: | 2 | Bedrooms: | 3 | | Ceiling: | DRYWALL PAINTED | Cooling: | HEAT PUMP/CONV/V | | Exterior Wall/Cover: | CEMENT FIBER | Floor Covering: | VINYL 100% | | Floor Structure: | WOOD W/SUBFLOOR | Foundation: | CONCRETE | | Interior Finish: | DRYWALL PAINT | Plumbing Fixture Cnt: | 9 | | Roof Slope: | 5" IN 12" | Roof Structure/Cover: | CJ ASPHALT |
|
| | Type | Description | Class CD | Sub Class CD | Year Built | Area |
| | BAS | BASE/MAIN FLOOR | 3 | 0 | 2013 | 1690.0 |
| | DGR | DETACHED GARAGE | 3 | 0 | 2013 | 768.0 |
| | OWR | OPEN WOOD PORCH W/STEPS/ROOF | 3 | 0 | 2013 | 182.0 |
| | OWP | OPEN WOOD PORCH W/STEPS | 3 | 0 | 2013 | 256.0 |
Sketch
Property Image
Land
| 1 | HS | HOMESITE | 0.6200 | 27007.20 | 0.00 | 0.00 | 1.00 | $180,000 | $0 |
Roll Value History
| 2026 | N/A | N/A | N/A | N/A | N/A |
| 2025 | $366,081 | $180,000 | $0 | $546,081 | $546,081 |
| 2024 | $368,904 | $180,000 | $0 | $548,904 | $548,904 |
| 2023 | $367,594 | $180,000 | $0 | $547,594 | $547,594 |
| 2022 | $335,819 | $180,000 | $0 | $515,819 | $515,819 |
| 2021 | $294,275 | $135,000 | $0 | $429,275 | $429,275 |
| 2020 | $285,908 | $100,000 | $0 | $385,908 | $385,908 |
| 2019 | $212,762 | $130,000 | $0 | $342,762 | $342,762 |
| 2018 | $213,325 | $120,000 | $0 | $333,325 | $333,325 |
| 2017 | $182,467 | $120,000 | $0 | $302,467 | $302,467 |
| 2016 | $184,387 | $90,000 | $0 | $274,387 | $274,387 |
| 2015 | $186,308 | $60,000 | $0 | $246,308 | $246,308 |
| 2014 | $188,229 | $60,000 | $0 | $248,229 | $248,229 |
| 2013 | $137,598 | $85,000 | $0 | $222,598 | $222,598 |
| 2012 | $4,000 | $102,000 | $0 | $106,000 | $106,000 |
| 2011 | $4,000 | $120,000 | $0 | $124,000 | $124,000 |
| 2010 | $4,000 | $120,000 | $0 | $124,000 | $124,000 |
| 2009 | $4,000 | $90,000 | $0 | $94,000 | $94,000 |
| 2008 | $4,000 | $147,250 | $0 | $151,250 | $151,250 |
| 2007 | $4,000 | $147,250 | $0 | $151,250 | $151,250 |
Deed and Sales History
| 1 | 01/31/2007 | WD | Warranty Deed | KELSEY, SEAN | HELLMANN JR, JOHN L | | | $154,000.00 | 70316 | 4193022 |
| 2 | 01/25/2006 | WD | Warranty Deed | SIZER, DIAN | KELSEY, SEAN | | | $100,000.00 | 60369 | 4160872 |
| 3 | 04/01/1997 | DECREE | Divorce Decree/Legal Separation | SIZER, WARREN R | SIZER, DIAN | | | $0.00 | 71053 | 97004759 |
| 4 | 09/01/1993 | OTHER | Other - Misc. Documents | SIZER, WARREN R | SIZER, WARREN R | | | $0.00 | 65561 | 0 |
| 5 | 07/01/1993 | DECREE | Divorce Decree/Legal Separation | Unknown | SIZER, WARREN R | | | $0.00 | 65440 | 0 |
Payout Agreement
| No payout information available.. |