Property
Account |
| Property ID: | 686993 | Abbreviated Legal Description: | REPLACES 051-2830 66 - S130' OF E150' N1/2 S1/2 SESW LYG SELY OLD HWY 1-D |
| Geographic ID: | R32915-051-2890 | Agent Code: | |
| Type: | Real | | |
| Tax Area: | 710 - APPRAISER-S Whid Schl Dist, outside Langley, improved & 1 acre or less | Land Use Code | 11 |
| Open Space: | N | DFL | N |
| Historic Property: | N | Remodel Property: | N |
| Multi-Family Redevelopment: | N | | |
| Township: | 29 | Section: | 15 |
| Range: | R3 |
Location |
| Address: | 3800 MIDVALE RD CLINTON, WA 98236 | Mapsco: | |
| Neighborhood: | Cycle 4 | Map ID: | 770 |
| Neighborhood CD: | 4 |
Owner |
| Name: | NICHOLS, DENNIS | Owner ID: | 278465 |
| Mailing Address: | PO BOX 836 CLINTON, WA 98236 | % Ownership: | 100.0000000000% |
| | | Exemptions: | |
Taxes and Assessment Details
Values
| (+) Improvement Homesite Value: | + | $0 | |
| (+) Improvement Non-Homesite Value: | + | $17,034 | |
| (+) Land Homesite Value: | + | $0 | |
| (+) Land Non-Homesite Value: | + | $250,000 | |
| (+) Curr Use (HS): | + | $0 | $0 |
| (+) Curr Use (NHS): | + | $0 | $0 |
| | | -------------------------- | |
| (=) Market Value: | = | $267,034 | |
| (–) Productivity Loss: | – | $0 | |
| | | -------------------------- | |
| (=) Subtotal: | = | $267,034 | |
| (+) Senior Appraised Value: | + | $0 | |
| (+) Non-Senior Appraised Value: | + | $267,034 | |
| | | -------------------------- | |
| (=) Total Appraised Value: | = | $267,034 | |
| (–) Senior Exemption Loss: | – | $0 | |
| (–) Exemption Loss: | – | $0 | |
| | | -------------------------- | |
| (=) Taxable Value: | = | $267,034 | |
Taxing Jurisdiction
| Owner: | NICHOLS, DENNIS | | |
| % Ownership: | 100.0000000000% | | |
| Total Value: | $267,034 | | |
| Tax Area: | 710 - APPRAISER-S Whid Schl Dist, outside Langley, improved & 1 acre or less |
| CF | Conservation Futures | 0.0316035091 | $267,034 | $267,034 | $8.44 | | |
| FIRE3 | Fire & Rescue Dist #3 S Whidbey GEN | 1.2004855531 | $267,034 | $267,034 | $320.57 | | |
| HOBOND | Hospital BOND | 0.1910887512 | $267,034 | $267,034 | $51.03 | | |
| HOGEN | Hospital GEN | 0.3902502903 | $267,034 | $267,034 | $104.21 | | |
| CE | County Current Expense | 0.3708482477 | $267,034 | $267,034 | $99.03 | | |
| CR | County Roads | 0.4584763726 | $267,034 | $267,034 | $122.43 | | |
| ISLANDEMS | Hospital GEN (EMS) | 0.5000000000 | $267,034 | $267,034 | $133.52 | | |
| LIB | Library Sno-Isle GEN | 0.3153421757 | $267,034 | $267,034 | $84.21 | | |
| PORTWHID | Port of S Whidbey GEN | 0.1094540357 | $267,034 | $267,034 | $29.23 | | |
| SCH206BOND | School 206 BOND | 0.3161759235 | $267,034 | $267,034 | $84.43 | | |
| SCH206MO | School 206 Enrichment | 0.4547169547 | $267,034 | $267,034 | $121.42 | | |
| ST | State School | 1.3035497053 | $267,034 | $267,034 | $348.09 | | |
| ST2 | State School Part 2 | 0.8169543533 | $267,034 | $267,034 | $218.15 | | |
| SWHIDPRBD | P & R S Whidbey BOND | 0.0152817568 | $267,034 | $267,034 | $4.08 | | |
| SWHIDPRBD2 | P & R S Whidbey BOND2 | 0.0138911264 | $267,034 | $267,034 | $3.71 | | |
| SWHIDPRMT | P & R S Whidbey GEN | 0.2053334452 | $267,034 | $267,034 | $54.83 | | |
| | Total Tax Rate: | 6.6934522006 | | | | | |
| | | | | Taxes w/Current Exemptions: | $1,787.38 | | |
| | | | | Taxes w/o Exemptions: | $1,787.38 | | |
Improvement / Building
| Improvement #1: | RESIDENTIAL | State Code: | Y | 1328.0 sqft | Value: | $17,034 |
| Bathrooms: | 1 | Bedrooms: | 2 | | Ceiling: | DRYWALL PAINTED | Exterior Wall/Cover: | STUCCO | | Floor Covering: | (NONE) | Floor Structure: | WOOD W/SUBFLOOR | | Foundation: | CONCRETE | Heating: | OIL HEATERS | | Interior Finish: | DRYWALL PAINT | Plumbing Fixture Cnt: | 6 | | Roof Slope: | 3" IN 12" | Roof Structure/Cover: | ALUM LIGHT |
|
| | Type | Description | Class CD | Sub Class CD | Year Built | Area |
| | BAS | BASE/MAIN FLOOR | 2 | 0 | 1940 | 1328.0 |
| | OWR | OPEN WOOD PORCH W/STEPS/ROOF | 2 | 0 | 1940 | 112.0 |
| | ENP | ENCLOSED PORCH | 2 | 0 | 1940 | 96.0 |
Sketch
| No sketches available for this property. |
Property Image
Land
| 1 | 15 | SQ (12001-21780) | 0.0000 | 0.00 | 0.00 | 0.00 | 1.00 | $250,000 | $0 |
Roll Value History
| 2026 | N/A | N/A | N/A | N/A | N/A |
| 2025 | $17,034 | $250,000 | $0 | $267,034 | $267,034 |
| 2024 | $17,491 | $230,000 | $0 | $247,491 | $247,491 |
| 2023 | $17,949 | $230,000 | $0 | $247,949 | $247,949 |
| 2022 | $16,667 | $210,000 | $0 | $226,667 | $226,667 |
| 2021 | $14,854 | $150,000 | $0 | $164,854 | $164,854 |
| 2020 | $1,814 | $120,000 | $0 | $121,814 | $121,814 |
| 2019 | $1,395 | $170,000 | $0 | $171,395 | $171,395 |
| 2018 | $1,402 | $130,000 | $0 | $131,402 | $131,402 |
| 2017 | $1,419 | $120,000 | $0 | $121,419 | $121,419 |
| 2016 | $1,451 | $120,000 | $0 | $121,451 | $121,451 |
| 2015 | $1,483 | $114,750 | $0 | $116,233 | $116,233 |
| 2014 | $800 | $114,750 | $0 | $115,550 | $115,550 |
| 2013 | $800 | $114,750 | $0 | $115,550 | $115,550 |
| 2012 | $800 | $114,750 | $0 | $115,550 | $115,550 |
| 2011 | $800 | $135,000 | $0 | $135,800 | $135,800 |
| 2010 | $134 | $135,000 | $0 | $135,134 | $135,134 |
| 2009 | $139 | $145,000 | $0 | $145,139 | $145,139 |
| 2008 | $31,257 | $113,100 | $0 | $144,357 | $144,357 |
| 2007 | $31,292 | $113,100 | $0 | $144,392 | $144,392 |
Deed and Sales History
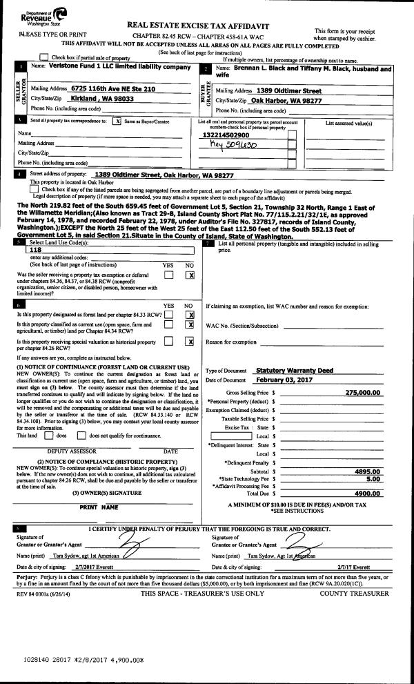
| 1 | 01/11/2017 | WD | Warranty Deed | SIMMONS LIFE EST, EDITH M | NICHOLS, DENNIS | | | $65,000.00 | 28007 | 4416699 |
| 2 | 10/01/1974 | CD | DNU - Correction Deed | Unknown | SIMMONS, EDITH M | | | $0.00 | 53487 | 278483 |
Payout Agreement
| No payout information available.. |