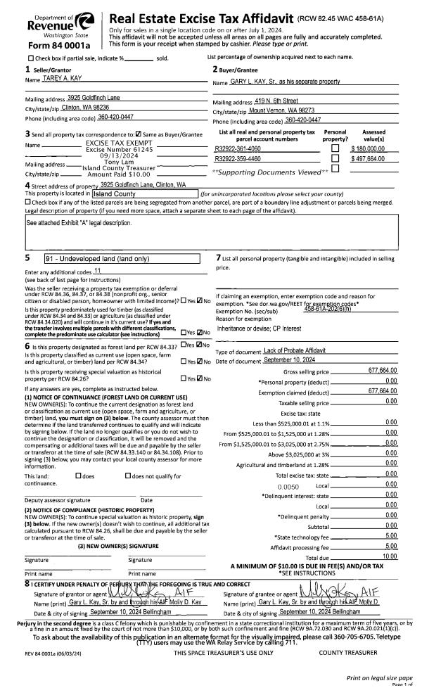
Property
Account |
| Property ID: | 687206 | Abbreviated Legal Description: | LOT 1 SP 1-93.13210.273-4030 V2 SP P416 AF#93017862 TGW & SUB STAIRWAY EZ AF#95020018 |
| Geographic ID: | R13210-277-4000 | Agent Code: | |
| Type: | Real | | |
| Tax Area: | 100 - APPRAISER-OH Schl Dist, in OH | Land Use Code | 11 |
| Open Space: | N | DFL | N |
| Historic Property: | N | Remodel Property: | N |
| Multi-Family Redevelopment: | N | | |
| Township: | 32 | Section: | 10 |
| Range: | R1 |
Location |
| Address: | 2820 SW SCENIC HEIGHTS ST OAK HARBOR, WA 98277 | Mapsco: | |
| Neighborhood: | Cycle 1 | Map ID: | 119 |
| Neighborhood CD: | 1 |
Owner |
| Name: | HULETT, KENNETH G / TERRI L | Owner ID: | 70705 |
| Mailing Address: | 2820 SW SCENIC HEIGHTS ST OAK HARBOR, WA 98277-8151 | % Ownership: | 100.0000000000% |
| | | Exemptions: | |
Taxes and Assessment Details
Values
| (+) Improvement Homesite Value: | + | $0 | |
| (+) Improvement Non-Homesite Value: | + | $636,865 | |
| (+) Land Homesite Value: | + | $0 | |
| (+) Land Non-Homesite Value: | + | $525,000 | |
| (+) Curr Use (HS): | + | $0 | $0 |
| (+) Curr Use (NHS): | + | $0 | $0 |
| | | -------------------------- | |
| (=) Market Value: | = | $1,161,865 | |
| (–) Productivity Loss: | – | $0 | |
| | | -------------------------- | |
| (=) Subtotal: | = | $1,161,865 | |
| (+) Senior Appraised Value: | + | $0 | |
| (+) Non-Senior Appraised Value: | + | $1,161,865 | |
| | | -------------------------- | |
| (=) Total Appraised Value: | = | $1,161,865 | |
| (–) Senior Exemption Loss: | – | $0 | |
| (–) Exemption Loss: | – | $0 | |
| | | -------------------------- | |
| (=) Taxable Value: | = | $1,161,865 | |
Taxing Jurisdiction
| Owner: | HULETT, KENNETH G / TERRI L | | |
| % Ownership: | 100.0000000000% | | |
| Total Value: | $1,161,865 | | |
| Tax Area: | 100 - APPRAISER-OH Schl Dist, in OH |
| CF | Conservation Futures | 0.0316035091 | $1,161,865 | $1,161,865 | $36.72 | | |
| CEM1 | Cemetery #1 | 0.0040320932 | $1,161,865 | $1,161,865 | $4.68 | | |
| COH | City of Oak Harbor | 2.3001546061 | $1,161,865 | $1,161,865 | $2,672.47 | | |
| OAKBOND | City of Oak Harbor BOND | 0.1926904192 | $1,161,865 | $1,161,865 | $223.88 | | |
| HOBOND | Hospital BOND | 0.1910887512 | $1,161,865 | $1,161,865 | $222.02 | | |
| HOGEN | Hospital GEN | 0.3902502903 | $1,161,865 | $1,161,865 | $453.42 | | |
| CE | County Current Expense | 0.3708482477 | $1,161,865 | $1,161,865 | $430.88 | | |
| ISLANDEMS | Hospital GEN (EMS) | 0.5000000000 | $1,161,865 | $1,161,865 | $580.93 | | |
| LIB | Library Sno-Isle GEN | 0.3153421757 | $1,161,865 | $1,161,865 | $366.39 | | |
| NWHIDPRMT | P & R N Whidbey GEN | 0.2004466701 | $1,161,865 | $1,161,865 | $232.89 | | |
| SCH201MO | School 201 Enrichment | 1.8559231640 | $1,161,865 | $1,161,865 | $2,156.33 | | |
| ST | State School | 1.3035497053 | $1,161,865 | $1,161,865 | $1,514.55 | | |
| ST2 | State School Part 2 | 0.8169543533 | $1,161,865 | $1,161,865 | $949.19 | | |
| | Total Tax Rate: | 8.4728839852 | | | | | |
| | | | | Taxes w/Current Exemptions: | $9,844.35 | | |
| | | | | Taxes w/o Exemptions: | $9,844.35 | | |
Improvement / Building
| Improvement #1: | RESIDENTIAL | State Code: | Y | 3032.7 sqft | Value: | $636,865 |
| Bathrooms: | 2.5 | Bedrooms: | 2 | | Ceiling: | DRYWALL PAINTED | Cooling: | HEAT PUMP/CONV/V | | Exterior Wall/Cover: | PLY/HARDBOARD T-111 | Floor Covering: | HARDWOOD/CARP 80-20 | | Floor Structure: | WOOD W/SUBFLOOR | Foundation: | CONCRETE | | Interior Finish: | DRYWALL PAINT | Plumbing Fixture Cnt: | 14 | | Roof Slope: | 8" IN 12" | Roof Structure/Cover: | CJ ASPHALT |
|
| | Type | Description | Class CD | Sub Class CD | Year Built | Area |
| | BAS | BASE/MAIN FLOOR | 5 | 0 | 1993 | 1434.7 |
| | BGR | BASEMENT GARAGE | 5 | 0 | 1993 | 686.0 |
| | OWC | OPEN WOOD PORCH W/STEPS/ROOF/C | 5 | 0 | 1993 | 265.0 |
| | UPH | HALF STORY | 5 | 0 | 1993 | 948.0 |
| | DWN | DOWNSTAIRS LIVING AREA | 5 | 0 | 1993 | 650.0 |
| | OWP | OPEN WOOD PORCH W/STEPS | 5 | 0 | 1993 | 316.7 |
| | DGR | DETACHED GARAGE | 5 | 0 | 1993 | 672.0 |
| | OWP | OPEN WOOD PORCH W/STEPS | 5 | 0 | 1993 | 240.0 |
Sketch
Property Image
Land
| 1 | HB | HIGH BLUFF | 0.0000 | 0.00 | 101.00 | 0.00 | 1.00 | $525,000 | $0 |
Roll Value History
| 2026 | N/A | N/A | N/A | N/A | N/A |
| 2025 | $636,865 | $525,000 | $0 | $1,161,865 | $1,161,865 |
| 2024 | $644,703 | $500,000 | $0 | $1,144,703 | $1,144,703 |
| 2023 | $571,780 | $500,000 | $0 | $1,071,780 | $1,071,780 |
| 2022 | $524,281 | $450,000 | $0 | $974,281 | $974,281 |
| 2021 | $461,585 | $350,000 | $0 | $811,585 | $811,585 |
| 2020 | $450,127 | $350,000 | $0 | $800,127 | $800,127 |
| 2019 | $376,339 | $325,000 | $0 | $701,339 | $701,339 |
| 2018 | $377,470 | $250,000 | $0 | $627,470 | $627,470 |
| 2017 | $325,753 | $250,000 | $0 | $575,753 | $575,753 |
| 2016 | $329,977 | $250,000 | $0 | $579,977 | $579,977 |
| 2015 | $334,200 | $250,000 | $0 | $584,200 | $584,200 |
| 2014 | $338,421 | $250,000 | $0 | $588,421 | $588,421 |
| 2013 | $342,646 | $249,797 | $0 | $592,443 | $592,443 |
| 2012 | $346,868 | $249,797 | $0 | $596,665 | $596,665 |
| 2011 | $378,428 | $249,797 | $0 | $628,225 | $628,225 |
| 2010 | $382,458 | $249,797 | $0 | $632,255 | $632,255 |
| 2009 | $397,905 | $312,247 | $0 | $710,152 | $710,152 |
| 2008 | $398,924 | $358,760 | $0 | $757,684 | $757,684 |
| 2007 | $404,134 | $358,760 | $0 | $762,894 | $762,894 |
Deed and Sales History
| 1 | 09/01/1993 | WD | Warranty Deed | LANGDON, STEWART D | HULETT, KENNETH G | | | $138,000.00 | 33608 | 93018736 |
| 2 | 01/01/1900 | OTHER | Other - Misc. Documents | Unknown | LANGDON, STEWART D | | | $0.00 | 65570 | 93016393 |
Payout Agreement
| No payout information available.. |