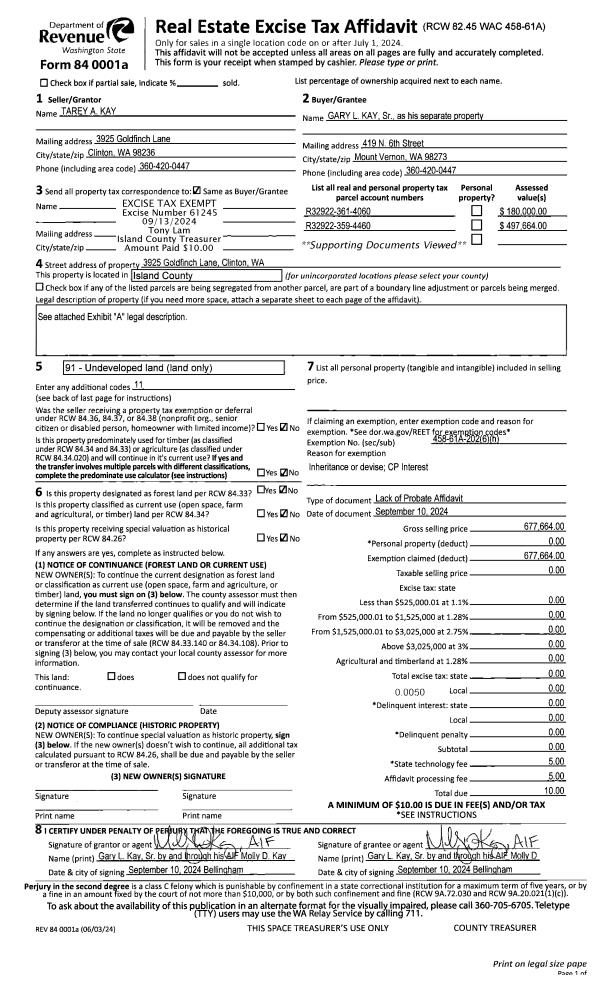
Property
Account |
| Property ID: | 687215 | Abbreviated Legal Description: | LOT 2 SP 1-93.13210.273-4030 V2 SP P416 AF#93017862 TGW & SUB STAIRWAY EZ AF#95020018 |
| Geographic ID: | R13210-266-4000 | Agent Code: | |
| Type: | Real | | |
| Tax Area: | 100 - APPRAISER-OH Schl Dist, in OH | Land Use Code | 11 |
| Open Space: | N | DFL | N |
| Historic Property: | N | Remodel Property: | N |
| Multi-Family Redevelopment: | N | | |
| Township: | 32 | Section: | 10 |
| Range: | R1 |
Location |
| Address: | 2830 SW SCENIC HEIGHTS ST OAK HARBOR, WA 98277 | Mapsco: | |
| Neighborhood: | Cycle 1 | Map ID: | 119 |
| Neighborhood CD: | 1 |
Owner |
| Name: | COHEN, JACOB | Owner ID: | 77296 |
| Mailing Address: | PO BOX 889 OAK HARBOR, WA 98277-0889 | % Ownership: | 100.0000000000% |
| | | Exemptions: | |
Taxes and Assessment Details
Values
| (+) Improvement Homesite Value: | + | $0 | |
| (+) Improvement Non-Homesite Value: | + | $882,573 | |
| (+) Land Homesite Value: | + | $0 | |
| (+) Land Non-Homesite Value: | + | $525,000 | |
| (+) Curr Use (HS): | + | $0 | $0 |
| (+) Curr Use (NHS): | + | $0 | $0 |
| | | -------------------------- | |
| (=) Market Value: | = | $1,407,573 | |
| (–) Productivity Loss: | – | $0 | |
| | | -------------------------- | |
| (=) Subtotal: | = | $1,407,573 | |
| (+) Senior Appraised Value: | + | $0 | |
| (+) Non-Senior Appraised Value: | + | $1,407,573 | |
| | | -------------------------- | |
| (=) Total Appraised Value: | = | $1,407,573 | |
| (–) Senior Exemption Loss: | – | $0 | |
| (–) Exemption Loss: | – | $0 | |
| | | -------------------------- | |
| (=) Taxable Value: | = | $1,407,573 | |
Taxing Jurisdiction
| Owner: | COHEN, JACOB | | |
| % Ownership: | 100.0000000000% | | |
| Total Value: | $1,407,573 | | |
| Tax Area: | 100 - APPRAISER-OH Schl Dist, in OH |
| CF | Conservation Futures | 0.0316035091 | $1,407,573 | $1,407,573 | $44.48 | | |
| CEM1 | Cemetery #1 | 0.0040320932 | $1,407,573 | $1,407,573 | $5.68 | | |
| COH | City of Oak Harbor | 2.3001546061 | $1,407,573 | $1,407,573 | $3,237.64 | | |
| OAKBOND | City of Oak Harbor BOND | 0.1926904192 | $1,407,573 | $1,407,573 | $271.23 | | |
| HOBOND | Hospital BOND | 0.1910887512 | $1,407,573 | $1,407,573 | $268.97 | | |
| HOGEN | Hospital GEN | 0.3902502903 | $1,407,573 | $1,407,573 | $549.31 | | |
| CE | County Current Expense | 0.3708482477 | $1,407,573 | $1,407,573 | $522.00 | | |
| ISLANDEMS | Hospital GEN (EMS) | 0.5000000000 | $1,407,573 | $1,407,573 | $703.79 | | |
| LIB | Library Sno-Isle GEN | 0.3153421757 | $1,407,573 | $1,407,573 | $443.87 | | |
| NWHIDPRMT | P & R N Whidbey GEN | 0.2004466701 | $1,407,573 | $1,407,573 | $282.14 | | |
| SCH201MO | School 201 Enrichment | 1.8559231640 | $1,407,573 | $1,407,573 | $2,612.35 | | |
| ST | State School | 1.3035497053 | $1,407,573 | $1,407,573 | $1,834.84 | | |
| ST2 | State School Part 2 | 0.8169543533 | $1,407,573 | $1,407,573 | $1,149.92 | | |
| | Total Tax Rate: | 8.4728839852 | | | | | |
| | | | | Taxes w/Current Exemptions: | $11,926.22 | | |
| | | | | Taxes w/o Exemptions: | $11,926.22 | | |
Improvement / Building
| Improvement #1: | RESIDENTIAL | State Code: | Y | 4120.6 sqft | Value: | $882,573 |
| Bathrooms: | 3.5 | Bedrooms: | 3 | | Ceiling: | DRY WALL SPRAYED | Cooling: | FHA AND AC | | Exterior Wall/Cover: | CEMENT FIBER | Floor Covering: | HARDWOOD/CARP 60-40 | | Floor Structure: | WOOD W/SUBFLOOR | Foundation: | CONCRETE | | Interior Finish: | DRYWALL PAINT | Plumbing Fixture Cnt: | 17 | | Roof Slope: | 8" IN 12" | Roof Structure/Cover: | CJ ASPHALT |
|
| | Type | Description | Class CD | Sub Class CD | Year Built | Area |
| | BAS | BASE/MAIN FLOOR | 5 | 0 | 1999 | 1912.4 |
| | OP4 | OPEN PORCH W/CEILING-ROOF | 5 | 0 | 1999 | 135.0 |
| | AGR | ATTACHED GARAGE | 5 | 0 | 1999 | 1197.5 |
| | UPS | UPPER STORY | 5 | 0 | 1999 | 1171.6 |
| | OWP | OPEN WOOD PORCH W/STEPS | 5 | 0 | 1999 | 779.8 |
| | DWN | DOWNSTAIRS LIVING AREA | 5 | 0 | 1999 | 1036.6 |
Sketch
Property Image
Land
| 1 | HB | HIGH BLUFF | 0.0000 | 0.00 | 101.00 | 0.00 | 1.00 | $525,000 | $0 |
Roll Value History
| 2026 | N/A | N/A | N/A | N/A | N/A |
| 2025 | $882,573 | $525,000 | $0 | $1,407,573 | $1,407,573 |
| 2024 | $892,925 | $500,000 | $0 | $1,392,925 | $1,392,925 |
| 2023 | $964,931 | $500,000 | $0 | $1,464,931 | $1,464,931 |
| 2022 | $884,114 | $450,000 | $0 | $1,334,114 | $1,334,114 |
| 2021 | $777,806 | $350,000 | $0 | $1,127,806 | $1,127,806 |
| 2020 | $758,207 | $350,000 | $0 | $1,108,207 | $1,108,207 |
| 2019 | $701,992 | $325,000 | $0 | $1,026,992 | $1,026,992 |
| 2018 | $703,981 | $250,000 | $0 | $953,981 | $953,981 |
| 2017 | $667,212 | $250,000 | $0 | $917,212 | $917,212 |
| 2016 | $675,449 | $250,000 | $0 | $925,449 | $925,449 |
| 2015 | $683,686 | $250,000 | $0 | $933,686 | $933,686 |
| 2014 | $691,923 | $250,000 | $0 | $941,923 | $941,923 |
| 2013 | $700,160 | $249,797 | $0 | $949,957 | $949,957 |
| 2012 | $708,398 | $249,797 | $0 | $958,195 | $958,195 |
| 2011 | $761,105 | $249,797 | $0 | $1,010,902 | $1,010,902 |
| 2010 | $783,437 | $249,797 | $0 | $1,033,234 | $1,033,234 |
| 2009 | $816,545 | $312,247 | $0 | $1,128,792 | $1,128,792 |
| 2008 | $827,192 | $358,760 | $0 | $1,185,952 | $1,185,952 |
| 2007 | $837,597 | $358,760 | $0 | $1,196,357 | $1,196,357 |
Deed and Sales History
| 1 | 05/26/1998 | EZ | Easement | COHEN, JACOB & | COHEN, JACOB | | | $0.00 | 82215 | 98011550 |
| 2 | 05/01/1995 | WD | Warranty Deed | LANGDON, STEWART D | COHEN, JACOB & | | | $125,000.00 | 51723 | 95008108 |
| 3 | 01/01/1900 | OTHER | Other - Misc. Documents | Unknown | LANGDON, STEWART D | | | $0.00 | 65570 | 93016393 |
Payout Agreement
| No payout information available.. |