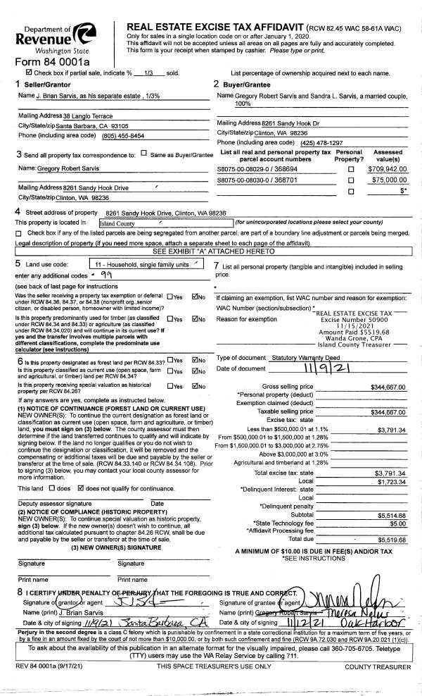
Property
Account |
| Property ID: | 687411 | Abbreviated Legal Description: | WHERE SHIPS PASS LOT 3 SP 25-92.8405.00.00001.1 V2 SP P419 AF#93019202 |
| Geographic ID: | S8405-00-00001-7 | Agent Code: | |
| Type: | Real | | |
| Tax Area: | 710 - APPRAISER-S Whid Schl Dist, outside Langley, improved & 1 acre or less | Land Use Code | 11 |
| Open Space: | N | DFL | N |
| Historic Property: | N | Remodel Property: | N |
| Multi-Family Redevelopment: | N | | |
| Township: | | Section: | |
| Range: | |
Location |
| Address: | 5748 DAYMAR PLACE FREELAND, WA 98249 | Mapsco: | |
| Neighborhood: | Cycle 3 | Map ID: | 331 |
| Neighborhood CD: | 3 |
Owner |
| Name: | DECKER, BLAKE J | Owner ID: | 298148 |
| Mailing Address: | BONNIE J DECKER 5748 DAYMAR PL FREELAND, WA 98249 | % Ownership: | 100.0000000000% |
| | | Exemptions: | |
Taxes and Assessment Details
Values
| (+) Improvement Homesite Value: | + | $0 | |
| (+) Improvement Non-Homesite Value: | + | $341,570 | |
| (+) Land Homesite Value: | + | $0 | |
| (+) Land Non-Homesite Value: | + | $250,000 | |
| (+) Curr Use (HS): | + | $0 | $0 |
| (+) Curr Use (NHS): | + | $0 | $0 |
| | | -------------------------- | |
| (=) Market Value: | = | $591,570 | |
| (–) Productivity Loss: | – | $0 | |
| | | -------------------------- | |
| (=) Subtotal: | = | $591,570 | |
| (+) Senior Appraised Value: | + | $0 | |
| (+) Non-Senior Appraised Value: | + | $591,570 | |
| | | -------------------------- | |
| (=) Total Appraised Value: | = | $591,570 | |
| (–) Senior Exemption Loss: | – | $0 | |
| (–) Exemption Loss: | – | $0 | |
| | | -------------------------- | |
| (=) Taxable Value: | = | $591,570 | |
Taxing Jurisdiction
| Owner: | DECKER, BLAKE J | | |
| % Ownership: | 100.0000000000% | | |
| Total Value: | $591,570 | | |
| Tax Area: | 710 - APPRAISER-S Whid Schl Dist, outside Langley, improved & 1 acre or less |
| CF | Conservation Futures | 0.0316035091 | $591,570 | $591,570 | $18.70 | | |
| FIRE3 | Fire & Rescue Dist #3 S Whidbey GEN | 1.2004855531 | $591,570 | $591,570 | $710.17 | | |
| HOBOND | Hospital BOND | 0.1910887512 | $591,570 | $591,570 | $113.04 | | |
| HOGEN | Hospital GEN | 0.3902502903 | $591,570 | $591,570 | $230.86 | | |
| CE | County Current Expense | 0.3708482477 | $591,570 | $591,570 | $219.38 | | |
| CR | County Roads | 0.4584763726 | $591,570 | $591,570 | $271.22 | | |
| ISLANDEMS | Hospital GEN (EMS) | 0.5000000000 | $591,570 | $591,570 | $295.79 | | |
| LIB | Library Sno-Isle GEN | 0.3153421757 | $591,570 | $591,570 | $186.55 | | |
| PORTWHID | Port of S Whidbey GEN | 0.1094540357 | $591,570 | $591,570 | $64.75 | | |
| SCH206BOND | School 206 BOND | 0.3161759235 | $591,570 | $591,570 | $187.04 | | |
| SCH206MO | School 206 Enrichment | 0.4547169547 | $591,570 | $591,570 | $269.00 | | |
| ST | State School | 1.3035497053 | $591,570 | $591,570 | $771.14 | | |
| ST2 | State School Part 2 | 0.8169543533 | $591,570 | $591,570 | $483.29 | | |
| SWHIDPRBD | P & R S Whidbey BOND | 0.0152817568 | $591,570 | $591,570 | $9.04 | | |
| SWHIDPRBD2 | P & R S Whidbey BOND2 | 0.0138911264 | $591,570 | $591,570 | $8.22 | | |
| SWHIDPRMT | P & R S Whidbey GEN | 0.2053334452 | $591,570 | $591,570 | $121.47 | | |
| | Total Tax Rate: | 6.6934522006 | | | | | |
| | | | | Taxes w/Current Exemptions: | $3,959.66 | | |
| | | | | Taxes w/o Exemptions: | $3,959.66 | | |
Improvement / Building
| Improvement #1: | RESIDENTIAL | State Code: | Y | 1692.0 sqft | Value: | $341,570 |
| Bathrooms: | 3 | Bedrooms: | 3 | | Ceiling: | DRYWALL PAINTED | Cooling: | HEAT PUMP/CONV/V | | Exterior Wall/Cover: | CEMENT FIBER | Floor Covering: | VINYL TILE | | Floor Structure: | WOOD W/SUBFLOOR | Foundation: | CONCRETE | | Interior Finish: | DRYWALL PAINT | Plumbing Fixture Cnt: | 12 | | Roof Slope: | 8" IN 12" | Roof Structure/Cover: | CJ ASPHALT |
|
| | Type | Description | Class CD | Sub Class CD | Year Built | Area |
| | BAS | BASE/MAIN FLOOR | 3 | 0 | 1995 | 1164.0 |
| | BIG | BUILT IN GARAGE | 3 | 0 | 1995 | 480.0 |
| | DWN | DOWNSTAIRS LIVING AREA | 3 | 0 | 1995 | 528.0 |
| | AGR | ATTACHED GARAGE | 3 | 0 | 1995 | 391.5 |
| | OWP | OPEN WOOD PORCH W/STEPS | 3 | 0 | 1995 | 508.0 |
| | OWP | OPEN WOOD PORCH W/STEPS | 3 | 0 | 1995 | 46.8 |
Sketch
Property Image
Land
| 1 | 15 | SQ (12001-21780) | 0.4000 | 17424.00 | 0.00 | 0.00 | 1.00 | $250,000 | $0 |
Roll Value History
| 2026 | N/A | N/A | N/A | N/A | N/A |
| 2025 | $341,570 | $250,000 | $0 | $591,570 | $591,570 |
| 2024 | $345,577 | $250,000 | $0 | $595,577 | $595,577 |
| 2023 | $349,583 | $250,000 | $0 | $599,583 | $599,583 |
| 2022 | $320,180 | $220,000 | $0 | $540,180 | $540,180 |
| 2021 | $281,574 | $160,000 | $0 | $441,574 | $441,574 |
| 2020 | $252,215 | $110,000 | $0 | $362,215 | $362,215 |
| 2019 | $125,344 | $170,000 | $0 | $295,344 | $295,344 |
| 2018 | $154,037 | $160,000 | $0 | $314,037 | $314,037 |
| 2017 | $166,012 | $125,000 | $0 | $291,012 | $291,012 |
| 2016 | $145,139 | $125,000 | $0 | $270,139 | $270,139 |
| 2015 | $132,047 | $100,000 | $0 | $232,047 | $232,047 |
| 2014 | $132,049 | $100,000 | $0 | $232,049 | $232,049 |
| 2013 | $133,701 | $100,000 | $0 | $233,701 | $233,701 |
| 2012 | $137,617 | $89,250 | $0 | $226,867 | $226,867 |
| 2011 | $139,271 | $105,000 | $0 | $244,271 | $61,224 |
| 2010 | $148,017 | $105,000 | $0 | $253,017 | $61,224 |
| 2009 | $154,428 | $130,000 | $0 | $284,428 | $61,224 |
| 2008 | $157,268 | $145,171 | $0 | $302,439 | $61,224 |
| 2007 | $154,104 | $105,000 | $0 | $259,104 | $60,401 |
Deed and Sales History
| 1 | 02/11/2021 | WD | Warranty Deed | DECKER, JASON P & DEBRA A | DECKER, BLAKE J | | | $450,000.00 | 46975 | 4511190 |
| 2 | 12/23/2014 | SPWARDEED | Special Warranty Deed | URBAN FINANCIAL OF AMERICA LLC | DECKER, JASON P | | | $145,000.00 | 18035 | 4370843 |
| 3 | 11/10/2014 | SHERIFFD | Sheriff Deed | WHITEHEAD, STUART M | URBAN FINANCIAL OF AMERICA LLC | | | $0.00 | 17591 | 4368693 |
| 4 | 01/24/2002 | WD | Warranty Deed | KLEBOLD, DANIEL E | WHITEHEAD, STUART M | | | $153,000.00 | 20327 | 4009497 |
| 5 | 12/01/1995 | WD | Warranty Deed | R, K P | KLEBOLD, DANIEL E | | | $135,500.00 | 54514 | 95020764 |
| 6 | 08/01/1995 | WD | Warranty Deed | STORKSON, DARRELL | R, K P | | | $34,000.00 | 52836 | 95013053 |
| 7 | 01/01/1900 | OTHER | Other - Misc. Documents | Unknown | STORKSON, DARRELL | | | $0.00 | 11452 | 91006151 |
Payout Agreement
| No payout information available.. |