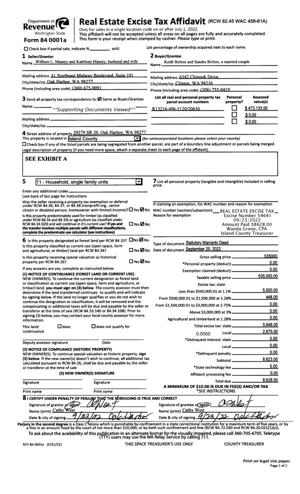
Property
Account |
| Property ID: | 687493 | Abbreviated Legal Description: | LOT B V8 SUR P302-3 AF#93019721 & AF#94020559 DESC: W850' OF GL1 & W850' OF N150'OF GL 2 EX N512.08 OF GL1 TGW & SUB EZS FR 434-2190 & 365-2020 TGW EZ AF#96020038 |
| Geographic ID: | R23120-430-1780 | Agent Code: | |
| Type: | Real | | |
| Tax Area: | 312 - APPRAISER-Cpvl Schl Dist, outside Cpvl, improved, greater than 1 acre | Land Use Code | 11 |
| Open Space: | N | DFL | N |
| Historic Property: | N | Remodel Property: | N |
| Multi-Family Redevelopment: | N | | |
| Township: | 31 | Section: | 20 |
| Range: | R2 |
Location |
| Address: | 1312 WILLOW POND LN COUPEVILLE, WA 98239 | Mapsco: | |
| Neighborhood: | Cycle 2 | Map ID: | 499 |
| Neighborhood CD: | 2 |
Owner |
| Name: | LARSEN, NATHAN FREDERICK | Owner ID: | 308435 |
| Mailing Address: | 1312 WILLOW POND LN COUPEVILLE, WA 98239 | % Ownership: | 100.0000000000% |
| | | Exemptions: | |
Taxes and Assessment Details
Values
| (+) Improvement Homesite Value: | + | $0 | |
| (+) Improvement Non-Homesite Value: | + | $574,497 | |
| (+) Land Homesite Value: | + | $0 | |
| (+) Land Non-Homesite Value: | + | $403,690 | |
| (+) Curr Use (HS): | + | $0 | $0 |
| (+) Curr Use (NHS): | + | $0 | $0 |
| | | -------------------------- | |
| (=) Market Value: | = | $978,187 | |
| (–) Productivity Loss: | – | $0 | |
| | | -------------------------- | |
| (=) Subtotal: | = | $978,187 | |
| (+) Senior Appraised Value: | + | $0 | |
| (+) Non-Senior Appraised Value: | + | $978,187 | |
| | | -------------------------- | |
| (=) Total Appraised Value: | = | $978,187 | |
| (–) Senior Exemption Loss: | – | $0 | |
| (–) Exemption Loss: | – | $0 | |
| | | -------------------------- | |
| (=) Taxable Value: | = | $978,187 | |
Taxing Jurisdiction
| Owner: | LARSEN, NATHAN FREDERICK | | |
| % Ownership: | 100.0000000000% | | |
| Total Value: | $978,187 | | |
| Tax Area: | 312 - APPRAISER-Cpvl Schl Dist, outside Cpvl, improved, greater than 1 acre |
| CF | Conservation Futures | 0.0316035091 | $978,187 | $978,187 | $30.91 | | |
| CEM2 | Cemetery #2 | 0.0095056933 | $978,187 | $978,187 | $9.30 | | |
| FIRE5 | Fire & Rescue Dist #5 C Whidbey GEN | 1.2008080668 | $978,187 | $978,187 | $1,174.61 | | |
| FIRE5BOND | Fire & Rescue Dist #5 C Whidbey BOND | 0.1400090713 | $978,187 | $978,187 | $136.96 | | |
| HOBOND | Hospital BOND | 0.1910887512 | $978,187 | $978,187 | $186.92 | | |
| HOGEN | Hospital GEN | 0.3902502903 | $978,187 | $978,187 | $381.74 | | |
| CE | County Current Expense | 0.3708482477 | $978,187 | $978,187 | $362.76 | | |
| CR | County Roads | 0.4584763726 | $978,187 | $978,187 | $448.48 | | |
| ISLANDEMS | Hospital GEN (EMS) | 0.5000000000 | $978,187 | $978,187 | $489.09 | | |
| LIB | Library Sno-Isle GEN | 0.3153421757 | $978,187 | $978,187 | $308.46 | | |
| LIBCAP | Library Sno-Isle BOND (Cap Fac Imp Area) | 0.0543427938 | $978,187 | $978,187 | $53.16 | | |
| POCOUP | Port of Coupeville GEN | 0.1093371703 | $978,187 | $978,187 | $106.95 | | |
| POCOUPIDD | Port of Coupeville IDD | 0.3409740022 | $978,187 | $978,187 | $333.54 | | |
| COUPSDTECH | School 204 CP (TECH) | 0.7545480007 | $978,187 | $978,187 | $738.09 | | |
| SCH204MO | School 204 Enrichment | 0.6716186034 | $978,187 | $978,187 | $656.97 | | |
| ST | State School | 1.3035497053 | $978,187 | $978,187 | $1,275.12 | | |
| ST2 | State School Part 2 | 0.8169543533 | $978,187 | $978,187 | $799.13 | | |
| | Total Tax Rate: | 7.6592568070 | | | | | |
| | | | | Taxes w/Current Exemptions: | $7,492.19 | | |
| | | | | Taxes w/o Exemptions: | $7,492.19 | | |
Improvement / Building
| Improvement #1: | RESIDENTIAL | State Code: | Y | 2487.0 sqft | Value: | $574,497 |
| Bathrooms: | 2.5 | Bedrooms: | 3 | | Ceiling: | DRYWALL PAINTED | Cooling: | HEAT PUMP/CONV/V | | Exterior Wall/Cover: | WOOD SIDING | Floor Covering: | HARDWOOD/CARP 80-20 | | Floor Structure: | WOOD W/SUBFLOOR | Foundation: | CONCRETE | | Interior Finish: | TONGUE & GROOVE DRYWALL 40/60 | Plumbing Fixture Cnt: | 13 | | Roof Slope: | 6" IN 12" | Roof Structure/Cover: | CJ ALUMINIUM HEAVY |
|
| | Type | Description | Class CD | Sub Class CD | Year Built | Area |
| | BAS | BASE/MAIN FLOOR | 4 | 0 | 1997 | 2487.0 |
| | OP1 | OPEN PORCH SLAB | 4 | 0 | 1997 | 2429.4 |
| | OP2 | OPEN PORCH W/STEPS | 4 | 0 | 1997 | 441.2 |
| | OP4 | OPEN PORCH W/CEILING-ROOF | 4 | 0 | 1997 | 56.0 |
Sketch
Property Image
Land
| 1 | 91 | UNDEVELOPED LAND-METES AND BOUNDS | 17.6000 | 766656.00 | 0.00 | 0.00 | 1.00 | $133,690 | $0 |
| 2 | HS | HOMESITE | 1.0000 | 43560.00 | 0.00 | 0.00 | 1.00 | $270,000 | $0 |
Roll Value History
| 2026 | N/A | N/A | N/A | N/A | N/A |
| 2025 | $574,497 | $403,690 | $0 | $978,187 | $978,187 |
| 2024 | $540,940 | $370,000 | $0 | $910,940 | $910,940 |
| 2023 | $547,598 | $350,000 | $0 | $897,598 | $897,598 |
| 2022 | $388,651 | $330,000 | $0 | $718,651 | $718,651 |
| 2021 | $342,112 | $260,000 | $0 | $602,112 | $602,112 |
| 2020 | $333,844 | $230,000 | $0 | $563,844 | $563,844 |
| 2019 | $258,716 | $260,000 | $0 | $518,716 | $518,716 |
| 2018 | $232,531 | $200,000 | $0 | $432,531 | $432,531 |
| 2017 | $233,914 | $200,000 | $0 | $433,914 | $433,914 |
| 2016 | $236,843 | $200,000 | $0 | $436,843 | $436,843 |
| 2015 | $239,772 | $280,000 | $0 | $519,772 | $519,772 |
| 2014 | $242,701 | $280,000 | $0 | $522,701 | $522,701 |
| 2013 | $245,630 | $280,000 | $0 | $525,630 | $525,630 |
| 2012 | $251,227 | $230,140 | $0 | $481,367 | $481,367 |
| 2011 | $254,172 | $255,640 | $0 | $509,812 | $509,812 |
| 2010 | $260,527 | $255,640 | $0 | $516,167 | $516,167 |
| 2009 | $271,570 | $374,640 | $0 | $646,210 | $646,210 |
| 2008 | $270,947 | $140,720 | $0 | $411,667 | $411,667 |
| 2007 | $274,063 | $140,720 | $0 | $414,783 | $414,783 |
Deed and Sales History
| 1 | 04/18/2023 | WD | Warranty Deed | JANNELLO, NOEL | LARSEN, NATHAN FREDERICK | | | $1,205,000.00 | 56475 | 4559106 |
| 2 | 03/04/2022 | QCD | Quit Claim Deed | JANNELLO, NOEL | JANNELLO, NOEL | | | $0.00 | 52227 | 4541206 |
| 3 | 12/10/2019 | QCD | Quit Claim Deed | JANNELLO, NOEL | JANNELLO, NOEL | | | $0.00 | 42296 | 4482465 |
| 4 | 11/01/1996 | WD | Warranty Deed | WHITMAN, RONALDA K | JANNELLO, NOEL | | | $85,000.00 | 64098 | 96020036 |
| 5 | 11/01/1996 | WD | Warranty Deed | JANNELLO, NOEL | JANNELLO, NOEL | | | $0.00 | 64100 | 96020038 |
| 6 | 10/01/1996 | ESTSEPPROP | Establish Separate Property | JANNELLO, NOEL | JANNELLO, NOEL | | | $0.00 | 64099 | 96020037 |
| 7 | 10/01/1993 | OTHER | Other - Misc. Documents | WHITMAN, RONALDA K | WHITMAN, RONALDA K | | | $0.00 | 65596 | 93019721 |
| 8 | 04/01/1988 | OTHER | Other - Misc. Documents | Unknown | WHITMAN, RONALDA K | | | $0.00 | 62598 | 0 |
Payout Agreement
| No payout information available.. |