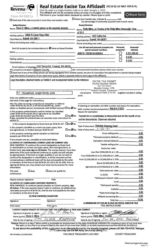
Property
Account |
| Property ID: | 687714 | Abbreviated Legal Description: | WOODLANDS - PRD LOT 5 |
| Geographic ID: | S8477-00-00005-0 | Agent Code: | |
| Type: | Real | | |
| Tax Area: | 710 - APPRAISER-S Whid Schl Dist, outside Langley, improved & 1 acre or less | Land Use Code | 11 |
| Open Space: | N | DFL | N |
| Historic Property: | N | Remodel Property: | N |
| Multi-Family Redevelopment: | N | | |
| Township: | | Section: | |
| Range: | |
Location |
| Address: | 3686 REDTAIL LN CLINTON, WA 98236 | Mapsco: | |
| Neighborhood: | Cycle 4 | Map ID: | 799 |
| Neighborhood CD: | 4 |
Owner |
| Name: | SHER, RON | Owner ID: | 256535 |
| Mailing Address: | EVA SHER SHER PARTNERS 4957 LAKEMONT BLVD SUITE C4-11 BELLEVUE, WA 98006 | % Ownership: | 100.0000000000% |
| | | Exemptions: | |
Taxes and Assessment Details
Values
| (+) Improvement Homesite Value: | + | $0 | |
| (+) Improvement Non-Homesite Value: | + | $95,439 | |
| (+) Land Homesite Value: | + | $0 | |
| (+) Land Non-Homesite Value: | + | $280,000 | |
| (+) Curr Use (HS): | + | $0 | $0 |
| (+) Curr Use (NHS): | + | $0 | $0 |
| | | -------------------------- | |
| (=) Market Value: | = | $375,439 | |
| (–) Productivity Loss: | – | $0 | |
| | | -------------------------- | |
| (=) Subtotal: | = | $375,439 | |
| (+) Senior Appraised Value: | + | $0 | |
| (+) Non-Senior Appraised Value: | + | $375,439 | |
| | | -------------------------- | |
| (=) Total Appraised Value: | = | $375,439 | |
| (–) Senior Exemption Loss: | – | $0 | |
| (–) Exemption Loss: | – | $0 | |
| | | -------------------------- | |
| (=) Taxable Value: | = | $375,439 | |
Taxing Jurisdiction
| Owner: | SHER, RON | | |
| % Ownership: | 100.0000000000% | | |
| Total Value: | $375,439 | | |
| Tax Area: | 710 - APPRAISER-S Whid Schl Dist, outside Langley, improved & 1 acre or less |
| CF | Conservation Futures | 0.0316035091 | $375,439 | $375,439 | $11.87 | | |
| FIRE3 | Fire & Rescue Dist #3 S Whidbey GEN | 1.2004855531 | $375,439 | $375,439 | $450.71 | | |
| HOBOND | Hospital BOND | 0.1910887512 | $375,439 | $375,439 | $71.74 | | |
| HOGEN | Hospital GEN | 0.3902502903 | $375,439 | $375,439 | $146.52 | | |
| CE | County Current Expense | 0.3708482477 | $375,439 | $375,439 | $139.23 | | |
| CR | County Roads | 0.4584763726 | $375,439 | $375,439 | $172.13 | | |
| ISLANDEMS | Hospital GEN (EMS) | 0.5000000000 | $375,439 | $375,439 | $187.72 | | |
| LIB | Library Sno-Isle GEN | 0.3153421757 | $375,439 | $375,439 | $118.39 | | |
| PORTWHID | Port of S Whidbey GEN | 0.1094540357 | $375,439 | $375,439 | $41.09 | | |
| SCH206BOND | School 206 BOND | 0.3161759235 | $375,439 | $375,439 | $118.70 | | |
| SCH206MO | School 206 Enrichment | 0.4547169547 | $375,439 | $375,439 | $170.72 | | |
| ST | State School | 1.3035497053 | $375,439 | $375,439 | $489.40 | | |
| ST2 | State School Part 2 | 0.8169543533 | $375,439 | $375,439 | $306.72 | | |
| SWHIDPRBD | P & R S Whidbey BOND | 0.0152817568 | $375,439 | $375,439 | $5.74 | | |
| SWHIDPRBD2 | P & R S Whidbey BOND2 | 0.0138911264 | $375,439 | $375,439 | $5.22 | | |
| SWHIDPRMT | P & R S Whidbey GEN | 0.2053334452 | $375,439 | $375,439 | $77.09 | | |
| | Total Tax Rate: | 6.6934522006 | | | | | |
| | | | | Taxes w/Current Exemptions: | $2,512.99 | | |
| | | | | Taxes w/o Exemptions: | $2,512.99 | | |
Improvement / Building
| Improvement #1: | RESIDENTIAL | State Code: | Y | 796.5 sqft | Value: | $95,439 |
| Bathrooms: | 1 | Bedrooms: | 0 | | Ceiling: | DRYWALL PAINTED | Exterior Wall/Cover: | WOOD SIDING | | Floor Covering: | VINYL 100% | Floor Structure: | SLAB ON GRADE | | Foundation: | SLAB | Interior Finish: | DRYWALL PAINT | | Plumbing Fixture Cnt: | 6 | Roof Slope: | 12" IN 12" | | Roof Structure/Cover: | CJ ASPHALT |   |   |
|
| | Type | Description | Class CD | Sub Class CD | Year Built | Area |
| | BAS | BASE/MAIN FLOOR | 2 | 0 | 1996 | 556.5 |
| | OWP | OPEN WOOD PORCH W/STEPS | 2 | 0 | 1996 | 294.0 |
| | LOF | LOFT | 2 | 0 | 1996 | 240.0 |
Sketch
Property Image
Land
| 1 | 16 | AC (00.51-01.00) | 0.0000 | 0.00 | 0.00 | 0.00 | 1.00 | $280,000 | $0 |
Roll Value History
| 2026 | N/A | N/A | N/A | N/A | N/A |
| 2025 | $95,439 | $280,000 | $0 | $375,439 | $375,439 |
| 2024 | $96,674 | $270,000 | $0 | $366,674 | $366,674 |
| 2023 | $97,910 | $260,000 | $0 | $357,910 | $357,910 |
| 2022 | $89,778 | $240,000 | $0 | $329,778 | $329,778 |
| 2021 | $79,041 | $160,000 | $0 | $239,041 | $239,041 |
| 2020 | $63,800 | $135,000 | $0 | $198,800 | $198,800 |
| 2019 | $45,780 | $210,000 | $0 | $255,780 | $255,780 |
| 2018 | $45,928 | $170,000 | $0 | $215,928 | $215,928 |
| 2017 | $46,225 | $150,000 | $0 | $196,225 | $196,225 |
| 2016 | $46,817 | $140,000 | $0 | $186,817 | $186,817 |
| 2015 | $47,410 | $140,000 | $0 | $187,410 | $187,410 |
| 2014 | $44,713 | $140,000 | $0 | $184,713 | $184,713 |
| 2013 | $45,265 | $140,000 | $0 | $185,265 | $185,265 |
| 2012 | $45,816 | $143,225 | $0 | $189,041 | $189,041 |
| 2011 | $46,369 | $168,500 | $0 | $214,869 | $214,869 |
| 2010 | $47,762 | $168,500 | $0 | $216,262 | $216,262 |
| 2009 | $49,770 | $185,000 | $0 | $234,770 | $234,770 |
| 2008 | $50,322 | $250,000 | $0 | $300,322 | $300,322 |
| 2007 | $50,875 | $250,000 | $0 | $300,875 | $300,875 |
Deed and Sales History
| 1 | 12/21/2011 | WD | Warranty Deed | MASON, JAMES C | SHER, RON | | | $125,000.00 | 6554 | 4307571 |
| 2 | 12/01/1996 | WD | Warranty Deed | RATEKIN, KENT & | MASON, JAMES C | | | $88,500.00 | 70025 | 97000064 |
| 3 | 06/01/1996 | WD | Warranty Deed | BEDROCK, INC | RATEKIN, KENT & | | | $80,000.00 | 62146 | 96010619 |
| 4 | 01/01/1900 | OTHER | Other - Misc. Documents | Unknown | BEDROCK, INC | | | $0.00 | 1597 | 90005200 |
Payout Agreement
| No payout information available.. |