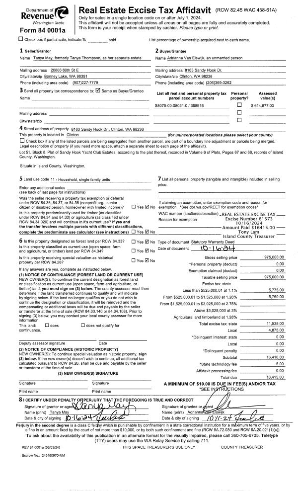
Property
Account |
| Property ID: | 687732 | Abbreviated Legal Description: | WOODLANDS - PRD LOT 7 |
| Geographic ID: | S8477-00-00007-0 | Agent Code: | |
| Type: | Real | | |
| Tax Area: | 710 - APPRAISER-S Whid Schl Dist, outside Langley, improved & 1 acre or less | Land Use Code | 11 |
| Open Space: | N | DFL | N |
| Historic Property: | N | Remodel Property: | N |
| Multi-Family Redevelopment: | N | | |
| Township: | | Section: | |
| Range: | |
Location |
| Address: | 3671 WOODLAND HALL LN CLINTON, WA 98236 | Mapsco: | |
| Neighborhood: | Cycle 4 | Map ID: | 799 |
| Neighborhood CD: | 4 |
Owner |
| Name: | PARDO, PATRICIO A CONTRERAS | Owner ID: | 317100 |
| Mailing Address: | ABBY HARPER MILLER RUBIN 3771 WOODLAND HALL LN CLINTON, WA 98236 | % Ownership: | 100.0000000000% |
| | | Exemptions: | |
Taxes and Assessment Details
Values
| (+) Improvement Homesite Value: | + | $0 | |
| (+) Improvement Non-Homesite Value: | + | $325,889 | |
| (+) Land Homesite Value: | + | $0 | |
| (+) Land Non-Homesite Value: | + | $280,000 | |
| (+) Curr Use (HS): | + | $0 | $0 |
| (+) Curr Use (NHS): | + | $0 | $0 |
| | | -------------------------- | |
| (=) Market Value: | = | $605,889 | |
| (–) Productivity Loss: | – | $0 | |
| | | -------------------------- | |
| (=) Subtotal: | = | $605,889 | |
| (+) Senior Appraised Value: | + | $0 | |
| (+) Non-Senior Appraised Value: | + | $605,889 | |
| | | -------------------------- | |
| (=) Total Appraised Value: | = | $605,889 | |
| (–) Senior Exemption Loss: | – | $0 | |
| (–) Exemption Loss: | – | $0 | |
| | | -------------------------- | |
| (=) Taxable Value: | = | $605,889 | |
Taxing Jurisdiction
| Owner: | PARDO, PATRICIO A CONTRERAS | | |
| % Ownership: | 100.0000000000% | | |
| Total Value: | $605,889 | | |
| Tax Area: | 710 - APPRAISER-S Whid Schl Dist, outside Langley, improved & 1 acre or less |
| CF | Conservation Futures | 0.0316035091 | $605,889 | $605,889 | $19.15 | | |
| FIRE3 | Fire & Rescue Dist #3 S Whidbey GEN | 1.2004855531 | $605,889 | $605,889 | $727.36 | | |
| HOBOND | Hospital BOND | 0.1910887512 | $605,889 | $605,889 | $115.78 | | |
| HOGEN | Hospital GEN | 0.3902502903 | $605,889 | $605,889 | $236.45 | | |
| CE | County Current Expense | 0.3708482477 | $605,889 | $605,889 | $224.69 | | |
| CR | County Roads | 0.4584763726 | $605,889 | $605,889 | $277.79 | | |
| ISLANDEMS | Hospital GEN (EMS) | 0.5000000000 | $605,889 | $605,889 | $302.94 | | |
| LIB | Library Sno-Isle GEN | 0.3153421757 | $605,889 | $605,889 | $191.06 | | |
| PORTWHID | Port of S Whidbey GEN | 0.1094540357 | $605,889 | $605,889 | $66.32 | | |
| SCH206BOND | School 206 BOND | 0.3161759235 | $605,889 | $605,889 | $191.57 | | |
| SCH206MO | School 206 Enrichment | 0.4547169547 | $605,889 | $605,889 | $275.51 | | |
| ST | State School | 1.3035497053 | $605,889 | $605,889 | $789.81 | | |
| ST2 | State School Part 2 | 0.8169543533 | $605,889 | $605,889 | $494.98 | | |
| SWHIDPRBD | P & R S Whidbey BOND | 0.0152817568 | $605,889 | $605,889 | $9.26 | | |
| SWHIDPRBD2 | P & R S Whidbey BOND2 | 0.0138911264 | $605,889 | $605,889 | $8.42 | | |
| SWHIDPRMT | P & R S Whidbey GEN | 0.2053334452 | $605,889 | $605,889 | $124.41 | | |
| | Total Tax Rate: | 6.6934522006 | | | | | |
| | | | | Taxes w/Current Exemptions: | $4,055.50 | | |
| | | | | Taxes w/o Exemptions: | $4,055.50 | | |
Improvement / Building
| Improvement #1: | RESIDENTIAL | State Code: | Y | 1334.0 sqft | Value: | $325,889 |
| Bathrooms: | 2 | Bedrooms: | 2 | | Ceiling: | DRYWALL PAINTED | Exterior Wall/Cover: | WOOD SIDING | | Floor Covering: | HARDWOOD 100% | Floor Structure: | WOOD W/SUBFLOOR | | Foundation: | CONCRETE | Heating: | FHA GAS | | Interior Finish: | DRYWALL PAINT | Plumbing Fixture Cnt: | 8 | | Roof Slope: | 12" IN 12" | Roof Structure/Cover: | CJ ASPHALT |
|
| | Type | Description | Class CD | Sub Class CD | Year Built | Area |
| | BAS | BASE/MAIN FLOOR | 4 | 0 | 1995 | 758.0 |
| | UTY | STORAGE/UTILITY | 4 | 0 | 1995 | 480.0 |
| | UPS | UPPER STORY | 4 | 0 | 1995 | 576.0 |
| | OWC | OPEN WOOD PORCH W/STEPS/ROOF/C | 4 | 0 | 1995 | 60.0 |
| | UTY | STORAGE/UTILITY | 4 | 0 | 1995 | 30.0 |
| | OP3 | OPEN PORCH W/ROOF | 4 | 0 | 1995 | 242.0 |
| | ENP | ENCLOSED PORCH | 4 | 0 | 1995 | 140.0 |
Sketch
Property Image
Land
| 1 | 15 | SQ (12001-21780) | 0.0000 | 0.00 | 0.00 | 0.00 | 1.00 | $280,000 | $0 |
Roll Value History
| 2026 | N/A | N/A | N/A | N/A | N/A |
| 2025 | $325,889 | $280,000 | $0 | $605,889 | $605,889 |
| 2024 | $329,951 | $270,000 | $0 | $599,951 | $599,951 |
| 2023 | $334,009 | $260,000 | $0 | $594,009 | $594,009 |
| 2022 | $306,120 | $240,000 | $0 | $546,120 | $546,120 |
| 2021 | $269,397 | $160,000 | $0 | $429,397 | $429,397 |
| 2020 | $243,229 | $135,000 | $0 | $378,229 | $378,229 |
| 2019 | $178,972 | $210,000 | $0 | $388,972 | $388,972 |
| 2018 | $179,511 | $170,000 | $0 | $349,511 | $349,511 |
| 2017 | $180,590 | $150,000 | $0 | $330,590 | $330,590 |
| 2016 | $182,750 | $140,000 | $0 | $322,750 | $322,750 |
| 2015 | $184,910 | $140,000 | $0 | $324,910 | $324,910 |
| 2014 | $184,464 | $140,000 | $0 | $324,464 | $324,464 |
| 2013 | $186,692 | $140,000 | $0 | $326,692 | $326,692 |
| 2012 | $188,919 | $140,250 | $0 | $329,169 | $329,169 |
| 2011 | $191,148 | $165,000 | $0 | $356,148 | $356,148 |
| 2010 | $203,008 | $170,000 | $0 | $373,008 | $373,008 |
| 2009 | $210,448 | $186,623 | $0 | $397,071 | $397,071 |
| 2008 | $215,278 | $250,000 | $0 | $465,278 | $465,278 |
| 2007 | $218,792 | $250,000 | $0 | $468,792 | $468,792 |
Deed and Sales History
| 1 | 04/04/2025 | WD | Warranty Deed | DALZELL, SUZANNAH V | PARDO, PATRICIO A CONTRERAS | | | $775,000.00 | 63086 | 4584318 |
| 2 | 10/12/2006 | WD | Warranty Deed | LOWRY, PRISCILLA | DALZELL, SUZANNAH V | | | $475,000.00 | 64579 | 4185218 |
| 3 | 04/29/2004 | ESTSEPPROP | Establish Separate Property | LOWRY, PRISCILLA | LOWRY, PRISCILLA | | | $0.00 | 41741 | 4098849 |
| 4 | 04/25/2001 | ESTSEPPROP | Establish Separate Property | LOWRY, PRISCILLA | LOWRY, PRISCILLA | | | $0.00 | 11722 | 20032475 |
| 5 | 05/22/2000 | ESTSEPPROP | Establish Separate Property | LOWRY, PRISCILLA | LOWRY, PRISCILLA | | | $0.00 | 1863 | 20008985 |
| 6 | 05/19/2000 | WD | Warranty Deed | NW EXCHANGE & TRUSTEE INC, | LOWRY, PRISCILLA | | | $265,000.00 | 1862 | 20008986 |
| 7 | 02/02/2000 | QCD | Quit Claim Deed | STUCHELL, DAWN T | NW EXCHANGE & TRUSTEE INC, | | | $0.00 | 482 | 20002486 |
| 8 | 04/01/1995 | WD | Warranty Deed | BEDROCK, INC | STUCHELL, DAWN T | | | $65,000.00 | 51268 | 95005985 |
| 9 | 01/01/1900 | OTHER | Other - Misc. Documents | Unknown | BEDROCK, INC | | | $0.00 | 1597 | 90005200 |
| 10 | 01/01/1900 | OTHER | Other - Misc. Documents | STUCHELL, DAWN T | STUCHELL, DAWN T | | | $0.00 | 0 | 0 |
Payout Agreement
| No payout information available.. |