Property
Account |
| Property ID: | 68795 | Abbreviated Legal Description: | 23 - N100' OF S400' OF SW NW LY W OF CO RD TGW PT OF GL1 SEC 31 LY BTWN N & S LNS OF ABOVE DESC TR PROD W TO PUGET SOUND |
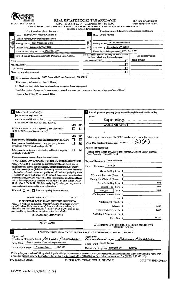
| Geographic ID: | R23032-304-0610 | Agent Code: | |
| Type: | Real | | |
| Tax Area: | 312 - APPRAISER-Cpvl Schl Dist, outside Cpvl, improved, greater than 1 acre | Land Use Code | 11 |
| Open Space: | N | DFL | N |
| Historic Property: | N | Remodel Property: | N |
| Multi-Family Redevelopment: | N | | |
| Township: | 30 | Section: | 32 |
| Range: | R2 |
Location |
| Address: | 4576 SMUGGLERS COVE RD FREELAND, WA 98249 | Mapsco: | |
| Neighborhood: | Cycle 3 | Map ID: | 433 |
| Neighborhood CD: | 3 |
Owner |
| Name: | NEUMAYER TTEE, KATHLEEN M | Owner ID: | 292481 |
| Mailing Address: | MAIRANN MIRAMONTES, TTEE 7337 RIO HONDO PL DOWNEY, CA 90241 | % Ownership: | 100.0000000000% |
| | | Exemptions: | |
Taxes and Assessment Details
Values
| (+) Improvement Homesite Value: | + | $0 | |
| (+) Improvement Non-Homesite Value: | + | $281,053 | |
| (+) Land Homesite Value: | + | $0 | |
| (+) Land Non-Homesite Value: | + | $556,500 | |
| (+) Curr Use (HS): | + | $0 | $0 |
| (+) Curr Use (NHS): | + | $0 | $0 |
| | | -------------------------- | |
| (=) Market Value: | = | $837,553 | |
| (–) Productivity Loss: | – | $0 | |
| | | -------------------------- | |
| (=) Subtotal: | = | $837,553 | |
| (+) Senior Appraised Value: | + | $0 | |
| (+) Non-Senior Appraised Value: | + | $837,553 | |
| | | -------------------------- | |
| (=) Total Appraised Value: | = | $837,553 | |
| (–) Senior Exemption Loss: | – | $0 | |
| (–) Exemption Loss: | – | $0 | |
| | | -------------------------- | |
| (=) Taxable Value: | = | $837,553 | |
Taxing Jurisdiction
| Owner: | NEUMAYER TTEE, KATHLEEN M | | |
| % Ownership: | 100.0000000000% | | |
| Total Value: | $837,553 | | |
| Tax Area: | 312 - APPRAISER-Cpvl Schl Dist, outside Cpvl, improved, greater than 1 acre |
| CF | Conservation Futures | 0.0316035091 | $837,553 | $837,553 | $26.47 | | |
| CEM2 | Cemetery #2 | 0.0095056933 | $837,553 | $837,553 | $7.96 | | |
| FIRE5 | Fire & Rescue Dist #5 C Whidbey GEN | 1.2008080668 | $837,553 | $837,553 | $1,005.74 | | |
| FIRE5BOND | Fire & Rescue Dist #5 C Whidbey BOND | 0.1400090713 | $837,553 | $837,553 | $117.27 | | |
| HOBOND | Hospital BOND | 0.1910887512 | $837,553 | $837,553 | $160.05 | | |
| HOGEN | Hospital GEN | 0.3902502903 | $837,553 | $837,553 | $326.86 | | |
| CE | County Current Expense | 0.3708482477 | $837,553 | $837,553 | $310.61 | | |
| CR | County Roads | 0.4584763726 | $837,553 | $837,553 | $384.00 | | |
| ISLANDEMS | Hospital GEN (EMS) | 0.5000000000 | $837,553 | $837,553 | $418.78 | | |
| LIB | Library Sno-Isle GEN | 0.3153421757 | $837,553 | $837,553 | $264.12 | | |
| LIBCAP | Library Sno-Isle BOND (Cap Fac Imp Area) | 0.0543427938 | $837,553 | $837,553 | $45.51 | | |
| POCOUP | Port of Coupeville GEN | 0.1093371703 | $837,553 | $837,553 | $91.58 | | |
| POCOUPIDD | Port of Coupeville IDD | 0.3409740022 | $837,553 | $837,553 | $285.58 | | |
| COUPSDTECH | School 204 CP (TECH) | 0.7545480007 | $837,553 | $837,553 | $631.97 | | |
| SCH204MO | School 204 Enrichment | 0.6716186034 | $837,553 | $837,553 | $562.52 | | |
| ST | State School | 1.3035497053 | $837,553 | $837,553 | $1,091.79 | | |
| ST2 | State School Part 2 | 0.8169543533 | $837,553 | $837,553 | $684.24 | | |
| | Total Tax Rate: | 7.6592568070 | | | | | |
| | | | | Taxes w/Current Exemptions: | $6,415.05 | | |
| | | | | Taxes w/o Exemptions: | $6,415.05 | | |
Improvement / Building
| Improvement #1: | RESIDENTIAL | State Code: | Y | 992.0 sqft | Value: | $145,280 |
| Bathrooms: | 1 | Bedrooms: | 2 | | Exterior Wall/Cover: | WD SIDING/WOOD FRAME | Floor Covering: | VINYL TILE/CARP 20-80 | | Floor Structure: | WOOD W/SUBFLOOR | Foundation: | CONCRETE | | Heating: | WALL HEAT ELECTRIC | Interior Finish: | DRYWALL PAINT | | Plumbing Fixture Cnt: | 8 | Roof Slope: | 3" IN 12" | | Roof Structure/Cover: | BEAM BUILT-UP ROCK |   |   |
|
| | Type | Description | Class CD | Sub Class CD | Year Built | Area |
| | BAS | BASE/MAIN FLOOR | 3 | 0 | 1979 | 992.0 |
| | OCP | OPEN CARPORT | 3 | 0 | 1979 | 464.0 |
| | UTY | STORAGE/UTILITY | 3 | 0 | 1979 | 40.0 |
| | OWP | OPEN WOOD PORCH W/STEPS | 3 | 0 | 1979 | 753.0 |
| | OWC | OPEN WOOD PORCH W/STEPS/ROOF/C | 3 | 0 | 1979 | 32.0 |
| Improvement #2: | RESIDENTIAL | State Code: | Y | 1104.0 sqft | Value: | $135,773 |
| Bathrooms: | 1 | Bedrooms: | 1 | | Ceiling: | DRYWALL PAINTED | Exterior Wall/Cover: | PLY/HARDBOARD T-111 | | Floor Covering: | CARPET/VINYL 80-20 | Floor Structure: | WOOD W/SUBFLOOR | | Foundation: | CONCRETE | Heating: | FHA GAS | | Interior Finish: | DRYWALL PAINT | Plumbing Fixture Cnt: | 6 | | Roof Slope: | 4" IN 12" | Roof Structure/Cover: | CJ ALUMINIUM HEAVY |
|
| | Type | Description | Class CD | Sub Class CD | Year Built | Area |
| | BAS | BASE/MAIN FLOOR | 3 | 0 | 1990 | 720.0 |
| | OWP | OPEN WOOD PORCH W/STEPS | 3 | 0 | 1990 | 138.0 |
| | OWP | OPEN WOOD PORCH W/STEPS | 3 | 0 | 1990 | 322.0 |
| | LOF | LOFT | 3 | 0 | 1990 | 384.0 |
Sketch
Property Image
Land
| 1 | HB | HIGH BLUFF | 0.0000 | 0.00 | 100.00 | 0.00 | 1.00 | $556,500 | $0 |
Roll Value History
| 2026 | N/A | N/A | N/A | N/A | N/A |
| 2025 | $281,053 | $556,500 | $0 | $837,553 | $837,553 |
| 2024 | $285,112 | $525,000 | $0 | $810,112 | $810,112 |
| 2023 | $289,170 | $500,000 | $0 | $789,170 | $789,170 |
| 2022 | $265,061 | $480,000 | $0 | $745,061 | $745,061 |
| 2021 | $233,685 | $400,000 | $0 | $633,685 | $633,685 |
| 2020 | $227,540 | $400,000 | $0 | $627,540 | $627,540 |
| 2019 | $191,646 | $450,000 | $0 | $641,646 | $641,646 |
| 2018 | $192,292 | $400,000 | $0 | $592,292 | $592,292 |
| 2017 | $193,584 | $350,000 | $0 | $543,584 | $543,584 |
| 2016 | $196,169 | $350,000 | $0 | $546,169 | $546,169 |
| 2015 | $198,753 | $350,000 | $0 | $548,753 | $548,753 |
| 2014 | $201,337 | $350,000 | $0 | $551,337 | $551,337 |
| 2013 | $204,697 | $293,078 | $0 | $497,775 | $497,775 |
| 2012 | $207,289 | $293,078 | $0 | $500,367 | $500,367 |
| 2011 | $209,885 | $293,078 | $0 | $502,963 | $502,963 |
| 2010 | $191,435 | $293,078 | $0 | $484,513 | $484,513 |
| 2009 | $200,029 | $390,771 | $0 | $590,800 | $590,800 |
| 2008 | $201,886 | $391,896 | $0 | $593,782 | $593,782 |
| 2007 | $134,947 | $247,324 | $0 | $382,271 | $382,271 |
Deed and Sales History
| 1 | 10/02/2019 | GRANTD | Grant Deed | NEUMAYER, STEVEN J / KATHLEEN | NEUMAYER TTEE, KATHLEEN M | | | $0.00 | 40993 | 4474900 |
| 2 | 10/25/2001 | WD | Warranty Deed | NEUMAYER, STEVEN J | NEUMAYER, STEVEN J/KATHLEEN | | | $0.00 | 20588 | 4012690 |
| 3 | 07/01/1994 | WD | Warranty Deed | NEUMAYER, STEVEN J | NEUMAYER, STEVEN J | | | $0.00 | 43218 | 94017298 |
| 4 | 10/01/1989 | WD | Warranty Deed | TAYLOR, MILDRED L | NEUMAYER, STEVEN J | | | $225,000.00 | 94870 | 89015748 |
| 5 | 08/01/1989 | QCD | Quit Claim Deed | TAYLOR, WARREN J | TAYLOR, MILDRED L | | | $0.00 | 93614 | 89012087 |
| 6 | 11/01/1969 | EXECUTORD | Executor Deed | IDEAL, INVESTMENTS I | TAYLOR, WARREN J | | | $0.00 | 37271 | 0 |
| 7 | 01/01/1900 | OTHER | Other - Misc. Documents | Unknown | IDEAL, INVESTMENTS I | | | $0.00 | 0 | 0 |
Payout Agreement
| No payout information available.. |