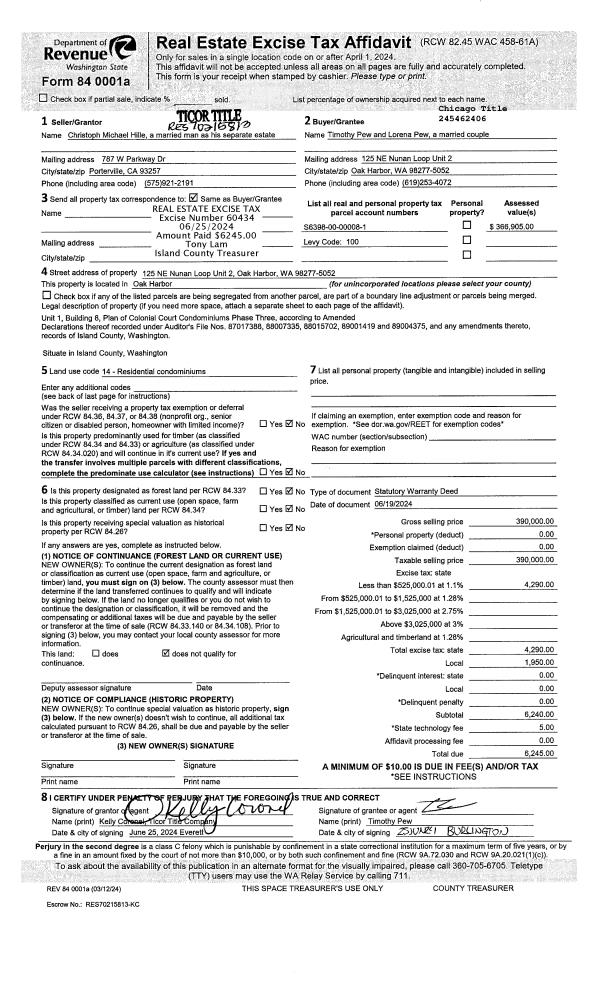
Property
Account |
| Property ID: | 687974 | Abbreviated Legal Description: | LOT 2 OH-SP 3.93.13335.140-4520 V2 SP P420 AF#93020935 |
| Geographic ID: | R13335-144-4550 | Agent Code: | |
| Type: | Real | | |
| Tax Area: | 100 - APPRAISER-OH Schl Dist, in OH | Land Use Code | 11 |
| Open Space: | N | DFL | N |
| Historic Property: | N | Remodel Property: | N |
| Multi-Family Redevelopment: | N | | |
| Township: | 33 | Section: | 35 |
| Range: | R1 |
Location |
| Address: | 359 NE O'LEARY ST OAK HARBOR, WA 98277 | Mapsco: | |
| Neighborhood: | Cycle 1 | Map ID: | 257 |
| Neighborhood CD: | 1 |
Owner |
| Name: | HUTCHENS, HARRISON | Owner ID: | 278856 |
| Mailing Address: | ANNA HENDRICKS 2622 MILANO WY FALLON, NV 89406 | % Ownership: | 100.0000000000% |
| | | Exemptions: | |
Taxes and Assessment Details
Values
| (+) Improvement Homesite Value: | + | $0 | |
| (+) Improvement Non-Homesite Value: | + | $229,453 | |
| (+) Land Homesite Value: | + | $0 | |
| (+) Land Non-Homesite Value: | + | $180,000 | |
| (+) Curr Use (HS): | + | $0 | $0 |
| (+) Curr Use (NHS): | + | $0 | $0 |
| | | -------------------------- | |
| (=) Market Value: | = | $409,453 | |
| (–) Productivity Loss: | – | $0 | |
| | | -------------------------- | |
| (=) Subtotal: | = | $409,453 | |
| (+) Senior Appraised Value: | + | $0 | |
| (+) Non-Senior Appraised Value: | + | $409,453 | |
| | | -------------------------- | |
| (=) Total Appraised Value: | = | $409,453 | |
| (–) Senior Exemption Loss: | – | $0 | |
| (–) Exemption Loss: | – | $0 | |
| | | -------------------------- | |
| (=) Taxable Value: | = | $409,453 | |
Taxing Jurisdiction
| Owner: | HUTCHENS, HARRISON | | |
| % Ownership: | 100.0000000000% | | |
| Total Value: | $409,453 | | |
| Tax Area: | 100 - APPRAISER-OH Schl Dist, in OH |
| CF | Conservation Futures | 0.0316035091 | $409,453 | $409,453 | $12.94 | | |
| CEM1 | Cemetery #1 | 0.0040320932 | $409,453 | $409,453 | $1.65 | | |
| COH | City of Oak Harbor | 2.3001546061 | $409,453 | $409,453 | $941.81 | | |
| OAKBOND | City of Oak Harbor BOND | 0.1926904192 | $409,453 | $409,453 | $78.90 | | |
| HOBOND | Hospital BOND | 0.1910887512 | $409,453 | $409,453 | $78.24 | | |
| HOGEN | Hospital GEN | 0.3902502903 | $409,453 | $409,453 | $159.79 | | |
| CE | County Current Expense | 0.3708482477 | $409,453 | $409,453 | $151.84 | | |
| ISLANDEMS | Hospital GEN (EMS) | 0.5000000000 | $409,453 | $409,453 | $204.73 | | |
| LIB | Library Sno-Isle GEN | 0.3153421757 | $409,453 | $409,453 | $129.12 | | |
| NWHIDPRMT | P & R N Whidbey GEN | 0.2004466701 | $409,453 | $409,453 | $82.07 | | |
| SCH201MO | School 201 Enrichment | 1.8559231640 | $409,453 | $409,453 | $759.91 | | |
| ST | State School | 1.3035497053 | $409,453 | $409,453 | $533.74 | | |
| ST2 | State School Part 2 | 0.8169543533 | $409,453 | $409,453 | $334.50 | | |
| | Total Tax Rate: | 8.4728839852 | | | | | |
| | | | | Taxes w/Current Exemptions: | $3,469.24 | | |
| | | | | Taxes w/o Exemptions: | $3,469.24 | | |
Improvement / Building
| Improvement #1: | RESIDENTIAL | State Code: | Y | 1171.0 sqft | Value: | $229,453 |
| Bathrooms: | 2 | Bedrooms: | 3 | | Ceiling: | DRYWALL PAINTED | Exterior Wall/Cover: | PLY/HARDBOARD T-111 | | Floor Covering: | SOFTWOOD/VINYL 80-20 | Floor Structure: | WOOD W/SUBFLOOR | | Foundation: | CONCRETE | Heating: | FHA GAS | | Interior Finish: | DRYWALL PAINT | Plumbing Fixture Cnt: | 10 | | Roof Slope: | 4" IN 12" | Roof Structure/Cover: | CJ ASPHALT |
|
| | Type | Description | Class CD | Sub Class CD | Year Built | Area |
| | BAS | BASE/MAIN FLOOR | 3 | 0 | 1994 | 1171.0 |
| | OP1 | OPEN PORCH SLAB | 3 | 0 | 1994 | 110.0 |
| | OP1 | OPEN PORCH SLAB | 3 | 0 | 1994 | 80.0 |
| | AGR | ATTACHED GARAGE | 3 | 0 | 1994 | 484.0 |
Sketch
Property Image
Land
| 1 | 13 | SQ (06001-08000) | 0.1600 | 6969.60 | 0.00 | 0.00 | 1.00 | $180,000 | $0 |
Roll Value History
| 2026 | N/A | N/A | N/A | N/A | N/A |
| 2025 | $229,453 | $180,000 | $0 | $409,453 | $409,453 |
| 2024 | $232,384 | $170,000 | $0 | $402,384 | $402,384 |
| 2023 | $226,798 | $170,000 | $0 | $396,798 | $396,798 |
| 2022 | $208,029 | $160,000 | $0 | $368,029 | $368,029 |
| 2021 | $183,213 | $120,000 | $0 | $303,213 | $303,213 |
| 2020 | $178,106 | $100,000 | $0 | $278,106 | $278,106 |
| 2019 | $125,637 | $160,000 | $0 | $285,637 | $285,637 |
| 2018 | $126,024 | $125,000 | $0 | $251,024 | $251,024 |
| 2017 | $126,797 | $110,000 | $0 | $236,797 | $236,797 |
| 2016 | $113,765 | $90,000 | $0 | $203,765 | $203,765 |
| 2015 | $115,224 | $70,000 | $0 | $185,224 | $185,224 |
| 2014 | $116,682 | $55,000 | $0 | $171,682 | $171,682 |
| 2013 | $118,140 | $55,000 | $0 | $173,140 | $173,140 |
| 2012 | $119,599 | $65,000 | $0 | $184,599 | $184,599 |
| 2011 | $120,966 | $50,000 | $0 | $170,966 | $170,966 |
| 2010 | $125,856 | $50,000 | $0 | $175,856 | $175,856 |
| 2009 | $131,318 | $67,230 | $0 | $198,548 | $198,548 |
| 2008 | $132,974 | $81,000 | $0 | $213,974 | $213,974 |
| 2007 | $134,690 | $81,000 | $0 | $215,690 | $215,690 |
Deed and Sales History
| 1 | 03/07/2017 | WD | Warranty Deed | ALMACEN, WINSTON S / DOLORES | HUTCHENS, HARRISON | | | $255,000.00 | 28377 | 4418603 |
| 2 | 12/01/1994 | WD | Warranty Deed | ISLAND, CONSTRUCTION I | ALMACEN, WINSTON S | | | $129,500.00 | 45065 | 94025833 |
| 3 | 01/01/1994 | WD | Warranty Deed | BIG, ROCK P | ISLAND, CONSTRUCTION I | | | $31,375.00 | 40078 | 94000442 |
| 4 | 01/01/1900 | OTHER | Other - Misc. Documents | Unknown | BIG, ROCK P | | | $0.00 | 33949 | 93020529 |
Payout Agreement
| No payout information available.. |