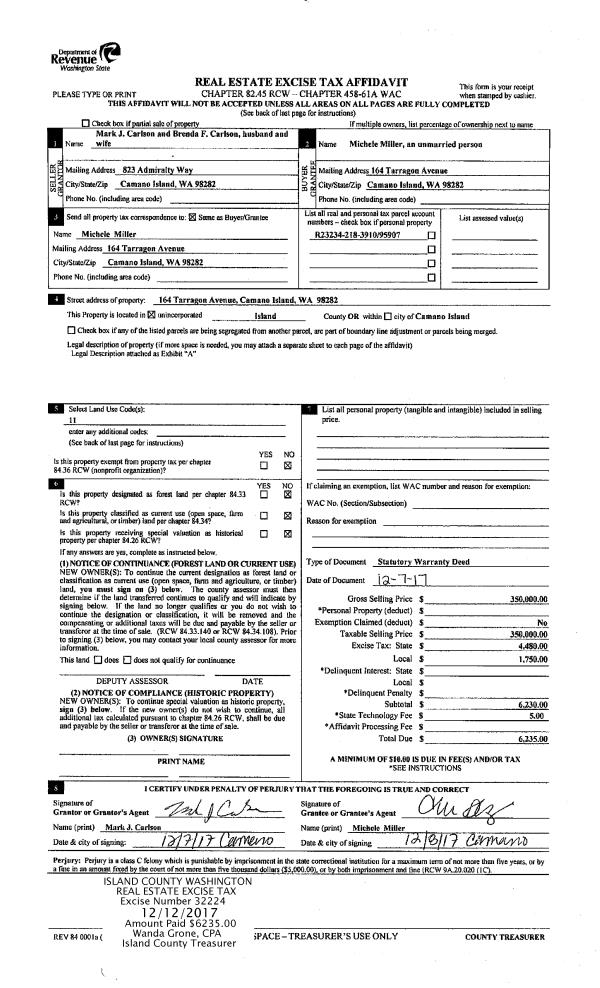
Property
Account |
| Property ID: | 687983 | Abbreviated Legal Description: | LOT 3 OH-SP 3.93.13335.140-4520 V2 SP P420 AF#93020935 |
| Geographic ID: | R13335-135-4560 | Agent Code: | |
| Type: | Real | | |
| Tax Area: | 100 - APPRAISER-OH Schl Dist, in OH | Land Use Code | 11 |
| Open Space: | N | DFL | N |
| Historic Property: | N | Remodel Property: | N |
| Multi-Family Redevelopment: | N | | |
| Township: | 33 | Section: | 35 |
| Range: | R1 |
Location |
| Address: | 387 NE NUNAN LOOP OAK HARBOR, WA 98277 | Mapsco: | |
| Neighborhood: | Cycle 1 | Map ID: | 257 |
| Neighborhood CD: | 1 |
Owner |
| Name: | PABUSTAN, MICHAEL I | Owner ID: | 266294 |
| Mailing Address: | 387 NE NUNAN LOOP OAK HARBOR, WA 98277 | % Ownership: | 100.0000000000% |
| | | Exemptions: | |
Taxes and Assessment Details
Values
| (+) Improvement Homesite Value: | + | $0 | |
| (+) Improvement Non-Homesite Value: | + | $221,635 | |
| (+) Land Homesite Value: | + | $0 | |
| (+) Land Non-Homesite Value: | + | $180,000 | |
| (+) Curr Use (HS): | + | $0 | $0 |
| (+) Curr Use (NHS): | + | $0 | $0 |
| | | -------------------------- | |
| (=) Market Value: | = | $401,635 | |
| (–) Productivity Loss: | – | $0 | |
| | | -------------------------- | |
| (=) Subtotal: | = | $401,635 | |
| (+) Senior Appraised Value: | + | $0 | |
| (+) Non-Senior Appraised Value: | + | $401,635 | |
| | | -------------------------- | |
| (=) Total Appraised Value: | = | $401,635 | |
| (–) Senior Exemption Loss: | – | $0 | |
| (–) Exemption Loss: | – | $0 | |
| | | -------------------------- | |
| (=) Taxable Value: | = | $401,635 | |
Taxing Jurisdiction
| Owner: | PABUSTAN, MICHAEL I | | |
| % Ownership: | 100.0000000000% | | |
| Total Value: | $401,635 | | |
| Tax Area: | 100 - APPRAISER-OH Schl Dist, in OH |
| CF | Conservation Futures | 0.0316035091 | $401,635 | $401,635 | $12.69 | | |
| CEM1 | Cemetery #1 | 0.0040320932 | $401,635 | $401,635 | $1.62 | | |
| COH | City of Oak Harbor | 2.3001546061 | $401,635 | $401,635 | $923.82 | | |
| OAKBOND | City of Oak Harbor BOND | 0.1926904192 | $401,635 | $401,635 | $77.39 | | |
| HOBOND | Hospital BOND | 0.1910887512 | $401,635 | $401,635 | $76.75 | | |
| HOGEN | Hospital GEN | 0.3902502903 | $401,635 | $401,635 | $156.74 | | |
| CE | County Current Expense | 0.3708482477 | $401,635 | $401,635 | $148.95 | | |
| ISLANDEMS | Hospital GEN (EMS) | 0.5000000000 | $401,635 | $401,635 | $200.82 | | |
| LIB | Library Sno-Isle GEN | 0.3153421757 | $401,635 | $401,635 | $126.65 | | |
| NWHIDPRMT | P & R N Whidbey GEN | 0.2004466701 | $401,635 | $401,635 | $80.51 | | |
| SCH201MO | School 201 Enrichment | 1.8559231640 | $401,635 | $401,635 | $745.40 | | |
| ST | State School | 1.3035497053 | $401,635 | $401,635 | $523.55 | | |
| ST2 | State School Part 2 | 0.8169543533 | $401,635 | $401,635 | $328.12 | | |
| | Total Tax Rate: | 8.4728839852 | | | | | |
| | | | | Taxes w/Current Exemptions: | $3,403.01 | | |
| | | | | Taxes w/o Exemptions: | $3,403.01 | | |
Improvement / Building
| Improvement #1: | RESIDENTIAL | State Code: | Y | 1232.0 sqft | Value: | $221,635 |
| Bathrooms: | 2 | Bedrooms: | 3 | | Ceiling: | DRYWALL PAINTED | Exterior Wall/Cover: | PLY/HARDBOARD T-111 | | Floor Covering: | CARPET/VINYL 80-20 | Floor Structure: | WOOD W/SUBFLOOR | | Foundation: | CONCRETE | Heating: | FHA GAS | | Interior Finish: | DRYWALL PAINT | Plumbing Fixture Cnt: | 9 | | Roof Slope: | 4" IN 12" | Roof Structure/Cover: | CJ ASPHALT |
|
| | Type | Description | Class CD | Sub Class CD | Year Built | Area |
| | BAS | BASE/MAIN FLOOR | 3 | 0 | 1995 | 1232.0 |
| | OP1 | OPEN PORCH SLAB | 3 | 0 | 1995 | 110.0 |
| | OP1 | OPEN PORCH SLAB | 3 | 0 | 1995 | 80.0 |
| | AGR | ATTACHED GARAGE | 3 | 0 | 1995 | 484.0 |
Sketch
Property Image
Land
| 1 | 13 | SQ (06001-08000) | 0.1800 | 7840.80 | 0.00 | 0.00 | 1.00 | $180,000 | $0 |
Roll Value History
| 2026 | N/A | N/A | N/A | N/A | N/A |
| 2025 | $221,635 | $180,000 | $0 | $401,635 | $401,635 |
| 2024 | $224,504 | $170,000 | $0 | $394,504 | $394,504 |
| 2023 | $215,976 | $170,000 | $0 | $385,976 | $385,976 |
| 2022 | $198,167 | $160,000 | $0 | $358,167 | $358,167 |
| 2021 | $174,582 | $120,000 | $0 | $294,582 | $294,582 |
| 2020 | $169,947 | $100,000 | $0 | $269,947 | $269,947 |
| 2019 | $120,916 | $160,000 | $0 | $280,916 | $280,916 |
| 2018 | $121,296 | $125,000 | $0 | $246,296 | $246,296 |
| 2017 | $118,912 | $110,000 | $0 | $228,912 | $228,912 |
| 2016 | $120,455 | $90,000 | $0 | $210,455 | $210,455 |
| 2015 | $122,000 | $70,000 | $0 | $192,000 | $192,000 |
| 2014 | $123,544 | $55,000 | $0 | $178,544 | $178,544 |
| 2013 | $125,089 | $55,000 | $0 | $180,089 | $180,089 |
| 2012 | $126,632 | $65,000 | $0 | $191,632 | $191,632 |
| 2011 | $128,225 | $50,000 | $0 | $178,225 | $178,225 |
| 2010 | $132,747 | $50,000 | $0 | $182,747 | $182,747 |
| 2009 | $138,471 | $67,230 | $0 | $205,701 | $205,701 |
| 2008 | $140,143 | $81,000 | $0 | $221,143 | $221,143 |
| 2007 | $141,814 | $81,000 | $0 | $222,814 | $222,814 |
Deed and Sales History
| 1 | 05/30/2014 | WD | Warranty Deed | LISAMA, OLIVER E | PABUSTAN, MICHAEL I | | | $173,000.00 | 15546 | 4360446 |
| 2 | 09/22/2006 | WD | Warranty Deed | TATUM, PAUL | LISAMA, OLIVER E | | | $238,000.00 | 64182 | 4182956 |
| 3 | 10/18/2005 | WD | Warranty Deed | VELLESES, KOMO K | TATUM, PAUL | | | $234,000.00 | 55317 | 4151643 |
| 4 | 09/16/2004 | WD | Warranty Deed | ANDERSON, ANITA W | VELLESES, KOMO K | | | $173,200.00 | 44398 | 4113314 |
| 5 | 07/13/1999 | DECREE | Divorce Decree/Legal Separation | ANDERSON, ANITA W/ERIC E | ANDERSON, ANITA W | | | $0.00 | 68366 | 0 |
| 6 | 08/01/1994 | WD | Warranty Deed | ISLAND, CONSTRUCTION I | ANDERSON, ANITA W | | | $131,000.00 | 43258 | 94017520 |
| 7 | 01/01/1994 | WD | Warranty Deed | BIG, ROCK P | ISLAND, CONSTRUCTION I | | | $31,375.00 | 40078 | 94000442 |
| 8 | 01/01/1900 | OTHER | Other - Misc. Documents | Unknown | BIG, ROCK P | | | $0.00 | 33949 | 93020529 |
Payout Agreement
| No payout information available.. |