Property
Account |
| Property ID: | 687992 | Abbreviated Legal Description: | LOT 4 OH-SP 3.93.13335.140-4520 V2 SP P420 AF#93020935 |
| Geographic ID: | R13335-135-4470 | Agent Code: | |
| Type: | Real | | |
| Tax Area: | 100 - APPRAISER-OH Schl Dist, in OH | Land Use Code | 11 |
| Open Space: | N | DFL | N |
| Historic Property: | N | Remodel Property: | N |
| Multi-Family Redevelopment: | N | | |
| Township: | 33 | Section: | 35 |
| Range: | R1 |
Location |
| Address: | 371 NE NUNAN LOOP OAK HARBOR, WA 98277 | Mapsco: | |
| Neighborhood: | Cycle 1 | Map ID: | 257 |
| Neighborhood CD: | 1 |
Owner |
| Name: | SANTOS, BLANCA E | Owner ID: | 289191 |
| Mailing Address: | XAVIER REYES 371 NE NUNAN LOOP OAK HARBOR, WA 98277 | % Ownership: | 100.0000000000% |
| | | Exemptions: | |
Taxes and Assessment Details
Values
| (+) Improvement Homesite Value: | + | $0 | |
| (+) Improvement Non-Homesite Value: | + | $217,413 | |
| (+) Land Homesite Value: | + | $0 | |
| (+) Land Non-Homesite Value: | + | $180,000 | |
| (+) Curr Use (HS): | + | $0 | $0 |
| (+) Curr Use (NHS): | + | $0 | $0 |
| | | -------------------------- | |
| (=) Market Value: | = | $397,413 | |
| (–) Productivity Loss: | – | $0 | |
| | | -------------------------- | |
| (=) Subtotal: | = | $397,413 | |
| (+) Senior Appraised Value: | + | $0 | |
| (+) Non-Senior Appraised Value: | + | $397,413 | |
| | | -------------------------- | |
| (=) Total Appraised Value: | = | $397,413 | |
| (–) Senior Exemption Loss: | – | $0 | |
| (–) Exemption Loss: | – | $0 | |
| | | -------------------------- | |
| (=) Taxable Value: | = | $397,413 | |
Taxing Jurisdiction
| Owner: | SANTOS, BLANCA E | | |
| % Ownership: | 100.0000000000% | | |
| Total Value: | $397,413 | | |
| Tax Area: | 100 - APPRAISER-OH Schl Dist, in OH |
| CF | Conservation Futures | 0.0316035091 | $397,413 | $397,413 | $12.56 | | |
| CEM1 | Cemetery #1 | 0.0040320932 | $397,413 | $397,413 | $1.60 | | |
| COH | City of Oak Harbor | 2.3001546061 | $397,413 | $397,413 | $914.11 | | |
| OAKBOND | City of Oak Harbor BOND | 0.1926904192 | $397,413 | $397,413 | $76.58 | | |
| HOBOND | Hospital BOND | 0.1910887512 | $397,413 | $397,413 | $75.94 | | |
| HOGEN | Hospital GEN | 0.3902502903 | $397,413 | $397,413 | $155.09 | | |
| CE | County Current Expense | 0.3708482477 | $397,413 | $397,413 | $147.38 | | |
| ISLANDEMS | Hospital GEN (EMS) | 0.5000000000 | $397,413 | $397,413 | $198.71 | | |
| LIB | Library Sno-Isle GEN | 0.3153421757 | $397,413 | $397,413 | $125.32 | | |
| NWHIDPRMT | P & R N Whidbey GEN | 0.2004466701 | $397,413 | $397,413 | $79.66 | | |
| SCH201MO | School 201 Enrichment | 1.8559231640 | $397,413 | $397,413 | $737.57 | | |
| ST | State School | 1.3035497053 | $397,413 | $397,413 | $518.05 | | |
| ST2 | State School Part 2 | 0.8169543533 | $397,413 | $397,413 | $324.67 | | |
| | Total Tax Rate: | 8.4728839852 | | | | | |
| | | | | Taxes w/Current Exemptions: | $3,367.24 | | |
| | | | | Taxes w/o Exemptions: | $3,367.24 | | |
Improvement / Building
| Improvement #1: | RESIDENTIAL | State Code: | Y | 1171.0 sqft | Value: | $217,413 |
| Bathrooms: | 2 | Bedrooms: | 3 | | Ceiling: | DRYWALL PAINTED | Exterior Wall/Cover: | PLY/HARDBOARD T-111 | | Floor Covering: | CARPET/VINYL 80-20 | Floor Structure: | WOOD W/SUBFLOOR | | Foundation: | CONCRETE | Heating: | FHA GAS | | Interior Finish: | DRYWALL PAINT | Plumbing Fixture Cnt: | 9 | | Roof Slope: | 4" IN 12" | Roof Structure/Cover: | CJ ASPHALT |
|
| | Type | Description | Class CD | Sub Class CD | Year Built | Area |
| | BAS | BASE/MAIN FLOOR | 3 | 0 | 1994 | 1171.0 |
| | OP1 | OPEN PORCH SLAB | 3 | 0 | 1994 | 100.0 |
| | AGR | ATTACHED GARAGE | 3 | 0 | 1994 | 484.0 |
| | OWP | OPEN WOOD PORCH W/STEPS | 3 | 0 | 1994 | 70.0 |
| | OP4 | OPEN PORCH W/CEILING-ROOF | 3 | 0 | 1994 | 18.0 |
Sketch
Property Image
Land
| 1 | 13 | SQ (06001-08000) | 0.1800 | 7840.80 | 0.00 | 0.00 | 1.00 | $180,000 | $0 |
Roll Value History
| 2026 | N/A | N/A | N/A | N/A | N/A |
| 2025 | $217,413 | $180,000 | $0 | $397,413 | $397,413 |
| 2024 | $220,228 | $170,000 | $0 | $390,228 | $390,228 |
| 2023 | $214,315 | $170,000 | $0 | $384,315 | $384,315 |
| 2022 | $196,649 | $160,000 | $0 | $356,649 | $356,649 |
| 2021 | $173,240 | $120,000 | $0 | $293,240 | $293,240 |
| 2020 | $168,619 | $100,000 | $0 | $268,619 | $268,619 |
| 2019 | $120,102 | $160,000 | $0 | $280,102 | $280,102 |
| 2018 | $120,479 | $125,000 | $0 | $245,479 | $245,479 |
| 2017 | $112,604 | $110,000 | $0 | $222,604 | $222,604 |
| 2016 | $114,047 | $90,000 | $0 | $204,047 | $204,047 |
| 2015 | $115,490 | $70,000 | $0 | $185,490 | $185,490 |
| 2014 | $116,935 | $55,000 | $0 | $171,935 | $171,935 |
| 2013 | $118,379 | $55,000 | $0 | $173,379 | $173,379 |
| 2012 | $119,822 | $65,000 | $0 | $184,822 | $184,822 |
| 2011 | $121,685 | $50,000 | $0 | $171,685 | $171,685 |
| 2010 | $127,624 | $50,000 | $0 | $177,624 | $177,624 |
| 2009 | $133,086 | $67,230 | $0 | $200,316 | $200,316 |
| 2008 | $134,788 | $81,000 | $0 | $215,788 | $215,788 |
| 2007 | $136,525 | $81,000 | $0 | $217,525 | $217,525 |
Deed and Sales History
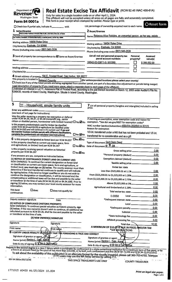
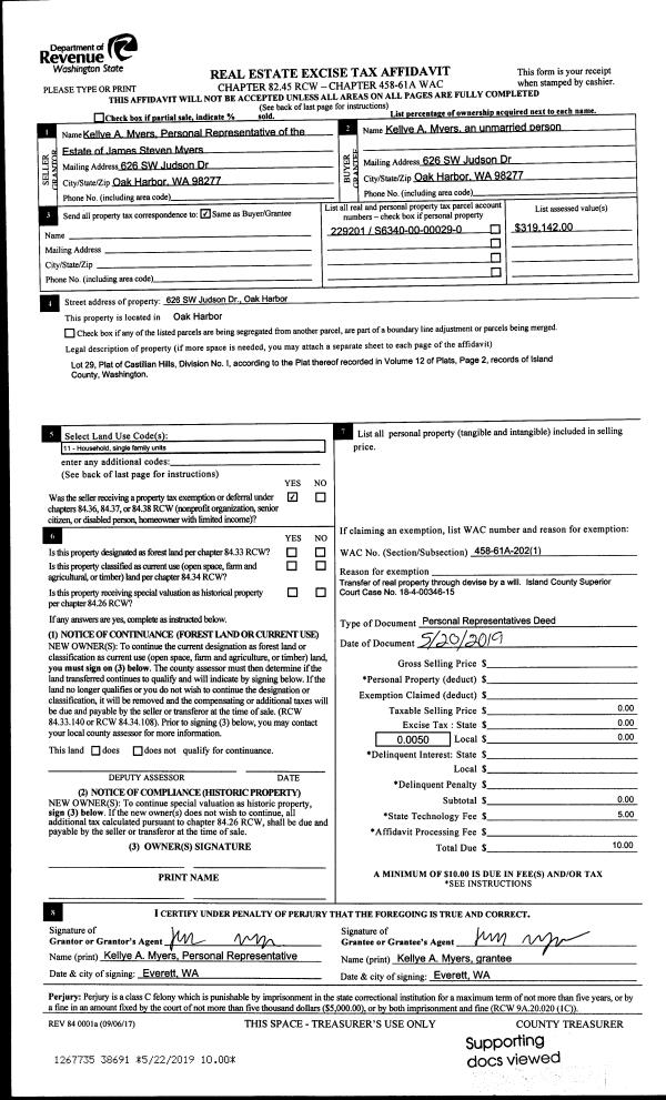
| 1 | 03/05/2019 | WD | Warranty Deed | VILLANUEVA, PETER A | SANTOS, BLANCA E | | | $268,500.00 | 37935 | 4460820 |
| 2 | 06/17/2014 | WD | Warranty Deed | BRANAM, BRIAN R | VILLANUEVA, PETER A | | | $200,000.00 | 15726 | 4361216 |
| 3 | 11/01/1994 | WD | Warranty Deed | ISLAND, CONSTRUCTION I | BRANAM, BRIAN R | | | $129,750.00 | 44841 | 94024669 |
| 4 | 01/01/1994 | WD | Warranty Deed | BIG, ROCK P | ISLAND, CONSTRUCTION I | | | $31,375.00 | 40078 | 94000442 |
| 5 | 01/01/1900 | OTHER | Other - Misc. Documents | Unknown | BIG, ROCK P | | | $0.00 | 33949 | 93020529 |
Payout Agreement
| No payout information available.. |