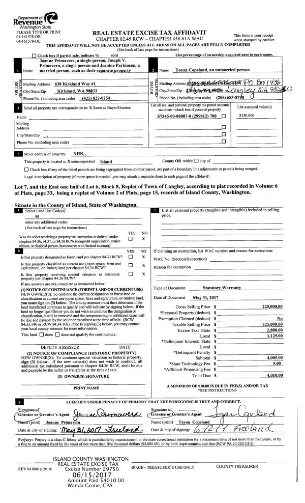
Property
Account |
| Property ID: | 688349 | Abbreviated Legal Description: | LOT 2 SP 7-93.33227.320-1000 V2 SP P422 AF#93021737 |
| Geographic ID: | R33227-320-0870 | Agent Code: | |
| Type: | Real | | |
| Tax Area: | 512 - APPRAISER-Stan/Cam Schl Dist, improved, greater than 1 acre | Land Use Code | 11 |
| Open Space: | N | DFL | N |
| Historic Property: | N | Remodel Property: | N |
| Multi-Family Redevelopment: | N | | |
| Township: | 32 | Section: | 27 |
| Range: | R3 |
Location |
| Address: | 1277 RANCH RD CAMANO ISLAND, WA 98282 | Mapsco: | |
| Neighborhood: | Cycle 5 | Map ID: | 978 |
| Neighborhood CD: | 5 |
Owner |
| Name: | LEUSCHEL III, OTTO H | Owner ID: | 281372 |
| Mailing Address: | 1277 RANCH RD CAMANO ISLAND, WA 98282 | % Ownership: | 100.0000000000% |
| | | Exemptions: | |
Taxes and Assessment Details
Values
| (+) Improvement Homesite Value: | + | $0 | |
| (+) Improvement Non-Homesite Value: | + | $826,447 | |
| (+) Land Homesite Value: | + | $0 | |
| (+) Land Non-Homesite Value: | + | $360,000 | |
| (+) Curr Use (HS): | + | $0 | $0 |
| (+) Curr Use (NHS): | + | $0 | $0 |
| | | -------------------------- | |
| (=) Market Value: | = | $1,186,447 | |
| (–) Productivity Loss: | – | $0 | |
| | | -------------------------- | |
| (=) Subtotal: | = | $1,186,447 | |
| (+) Senior Appraised Value: | + | $0 | |
| (+) Non-Senior Appraised Value: | + | $1,186,447 | |
| | | -------------------------- | |
| (=) Total Appraised Value: | = | $1,186,447 | |
| (–) Senior Exemption Loss: | – | $0 | |
| (–) Exemption Loss: | – | $0 | |
| | | -------------------------- | |
| (=) Taxable Value: | = | $1,186,447 | |
Taxing Jurisdiction
| Owner: | LEUSCHEL III, OTTO H | | |
| % Ownership: | 100.0000000000% | | |
| Total Value: | $1,186,447 | | |
| Tax Area: | 512 - APPRAISER-Stan/Cam Schl Dist, improved, greater than 1 acre |
| CF | Conservation Futures | 0.0316035091 | $1,186,447 | $1,186,447 | $37.50 | | |
| EMS1 | Fire & Rescue Dist #1 Camano GEN (EMS) | 0.3677864386 | $1,186,447 | $1,186,447 | $436.36 | | |
| FIRE1 | Fire & Rescue Dist #1 Camano GEN | 1.2502910536 | $1,186,447 | $1,186,447 | $1,483.40 | | |
| FIRE1BOND | Fire & Rescue Dist #1 Camano BOND | 0.1570001679 | $1,186,447 | $1,186,447 | $186.27 | | |
| CE | County Current Expense | 0.3708482477 | $1,186,447 | $1,186,447 | $439.99 | | |
| CR | County Roads | 0.4584763726 | $1,186,447 | $1,186,447 | $543.96 | | |
| LCIB | Library Sno-Isle BOND (Camano Island) | 0.0396325772 | $1,186,447 | $1,186,447 | $47.02 | | |
| LIB | Library Sno-Isle GEN | 0.3153421757 | $1,186,447 | $1,186,447 | $374.14 | | |
| SCH205_401 | School 205-401 Enrichment | 1.2698420524 | $1,186,447 | $1,186,447 | $1,506.60 | | |
| SCH205BOND | School 205-401 BOND | 0.9396497583 | $1,186,447 | $1,186,447 | $1,114.84 | | |
| ST | State School | 1.3035497053 | $1,186,447 | $1,186,447 | $1,546.59 | | |
| ST2 | State School Part 2 | 0.8169543533 | $1,186,447 | $1,186,447 | $969.27 | | |
| | Total Tax Rate: | 7.3209764117 | | | | | |
| | | | | Taxes w/Current Exemptions: | $8,685.94 | | |
| | | | | Taxes w/o Exemptions: | $8,685.94 | | |
Improvement / Building
| Improvement #1: | RESIDENTIAL | State Code: | Y | 3058.0 sqft | Value: | $826,447 |
| Bathrooms: | 2.5 | Bedrooms: | 3 | | Ceiling: | DRYWALL PAINTED | Cooling: | HEAT PUMP/CONV/V | | Exterior Wall/Cover: | WOOD SIDING | Floor Covering: | HARDWOOD/CARP 60-40 | | Floor Structure: | WOOD W/SUBFLOOR | Foundation: | CONCRETE | | Interior Finish: | DRYWALL PAINT | Plumbing Fixture Cnt: | 16 | | Roof Slope: | 12" IN 12" | Roof Structure/Cover: | STEEL TERNE |
|
| | Type | Description | Class CD | Sub Class CD | Year Built | Area |
| | BAS | BASE/MAIN FLOOR | 4 | 0 | 1997 | 1814.0 |
| | OP4 | OPEN PORCH W/CEILING-ROOF | 4 | 0 | 1997 | 208.0 |
| | OWC | OPEN WOOD PORCH W/STEPS/ROOF/C | 4 | 0 | 1997 | 56.0 |
| | OWC | OPEN WOOD PORCH W/STEPS/ROOF/C | 4 | 0 | 1997 | 44.0 |
| | BIG | BUILT IN GARAGE | 4 | 0 | 1997 | 624.0 |
| | OWP | OPEN WOOD PORCH W/STEPS | 4 | 0 | 1997 | 336.0 |
| | UPS | UPPER STORY | 4 | 0 | 1997 | 1244.0 |
| | DGR | DETACHED GARAGE | 4 | 0 | 1997 | 1728.0 |
Sketch
Property Image
Land
| 1 | 32 | AC (03.01-09.99) | 5.0000 | 0.00 | 0.00 | 0.00 | 1.00 | $360,000 | $0 |
Roll Value History
| 2026 | N/A | N/A | N/A | N/A | N/A |
| 2025 | $826,447 | $360,000 | $0 | $1,186,447 | $1,186,447 |
| 2024 | $836,141 | $340,000 | $0 | $1,176,141 | $1,176,141 |
| 2023 | $845,836 | $320,000 | $0 | $1,165,836 | $1,165,836 |
| 2022 | $774,705 | $300,000 | $0 | $1,074,705 | $1,074,705 |
| 2021 | $643,092 | $230,000 | $0 | $873,092 | $873,092 |
| 2020 | $627,507 | $190,000 | $0 | $817,507 | $817,507 |
| 2019 | $495,597 | $220,000 | $0 | $715,597 | $715,597 |
| 2018 | $497,033 | $190,000 | $0 | $687,033 | $687,033 |
| 2017 | $417,844 | $150,000 | $0 | $567,844 | $567,844 |
| 2016 | $422,573 | $135,000 | $0 | $557,573 | $557,573 |
| 2015 | $390,589 | $135,000 | $0 | $525,589 | $525,589 |
| 2014 | $394,773 | $135,000 | $0 | $529,773 | $529,773 |
| 2013 | $398,955 | $112,000 | $0 | $510,955 | $510,955 |
| 2012 | $403,139 | $112,000 | $0 | $515,139 | $515,139 |
| 2011 | $407,323 | $140,000 | $0 | $547,323 | $547,323 |
| 2010 | $419,143 | $140,000 | $0 | $559,143 | $559,143 |
| 2009 | $448,100 | $160,000 | $0 | $608,100 | $608,100 |
| 2008 | $466,484 | $175,000 | $0 | $641,484 | $641,484 |
| 2007 | $471,995 | $160,000 | $0 | $631,995 | $631,995 |
Deed and Sales History
| 1 | 08/09/2017 | WD | Warranty Deed | KVAM, ERIK & PAULA | LEUSCHEL III, OTTO H | | | $700,000.00 | 30591 | 4427945 |
| 2 | 07/01/1996 | WD | Warranty Deed | SHORT, WILLIAM T | KVAM, ERIK & | | | $76,500.00 | 62668 | 96013104 |
| 3 | 06/01/1996 | QCD | Quit Claim Deed | SHORT, WILLIAM T | SHORT, WILLIAM T | | | $0.00 | 62032 | 96010076 |
| 4 | 12/01/1993 | QCD | Quit Claim Deed | SHORT, WILLIAM T | SHORT, WILLIAM T | | | $0.00 | 40169 | 94000958 |
| 5 | 01/01/1900 | OTHER | Other - Misc. Documents | Unknown | SHORT, WILLIAM T | | | $0.00 | 25008 | 92024741 |
Payout Agreement
| No payout information available.. |