Property
Account |
| Property ID: | 688394 | Abbreviated Legal Description: | IN NE NE: BG PT NLN SEC 23 300'WLY FR NECR SEC 23 MEAS ALG NLN S1*W418' S88*E30' S27*W69.26'TPB S49*W450.97' N88*W291' N0*E300.04' S88*E 630'TPB SUB EZ (TR D) FR 470-4350 |
| Geographic ID: | R22923-470-4550 | Agent Code: | |
| Type: | Real | | |
| Tax Area: | 719 - APPRAISER-S Whid Schl Dist, outside Langley, vacant & 50 acres or less | Land Use Code | 91 |
| Open Space: | N | DFL | N |
| Historic Property: | N | Remodel Property: | N |
| Multi-Family Redevelopment: | N | | |
| Township: | 29 | Section: | 23 |
| Range: | R2 |
Location |
| Address: | 6055 MOONRISE LN FREELAND, WA 98249 | Mapsco: | |
| Neighborhood: | Cycle 3 | Map ID: | 341 |
| Neighborhood CD: | 3 |
Owner |
| Name: | JEPPESEN, CRAIG A | Owner ID: | 274467 |
| Mailing Address: | DINA I JEPPESEN 6234 E MERCER WAY MERCER ISLAND, WA 98040 | % Ownership: | 100.0000000000% |
| | | Exemptions: | |
Taxes and Assessment Details
Values
| (+) Improvement Homesite Value: | + | $0 | |
| (+) Improvement Non-Homesite Value: | + | $0 | |
| (+) Land Homesite Value: | + | $0 | |
| (+) Land Non-Homesite Value: | + | $330,000 | |
| (+) Curr Use (HS): | + | $0 | $0 |
| (+) Curr Use (NHS): | + | $0 | $0 |
| | | -------------------------- | |
| (=) Market Value: | = | $330,000 | |
| (–) Productivity Loss: | – | $0 | |
| | | -------------------------- | |
| (=) Subtotal: | = | $330,000 | |
| (+) Senior Appraised Value: | + | $0 | |
| (+) Non-Senior Appraised Value: | + | $330,000 | |
| | | -------------------------- | |
| (=) Total Appraised Value: | = | $330,000 | |
| (–) Senior Exemption Loss: | – | $0 | |
| (–) Exemption Loss: | – | $0 | |
| | | -------------------------- | |
| (=) Taxable Value: | = | $330,000 | |
Taxing Jurisdiction
| Owner: | JEPPESEN, CRAIG A | | |
| % Ownership: | 100.0000000000% | | |
| Total Value: | $330,000 | | |
| Tax Area: | 719 - APPRAISER-S Whid Schl Dist, outside Langley, vacant & 50 acres or less |
| CF | Conservation Futures | 0.0316035091 | $330,000 | $330,000 | $10.43 | | |
| HOBOND | Hospital BOND | 0.1910887512 | $330,000 | $330,000 | $63.06 | | |
| HOGEN | Hospital GEN | 0.3902502903 | $330,000 | $330,000 | $128.78 | | |
| CE | County Current Expense | 0.3708482477 | $330,000 | $330,000 | $122.38 | | |
| CR | County Roads | 0.4584763726 | $330,000 | $330,000 | $151.30 | | |
| ISLANDEMS | Hospital GEN (EMS) | 0.5000000000 | $330,000 | $330,000 | $165.00 | | |
| LIB | Library Sno-Isle GEN | 0.3153421757 | $330,000 | $330,000 | $104.06 | | |
| PORTWHID | Port of S Whidbey GEN | 0.1094540357 | $330,000 | $330,000 | $36.12 | | |
| SCH206BOND | School 206 BOND | 0.3161759235 | $330,000 | $330,000 | $104.34 | | |
| SCH206MO | School 206 Enrichment | 0.4547169547 | $330,000 | $330,000 | $150.06 | | |
| ST | State School | 1.3035497053 | $330,000 | $330,000 | $430.17 | | |
| ST2 | State School Part 2 | 0.8169543533 | $330,000 | $330,000 | $269.59 | | |
| SWHIDPRBD | P & R S Whidbey BOND | 0.0152817568 | $330,000 | $330,000 | $5.04 | | |
| SWHIDPRBD2 | P & R S Whidbey BOND2 | 0.0138911264 | $330,000 | $330,000 | $4.58 | | |
| SWHIDPRMT | P & R S Whidbey GEN | 0.2053334452 | $330,000 | $330,000 | $67.76 | | |
| | Total Tax Rate: | 5.4929666475 | | | | | |
| | | | | Taxes w/Current Exemptions: | $1,812.67 | | |
| | | | | Taxes w/o Exemptions: | $1,812.67 | | |
Improvement / Building
Sketch
| No sketches available for this property. |
Property Image
Land
| 1 | 32 | AC (03.01-09.99) | 3.1800 | 0.00 | 0.00 | 0.00 | 1.00 | $330,000 | $0 |
Roll Value History
| 2026 | N/A | N/A | N/A | N/A | N/A |
| 2025 | $0 | $330,000 | $0 | $330,000 | $330,000 |
| 2024 | $0 | $330,000 | $0 | $330,000 | $330,000 |
| 2023 | $0 | $300,000 | $0 | $300,000 | $300,000 |
| 2022 | $0 | $300,000 | $0 | $300,000 | $300,000 |
| 2021 | $0 | $250,000 | $0 | $250,000 | $250,000 |
| 2020 | $0 | $250,000 | $0 | $250,000 | $250,000 |
| 2019 | $0 | $250,000 | $0 | $250,000 | $250,000 |
| 2018 | $0 | $220,000 | $0 | $220,000 | $220,000 |
| 2017 | $0 | $250,000 | $0 | $250,000 | $250,000 |
| 2016 | $0 | $250,000 | $0 | $250,000 | $250,000 |
| 2015 | $0 | $79,500 | $0 | $79,500 | $79,500 |
| 2014 | $0 | $79,500 | $0 | $79,500 | $79,500 |
| 2013 | $0 | $79,500 | $0 | $79,500 | $79,500 |
| 2012 | $0 | $79,500 | $0 | $79,500 | $79,500 |
| 2011 | $0 | $79,500 | $0 | $79,500 | $79,500 |
| 2010 | $0 | $79,500 | $0 | $79,500 | $79,500 |
| 2009 | $0 | $170,000 | $0 | $170,000 | $170,000 |
| 2008 | $0 | $371,200 | $0 | $371,200 | $371,200 |
| 2007 | $0 | $371,200 | $0 | $371,200 | $371,200 |
Deed and Sales History
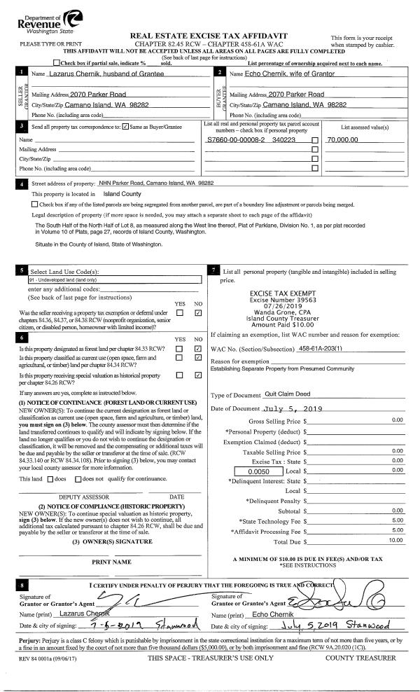
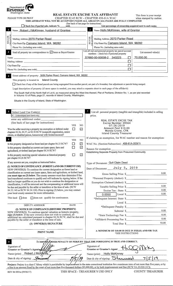
| 1 | 08/30/2019 | WD | Warranty Deed | MCCOY, TERESA J | JEPPESEN, CRAIG A | | | $475,000.00 | 40132 | 4470809 |
| 2 | 08/20/2019 | QCD | Quit Claim Deed | HILEMAN, KEVIN | MCCOY, TERESA J | | | $0.00 | 40131 | 4470808 |
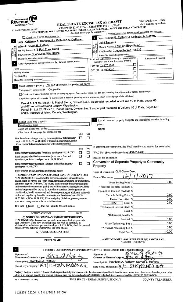
| 3 | 11/21/2017 | WD | Warranty Deed | KAHN, EUGENE B | MCCOY, TERESA J | | | $475,000.00 | 32088 | 4434927 |
| 4 | 05/28/2015 | WD | Warranty Deed | SCHREUDER, JEANNE | KAHN, EUGENE B | | | $405,000.00 | 19766 | 4379327 |
| 5 | 01/22/2010 | WD | Warranty Deed | RESTORATION RANCH FOUNDATION, | SCHREUDER, JEANNE | | | $410,000.00 | 209 | 4267849 |
| 6 | 09/19/2009 | QCD | Quit Claim Deed | DUFF REVOCABLE LIVING TRUST NU | RESTORATION RANCH FOUNDATION, | | | $0.00 | 92295 | 4260889 |
| 7 | 05/11/2000 | QCD | Quit Claim Deed | DUFF, GRETCHEN R | DUFF REVOCABLE LIVING TRUST NU | | | $0.00 | 2385 | 20011360 |
| 8 | 10/01/1993 | WD | Warranty Deed | DUFF, KARL M | DUFF, GRETCHEN R | | | $0.00 | 34600 | 93024045 |
| 9 | 10/01/1993 | WD | Warranty Deed | DUFF, KARL M | DUFF, KARL M | | | $0.00 | 34281 | 93022267 |
| 10 | 10/01/1993 | WD | Warranty Deed | DUFF, KARL M | DUFF, KARL M | | | $0.00 | 34280 | 93022268 |
| 11 | 01/01/1900 | OTHER | Other - Misc. Documents | Unknown | DUFF, KARL M | | | $0.00 | 34026 | 93020916 |
Payout Agreement
| No payout information available.. |