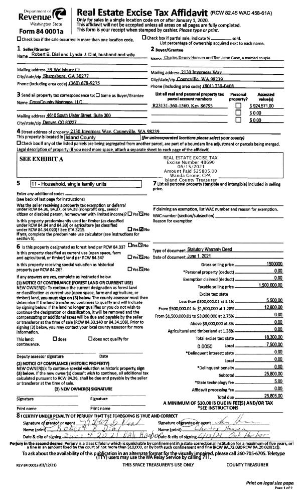
Property
Account |
| Property ID: | 689133 | Abbreviated Legal Description: | PT NE NW: BG SECR NE NW CC 93-2-00069-8 V8 SUR P318 AF#93021639 S0*E1252.80'FR N/4 CR SEC 25 N89*W191.74' N13*W7.60' N88*W121.30' N87*W204.22'TPB N87*W179.30 TO ELN HEGGENES RD NLY & ELY N0*W31.59' N89*E10' N0*W51.89'CUR/R NELY ALG SD CUR/R 45.10' N86*E13 |
| Geographic ID: | R32925-382-1900 | Agent Code: | |
| Type: | Real | | |
| Tax Area: | 720 - APPRAISER-S Whid Schl Dist, Special District, improved & less than 1 acre | Land Use Code | 11 |
| Open Space: | N | DFL | N |
| Historic Property: | N | Remodel Property: | N |
| Multi-Family Redevelopment: | N | | |
| Township: | 29 | Section: | 25 |
| Range: | R3 |
Location |
| Address: | 6505 HEGGENES RD CLINTON, WA 98236 | Mapsco: | |
| Neighborhood: | Cycle 4 | Map ID: | 814 |
| Neighborhood CD: | 4 |
Owner |
| Name: | MIDKIFF, BRYON | Owner ID: | 254743 |
| Mailing Address: | NICOLE MIDKIFF 6707 COLUMBIA BEACH DR CLINTON, WA 98236 | % Ownership: | 100.0000000000% |
| | | Exemptions: | |
Taxes and Assessment Details
Values
| (+) Improvement Homesite Value: | + | $0 | |
| (+) Improvement Non-Homesite Value: | + | $108,969 | |
| (+) Land Homesite Value: | + | $0 | |
| (+) Land Non-Homesite Value: | + | $250,000 | |
| (+) Curr Use (HS): | + | $0 | $0 |
| (+) Curr Use (NHS): | + | $0 | $0 |
| | | -------------------------- | |
| (=) Market Value: | = | $358,969 | |
| (–) Productivity Loss: | – | $0 | |
| | | -------------------------- | |
| (=) Subtotal: | = | $358,969 | |
| (+) Senior Appraised Value: | + | $0 | |
| (+) Non-Senior Appraised Value: | + | $358,969 | |
| | | -------------------------- | |
| (=) Total Appraised Value: | = | $358,969 | |
| (–) Senior Exemption Loss: | – | $0 | |
| (–) Exemption Loss: | – | $0 | |
| | | -------------------------- | |
| (=) Taxable Value: | = | $358,969 | |
Taxing Jurisdiction
| Owner: | MIDKIFF, BRYON | | |
| % Ownership: | 100.0000000000% | | |
| Total Value: | $358,969 | | |
| Tax Area: | 720 - APPRAISER-S Whid Schl Dist, Special District, improved & less than 1 acre |
| CF | Conservation Futures | 0.0316035091 | $358,969 | $358,969 | $11.34 | | |
| FIRE3 | Fire & Rescue Dist #3 S Whidbey GEN | 1.2004855531 | $358,969 | $358,969 | $430.94 | | |
| HOBOND | Hospital BOND | 0.1910887512 | $358,969 | $358,969 | $68.59 | | |
| HOGEN | Hospital GEN | 0.3902502903 | $358,969 | $358,969 | $140.09 | | |
| CE | County Current Expense | 0.3708482477 | $358,969 | $358,969 | $133.12 | | |
| CR | County Roads | 0.4584763726 | $358,969 | $358,969 | $164.58 | | |
| ISLANDEMS | Hospital GEN (EMS) | 0.5000000000 | $358,969 | $358,969 | $179.48 | | |
| LIB | Library Sno-Isle GEN | 0.3153421757 | $358,969 | $358,969 | $113.20 | | |
| PORTWHID | Port of S Whidbey GEN | 0.1094540357 | $358,969 | $358,969 | $39.29 | | |
| SCH206BOND | School 206 BOND | 0.3161759235 | $358,969 | $358,969 | $113.50 | | |
| SCH206MO | School 206 Enrichment | 0.4547169547 | $358,969 | $358,969 | $163.23 | | |
| ST | State School | 1.3035497053 | $358,969 | $358,969 | $467.93 | | |
| ST2 | State School Part 2 | 0.8169543533 | $358,969 | $358,969 | $293.26 | | |
| SWHIDPRBD | P & R S Whidbey BOND | 0.0152817568 | $358,969 | $358,969 | $5.49 | | |
| SWHIDPRBD2 | P & R S Whidbey BOND2 | 0.0138911264 | $358,969 | $358,969 | $4.99 | | |
| SWHIDPRMT | P & R S Whidbey GEN | 0.2053334452 | $358,969 | $358,969 | $73.71 | | |
| | Total Tax Rate: | 6.6934522006 | | | | | |
| | | | | Taxes w/Current Exemptions: | $2,402.74 | | |
| | | | | Taxes w/o Exemptions: | $2,402.74 | | |
Improvement / Building
| Improvement #1: | MANUFACTURED HOME | State Code: | Y | 1568.0 sqft | Value: | $108,969 |
| Bathrooms: | 0 | Bedrooms: | 0 | | Ceiling: | PLASTER PAINTED | Cooling: | EVAP NO DUCT | | Exterior Wall/Cover: | VINYL | Floor Covering: | CARPET 100% | | Floor Structure: | SLAB ON GRADE | Foundation: | SLAB | | Heating: | FHA ELECTRIC | Interior Finish: | PLASTER | | Plumbing Fixture Cnt: | 1 | Roof Slope: | FLAT | | Roof Structure/Cover: | CJ ALUMINIUM HEAVY |   |   |
|
| | Type | Description | Class CD | Sub Class CD | Year Built | Area |
| | BAS | BASE/MAIN FLOOR | 4 | 0 | 1999 | 1568.0 |
| | OWP | OPEN WOOD PORCH W/STEPS | 4 | 0 | 1999 | 102.0 |
| | OWP | OPEN WOOD PORCH W/STEPS | 4 | 0 | 1999 | 80.0 |
Sketch
Property Image
Land
| 1 | 15 | SQ (12001-21780) | 0.0000 | 0.00 | 0.00 | 0.00 | 1.00 | $250,000 | $0 |
Roll Value History
| 2026 | N/A | N/A | N/A | N/A | N/A |
| 2025 | $108,969 | $250,000 | $0 | $358,969 | $358,969 |
| 2024 | $112,271 | $230,000 | $0 | $342,271 | $342,271 |
| 2023 | $100,494 | $230,000 | $0 | $330,494 | $330,494 |
| 2022 | $93,601 | $210,000 | $0 | $303,601 | $303,601 |
| 2021 | $82,517 | $150,000 | $0 | $232,517 | $232,517 |
| 2020 | $74,628 | $120,000 | $0 | $194,628 | $194,628 |
| 2019 | $60,519 | $170,000 | $0 | $230,519 | $230,519 |
| 2018 | $62,249 | $130,000 | $0 | $192,249 | $192,249 |
| 2017 | $63,113 | $65,000 | $0 | $128,113 | $128,113 |
| 2016 | $64,843 | $65,000 | $0 | $129,843 | $129,843 |
| 2015 | $66,571 | $65,000 | $0 | $131,571 | $131,571 |
| 2014 | $75,561 | $57,375 | $0 | $132,936 | $132,936 |
| 2013 | $77,266 | $57,375 | $0 | $134,641 | $134,641 |
| 2012 | $78,971 | $57,375 | $0 | $136,346 | $136,346 |
| 2011 | $80,677 | $67,500 | $0 | $148,177 | $148,177 |
| 2010 | $83,746 | $67,500 | $0 | $151,246 | $151,246 |
| 2009 | $88,838 | $75,000 | $0 | $163,838 | $163,838 |
| 2008 | $89,785 | $65,000 | $0 | $154,785 | $154,785 |
| 2007 | $90,730 | $65,000 | $0 | $155,730 | $155,730 |
Deed and Sales History
| 1 | 06/03/2011 | WD | Warranty Deed | SECRETARY OF VETERANS AFFAIRS | MIDKIFF, BRYON | | | $0.00 | 4821 | 4297338 |
| 2 | 08/09/2010 | WD | Warranty Deed | Chase Home Finance LLC | SECRETARY OF VETERANS AFFAIRS | | | $131,314.00 | 2002 | 4278797 |
| 3 | 08/09/2010 | TRUSTEED | Trustee's Deed | MCCARY, TERRELL R | Chase Home Finance LLC | | | $131,314.00 | 2001 | 4278796 |
| 4 | 05/04/2000 | WD | Warranty Deed | MCCARY, TERRELL R | MCCARY, TERRELL R | | | $0.00 | 1627 | 20007883 |
| 5 | 04/21/2000 | WD | Warranty Deed | DAU ET AL, BARBARA | MCCARY, TERRELL R | | | $25,000.00 | 1574 | 20007564 |
| 6 | 08/12/1998 | QCD | Quit Claim Deed | IZETT, LEONA A | DAU ET AL, BARBARA | | | $0.00 | 84260 | 98023203 |
| 7 | 06/01/1996 | OTHER | Other - Misc. Documents | IZETT, BLANDON & | IZETT, LEONA A | | | $0.00 | 67008 | 191501 |
| 8 | 02/01/1994 | OTHER | Other - Misc. Documents | IZETT, BLANDON & | IZETT, BLANDON & | | | $0.00 | 65753 | 94000685 |
| 9 | 01/01/1900 | OTHER | Other - Misc. Documents | MCCARY, TERRELL R | IZETT, BLANDON & | | | $0.00 | 11659 | 91007030 |
| 10 | 01/01/1900 | PACD | Purchaser's Assignment | Unknown | MCCARY, TERRELL R | | | $0.00 | 0 | 0 |
Payout Agreement
| No payout information available.. |