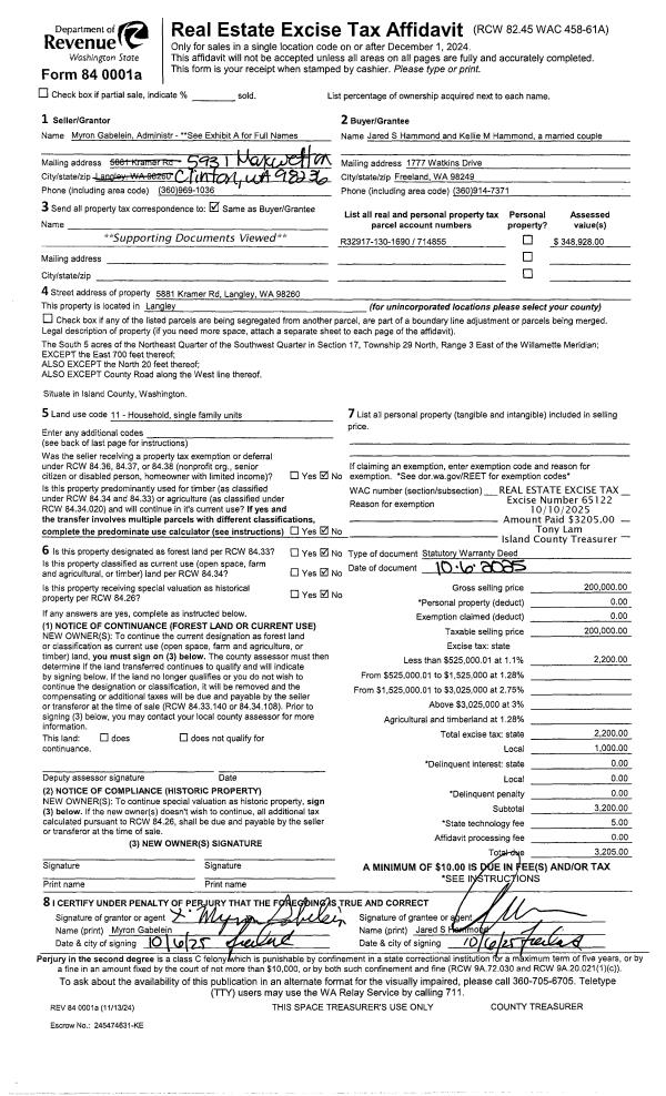
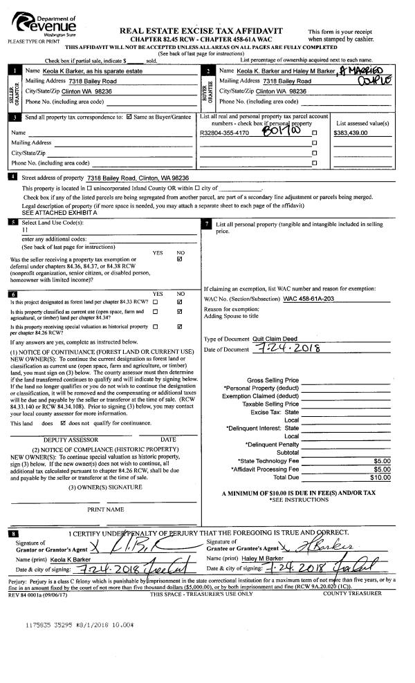
Property
Account |
| Property ID: | 689829 | Abbreviated Legal Description: | NEW 94 FOR 95 1994 SKYLINE OAKSPRINGS 27X60 VIN# 32910207GAB TPO %083096 |
| Geographic ID: | M91300000060-1 | Agent Code: | |
| Type: | Mobile Home | | |
| Tax Area: | 300 - APPRAISER-Cpvl Schl Dist, in Cpvl | Land Use Code | 11 |
| Open Space: | N | DFL | N |
| Historic Property: | N | Remodel Property: | N |
| Multi-Family Redevelopment: | N | | |
| Township: | | Section: | |
| Range: | |
Location |
| Address: | 204 SW TERRY RD # 60 COUPEVILLE, WA 98239 | Mapsco: | |
| Neighborhood: | Cycle 2 | Map ID: | |
| Neighborhood CD: | 2 |
Owner |
| Name: | CHURCH, LAURA L | Owner ID: | 295345 |
| Mailing Address: | DOLORES CHURCH 204 SW TERRY RD #60 COUPEVILLE, WA 98239 | % Ownership: | 100.0000000000% |
| | | Exemptions: | SNR/DSBL |
Taxes and Assessment Details
Values
| (+) Improvement Homesite Value: | + | $181,092 | |
| (+) Improvement Non-Homesite Value: | + | $0 | |
| (+) Land Homesite Value: | + | $0 | |
| (+) Land Non-Homesite Value: | + | $0 | |
| (+) Curr Use (HS): | + | $0 | $0 |
| (+) Curr Use (NHS): | + | $0 | $0 |
| | | -------------------------- | |
| (=) Market Value: | = | $181,092 | |
| (–) Productivity Loss: | – | $0 | |
| | | -------------------------- | |
| (=) Subtotal: | = | $181,092 | |
| (+) Senior Appraised Value: | + | $51,058 | |
| (+) Non-Senior Appraised Value: | + | $0 | |
| | | -------------------------- | |
| (=) Total Appraised Value: | = | $51,058 | |
| (–) Senior Exemption Loss: | – | $51,058 | |
| (–) Exemption Loss: | – | $0 | |
| | | -------------------------- | |
| (=) Taxable Value: | = | $0 | |
Taxing Jurisdiction
| Owner: | CHURCH, LAURA L | | |
| % Ownership: | 100.0000000000% | | |
| Total Value: | $181,092 | | |
| Tax Area: | 300 - APPRAISER-Cpvl Schl Dist, in Cpvl |
| CF | Conservation Futures | 0.0316035091 | $181,092 | $0 | $0.00 | | |
| CEM2 | Cemetery #2 | 0.0095056933 | $181,092 | $0 | $0.00 | | |
| COUP | City: Town of Coupeville | 0.8426414490 | $181,092 | $0 | $0.00 | | |
| FIRE5 | Fire & Rescue Dist #5 C Whidbey GEN | 1.2008080668 | $181,092 | $0 | $0.00 | | |
| FIRE5BOND | Fire & Rescue Dist #5 C Whidbey BOND | 0.0000000000 | $181,092 | $0 | $0.00 | | |
| HOBOND | Hospital BOND | 0.0000000000 | $181,092 | $0 | $0.00 | | |
| HOGEN | Hospital GEN | 0.3902502903 | $181,092 | $0 | $0.00 | | |
| CE | County Current Expense | 0.3708482477 | $181,092 | $0 | $0.00 | | |
| ISLANDEMS | Hospital GEN (EMS) | 0.5000000000 | $181,092 | $0 | $0.00 | | |
| LIB | Library Sno-Isle GEN | 0.3153421757 | $181,092 | $0 | $0.00 | | |
| LIBCAP | Library Sno-Isle BOND (Cap Fac Imp Area) | 0.0000000000 | $181,092 | $0 | $0.00 | | |
| POCOUP | Port of Coupeville GEN | 0.1093371703 | $181,092 | $0 | $0.00 | | |
| POCOUPIDD | Port of Coupeville IDD | 0.3409740022 | $181,092 | $0 | $0.00 | | |
| COUPSDTECH | School 204 CP (TECH) | 0.0000000000 | $181,092 | $0 | $0.00 | | |
| SCH204MO | School 204 Enrichment | 0.0000000000 | $181,092 | $0 | $0.00 | | |
| ST | State School | 1.3035497053 | $181,092 | $0 | $0.00 | | |
| ST2 | State School Part 2 | 0.0000000000 | $181,092 | $0 | $0.00 | | |
| | Total Tax Rate: | 5.4148603097 | | | | | |
| | | | | Taxes w/Current Exemptions: | $0.00 | | |
| | | | | Taxes w/o Exemptions: | $1,456.59 | | |
Improvement / Building
| Improvement #1: | MANUFACTURED HOME | State Code: | Y | 1639.5 sqft | Value: | $181,092 |
| Bathrooms: | 0 | Bedrooms: | 0 | | Ceiling: | PLASTER PAINTED | Cooling: | EVAP NO DUCT | | Exterior Wall/Cover: | VINYL | Floor Covering: | CARPET 100% | | Floor Structure: | SLAB ON GRADE | Foundation: | SLAB | | Heating: | FHA ELECTRIC | Interior Finish: | PLASTER | | Plumbing Fixture Cnt: | 1 | Roof Slope: | FLAT | | Roof Structure/Cover: | CJ ALUMINIUM HEAVY |   |   |
|
Sketch
Property Image
Land
No land segments exist for this property.
Roll Value History
| 2026 | N/A | N/A | N/A | N/A | N/A |
| 2025 | $181,092 | $0 | $0 | $181,092 | $0 |
| 2024 | $130,891 | $0 | $0 | $130,891 | $0 |
| 2023 | $60,785 | $0 | $0 | $60,785 | $0 |
| 2022 | $56,880 | $0 | $0 | $56,880 | $1,058 |
| 2021 | $51,058 | $0 | $0 | $51,058 | $0 |
| 2020 | $51,112 | $0 | $0 | $51,112 | $51,112 |
| 2019 | $41,481 | $0 | $0 | $41,481 | $41,481 |
| 2018 | $19,097 | $0 | $0 | $19,097 | $19,097 |
| 2017 | $19,699 | $0 | $0 | $19,699 | $19,699 |
| 2016 | $20,301 | $0 | $0 | $20,301 | $20,301 |
| 2015 | $20,902 | $0 | $0 | $20,902 | $20,902 |
| 2014 | $21,504 | $0 | $0 | $21,504 | $21,504 |
| 2013 | $22,105 | $0 | $0 | $22,105 | $22,105 |
| 2012 | $23,529 | $0 | $0 | $23,529 | $23,529 |
| 2011 | $41,712 | $0 | $0 | $41,712 | $41,712 |
| 2010 | $42,865 | $0 | $0 | $42,865 | $42,865 |
| 2009 | $44,224 | $0 | $0 | $44,224 | $44,224 |
| 2008 | $45,563 | $0 | $0 | $45,563 | $45,563 |
| 2007 | $46,902 | $0 | $0 | $46,902 | $46,902 |
Deed and Sales History
| 1 | 07/24/2020 | MANHOME | Manufactured Home | DAVIS, TODD | CHURCH, LAURA L | | | $80,000.00 | 43951 | |
| 2 | 06/03/2020 | MANHOME | Manufactured Home | DAVIS, MERRY L | DAVIS, TODD | | | $0.00 | 43205 | |
| 3 | 06/11/2018 | MANHOME | Manufactured Home | DAVIS, LYLE S / MERRY L | DAVIS, MERRY L | | | $0.00 | 34454 | |
| 4 | 09/01/1993 | OTHER | Other - Misc. Documents | Unknown | DAVIS, LYLE S | | | $48,730.00 | 11111111 | 0 |
Payout Agreement
| No payout information available.. |