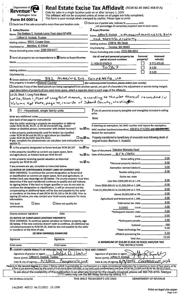
Property
Account |
| Property ID: | 690149 | Abbreviated Legal Description: | LOT 1 SP 20-93.32908.060-0650 V2 SP P442 AF#94002590 |
| Geographic ID: | R32908-049-0960 | Agent Code: | |
| Type: | Real | | |
| Tax Area: | 712 - APPRAISER-S Whid Schl Dist, outside Langley, improved, greater than 1 acre | Land Use Code | 11 |
| Open Space: | N | DFL | N |
| Historic Property: | N | Remodel Property: | N |
| Multi-Family Redevelopment: | N | | |
| Township: | 29 | Section: | 08 |
| Range: | R3 |
Location |
| Address: | 2866 GRIMM RD LANGLEY, WA 98260 | Mapsco: | |
| Neighborhood: | Cycle 4 | Map ID: | 746 |
| Neighborhood CD: | 4 |
Owner |
| Name: | LOPUSZYNSKI, MICHAEL A | Owner ID: | 272511 |
| Mailing Address: | BARBARA J LOPUSZYNSKI PO BOX1109 LANGLEY, WA 98260 | % Ownership: | 100.0000000000% |
| | | Exemptions: | |
Taxes and Assessment Details
Values
| (+) Improvement Homesite Value: | + | $0 | |
| (+) Improvement Non-Homesite Value: | + | $247,395 | |
| (+) Land Homesite Value: | + | $0 | |
| (+) Land Non-Homesite Value: | + | $380,000 | |
| (+) Curr Use (HS): | + | $0 | $0 |
| (+) Curr Use (NHS): | + | $0 | $0 |
| | | -------------------------- | |
| (=) Market Value: | = | $627,395 | |
| (–) Productivity Loss: | – | $0 | |
| | | -------------------------- | |
| (=) Subtotal: | = | $627,395 | |
| (+) Senior Appraised Value: | + | $0 | |
| (+) Non-Senior Appraised Value: | + | $627,395 | |
| | | -------------------------- | |
| (=) Total Appraised Value: | = | $627,395 | |
| (–) Senior Exemption Loss: | – | $0 | |
| (–) Exemption Loss: | – | $0 | |
| | | -------------------------- | |
| (=) Taxable Value: | = | $627,395 | |
Taxing Jurisdiction
| Owner: | LOPUSZYNSKI, MICHAEL A | | |
| % Ownership: | 100.0000000000% | | |
| Total Value: | $627,395 | | |
| Tax Area: | 712 - APPRAISER-S Whid Schl Dist, outside Langley, improved, greater than 1 acre |
| CF | Conservation Futures | 0.0316035091 | $627,395 | $627,395 | $19.83 | | |
| FIRE3 | Fire & Rescue Dist #3 S Whidbey GEN | 1.2004855531 | $627,395 | $627,395 | $753.18 | | |
| HOBOND | Hospital BOND | 0.1910887512 | $627,395 | $627,395 | $119.89 | | |
| HOGEN | Hospital GEN | 0.3902502903 | $627,395 | $627,395 | $244.84 | | |
| CE | County Current Expense | 0.3708482477 | $627,395 | $627,395 | $232.67 | | |
| CR | County Roads | 0.4584763726 | $627,395 | $627,395 | $287.65 | | |
| ISLANDEMS | Hospital GEN (EMS) | 0.5000000000 | $627,395 | $627,395 | $313.70 | | |
| LIB | Library Sno-Isle GEN | 0.3153421757 | $627,395 | $627,395 | $197.84 | | |
| PORTWHID | Port of S Whidbey GEN | 0.1094540357 | $627,395 | $627,395 | $68.67 | | |
| SCH206BOND | School 206 BOND | 0.3161759235 | $627,395 | $627,395 | $198.37 | | |
| SCH206MO | School 206 Enrichment | 0.4547169547 | $627,395 | $627,395 | $285.29 | | |
| ST | State School | 1.3035497053 | $627,395 | $627,395 | $817.84 | | |
| ST2 | State School Part 2 | 0.8169543533 | $627,395 | $627,395 | $512.55 | | |
| SWHIDPRBD | P & R S Whidbey BOND | 0.0152817568 | $627,395 | $627,395 | $9.59 | | |
| SWHIDPRBD2 | P & R S Whidbey BOND2 | 0.0138911264 | $627,395 | $627,395 | $8.72 | | |
| SWHIDPRMT | P & R S Whidbey GEN | 0.2053334452 | $627,395 | $627,395 | $128.83 | | |
| | Total Tax Rate: | 6.6934522006 | | | | | |
| | | | | Taxes w/Current Exemptions: | $4,199.46 | | |
| | | | | Taxes w/o Exemptions: | $4,199.46 | | |
Improvement / Building
| Improvement #1: | RESIDENTIAL | State Code: | Y | 1300.0 sqft | Value: | $247,395 |
| Bathrooms: | 1 | Bedrooms: | 2 | | Ceiling: | DRYWALL PAINTED | Cooling: | HEAT PUMP/CONV/V | | Exterior Wall/Cover: | PLY/HARDBOARD T-111 | Floor Covering: | HARDWOOD/CARP 20-80 | | Floor Structure: | SLAB ON GRADE | Foundation: | CONCRETE | | Interior Finish: | DRYWALL PAINT | Plumbing Fixture Cnt: | 6 | | Roof Slope: | 3" IN 12" | Roof Structure/Cover: | CJ ALUMINIUM HEAVY |
|
| | Type | Description | Class CD | Sub Class CD | Year Built | Area |
| | BAS | BASE/MAIN FLOOR | 3 | 0 | 2018 | 858.0 |
| | DWN | DOWNSTAIRS LIVING AREA | 3 | 0 | 2018 | 442.0 |
| | BIG | BUILT IN GARAGE | 3 | 0 | 2018 | 828.5 |
| | OWR | OPEN WOOD PORCH W/STEPS/ROOF | 3 | 0 | 2018 | 247.0 |
Sketch
Property Image
Land
| 1 | 32 | AC (03.01-09.99) | 4.0600 | 0.00 | 0.00 | 0.00 | 1.00 | $380,000 | $0 |
Roll Value History
| 2026 | N/A | N/A | N/A | N/A | N/A |
| 2025 | $247,395 | $380,000 | $0 | $627,395 | $627,395 |
| 2024 | $249,407 | $350,000 | $0 | $599,407 | $599,407 |
| 2023 | $251,417 | $330,000 | $0 | $581,417 | $581,417 |
| 2022 | $229,479 | $290,000 | $0 | $519,479 | $519,479 |
| 2021 | $201,149 | $230,000 | $0 | $431,149 | $431,149 |
| 2020 | $195,982 | $190,000 | $0 | $385,982 | $385,982 |
| 2019 | $129,746 | $250,000 | $0 | $379,746 | $379,746 |
| 2018 | $71,886 | $130,000 | $0 | $201,886 | $201,886 |
| 2017 | $0 | $130,000 | $0 | $130,000 | $130,000 |
| 2016 | $0 | $120,000 | $0 | $120,000 | $120,000 |
| 2015 | $0 | $110,000 | $0 | $110,000 | $110,000 |
| 2014 | $0 | $81,200 | $0 | $81,200 | $81,200 |
| 2013 | $0 | $81,200 | $0 | $81,200 | $81,200 |
| 2012 | $0 | $109,620 | $0 | $109,620 | $109,620 |
| 2011 | $0 | $109,620 | $0 | $109,620 | $109,620 |
| 2010 | $0 | $109,620 | $0 | $109,620 | $109,620 |
| 2009 | $0 | $138,040 | $0 | $138,040 | $138,040 |
| 2008 | $0 | $138,040 | $0 | $138,040 | $138,040 |
| 2007 | $0 | $121,800 | $0 | $121,800 | $121,800 |
Deed and Sales History
| 1 | 10/16/2015 | WD | Warranty Deed | AMSTEP LLC | LOPUSZYNSKI, MICHAEL A | | | $127,500.00 | 21827 | 4388052 |
| 2 | 06/25/2014 | WD | Warranty Deed | STEPHENS, ANTHONY M. | AMSTEP LLC | | | $0.00 | 16093 | 4362636 |
| 3 | 06/03/2013 | WD | Warranty Deed | MILLER, MARK A & ALLISON K | STEPHENS, ANTHONY M. | | | $82,000.00 | 11560 | 4341452 |
| 4 | 02/01/2006 | WD | Warranty Deed | JOHNSON, RICHARD L | ASPEN HOMEBUILDING INC, | | | $165,000.00 | 60759 | 4162817 |
| 5 | 07/01/1995 | QCD | Quit Claim Deed | LANGLEY, MASONIC T | JOHNSON, RICHARD L | | | $65,000.00 | 52351 | 95010827 |
| 6 | 01/01/1900 | OTHER | Other - Misc. Documents | Unknown | LANGLEY, MASONIC T | | | $0.00 | 21285 | 92006239 |
Payout Agreement
| No payout information available.. |