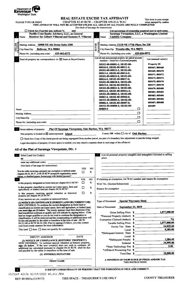
Property
Account |
| Property ID: | 69017 | Abbreviated Legal Description: | 47 - N100'OF S400'OF NW NW W OF CO RD INCL ADJ TIDELANDS |
| Geographic ID: | R23032-438-0620 | Agent Code: | |
| Type: | Real | | |
| Tax Area: | 312 - APPRAISER-Cpvl Schl Dist, outside Cpvl, improved, greater than 1 acre | Land Use Code | 11 |
| Open Space: | N | DFL | N |
| Historic Property: | N | Remodel Property: | N |
| Multi-Family Redevelopment: | N | | |
| Township: | 30 | Section: | 32 |
| Range: | R2 |
Location |
| Address: | 4470 SMUGGLERS COVE RD FREELAND, WA 98249 | Mapsco: | |
| Neighborhood: | Cycle 3 | Map ID: | 433 |
| Neighborhood CD: | 3 |
Owner |
| Name: | LEVANDUSKY, RONALD | Owner ID: | 269229 |
| Mailing Address: | 4470 SMUGGLERS COVE RD FREELAND, WA 98249 | % Ownership: | 100.0000000000% |
| | | Exemptions: | |
Taxes and Assessment Details
Values
| (+) Improvement Homesite Value: | + | $0 | |
| (+) Improvement Non-Homesite Value: | + | $586,656 | |
| (+) Land Homesite Value: | + | $0 | |
| (+) Land Non-Homesite Value: | + | $511,000 | |
| (+) Curr Use (HS): | + | $0 | $0 |
| (+) Curr Use (NHS): | + | $0 | $0 |
| | | -------------------------- | |
| (=) Market Value: | = | $1,097,656 | |
| (–) Productivity Loss: | – | $0 | |
| | | -------------------------- | |
| (=) Subtotal: | = | $1,097,656 | |
| (+) Senior Appraised Value: | + | $0 | |
| (+) Non-Senior Appraised Value: | + | $1,097,656 | |
| | | -------------------------- | |
| (=) Total Appraised Value: | = | $1,097,656 | |
| (–) Senior Exemption Loss: | – | $0 | |
| (–) Exemption Loss: | – | $0 | |
| | | -------------------------- | |
| (=) Taxable Value: | = | $1,097,656 | |
Taxing Jurisdiction
| Owner: | LEVANDUSKY, RONALD | | |
| % Ownership: | 100.0000000000% | | |
| Total Value: | $1,097,656 | | |
| Tax Area: | 312 - APPRAISER-Cpvl Schl Dist, outside Cpvl, improved, greater than 1 acre |
| CF | Conservation Futures | 0.0316035091 | $1,097,656 | $1,097,656 | $34.69 | | |
| CEM2 | Cemetery #2 | 0.0095056933 | $1,097,656 | $1,097,656 | $10.43 | | |
| FIRE5 | Fire & Rescue Dist #5 C Whidbey GEN | 1.2008080668 | $1,097,656 | $1,097,656 | $1,318.07 | | |
| FIRE5BOND | Fire & Rescue Dist #5 C Whidbey BOND | 0.1400090713 | $1,097,656 | $1,097,656 | $153.68 | | |
| HOBOND | Hospital BOND | 0.1910887512 | $1,097,656 | $1,097,656 | $209.75 | | |
| HOGEN | Hospital GEN | 0.3902502903 | $1,097,656 | $1,097,656 | $428.36 | | |
| CE | County Current Expense | 0.3708482477 | $1,097,656 | $1,097,656 | $407.06 | | |
| CR | County Roads | 0.4584763726 | $1,097,656 | $1,097,656 | $503.25 | | |
| ISLANDEMS | Hospital GEN (EMS) | 0.5000000000 | $1,097,656 | $1,097,656 | $548.83 | | |
| LIB | Library Sno-Isle GEN | 0.3153421757 | $1,097,656 | $1,097,656 | $346.14 | | |
| LIBCAP | Library Sno-Isle BOND (Cap Fac Imp Area) | 0.0543427938 | $1,097,656 | $1,097,656 | $59.65 | | |
| POCOUP | Port of Coupeville GEN | 0.1093371703 | $1,097,656 | $1,097,656 | $120.01 | | |
| POCOUPIDD | Port of Coupeville IDD | 0.3409740022 | $1,097,656 | $1,097,656 | $374.27 | | |
| COUPSDTECH | School 204 CP (TECH) | 0.7545480007 | $1,097,656 | $1,097,656 | $828.23 | | |
| SCH204MO | School 204 Enrichment | 0.6716186034 | $1,097,656 | $1,097,656 | $737.21 | | |
| ST | State School | 1.3035497053 | $1,097,656 | $1,097,656 | $1,430.85 | | |
| ST2 | State School Part 2 | 0.8169543533 | $1,097,656 | $1,097,656 | $896.73 | | |
| | Total Tax Rate: | 7.6592568070 | | | | | |
| | | | | Taxes w/Current Exemptions: | $8,407.21 | | |
| | | | | Taxes w/o Exemptions: | $8,407.21 | | |
Improvement / Building
| Improvement #1: | RESIDENTIAL | State Code: | Y | 2343.8 sqft | Value: | $586,656 |
| Bathrooms: | 2 | Bedrooms: | 3 | | Ceiling: | TONGUE & GROOVE | Cooling: | HEAT PUMP/CONV/V | | Exterior Wall/Cover: | WOOD SIDING | Floor Covering: | HARDWOOD/CARP 80-20 | | Floor Structure: | WOOD W/SUBFLOOR | Foundation: | CONCRETE | | Interior Finish: | DRYWALL PAINT | Plumbing Fixture Cnt: | 9 | | Roof Slope: | 6" IN 12" | Roof Structure/Cover: | BEAM ASPHALT |
|
| | Type | Description | Class CD | Sub Class CD | Year Built | Area |
| | BAS | BASE/MAIN FLOOR | 4 | 0 | 2001 | 2343.8 |
| | DGR | DETACHED GARAGE | 4 | 0 | 2001 | 624.0 |
| | UTY | STORAGE/UTILITY | 4 | 0 | 2001 | 288.0 |
| | OWR | OPEN WOOD PORCH W/STEPS/ROOF | 4 | 0 | 2001 | 263.5 |
| | OWP | OPEN WOOD PORCH W/STEPS | 4 | 0 | 2001 | 668.7 |
| | CPD | OPEN CARPORT DIRT FLOOR | 4 | 0 | 2001 | 150.0 |
| | UB8 | BASEMENT UNFINISHED 8" | 4 | 0 | 2001 | 1347.0 |
Sketch
Property Image
Land
| 1 | HB | HIGH BLUFF | 2.4800 | 108028.80 | 100.00 | 0.00 | 1.00 | $510,000 | $0 |
| 2 | 55 | TIDES | 0.0000 | 0.00 | 100.00 | 0.00 | 1.00 | $1,000 | $0 |
Roll Value History
| 2026 | N/A | N/A | N/A | N/A | N/A |
| 2025 | $586,656 | $511,000 | $0 | $1,097,656 | $1,097,656 |
| 2024 | $594,059 | $526,000 | $0 | $1,120,059 | $1,120,059 |
| 2023 | $601,462 | $501,000 | $0 | $1,102,462 | $1,102,462 |
| 2022 | $551,341 | $481,000 | $0 | $1,032,341 | $1,032,341 |
| 2021 | $485,250 | $401,000 | $0 | $886,250 | $886,250 |
| 2020 | $474,168 | $401,000 | $0 | $875,168 | $875,168 |
| 2019 | $394,756 | $451,000 | $0 | $845,756 | $845,756 |
| 2018 | $395,915 | $401,000 | $0 | $796,915 | $796,915 |
| 2017 | $368,842 | $351,000 | $0 | $719,842 | $719,842 |
| 2016 | $373,132 | $351,000 | $0 | $724,132 | $724,132 |
| 2015 | $377,421 | $351,000 | $0 | $728,421 | $728,421 |
| 2014 | $373,462 | $351,000 | $0 | $724,462 | $724,462 |
| 2013 | $283,173 | $294,078 | $0 | $577,251 | $577,251 |
| 2012 | $286,428 | $294,078 | $0 | $580,506 | $580,506 |
| 2011 | $289,682 | $294,078 | $0 | $583,760 | $583,760 |
| 2010 | $297,158 | $294,078 | $0 | $591,236 | $591,236 |
| 2009 | $309,641 | $391,771 | $0 | $701,412 | $701,412 |
| 2008 | $320,042 | $391,771 | $0 | $711,813 | $711,813 |
| 2007 | $247,459 | $247,624 | $0 | $495,083 | $495,083 |
Deed and Sales History
| 1 | 02/12/2015 | WD | Warranty Deed | HAAS, JAMES M | LEVANDUSKY, RONALD | | | $775,000.00 | 18500 | 4373394 |
| 2 | 11/27/1998 | WD | Warranty Deed | Unknown | HAAS, JAMES M | | | $231,500.00 | 84733 | 98025934 |
Payout Agreement
| No payout information available.. |