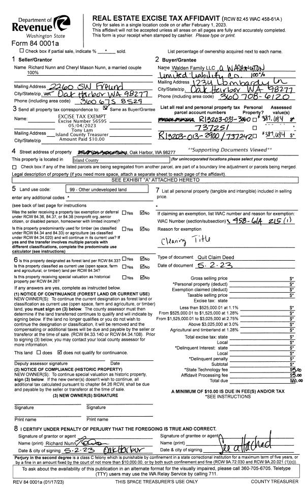
Property
Account |
| Property ID: | 690719 | Abbreviated Legal Description: | LOT 4 SP 7-92.23307.190-1410 V2 SP P444 AF#94003251 TGW EZ AF#96005453 |
| Geographic ID: | R23307-202-1380 | Agent Code: | |
| Type: | Real | | |
| Tax Area: | 110 - APPRAISER-OH Schl Dist, outside OH, improved & 1 acre or less | Land Use Code | 12 |
| Open Space: | N | DFL | N |
| Historic Property: | N | Remodel Property: | N |
| Multi-Family Redevelopment: | N | | |
| Township: | 33 | Section: | 07 |
| Range: | R2 |
Location |
| Address: | 4158 KIMBERLY WAY OAK HARBOR, WA 98277 | Mapsco: | |
| Neighborhood: | 61cRR-jones road | Map ID: | 591 |
| Neighborhood CD: | 61cRRjones |
Owner |
| Name: | MILLER, REBECCA A | Owner ID: | 302031 |
| Mailing Address: | BRIAN K MALTBIE 2225 SW ROSARIO PLACE OAK HARBOR, WA 98277 | % Ownership: | 100.0000000000% |
| | | Exemptions: | |
Taxes and Assessment Details
Values
| (+) Improvement Homesite Value: | + | $0 | |
| (+) Improvement Non-Homesite Value: | + | $380,850 | |
| (+) Land Homesite Value: | + | $0 | |
| (+) Land Non-Homesite Value: | + | $270,000 | |
| (+) Curr Use (HS): | + | $0 | $0 |
| (+) Curr Use (NHS): | + | $0 | $0 |
| | | -------------------------- | |
| (=) Market Value: | = | $650,850 | |
| (–) Productivity Loss: | – | $0 | |
| | | -------------------------- | |
| (=) Subtotal: | = | $650,850 | |
| (+) Senior Appraised Value: | + | $0 | |
| (+) Non-Senior Appraised Value: | + | $650,850 | |
| | | -------------------------- | |
| (=) Total Appraised Value: | = | $650,850 | |
| (–) Senior Exemption Loss: | – | $0 | |
| (–) Exemption Loss: | – | $0 | |
| | | -------------------------- | |
| (=) Taxable Value: | = | $650,850 | |
Taxing Jurisdiction
| Owner: | MILLER, REBECCA A | | |
| % Ownership: | 100.0000000000% | | |
| Total Value: | $650,850 | | |
| Tax Area: | 110 - APPRAISER-OH Schl Dist, outside OH, improved & 1 acre or less |
| CF | Conservation Futures | 0.0316035091 | $650,850 | $650,850 | $20.57 | | |
| CEM1 | Cemetery #1 | 0.0040320932 | $650,850 | $650,850 | $2.62 | | |
| FIRE2 | Fire & Rescue Dist #2 N Whidbey GEN | 0.5475949600 | $650,850 | $650,850 | $356.40 | | |
| HOBOND | Hospital BOND | 0.1910887512 | $650,850 | $650,850 | $124.37 | | |
| HOGEN | Hospital GEN | 0.3902502903 | $650,850 | $650,850 | $253.99 | | |
| CE | County Current Expense | 0.3708482477 | $650,850 | $650,850 | $241.37 | | |
| CR | County Roads | 0.4584763726 | $650,850 | $650,850 | $298.40 | | |
| ISLANDEMS | Hospital GEN (EMS) | 0.5000000000 | $650,850 | $650,850 | $325.43 | | |
| LIB | Library Sno-Isle GEN | 0.3153421757 | $650,850 | $650,850 | $205.24 | | |
| NWHIDPRMT | P & R N Whidbey GEN | 0.2004466701 | $650,850 | $650,850 | $130.46 | | |
| SCH201MO | School 201 Enrichment | 1.8559231640 | $650,850 | $650,850 | $1,207.93 | | |
| ST | State School | 1.3035497053 | $650,850 | $650,850 | $848.42 | | |
| ST2 | State School Part 2 | 0.8169543533 | $650,850 | $650,850 | $531.71 | | |
| | Total Tax Rate: | 6.9861102925 | | | | | |
| | | | | Taxes w/Current Exemptions: | $4,546.91 | | |
| | | | | Taxes w/o Exemptions: | $4,546.91 | | |
Improvement / Building
| Improvement #1: | COMMERCIAL | State Code: | B1 | 3456.0 sqft | Value: | $380,850 |
| | Type | Description | Class CD | Sub Class CD | Year Built | Area |
| | BAS | BASE/MAIN FLOOR | 3 | 0 | 1979 | 1728.0 |
| | OP1 | OPEN PORCH SLAB | 3 | 0 | 1979 | 576.0 |
| | UPS | UPPER STORY | 3 | 0 | 1979 | 1728.0 |
Sketch
Property Image
Land
| 1 | 61 | MULTIPLE RESIDENCES | 0.4700 | 20473.20 | 0.00 | 0.00 | 1.00 | $270,000 | $0 |
Roll Value History
| 2026 | N/A | N/A | N/A | N/A | N/A |
| 2025 | $380,850 | $270,000 | $0 | $650,850 | $650,850 |
| 2024 | $394,199 | $270,000 | $0 | $664,199 | $664,199 |
| 2023 | $399,811 | $270,000 | $0 | $669,811 | $669,811 |
| 2022 | $367,115 | $270,000 | $0 | $637,115 | $637,115 |
| 2021 | $267,827 | $270,000 | $0 | $537,827 | $537,827 |
| 2020 | $262,009 | $270,000 | $0 | $532,009 | $532,009 |
| 2019 | $199,393 | $150,000 | $0 | $349,393 | $349,393 |
| 2018 | $200,145 | $150,000 | $0 | $350,145 | $350,145 |
| 2017 | $201,651 | $92,129 | $0 | $293,780 | $293,780 |
| 2016 | $198,876 | $88,124 | $0 | $287,000 | $287,000 |
| 2015 | $198,876 | $88,124 | $0 | $287,000 | $287,000 |
| 2014 | $198,876 | $88,124 | $0 | $287,000 | $287,000 |
| 2013 | $198,876 | $88,124 | $0 | $287,000 | $287,000 |
| 2012 | $198,876 | $88,124 | $0 | $287,000 | $287,000 |
| 2011 | $198,876 | $88,124 | $0 | $287,000 | $287,000 |
| 2010 | $200,511 | $88,124 | $0 | $288,635 | $288,635 |
| 2009 | $203,248 | $96,322 | $0 | $299,570 | $299,570 |
| 2008 | $205,985 | $101,445 | $0 | $307,430 | $307,430 |
| 2007 | $208,721 | $101,445 | $0 | $310,166 | $310,166 |
Deed and Sales History
| 1 | 11/16/2021 | WD | Warranty Deed | PRITCHETT, DANIEL | MILLER, REBECCA A | | | $745,000.00 | 50973 | 4534156 |
| 2 | 10/01/1996 | WD | Warranty Deed | MCDOWELL, WILLIAM L | PRITCHETT, DANIEL | | | $187,000.00 | 63994 | 96019413 |
| 3 | 01/01/1900 | OTHER | Other - Misc. Documents | Unknown | MCDOWELL, WILLIAM L | | | $0.00 | 0 | 0 |
Payout Agreement
| No payout information available.. |