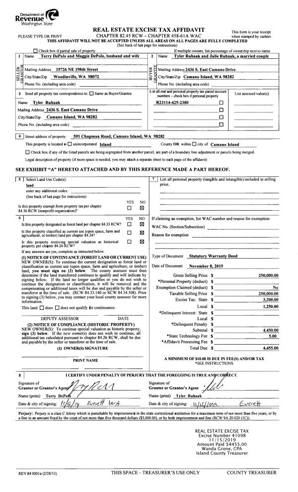
Property
Account |
| Property ID: | 69115 | Abbreviated Legal Description: | 61 - E/2 OF NE NE NW |
| Geographic ID: | R23032-503-2510 | Agent Code: | |
| Type: | Real | | |
| Tax Area: | 312 - APPRAISER-Cpvl Schl Dist, outside Cpvl, improved, greater than 1 acre | Land Use Code | 11 |
| Open Space: | N | DFL | N |
| Historic Property: | N | Remodel Property: | N |
| Multi-Family Redevelopment: | N | | |
| Township: | 30 | Section: | 32 |
| Range: | R2 |
Location |
| Address: | 650 BALD EAGLE WAY FREELAND, WA 98249 | Mapsco: | |
| Neighborhood: | Cycle 3 | Map ID: | 433 |
| Neighborhood CD: | 3 |
Owner |
| Name: | SHIGEKANE TTEE, TODD HOLMES | Owner ID: | 297980 |
| Mailing Address: | LAUREN R SHIGEKANE TTEE & LYDIA SHIGEKANE TTEE 4121 A NUUANU PALI DR HONOLULU, HI 96817 | % Ownership: | 100.0000000000% |
| | | Exemptions: | |
Taxes and Assessment Details
Values
| (+) Improvement Homesite Value: | + | $0 | |
| (+) Improvement Non-Homesite Value: | + | $607,597 | |
| (+) Land Homesite Value: | + | $0 | |
| (+) Land Non-Homesite Value: | + | $430,000 | |
| (+) Curr Use (HS): | + | $0 | $0 |
| (+) Curr Use (NHS): | + | $0 | $0 |
| | | -------------------------- | |
| (=) Market Value: | = | $1,037,597 | |
| (–) Productivity Loss: | – | $0 | |
| | | -------------------------- | |
| (=) Subtotal: | = | $1,037,597 | |
| (+) Senior Appraised Value: | + | $0 | |
| (+) Non-Senior Appraised Value: | + | $1,037,597 | |
| | | -------------------------- | |
| (=) Total Appraised Value: | = | $1,037,597 | |
| (–) Senior Exemption Loss: | – | $0 | |
| (–) Exemption Loss: | – | $0 | |
| | | -------------------------- | |
| (=) Taxable Value: | = | $1,037,597 | |
Taxing Jurisdiction
| Owner: | SHIGEKANE TTEE, TODD HOLMES | | |
| % Ownership: | 100.0000000000% | | |
| Total Value: | $1,037,597 | | |
| Tax Area: | 312 - APPRAISER-Cpvl Schl Dist, outside Cpvl, improved, greater than 1 acre |
| CF | Conservation Futures | 0.0316035091 | $1,037,597 | $1,037,597 | $32.79 | | |
| CEM2 | Cemetery #2 | 0.0095056933 | $1,037,597 | $1,037,597 | $9.86 | | |
| FIRE5 | Fire & Rescue Dist #5 C Whidbey GEN | 1.2008080668 | $1,037,597 | $1,037,597 | $1,245.95 | | |
| FIRE5BOND | Fire & Rescue Dist #5 C Whidbey BOND | 0.1400090713 | $1,037,597 | $1,037,597 | $145.27 | | |
| HOBOND | Hospital BOND | 0.1910887512 | $1,037,597 | $1,037,597 | $198.27 | | |
| HOGEN | Hospital GEN | 0.3902502903 | $1,037,597 | $1,037,597 | $404.92 | | |
| CE | County Current Expense | 0.3708482477 | $1,037,597 | $1,037,597 | $384.79 | | |
| CR | County Roads | 0.4584763726 | $1,037,597 | $1,037,597 | $475.71 | | |
| ISLANDEMS | Hospital GEN (EMS) | 0.5000000000 | $1,037,597 | $1,037,597 | $518.80 | | |
| LIB | Library Sno-Isle GEN | 0.3153421757 | $1,037,597 | $1,037,597 | $327.20 | | |
| LIBCAP | Library Sno-Isle BOND (Cap Fac Imp Area) | 0.0543427938 | $1,037,597 | $1,037,597 | $56.39 | | |
| POCOUP | Port of Coupeville GEN | 0.1093371703 | $1,037,597 | $1,037,597 | $113.45 | | |
| POCOUPIDD | Port of Coupeville IDD | 0.3409740022 | $1,037,597 | $1,037,597 | $353.79 | | |
| COUPSDTECH | School 204 CP (TECH) | 0.7545480007 | $1,037,597 | $1,037,597 | $782.92 | | |
| SCH204MO | School 204 Enrichment | 0.6716186034 | $1,037,597 | $1,037,597 | $696.87 | | |
| ST | State School | 1.3035497053 | $1,037,597 | $1,037,597 | $1,352.56 | | |
| ST2 | State School Part 2 | 0.8169543533 | $1,037,597 | $1,037,597 | $847.67 | | |
| | Total Tax Rate: | 7.6592568070 | | | | | |
| | | | | Taxes w/Current Exemptions: | $7,947.21 | | |
| | | | | Taxes w/o Exemptions: | $7,947.21 | | |
Improvement / Building
| Improvement #1: | RESIDENTIAL | State Code: | Y | 3526.0 sqft | Value: | $607,597 |
| Bathrooms: | 3 | Bedrooms: | 3 | | Ceiling: | DRYWALL PAINTED | Cooling: | HEAT PUMP/CONV/V | | Exterior Wall/Cover: | WOOD SIDING | Floor Covering: | VINYL TILE/HARWD 20-80 | | Floor Structure: | WOOD W/SUBFLOOR | Foundation: | CONCRETE | | Interior Finish: | DRYWALL PAINT | Plumbing Fixture Cnt: | 12 | | Roof Slope: | 5" IN 12" | Roof Structure/Cover: | CJ WOOD SHAKES |
|
| | Type | Description | Class CD | Sub Class CD | Year Built | Area |
| | BAS | BASE/MAIN FLOOR | 5 | 0 | 1980 | 2538.0 |
| | BAS | BASE/MAIN FLOOR | 5 | 0 | 1980 | 288.0 |
| | OP1 | OPEN PORCH SLAB | 5 | 0 | 1980 | 682.0 |
| | OP1 | OPEN PORCH SLAB | 5 | 0 | 1980 | 456.0 |
| | OP1 | OPEN PORCH SLAB | 5 | 0 | 1980 | 620.0 |
| | OP3 | OPEN PORCH W/ROOF | 5 | 0 | 1980 | 147.0 |
| | OP3 | OPEN PORCH W/ROOF | 5 | 0 | 1980 | 84.0 |
| | OCP | OPEN CARPORT | 5 | 0 | 1980 | 225.0 |
| | UTY | STORAGE/UTILITY | 5 | 0 | 1980 | 204.0 |
| | OWP | OPEN WOOD PORCH W/STEPS | 5 | 0 | 1980 | 349.0 |
| | OWP | OPEN WOOD PORCH W/STEPS | 5 | 0 | 1980 | 92.0 |
| | OWP | OPEN WOOD PORCH W/STEPS | 5 | 0 | 1980 | 120.0 |
| | DWN | DOWNSTAIRS LIVING AREA | 5 | 0 | 1980 | 700.0 |
Sketch
Property Image
Land
| 1 | 32 | AC (03.01-09.99) | 5.0000 | 0.00 | 0.00 | 0.00 | 1.00 | $430,000 | $0 |
Roll Value History
| 2026 | N/A | N/A | N/A | N/A | N/A |
| 2025 | $607,597 | $430,000 | $0 | $1,037,597 | $1,037,597 |
| 2024 | $616,125 | $430,000 | $0 | $1,046,125 | $1,046,125 |
| 2023 | $624,652 | $420,000 | $0 | $1,044,652 | $1,044,652 |
| 2022 | $573,358 | $400,000 | $0 | $973,358 | $973,358 |
| 2021 | $505,278 | $340,000 | $0 | $845,278 | $845,278 |
| 2020 | $494,241 | $300,000 | $0 | $794,241 | $794,241 |
| 2019 | $338,068 | $310,000 | $0 | $648,068 | $648,068 |
| 2018 | $339,445 | $250,000 | $0 | $589,445 | $589,445 |
| 2017 | $342,206 | $250,000 | $0 | $592,206 | $592,206 |
| 2016 | $347,725 | $250,000 | $0 | $597,725 | $597,725 |
| 2015 | $353,247 | $225,000 | $0 | $578,247 | $578,247 |
| 2014 | $358,767 | $225,000 | $0 | $583,767 | $583,767 |
| 2013 | $364,285 | $225,000 | $0 | $589,285 | $589,285 |
| 2012 | $369,803 | $225,000 | $0 | $594,803 | $594,803 |
| 2011 | $375,323 | $250,000 | $0 | $625,323 | $625,323 |
| 2010 | $393,209 | $250,000 | $0 | $643,209 | $643,209 |
| 2009 | $410,841 | $275,000 | $0 | $685,841 | $685,841 |
| 2008 | $427,476 | $275,000 | $0 | $702,476 | $702,476 |
| 2007 | $433,492 | $275,000 | $0 | $708,492 | $708,492 |
Deed and Sales History
| 1 | 01/01/2020 | WD | Warranty Deed | THE SHIGEKANE FAMILY, LLC | SHIGEKANE TTEE, TODD HOLMES | | | $0.00 | 46832 | 4510093 |
| 2 | 05/09/2018 | WD | Warranty Deed | THE SHIGEKANE FAMILY LLC | THE SHIGEKANE FAMILY, LLC | | | $0.00 | 34251 | 4445049 |
| 3 | 04/01/2016 | WD | Warranty Deed | SHIGEKANE TRUSTEE, HENRY H | THE SHIGEKANE FAMILY LLC | | | $0.00 | 23776 | 4396993 |
| 4 | 06/01/1997 | WD | Warranty Deed | EGAN, ROBERT H | SHIGEKANE, HENRY H | | | $538,000.00 | 71891 | 97008645 |
| 5 | 01/01/1900 | OTHER | Other - Misc. Documents | Unknown | EGAN, ROBERT H | | | $0.00 | 0 | 0 |
Payout Agreement
| No payout information available.. |