| 1 | 09/04/2019 | BARGSLD | Bargain And Sale Deed | NRZ REO X, LLC | LICRASTO, DAVID | | | $260,000.00 | 40719 | 4473517 |
| 2 | 06/25/2019 | QCD | Quit Claim Deed | US BANK NATIONAL ASSOCIATION AS TTEE, | NRZ REO X, LLC | | | $0.00 | 40716 | 4473515 |
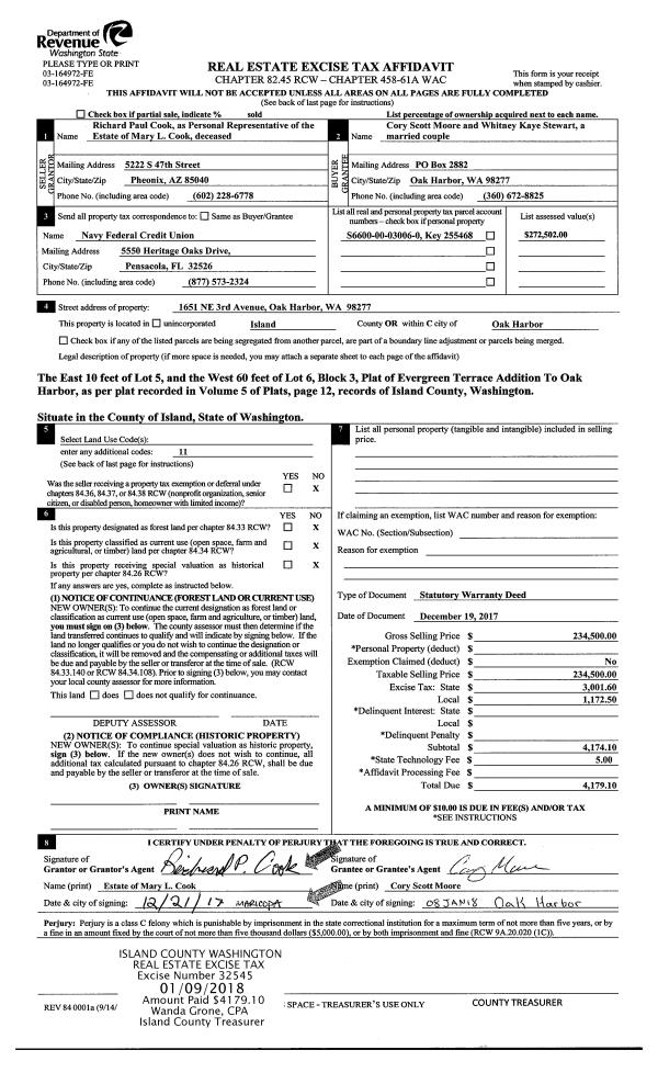
| 3 | 04/10/2018 | WD | Warranty Deed | US BANK NATIONAL ASSOCIATION AS TTEE, | US BANK NATIONAL ASSOCIATION AS TTEE, | | | $0.00 | 34083 | 4444320 |
| 4 | 12/28/2017 | SHERIFFD | Sheriff Deed | US BANK NATIONAL ASSOCIATION AS TTEE, | US BANK NATIONAL ASSOCIATION AS TTEE, | | | $0.00 | 33535 | 4441919 |
| 5 | 12/28/2017 | SHERIFFD | Sheriff Deed | CONKLIN, DAN C | US BANK NATIONAL ASSOCIATION AS TTEE, | | | $0.00 | 32741 | 4438129 |
| 6 | 03/30/2006 | BLA | DNU - Boundary Line Adjustment | CONKLIN, DAN C | CONKLIN, DAN C | | | $0.00 | 70884 | 4138434 |
| 7 | 06/08/2005 | ESTSEPPROP | Establish Separate Property | CONKLIN, JOANN KELLY | CONKLIN, DAN C | | | $0.00 | 52660 | 4137002 |
| 8 | 11/12/1998 | OTHER | Other - Misc. Documents | Unknown | CONKLIN, JOANN KELLY | | | $0.00 | 84534 | 0 |
| 9 | 11/04/1998 | QCD | Quit Claim Deed | KELLY, JOANN | CONKLIN, JOANN KELLY | | | $0.00 | 84533 | 98024618 |
| 10 | 04/01/1995 | WD | Warranty Deed | SHAFFER, ROGER | KELLY, JOANN | | | $33,500.00 | 51337 | 95006276 |
| 11 | 01/01/1900 | OTHER | Other - Misc. Documents | CONKLIN, JOANN KELLY | SHAFFER, ROGER | | | $0.00 | 1789 | 90005725 |