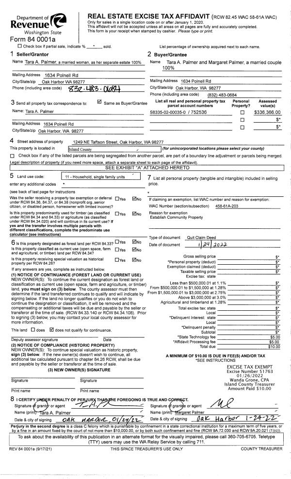
Property
Account |
| Property ID: | 691415 | Abbreviated Legal Description: | PASSAGE VIEW ESTATES - PRD LOT 19 TGW & SUB EZ AF#95007923 |
| Geographic ID: | S7674-00-00019-0 | Agent Code: | |
| Type: | Real | | |
| Tax Area: | 730 - APPRAISER-S Whid Schl Dist, Special District, improved & less than 1 acre | Land Use Code | 11 |
| Open Space: | N | DFL | N |
| Historic Property: | N | Remodel Property: | N |
| Multi-Family Redevelopment: | N | | |
| Township: | | Section: | |
| Range: | |
Location |
| Address: | 3849 PASSAGE VIEW LN LANGLEY, WA 98260 | Mapsco: | |
| Neighborhood: | Cycle 4 | Map ID: | 878 |
| Neighborhood CD: | 4 |
Owner |
| Name: | NORTON TTEE, JAMES HOWARD | Owner ID: | 300411 |
| Mailing Address: | KAREN ANN NORTON TTEE 3849 PASSAGE VIEW LN LANGLEY, WA 98260 | % Ownership: | 100.0000000000% |
| | | Exemptions: | |
Taxes and Assessment Details
Values
| (+) Improvement Homesite Value: | + | $0 | |
| (+) Improvement Non-Homesite Value: | + | $138,077 | |
| (+) Land Homesite Value: | + | $0 | |
| (+) Land Non-Homesite Value: | + | $270,000 | |
| (+) Curr Use (HS): | + | $0 | $0 |
| (+) Curr Use (NHS): | + | $0 | $0 |
| | | -------------------------- | |
| (=) Market Value: | = | $408,077 | |
| (–) Productivity Loss: | – | $0 | |
| | | -------------------------- | |
| (=) Subtotal: | = | $408,077 | |
| (+) Senior Appraised Value: | + | $0 | |
| (+) Non-Senior Appraised Value: | + | $408,077 | |
| | | -------------------------- | |
| (=) Total Appraised Value: | = | $408,077 | |
| (–) Senior Exemption Loss: | – | $0 | |
| (–) Exemption Loss: | – | $0 | |
| | | -------------------------- | |
| (=) Taxable Value: | = | $408,077 | |
Taxing Jurisdiction
| Owner: | NORTON TTEE, JAMES HOWARD | | |
| % Ownership: | 100.0000000000% | | |
| Total Value: | $408,077 | | |
| Tax Area: | 730 - APPRAISER-S Whid Schl Dist, Special District, improved & less than 1 acre |
| CF | Conservation Futures | 0.0316035091 | $408,077 | $408,077 | $12.90 | | |
| FIRE3 | Fire & Rescue Dist #3 S Whidbey GEN | 1.2004855531 | $408,077 | $408,077 | $489.89 | | |
| HOBOND | Hospital BOND | 0.1910887512 | $408,077 | $408,077 | $77.98 | | |
| HOGEN | Hospital GEN | 0.3902502903 | $408,077 | $408,077 | $159.25 | | |
| CE | County Current Expense | 0.3708482477 | $408,077 | $408,077 | $151.33 | | |
| CR | County Roads | 0.4584763726 | $408,077 | $408,077 | $187.09 | | |
| ISLANDEMS | Hospital GEN (EMS) | 0.5000000000 | $408,077 | $408,077 | $204.04 | | |
| LIB | Library Sno-Isle GEN | 0.3153421757 | $408,077 | $408,077 | $128.68 | | |
| PORTWHID | Port of S Whidbey GEN | 0.1094540357 | $408,077 | $408,077 | $44.67 | | |
| SCH206BOND | School 206 BOND | 0.3161759235 | $408,077 | $408,077 | $129.02 | | |
| SCH206MO | School 206 Enrichment | 0.4547169547 | $408,077 | $408,077 | $185.56 | | |
| ST | State School | 1.3035497053 | $408,077 | $408,077 | $531.95 | | |
| ST2 | State School Part 2 | 0.8169543533 | $408,077 | $408,077 | $333.38 | | |
| SWHIDPRBD | P & R S Whidbey BOND | 0.0152817568 | $408,077 | $408,077 | $6.24 | | |
| SWHIDPRBD2 | P & R S Whidbey BOND2 | 0.0138911264 | $408,077 | $408,077 | $5.67 | | |
| SWHIDPRMT | P & R S Whidbey GEN | 0.2053334452 | $408,077 | $408,077 | $83.79 | | |
| | Total Tax Rate: | 6.6934522006 | | | | | |
| | | | | Taxes w/Current Exemptions: | $2,731.44 | | |
| | | | | Taxes w/o Exemptions: | $2,731.44 | | |
Improvement / Building
| Improvement #1: | MANUFACTURED HOME | State Code: | Y | 1188.0 sqft | Value: | $138,077 |
| Bathrooms: | 0 | Bedrooms: | 0 | | Ceiling: | PLASTER PAINTED | Cooling: | EVAP NO DUCT | | Exterior Wall/Cover: | VINYL | Floor Covering: | CARPET 100% | | Floor Structure: | SLAB ON GRADE | Foundation: | SLAB | | Heating: | FHA ELECTRIC | Interior Finish: | PLASTER | | Plumbing Fixture Cnt: | 1 | Roof Slope: | FLAT | | Roof Structure/Cover: | CJ ALUMINIUM HEAVY |   |   |
|
| | Type | Description | Class CD | Sub Class CD | Year Built | Area |
| | BAS | BASE/MAIN FLOOR | 4 | 0 | 2004 | 1188.0 |
| | DGR | DETACHED GARAGE | 4 | 0 | 2004 | 576.0 |
| | OWP | OPEN WOOD PORCH W/STEPS | 4 | 0 | 2004 | 64.0 |
Sketch
Property Image
Land
| 1 | 15 | SQ (12001-21780) | 0.0000 | 0.00 | 0.00 | 0.00 | 1.00 | $270,000 | $0 |
Roll Value History
| 2026 | N/A | N/A | N/A | N/A | N/A |
| 2025 | $138,077 | $270,000 | $0 | $408,077 | $408,077 |
| 2024 | $141,574 | $270,000 | $0 | $411,574 | $411,574 |
| 2023 | $126,134 | $270,000 | $0 | $396,134 | $396,134 |
| 2022 | $116,965 | $210,000 | $0 | $326,965 | $326,965 |
| 2021 | $102,906 | $140,000 | $0 | $242,906 | $242,906 |
| 2020 | $98,753 | $120,000 | $0 | $218,753 | $218,753 |
| 2019 | $78,705 | $150,000 | $0 | $228,705 | $228,705 |
| 2018 | $79,621 | $150,000 | $0 | $229,621 | $229,621 |
| 2017 | $81,452 | $90,000 | $0 | $171,452 | $171,452 |
| 2016 | $82,366 | $90,000 | $0 | $172,366 | $172,366 |
| 2015 | $84,197 | $75,000 | $0 | $159,197 | $159,197 |
| 2014 | $85,790 | $75,000 | $0 | $160,790 | $160,790 |
| 2013 | $87,068 | $75,000 | $0 | $162,068 | $162,068 |
| 2012 | $87,708 | $97,750 | $0 | $185,458 | $185,458 |
| 2011 | $88,986 | $115,000 | $0 | $203,986 | $203,986 |
| 2010 | $91,162 | $115,000 | $0 | $206,162 | $206,162 |
| 2009 | $95,621 | $118,800 | $0 | $214,421 | $214,421 |
| 2008 | $97,178 | $123,750 | $0 | $220,928 | $220,928 |
| 2007 | $96,992 | $65,484 | $0 | $162,476 | $162,476 |
Deed and Sales History
| 1 | 07/23/2021 | QCD | Quit Claim Deed | NORTON TTEE, KAREN | NORTON TTEE, JAMES HOWARD | | | $0.00 | 49396 | 4525634 |
| 2 | 09/19/2018 | WD | Warranty Deed | NORTON, JAMES | NORTON TTEE, KAREN | | | $0.00 | 37616 | 4459386 |
| 3 | 05/24/2018 | QCD | Quit Claim Deed | NORTON TTEE, KAREN | NORTON, JAMES | | | $0.00 | 34275 | 4445158 |
| 4 | 04/11/2006 | WD | Warranty Deed | MILASICH, RICHARD I | NORTON, JAMES H & KAREN A | | | $193,000.00 | 62285 | 4171480 |
| 5 | 05/16/2005 | WD | Warranty Deed | ELLIOTT, MARJORIE H | MILASICH, RICHARD I | | | $25,000.00 | 52341 | 4135442 |
| 6 | 01/12/2000 | TRUSTEED | Trustee's Deed | FRONTIER BANK, | ELLIOTT, MARJORIE H | | | $25,000.00 | 185 | 200001014 |
| 7 | 01/08/1999 | TRUSTEED | Trustee's Deed | SHAFFER, ROGER ( | FRONTIER BANK, | | | $31,425.00 | 90129 | 99000852 |
| 8 | 01/01/1900 | OTHER | Other - Misc. Documents | Unknown | SHAFFER, ROGER ( | | | $0.00 | 1789 | 90005725 |
Payout Agreement
| No payout information available.. |