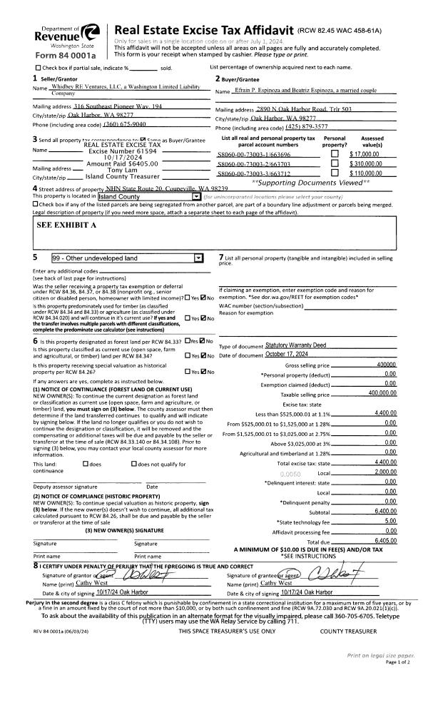
Property
Account |
| Property ID: | 691503 | Abbreviated Legal Description: | PT SEC 29 & 30 DESC: BG W/4 SEC 29 S88*E650.62' N1*E730 .11' S80*W728.59' TO ELN ST HWY 525 S2*E601.33' S86*E32 .61' TPB TGW & SUB EZ AF#96009609 EX PT TO ST HWY AF#99019695 |
| Geographic ID: | R23129-300-0250 | Agent Code: | |
| Type: | Real | | |
| Tax Area: | 312 - APPRAISER-Cpvl Schl Dist, outside Cpvl, improved, greater than 1 acre | Land Use Code | 11 |
| Open Space: | N | DFL | N |
| Historic Property: | N | Remodel Property: | N |
| Multi-Family Redevelopment: | N | | |
| Township: | 31 | Section: | 29 |
| Range: | R2 |
Location |
| Address: | 420 ROSIE LN COUPEVILLE, WA 98239 | Mapsco: | |
| Neighborhood: | Cycle 2 | Map ID: | 518 |
| Neighborhood CD: | 2 |
Owner |
| Name: | WHITMAN, COLLEEN DENISE | Owner ID: | 254112 |
| Mailing Address: | ELMER E PERSHALL 420 ROSIE LANE COUPEVILLE, WA 98239 | % Ownership: | 100.0000000000% |
| | | Exemptions: | |
Taxes and Assessment Details
Values
| (+) Improvement Homesite Value: | + | $0 | |
| (+) Improvement Non-Homesite Value: | + | $8,082 | |
| (+) Land Homesite Value: | + | $0 | |
| (+) Land Non-Homesite Value: | + | $355,669 | |
| (+) Curr Use (HS): | + | $0 | $0 |
| (+) Curr Use (NHS): | + | $0 | $0 |
| | | -------------------------- | |
| (=) Market Value: | = | $363,751 | |
| (–) Productivity Loss: | – | $0 | |
| | | -------------------------- | |
| (=) Subtotal: | = | $363,751 | |
| (+) Senior Appraised Value: | + | $0 | |
| (+) Non-Senior Appraised Value: | + | $363,751 | |
| | | -------------------------- | |
| (=) Total Appraised Value: | = | $363,751 | |
| (–) Senior Exemption Loss: | – | $0 | |
| (–) Exemption Loss: | – | $0 | |
| | | -------------------------- | |
| (=) Taxable Value: | = | $363,751 | |
Taxing Jurisdiction
| Owner: | WHITMAN, COLLEEN DENISE | | |
| % Ownership: | 100.0000000000% | | |
| Total Value: | $363,751 | | |
| Tax Area: | 312 - APPRAISER-Cpvl Schl Dist, outside Cpvl, improved, greater than 1 acre |
| CF | Conservation Futures | 0.0316035091 | $363,751 | $363,751 | $11.50 | | |
| CEM2 | Cemetery #2 | 0.0095056933 | $363,751 | $363,751 | $3.46 | | |
| FIRE5 | Fire & Rescue Dist #5 C Whidbey GEN | 1.2008080668 | $363,751 | $363,751 | $436.80 | | |
| FIRE5BOND | Fire & Rescue Dist #5 C Whidbey BOND | 0.1400090713 | $363,751 | $363,751 | $50.93 | | |
| HOBOND | Hospital BOND | 0.1910887512 | $363,751 | $363,751 | $69.51 | | |
| HOGEN | Hospital GEN | 0.3902502903 | $363,751 | $363,751 | $141.95 | | |
| CE | County Current Expense | 0.3708482477 | $363,751 | $363,751 | $134.90 | | |
| CR | County Roads | 0.4584763726 | $363,751 | $363,751 | $166.77 | | |
| ISLANDEMS | Hospital GEN (EMS) | 0.5000000000 | $363,751 | $363,751 | $181.88 | | |
| LIB | Library Sno-Isle GEN | 0.3153421757 | $363,751 | $363,751 | $114.71 | | |
| LIBCAP | Library Sno-Isle BOND (Cap Fac Imp Area) | 0.0543427938 | $363,751 | $363,751 | $19.77 | | |
| POCOUP | Port of Coupeville GEN | 0.1093371703 | $363,751 | $363,751 | $39.77 | | |
| POCOUPIDD | Port of Coupeville IDD | 0.3409740022 | $363,751 | $363,751 | $124.03 | | |
| COUPSDTECH | School 204 CP (TECH) | 0.7545480007 | $363,751 | $363,751 | $274.47 | | |
| SCH204MO | School 204 Enrichment | 0.6716186034 | $363,751 | $363,751 | $244.30 | | |
| ST | State School | 1.3035497053 | $363,751 | $363,751 | $474.17 | | |
| ST2 | State School Part 2 | 0.8169543533 | $363,751 | $363,751 | $297.17 | | |
| | Total Tax Rate: | 7.6592568070 | | | | | |
| | | | | Taxes w/Current Exemptions: | $2,786.09 | | |
| | | | | Taxes w/o Exemptions: | $2,786.09 | | |
Improvement / Building
| Improvement #1: | RESIDENTIAL | State Code: | Y | 0.0 sqft | Value: | $8,082 |
Sketch
| No sketches available for this property. |
Property Image
Land
| 1 | 91 | UNDEVELOPED LAND-METES AND BOUNDS | 9.3500 | 407286.00 | 0.00 | 0.00 | 1.00 | $135,669 | $0 |
| 2 | HS | HOMESITE | 1.0000 | 43560.00 | 0.00 | 0.00 | 1.00 | $220,000 | $0 |
Roll Value History
| 2026 | N/A | N/A | N/A | N/A | N/A |
| 2025 | $8,082 | $355,669 | $0 | $363,751 | $363,751 |
| 2024 | $7,600 | $310,000 | $0 | $317,600 | $317,600 |
| 2023 | $7,600 | $290,000 | $0 | $297,600 | $297,600 |
| 2022 | $7,600 | $260,000 | $0 | $267,600 | $267,600 |
| 2021 | $7,600 | $250,000 | $0 | $257,600 | $257,600 |
| 2020 | $7,600 | $250,000 | $0 | $257,600 | $257,600 |
| 2019 | $7,600 | $250,000 | $0 | $257,600 | $257,600 |
| 2018 | $4,000 | $200,000 | $0 | $204,000 | $204,000 |
| 2017 | $4,000 | $160,000 | $0 | $164,000 | $164,000 |
| 2016 | $4,000 | $140,000 | $0 | $144,000 | $144,000 |
| 2015 | $4,000 | $140,000 | $0 | $144,000 | $144,000 |
| 2014 | $4,000 | $140,000 | $0 | $144,000 | $144,000 |
| 2013 | $4,000 | $140,000 | $0 | $144,000 | $144,000 |
| 2012 | $4,000 | $139,725 | $0 | $143,725 | $143,725 |
| 2011 | $4,000 | $155,250 | $0 | $159,250 | $159,250 |
| 2010 | $4,000 | $155,250 | $0 | $159,250 | $159,250 |
| 2009 | $14,504 | $227,700 | $0 | $242,204 | $242,204 |
| 2008 | $14,612 | $155,250 | $0 | $169,862 | $169,862 |
| 2007 | $25,490 | $144,444 | $0 | $169,934 | $169,934 |
Deed and Sales History
| 1 | 04/11/2011 | QCD | Quit Claim Deed | HOEHN, COLLEEN DENISE | WHITMAN, COLLEEN DENISE | | | $49,000.00 | 4192 | 4294030 |
| 2 | 02/21/2006 | QCD | Quit Claim Deed | WIHTMAN, FRANKLIN D | HOEHN, COLLEEN DENISE | | | $0.00 | 64655 | 4185576 |
| 3 | 01/30/2006 | WD | Warranty Deed | HOEHN, TIM | WIHTMAN, FRANKLIN D | | | $100,150.00 | 60828 | 4163306 |
| 4 | 08/26/2003 | ESTSEPPROP | Establish Separate Property | HOEHN, TIM | HOEHN, TIM | | | $0.00 | 33784 | 4072839 |
| 5 | 08/08/2000 | WD | Warranty Deed | NICHOLS, MATHEW J | HOEHN, TIM | | | $79,500.00 | 3404 | 20015745 |
| 6 | 07/09/1999 | WD | Warranty Deed | NICHOLS, MATHEW J | NICHOLS, MATHEW J | | | $6,000.00 | 93430 | 99019695 |
| 7 | 08/31/1998 | QCD | Quit Claim Deed | NICHOLS, LUKE J | NICHOLS, MATHEW J | | | $0.00 | 83523 | 98018263 |
| 8 | 03/01/1995 | WD | Warranty Deed | DRUMHELLER, GLENN W | NICHOLS, LUKE J | | | $72,000.00 | 50908 | 95004356 |
| 9 | 03/01/1994 | OTHER | Other - Misc. Documents | DRUMHELLER, GLENN W | DRUMHELLER, GLENN W | | | $0.00 | 65805 | 94005350 |
| 10 | 01/01/1900 | OTHER | Other - Misc. Documents | Unknown | DRUMHELLER, GLENN W | | | $0.00 | 24550 | 92022246 |
Payout Agreement
| No payout information available.. |