Property
Account |
| Property ID: | 692183 | Abbreviated Legal Description: | ALEX GLEN LOT 4 BLK 16 TGW W125' OF FOLL DESC: BG PT 125'W OF SECR BLK 16 ALEX-GLEN S39' E155' S1' E81' N40' W236' TPB EX PT LY S OF FOLL DESC LN: BG SWCR BLK 16 ALEX-GLEN S36' TPB SD LN E125' TO TERM PT SD LN |
| Geographic ID: | S6025-00-16004-0 | Agent Code: | |
| Type: | Real | | |
| Tax Area: | 300 - APPRAISER-Cpvl Schl Dist, in Cpvl | Land Use Code | 11 |
| Open Space: | N | DFL | N |
| Historic Property: | N | Remodel Property: | N |
| Multi-Family Redevelopment: | N | | |
| Township: | | Section: | |
| Range: | |
Location |
| Address: | 709 NW ALEXANDER ST COUPEVILLE, WA 98239 | Mapsco: | |
| Neighborhood: | Cycle 2 | Map ID: | 175 |
| Neighborhood CD: | 2 |
Owner |
| Name: | BYRNE, DONDI | Owner ID: | 316219 |
| Mailing Address: | 1 NW FRONT STREET COUPEVILLE, WA 98239 | % Ownership: | 100.0000000000% |
| | | Exemptions: | |
Taxes and Assessment Details
Values
| (+) Improvement Homesite Value: | + | $0 | |
| (+) Improvement Non-Homesite Value: | + | $271,585 | |
| (+) Land Homesite Value: | + | $0 | |
| (+) Land Non-Homesite Value: | + | $260,000 | |
| (+) Curr Use (HS): | + | $0 | $0 |
| (+) Curr Use (NHS): | + | $0 | $0 |
| | | -------------------------- | |
| (=) Market Value: | = | $531,585 | |
| (–) Productivity Loss: | – | $0 | |
| | | -------------------------- | |
| (=) Subtotal: | = | $531,585 | |
| (+) Senior Appraised Value: | + | $0 | |
| (+) Non-Senior Appraised Value: | + | $531,585 | |
| | | -------------------------- | |
| (=) Total Appraised Value: | = | $531,585 | |
| (–) Senior Exemption Loss: | – | $0 | |
| (–) Exemption Loss: | – | $0 | |
| | | -------------------------- | |
| (=) Taxable Value: | = | $531,585 | |
Taxing Jurisdiction
| Owner: | BYRNE, DONDI | | |
| % Ownership: | 100.0000000000% | | |
| Total Value: | $531,585 | | |
| Tax Area: | 300 - APPRAISER-Cpvl Schl Dist, in Cpvl |
| CF | Conservation Futures | 0.0316035091 | $531,585 | $531,585 | $16.80 | | |
| CEM2 | Cemetery #2 | 0.0095056933 | $531,585 | $531,585 | $5.05 | | |
| COUP | City: Town of Coupeville | 0.8426414490 | $531,585 | $531,585 | $447.94 | | |
| FIRE5 | Fire & Rescue Dist #5 C Whidbey GEN | 1.2008080668 | $531,585 | $531,585 | $638.33 | | |
| FIRE5BOND | Fire & Rescue Dist #5 C Whidbey BOND | 0.1400090713 | $531,585 | $531,585 | $74.43 | | |
| HOBOND | Hospital BOND | 0.1910887512 | $531,585 | $531,585 | $101.58 | | |
| HOGEN | Hospital GEN | 0.3902502903 | $531,585 | $531,585 | $207.45 | | |
| CE | County Current Expense | 0.3708482477 | $531,585 | $531,585 | $197.14 | | |
| ISLANDEMS | Hospital GEN (EMS) | 0.5000000000 | $531,585 | $531,585 | $265.79 | | |
| LIB | Library Sno-Isle GEN | 0.3153421757 | $531,585 | $531,585 | $167.63 | | |
| LIBCAP | Library Sno-Isle BOND (Cap Fac Imp Area) | 0.0543427938 | $531,585 | $531,585 | $28.89 | | |
| POCOUP | Port of Coupeville GEN | 0.1093371703 | $531,585 | $531,585 | $58.12 | | |
| POCOUPIDD | Port of Coupeville IDD | 0.3409740022 | $531,585 | $531,585 | $181.26 | | |
| COUPSDTECH | School 204 CP (TECH) | 0.7545480007 | $531,585 | $531,585 | $401.11 | | |
| SCH204MO | School 204 Enrichment | 0.6716186034 | $531,585 | $531,585 | $357.02 | | |
| ST | State School | 1.3035497053 | $531,585 | $531,585 | $692.95 | | |
| ST2 | State School Part 2 | 0.8169543533 | $531,585 | $531,585 | $434.28 | | |
| | Total Tax Rate: | 8.0434218834 | | | | | |
| | | | | Taxes w/Current Exemptions: | $4,275.77 | | |
| | | | | Taxes w/o Exemptions: | $4,275.77 | | |
Improvement / Building
| Improvement #1: | RESIDENTIAL | State Code: | Y | 1396.0 sqft | Value: | $271,585 |
| Bathrooms: | 1.5 | Bedrooms: | 0 | | Ceiling: | DRYWALL PAINTED | Exterior Wall/Cover: | CEMENT FIBER | | Floor Covering: | SOFTWOOD 100% | Floor Structure: | WOOD W/SUBFLOOR | | Foundation: | CONCRETE | Heating: | FHA GAS | | Interior Finish: | DRYWALL PAINT | Plumbing Fixture Cnt: | 8 | | Roof Slope: | 12" IN 12" | Roof Structure/Cover: | CJ ASPHALT |
|
| | Type | Description | Class CD | Sub Class CD | Year Built | Area |
| | BAS | BASE/MAIN FLOOR | 4 | 0 | 1994 | 836.0 |
| | OP2 | OPEN PORCH W/STEPS | 4 | 0 | 1994 | 21.5 |
| | UPS | UPPER STORY | 4 | 0 | 1994 | 560.0 |
Sketch
Property Image
Land
| 1 | 14 | SQ (08001-12000) | 0.2300 | 10018.80 | 0.00 | 0.00 | 1.00 | $260,000 | $0 |
Roll Value History
| 2026 | N/A | N/A | N/A | N/A | N/A |
| 2025 | $271,585 | $260,000 | $0 | $531,585 | $531,585 |
| 2024 | $254,805 | $240,000 | $0 | $494,805 | $494,805 |
| 2023 | $258,062 | $240,000 | $0 | $498,062 | $498,062 |
| 2022 | $236,630 | $200,000 | $0 | $436,630 | $436,630 |
| 2021 | $208,329 | $150,000 | $0 | $358,329 | $358,329 |
| 2020 | $203,072 | $130,000 | $0 | $333,072 | $333,072 |
| 2019 | $148,958 | $170,000 | $0 | $318,958 | $318,958 |
| 2018 | $143,776 | $150,000 | $0 | $293,776 | $293,776 |
| 2017 | $144,707 | $125,000 | $0 | $269,707 | $269,707 |
| 2016 | $146,603 | $115,000 | $0 | $261,603 | $261,603 |
| 2015 | $148,501 | $90,000 | $0 | $238,501 | $238,501 |
| 2014 | $150,398 | $85,000 | $0 | $235,398 | $235,398 |
| 2013 | $152,296 | $85,000 | $0 | $237,296 | $237,296 |
| 2012 | $156,036 | $89,250 | $0 | $245,286 | $245,286 |
| 2011 | $157,932 | $105,000 | $0 | $262,932 | $262,932 |
| 2010 | $169,670 | $105,000 | $0 | $274,670 | $274,670 |
| 2009 | $176,793 | $125,000 | $0 | $301,793 | $301,793 |
| 2008 | $179,255 | $134,000 | $0 | $313,255 | $313,255 |
| 2007 | $181,698 | $105,000 | $0 | $286,698 | $286,698 |
Deed and Sales History
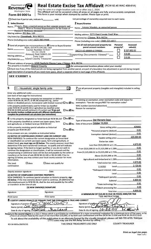
| 1 | 04/23/2025 | PRD | Personal Representatives Deed | BURCHAM, JO A | BYRNE, DONDI | | | $0.00 | 63231 | 4584890 |
| 2 | 06/01/1995 | WD | Warranty Deed | TICHY, FRANK R | BURCHAM, JO A | | | $165,000.00 | 52006 | 95009337 |
| 3 | 03/01/1994 | OTHER | Other - Misc. Documents | TICHY, FRANK R | TICHY, FRANK R | | | $0.00 | 65830 | 94008684 |
| 4 | 01/01/1900 | OTHER | Other - Misc. Documents | Unknown | TICHY, FRANK R | | | $0.00 | 34617 | 93024102 |
Payout Agreement
| No payout information available.. |