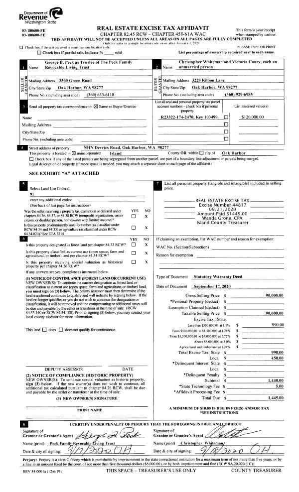
Property
Account |
| Property ID: | 692469 | Abbreviated Legal Description: | LOT 1 SP 55-93.22923.502-2970 V2 SP P457 AF#94008402 |
| Geographic ID: | R22923-487-2930 | Agent Code: | |
| Type: | Real | | |
| Tax Area: | 712 - APPRAISER-S Whid Schl Dist, outside Langley, improved, greater than 1 acre | Land Use Code | 11 |
| Open Space: | N | DFL | N |
| Historic Property: | N | Remodel Property: | N |
| Multi-Family Redevelopment: | N | | |
| Township: | 29 | Section: | 23 |
| Range: | R2 |
Location |
| Address: | 6030 MCMASTER RD FREELAND, WA 98249 | Mapsco: | |
| Neighborhood: | Cycle 3 | Map ID: | 341 |
| Neighborhood CD: | 3 |
Owner |
| Name: | KANGAS, TIMOTHY J | Owner ID: | 199736 |
| Mailing Address: | ELAINE J KANGAS 6030 MCMASTER RD FREELAND, WA 98249-9304 | % Ownership: | 100.0000000000% |
| | | Exemptions: | |
Taxes and Assessment Details
Values
| (+) Improvement Homesite Value: | + | $0 | |
| (+) Improvement Non-Homesite Value: | + | $957,894 | |
| (+) Land Homesite Value: | + | $0 | |
| (+) Land Non-Homesite Value: | + | $470,000 | |
| (+) Curr Use (HS): | + | $0 | $0 |
| (+) Curr Use (NHS): | + | $0 | $0 |
| | | -------------------------- | |
| (=) Market Value: | = | $1,427,894 | |
| (–) Productivity Loss: | – | $0 | |
| | | -------------------------- | |
| (=) Subtotal: | = | $1,427,894 | |
| (+) Senior Appraised Value: | + | $0 | |
| (+) Non-Senior Appraised Value: | + | $1,427,894 | |
| | | -------------------------- | |
| (=) Total Appraised Value: | = | $1,427,894 | |
| (–) Senior Exemption Loss: | – | $0 | |
| (–) Exemption Loss: | – | $0 | |
| | | -------------------------- | |
| (=) Taxable Value: | = | $1,427,894 | |
Taxing Jurisdiction
| Owner: | KANGAS, TIMOTHY J | | |
| % Ownership: | 100.0000000000% | | |
| Total Value: | $1,427,894 | | |
| Tax Area: | 712 - APPRAISER-S Whid Schl Dist, outside Langley, improved, greater than 1 acre |
| CF | Conservation Futures | 0.0316035091 | $1,427,894 | $1,427,894 | $45.13 | | |
| FIRE3 | Fire & Rescue Dist #3 S Whidbey GEN | 1.2004855531 | $1,427,894 | $1,427,894 | $1,714.17 | | |
| HOBOND | Hospital BOND | 0.1910887512 | $1,427,894 | $1,427,894 | $272.85 | | |
| HOGEN | Hospital GEN | 0.3902502903 | $1,427,894 | $1,427,894 | $557.24 | | |
| CE | County Current Expense | 0.3708482477 | $1,427,894 | $1,427,894 | $529.53 | | |
| CR | County Roads | 0.4584763726 | $1,427,894 | $1,427,894 | $654.66 | | |
| ISLANDEMS | Hospital GEN (EMS) | 0.5000000000 | $1,427,894 | $1,427,894 | $713.95 | | |
| LIB | Library Sno-Isle GEN | 0.3153421757 | $1,427,894 | $1,427,894 | $450.28 | | |
| PORTWHID | Port of S Whidbey GEN | 0.1094540357 | $1,427,894 | $1,427,894 | $156.29 | | |
| SCH206BOND | School 206 BOND | 0.3161759235 | $1,427,894 | $1,427,894 | $451.47 | | |
| SCH206MO | School 206 Enrichment | 0.4547169547 | $1,427,894 | $1,427,894 | $649.29 | | |
| ST | State School | 1.3035497053 | $1,427,894 | $1,427,894 | $1,861.33 | | |
| ST2 | State School Part 2 | 0.8169543533 | $1,427,894 | $1,427,894 | $1,166.52 | | |
| SWHIDPRBD | P & R S Whidbey BOND | 0.0152817568 | $1,427,894 | $1,427,894 | $21.82 | | |
| SWHIDPRBD2 | P & R S Whidbey BOND2 | 0.0138911264 | $1,427,894 | $1,427,894 | $19.84 | | |
| SWHIDPRMT | P & R S Whidbey GEN | 0.2053334452 | $1,427,894 | $1,427,894 | $293.19 | | |
| | Total Tax Rate: | 6.6934522006 | | | | | |
| | | | | Taxes w/Current Exemptions: | $9,557.56 | | |
| | | | | Taxes w/o Exemptions: | $9,557.56 | | |
Improvement / Building
| Improvement #1: | RESIDENTIAL | State Code: | Y | 4201.8 sqft | Value: | $957,894 |
| Bathrooms: | 3 | Bedrooms: | 2 | | Ceiling: | DRYWALL PAINTED | Exterior Wall/Cover: | WOOD SIDING | | Floor Covering: | HARDWOOD/CARP 20-80 | Floor Structure: | WOOD W/SUBFLOOR | | Foundation: | CONCRETE | Heating: | RADIANT FLOOR | | Interior Finish: | DRYWALL PAINT | Plumbing Fixture Cnt: | 16 | | Roof Slope: | 8" IN 12" | Roof Structure/Cover: | CJ ASPHALT |
|
| | Type | Description | Class CD | Sub Class CD | Year Built | Area |
| | BAS | BASE/MAIN FLOOR | 5 | 0 | 1993 | 2920.8 |
| | OP2 | OPEN PORCH W/STEPS | 5 | 0 | 1993 | 1652.0 |
| | OP2 | OPEN PORCH W/STEPS | 5 | 0 | 1993 | 60.0 |
| | OP2 | OPEN PORCH W/STEPS | 5 | 0 | 1993 | 42.0 |
| | OP2 | OPEN PORCH W/STEPS | 5 | 0 | 1993 | 222.0 |
| | DGR | DETACHED GARAGE | 5 | 0 | 1993 | 1080.0 |
| | AGR | ATTACHED GARAGE | 5 | 0 | 1993 | 480.0 |
| | UTY | STORAGE/UTILITY | 5 | 0 | 1993 | 576.0 |
| | OWP | OPEN WOOD PORCH W/STEPS | 5 | 0 | 1993 | 126.0 |
| | OP1 | OPEN PORCH SLAB | 5 | 0 | 1993 | 391.0 |
| | OWC | OPEN WOOD PORCH W/STEPS/ROOF/C | 5 | 0 | 1993 | 486.7 |
| | ENP | ENCLOSED PORCH | 5 | 0 | 1993 | 384.0 |
| | UPH | HALF STORY | 5 | 0 | 1993 | 1281.0 |
| | OWC | OPEN WOOD PORCH W/STEPS/ROOF/C | 5 | 0 | 1993 | 54.0 |
Sketch
Property Image
Land
| 1 | 32 | AC (03.01-09.99) | 4.9600 | 0.00 | 0.00 | 0.00 | 1.00 | $470,000 | $0 |
Roll Value History
| 2026 | N/A | N/A | N/A | N/A | N/A |
| 2025 | $957,894 | $470,000 | $0 | $1,427,894 | $1,427,894 |
| 2024 | $969,831 | $450,000 | $0 | $1,419,831 | $1,419,831 |
| 2023 | $981,767 | $420,000 | $0 | $1,401,767 | $1,401,767 |
| 2022 | $899,825 | $400,000 | $0 | $1,299,825 | $1,299,825 |
| 2021 | $791,837 | $360,000 | $0 | $1,151,837 | $1,151,837 |
| 2020 | $772,740 | $360,000 | $0 | $1,132,740 | $1,132,740 |
| 2019 | $622,427 | $370,000 | $0 | $992,427 | $992,427 |
| 2018 | $624,416 | $300,000 | $0 | $924,416 | $924,416 |
| 2017 | $628,393 | $275,000 | $0 | $903,393 | $903,393 |
| 2016 | $636,348 | $275,000 | $0 | $911,348 | $911,348 |
| 2015 | $644,303 | $272,800 | $0 | $917,103 | $917,103 |
| 2014 | $652,256 | $272,800 | $0 | $925,056 | $925,056 |
| 2013 | $660,660 | $272,800 | $0 | $933,460 | $933,460 |
| 2012 | $668,781 | $272,800 | $0 | $941,581 | $941,581 |
| 2011 | $676,906 | $272,800 | $0 | $949,706 | $949,706 |
| 2010 | $709,980 | $272,800 | $0 | $982,780 | $982,780 |
| 2009 | $740,135 | $372,000 | $0 | $1,112,135 | $1,112,135 |
| 2008 | $749,990 | $312,480 | $0 | $1,062,470 | $1,062,470 |
| 2007 | $753,771 | $232,128 | $0 | $985,899 | $985,899 |
Deed and Sales History
| 1 | 03/12/2008 | WD | Warranty Deed | GRIGSBY, WILLIAM R | KANGAS, TIMOTHY J | | | $1,100,000.00 | 80636 | 4224205 |
| 2 | 08/01/1998 | WD | Warranty Deed | GRIGSBY, WILLIAM R | GRIGSBY, WILLIAM R | | | $759,000.00 | 83127 | 98016356 |
| 3 | 01/01/1900 | OTHER | Other - Misc. Documents | Unknown | MOCK, JAMES E | | | $0.00 | 30503 | 93002731 |
| 4 | 01/01/1900 | OTHER | Other - Misc. Documents | MOCK, JAMES E | GRIGSBY, WILLIAM R | | | $0.00 | 83127 | 98016356 |
Payout Agreement
| No payout information available.. |