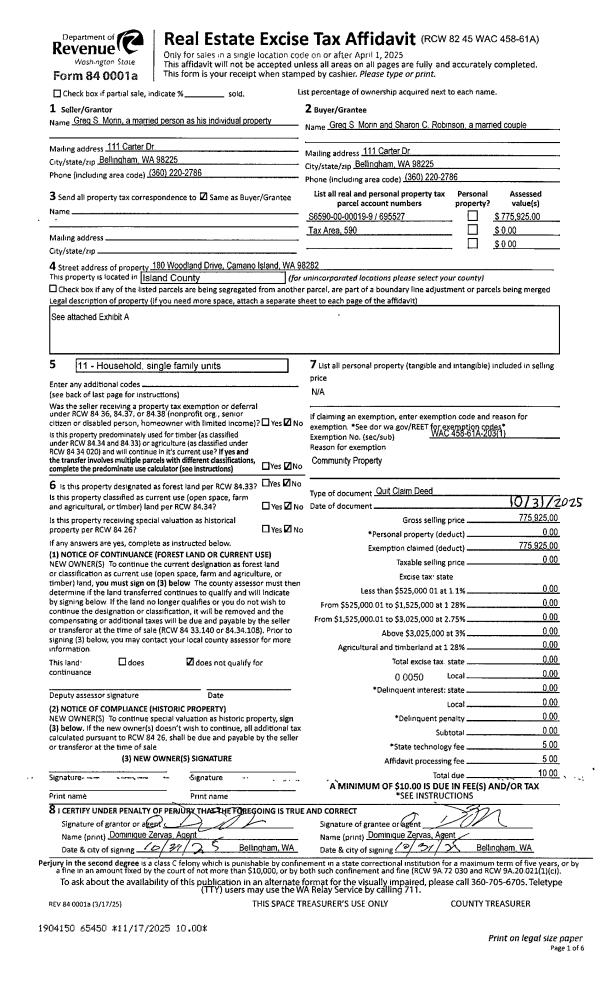
Property
Account |
| Property ID: | 692539 | Abbreviated Legal Description: | LOT 2 C-SP 91-01.13233.253-2500 V2 SP P406 AF#93012564 |
| Geographic ID: | R13233-255-2550 | Agent Code: | |
| Type: | Real | | |
| Tax Area: | 300 - APPRAISER-Cpvl Schl Dist, in Cpvl | Land Use Code | 11 |
| Open Space: | N | DFL | N |
| Historic Property: | N | Remodel Property: | N |
| Multi-Family Redevelopment: | N | | |
| Township: | 32 | Section: | 33 |
| Range: | R1 |
Location |
| Address: | 409 NW BROADWAY ST COUPEVILLE, WA 98239 | Mapsco: | |
| Neighborhood: | Area 2 Coupeville Non-Waterfront Residential | Map ID: | 172 |
| Neighborhood CD: | 2CPV02R |
Owner |
| Name: | DAGUE, DAN KEVIN | Owner ID: | 308024 |
| Mailing Address: | PENELOPE SUSAN DAGUE 409 NW BROADWAY ST COUPEVILLE, WA 98239 | % Ownership: | 100.0000000000% |
| | | Exemptions: | |
Taxes and Assessment Details
Values
| (+) Improvement Homesite Value: | + | $0 | |
| (+) Improvement Non-Homesite Value: | + | $477,458 | |
| (+) Land Homesite Value: | + | $0 | |
| (+) Land Non-Homesite Value: | + | $235,750 | |
| (+) Curr Use (HS): | + | $0 | $0 |
| (+) Curr Use (NHS): | + | $0 | $0 |
| | | -------------------------- | |
| (=) Market Value: | = | $713,208 | |
| (–) Productivity Loss: | – | $0 | |
| | | -------------------------- | |
| (=) Subtotal: | = | $713,208 | |
| (+) Senior Appraised Value: | + | $0 | |
| (+) Non-Senior Appraised Value: | + | $713,208 | |
| | | -------------------------- | |
| (=) Total Appraised Value: | = | $713,208 | |
| (–) Senior Exemption Loss: | – | $0 | |
| (–) Exemption Loss: | – | $0 | |
| | | -------------------------- | |
| (=) Taxable Value: | = | $713,208 | |
Taxing Jurisdiction
| Owner: | DAGUE, DAN KEVIN | | |
| % Ownership: | 100.0000000000% | | |
| Total Value: | $713,208 | | |
| Tax Area: | 300 - APPRAISER-Cpvl Schl Dist, in Cpvl |
| CF | Conservation Futures | 0.0316035091 | $713,208 | $713,208 | $22.54 | | |
| CEM2 | Cemetery #2 | 0.0095056933 | $713,208 | $713,208 | $6.78 | | |
| COUP | City: Town of Coupeville | 0.8426414490 | $713,208 | $713,208 | $600.98 | | |
| FIRE5 | Fire & Rescue Dist #5 C Whidbey GEN | 1.2008080668 | $713,208 | $713,208 | $856.43 | | |
| FIRE5BOND | Fire & Rescue Dist #5 C Whidbey BOND | 0.1400090713 | $713,208 | $713,208 | $99.86 | | |
| HOBOND | Hospital BOND | 0.1910887512 | $713,208 | $713,208 | $136.29 | | |
| HOGEN | Hospital GEN | 0.3902502903 | $713,208 | $713,208 | $278.33 | | |
| CE | County Current Expense | 0.3708482477 | $713,208 | $713,208 | $264.49 | | |
| ISLANDEMS | Hospital GEN (EMS) | 0.5000000000 | $713,208 | $713,208 | $356.60 | | |
| LIB | Library Sno-Isle GEN | 0.3153421757 | $713,208 | $713,208 | $224.90 | | |
| LIBCAP | Library Sno-Isle BOND (Cap Fac Imp Area) | 0.0543427938 | $713,208 | $713,208 | $38.76 | | |
| POCOUP | Port of Coupeville GEN | 0.1093371703 | $713,208 | $713,208 | $77.98 | | |
| POCOUPIDD | Port of Coupeville IDD | 0.3409740022 | $713,208 | $713,208 | $243.19 | | |
| COUPSDTECH | School 204 CP (TECH) | 0.7545480007 | $713,208 | $713,208 | $538.15 | | |
| SCH204MO | School 204 Enrichment | 0.6716186034 | $713,208 | $713,208 | $479.00 | | |
| ST | State School | 1.3035497053 | $713,208 | $713,208 | $929.70 | | |
| ST2 | State School Part 2 | 0.8169543533 | $713,208 | $713,208 | $582.66 | | |
| | Total Tax Rate: | 8.0434218834 | | | | | |
| | | | | Taxes w/Current Exemptions: | $5,736.64 | | |
| | | | | Taxes w/o Exemptions: | $5,736.64 | | |
Improvement / Building
| Improvement #1: | RESIDENTIAL | State Code: | Y | 2567.5 sqft | Value: | $477,458 |
| Bathrooms: | 2.5 | Bedrooms: | 4 | | Ceiling: | DRYWALL PAINTED | Cooling: | HEAT PUMP/CONV/V | | Exterior Wall/Cover: | CEMENT FIBER | Floor Covering: | CARPET/VINYL 60-40 | | Floor Structure: | WOOD W/SUBFLOOR | Foundation: | CONCRETE | | Interior Finish: | DRYWALL PAINT | Plumbing Fixture Cnt: | 13 | | Roof Slope: | 6" IN 12" | Roof Structure/Cover: | CJ ASPHALT |
|
| | Type | Description | Class CD | Sub Class CD | Year Built | Area |
| | BAS | BASE/MAIN FLOOR | 3 | 0 | 2023 | 1031.5 |
| | UPS | UPPER STORY | 3 | 0 | 2023 | 960.0 |
| | DGR | DETACHED GARAGE | 3 | 0 | 2023 | 576.0 |
| | OWC | OPEN WOOD PORCH W/STEPS/ROOF/C | 3 | 0 | 2023 | 180.0 |
| | OP4 | OPEN PORCH W/CEILING-ROOF | 3 | 0 | 2023 | 160.0 |
| | OWP | OPEN WOOD PORCH W/STEPS | 3 | 0 | 2023 | 46.8 |
| | UPS | UPPER STORY | 3 | 0 | 2023 | 576.0 |
| | OWC | OPEN WOOD PORCH W/STEPS/ROOF/C | 3 | 0 | 2023 | 25.0 |
| | OWP | OPEN WOOD PORCH W/STEPS | 3 | 0 | 2023 | 180.0 |
Sketch
| No sketches available for this property. |
Property Image
Land
| 1 | HS | HOMESITE | 0.2300 | 10018.80 | 0.00 | 0.00 | 1.00 | $235,750 | $0 |
Roll Value History
| 2026 | N/A | N/A | N/A | N/A | N/A |
| 2025 | $477,458 | $235,750 | $0 | $713,208 | $713,208 |
| 2024 | $409,461 | $240,000 | $0 | $649,461 | $649,461 |
| 2023 | $374,895 | $270,000 | $0 | $644,895 | $644,895 |
| 2022 | $0 | $95,000 | $0 | $95,000 | $95,000 |
| 2021 | $0 | $75,000 | $0 | $75,000 | $75,000 |
| 2020 | $0 | $75,000 | $0 | $75,000 | $75,000 |
| 2019 | $0 | $75,000 | $0 | $75,000 | $75,000 |
| 2018 | $0 | $75,000 | $0 | $75,000 | $75,000 |
| 2017 | $0 | $75,000 | $0 | $75,000 | $75,000 |
| 2016 | $0 | $75,000 | $0 | $75,000 | $75,000 |
| 2015 | $0 | $75,000 | $0 | $75,000 | $75,000 |
| 2014 | $0 | $75,000 | $0 | $75,000 | $75,000 |
| 2013 | $0 | $75,000 | $0 | $75,000 | $75,000 |
| 2012 | $0 | $75,000 | $0 | $75,000 | $75,000 |
| 2011 | $0 | $75,000 | $0 | $75,000 | $75,000 |
| 2010 | $0 | $75,000 | $0 | $75,000 | $75,000 |
| 2009 | $0 | $85,000 | $0 | $85,000 | $85,000 |
| 2008 | $0 | $90,000 | $0 | $90,000 | $90,000 |
| 2007 | $0 | $90,000 | $0 | $90,000 | $90,000 |
Deed and Sales History
| 1 | 03/16/2023 | WD | Warranty Deed | STUURMANS, CECIL E | DAGUE, DAN KEVIN | | | $695,000.00 | 56149 | 4557899 |
| 2 | 01/27/2021 | EZ | Easement | STUURMANS, CECIL E | STUURMANS, CECIL E | | | $10,000.00 | 46824 | 4510046 |
|   | |
| 3 | 08/07/2018 | WD | Warranty Deed | MILLARD, BERNICE W | STUURMANS, CECIL E | | | $150,000.00 | 35401 | 4449714 |
|   | |
| 4 | 01/01/1900 | OTHER | Other - Misc. Documents | Unknown | MILLARD, BERNICE W | | | $0.00 | 4165 | 90013647 |
Payout Agreement
| No payout information available.. |