Property
Account |
| Property ID: | 692584 | Abbreviated Legal Description: | FIRESIDE #2 LOT 3 |
| Geographic ID: | S6632-02-00003-0 | Agent Code: | |
| Type: | Real | | |
| Tax Area: | 100 - APPRAISER-OH Schl Dist, in OH | Land Use Code | 11 |
| Open Space: | N | DFL | N |
| Historic Property: | N | Remodel Property: | N |
| Multi-Family Redevelopment: | N | | |
| Township: | | Section: | |
| Range: | |
Location |
| Address: | 1650 SW 16TH AVE OAK HARBOR, WA 98277 | Mapsco: | |
| Neighborhood: | Cycle 1 | Map ID: | 90 |
| Neighborhood CD: | 1 |
Owner |
| Name: | BIANCHI, MICHAEL C | Owner ID: | 287002 |
| Mailing Address: | LAURIE D BIANCHI 1691 SE 16TH AVE OAK HARBOR, WA 98277 | % Ownership: | 100.0000000000% |
| | | Exemptions: | |
Taxes and Assessment Details
Values
| (+) Improvement Homesite Value: | + | $0 | |
| (+) Improvement Non-Homesite Value: | + | $421,943 | |
| (+) Land Homesite Value: | + | $0 | |
| (+) Land Non-Homesite Value: | + | $200,000 | |
| (+) Curr Use (HS): | + | $0 | $0 |
| (+) Curr Use (NHS): | + | $0 | $0 |
| | | -------------------------- | |
| (=) Market Value: | = | $621,943 | |
| (–) Productivity Loss: | – | $0 | |
| | | -------------------------- | |
| (=) Subtotal: | = | $621,943 | |
| (+) Senior Appraised Value: | + | $0 | |
| (+) Non-Senior Appraised Value: | + | $621,943 | |
| | | -------------------------- | |
| (=) Total Appraised Value: | = | $621,943 | |
| (–) Senior Exemption Loss: | – | $0 | |
| (–) Exemption Loss: | – | $0 | |
| | | -------------------------- | |
| (=) Taxable Value: | = | $621,943 | |
Taxing Jurisdiction
| Owner: | BIANCHI, MICHAEL C | | |
| % Ownership: | 100.0000000000% | | |
| Total Value: | $621,943 | | |
| Tax Area: | 100 - APPRAISER-OH Schl Dist, in OH |
| CF | Conservation Futures | 0.0316035091 | $621,943 | $621,943 | $19.66 | | |
| CEM1 | Cemetery #1 | 0.0040320932 | $621,943 | $621,943 | $2.51 | | |
| COH | City of Oak Harbor | 2.3001546061 | $621,943 | $621,943 | $1,430.57 | | |
| OAKBOND | City of Oak Harbor BOND | 0.1926904192 | $621,943 | $621,943 | $119.84 | | |
| HOBOND | Hospital BOND | 0.1910887512 | $621,943 | $621,943 | $118.85 | | |
| HOGEN | Hospital GEN | 0.3902502903 | $621,943 | $621,943 | $242.71 | | |
| CE | County Current Expense | 0.3708482477 | $621,943 | $621,943 | $230.65 | | |
| ISLANDEMS | Hospital GEN (EMS) | 0.5000000000 | $621,943 | $621,943 | $310.97 | | |
| LIB | Library Sno-Isle GEN | 0.3153421757 | $621,943 | $621,943 | $196.12 | | |
| NWHIDPRMT | P & R N Whidbey GEN | 0.2004466701 | $621,943 | $621,943 | $124.67 | | |
| SCH201MO | School 201 Enrichment | 1.8559231640 | $621,943 | $621,943 | $1,154.28 | | |
| ST | State School | 1.3035497053 | $621,943 | $621,943 | $810.73 | | |
| ST2 | State School Part 2 | 0.8169543533 | $621,943 | $621,943 | $508.10 | | |
| | Total Tax Rate: | 8.4728839852 | | | | | |
| | | | | Taxes w/Current Exemptions: | $5,269.66 | | |
| | | | | Taxes w/o Exemptions: | $5,269.66 | | |
Improvement / Building
| Improvement #1: | RESIDENTIAL | State Code: | Y | 2237.0 sqft | Value: | $421,943 |
| Bathrooms: | 3.5 | Bedrooms: | 4 | | Ceiling: | DRYWALL PAINTED | Exterior Wall/Cover: | PLY/HARDBOARD T-111 | | Floor Covering: | HARDWOOD/CARP 20-80 | Floor Structure: | WOOD W/SUBFLOOR | | Foundation: | CONCRETE | Heating: | FHA GAS | | Interior Finish: | DRYWALL PAINT | Plumbing Fixture Cnt: | 15 | | Roof Slope: | 6" IN 12" | Roof Structure/Cover: | CJ ASPHALT |
|
| | Type | Description | Class CD | Sub Class CD | Year Built | Area |
| | BAS | BASE/MAIN FLOOR | 4 | 0 | 1996 | 1317.0 |
| | AGR | ATTACHED GARAGE | 4 | 0 | 1996 | 450.0 |
| | UPS | UPPER STORY | 4 | 0 | 1996 | 920.0 |
| | OWP | OPEN WOOD PORCH W/STEPS | 4 | 0 | 1996 | 98.0 |
| | OWP | OPEN WOOD PORCH W/STEPS | 4 | 0 | 1996 | 230.0 |
Sketch
Property Image
Land
| 1 | 14 | SQ (08001-12000) | 0.0000 | 0.00 | 0.00 | 0.00 | 1.00 | $200,000 | $0 |
Roll Value History
| 2026 | N/A | N/A | N/A | N/A | N/A |
| 2025 | $421,943 | $200,000 | $0 | $621,943 | $621,943 |
| 2024 | $427,136 | $190,000 | $0 | $617,136 | $617,136 |
| 2023 | $411,558 | $180,000 | $0 | $591,558 | $591,558 |
| 2022 | $377,369 | $160,000 | $0 | $537,369 | $537,369 |
| 2021 | $332,239 | $130,000 | $0 | $462,239 | $462,239 |
| 2020 | $323,348 | $100,000 | $0 | $423,348 | $423,348 |
| 2019 | $237,416 | $150,000 | $0 | $387,416 | $387,416 |
| 2018 | $210,674 | $130,000 | $0 | $340,674 | $340,674 |
| 2017 | $198,444 | $120,000 | $0 | $318,444 | $318,444 |
| 2016 | $200,864 | $90,000 | $0 | $290,864 | $290,864 |
| 2015 | $203,282 | $70,000 | $0 | $273,282 | $273,282 |
| 2014 | $205,705 | $65,000 | $0 | $270,705 | $270,705 |
| 2013 | $208,123 | $65,000 | $0 | $273,123 | $273,123 |
| 2012 | $210,544 | $65,000 | $0 | $275,544 | $275,544 |
| 2011 | $195,036 | $45,000 | $0 | $240,036 | $240,036 |
| 2010 | $204,595 | $45,000 | $0 | $249,595 | $249,595 |
| 2009 | $213,305 | $75,000 | $0 | $288,305 | $288,305 |
| 2008 | $215,818 | $95,000 | $0 | $310,818 | $310,818 |
| 2007 | $218,329 | $95,000 | $0 | $313,329 | $313,329 |
Deed and Sales History
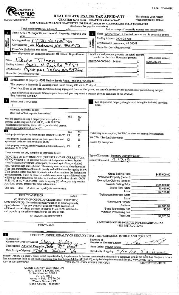
| 1 | 09/03/2018 | WD | Warranty Deed | LARSEN, NORMAN M | BIANCHI, MICHAEL C | | | $400,000.00 | 36012 | 4452198 |
| 2 | 02/21/2008 | WD | Warranty Deed | BENJAMIN, GEORGE W | LARSEN, NORMAN M | | | $345,500.00 | 80481 | 4222892 |
| 3 | 10/07/1999 | WD | Warranty Deed | MORENO, MICHAEL S/TAMARA J | BENJAMIN, GEORGE W | | | $173,500.00 | 94305 | 99023547 |
| 4 | 01/01/1997 | WD | Warranty Deed | R, K P | MORENO, MICHAEL S | | | $165,000.00 | 70298 | 97001253 |
| 5 | 08/01/1996 | WD | Warranty Deed | KRIEG, DEVELOPMENT G | R, K P | | | $40,000.00 | 63097 | 96015218 |
| 6 | 01/01/1900 | OTHER | Other - Misc. Documents | Unknown | KRIEG, DEVELOPMENT G | | | $0.00 | 32598 | 93013405 |
| 7 | 01/01/1900 | OTHER | Other - Misc. Documents | MORENO, MICHAEL S | BENJAMIN, GEORGE W | | | $0.00 | 0 | 0 |
| 8 | 01/01/1900 | OTHER | Other - Misc. Documents | BENJAMIN, GEORGE W | MORENO, MICHAEL S/TAMARA J | | | $0.00 | 0 | 0 |
Payout Agreement
| No payout information available.. |