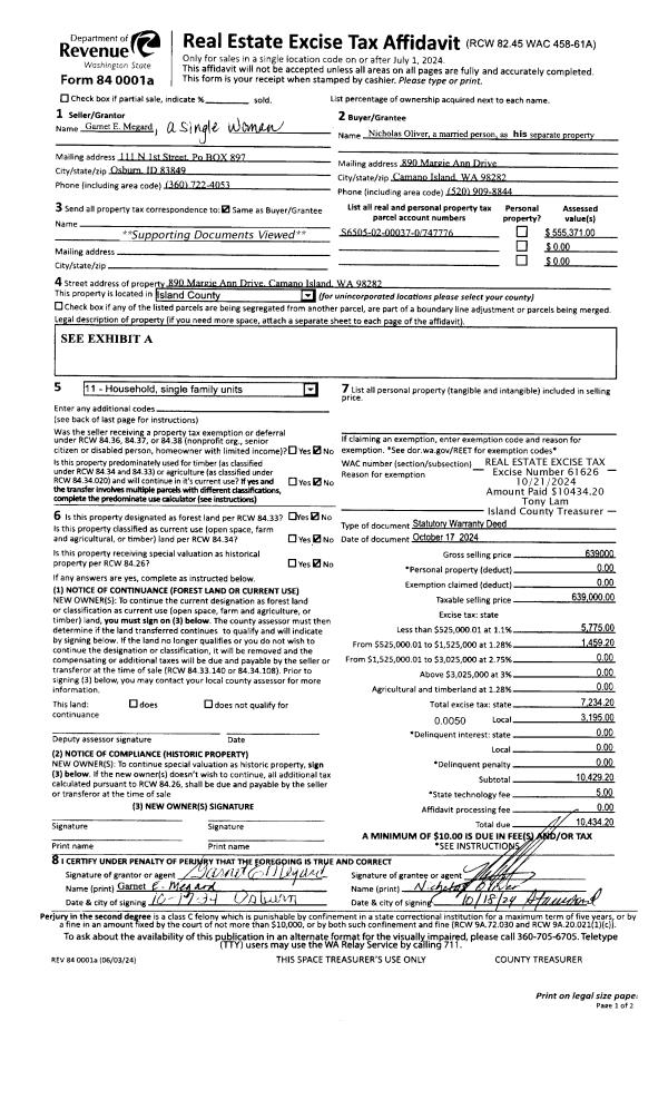
Property
Account |
| Property ID: | 692600 | Abbreviated Legal Description: | FIRESIDE #2 LOT 5 |
| Geographic ID: | S6632-02-00005-0 | Agent Code: | |
| Type: | Real | | |
| Tax Area: | 100 - APPRAISER-OH Schl Dist, in OH | Land Use Code | 11 |
| Open Space: | N | DFL | N |
| Historic Property: | N | Remodel Property: | N |
| Multi-Family Redevelopment: | N | | |
| Township: | | Section: | |
| Range: | |
Location |
| Address: | 1700 SW 16TH AVE OAK HARBOR, WA 98277 | Mapsco: | |
| Neighborhood: | Cycle 1 | Map ID: | 90 |
| Neighborhood CD: | 1 |
Owner |
| Name: | DEROSA TTEE, MICHAEL E. | Owner ID: | 312361 |
| Mailing Address: | THE DEROSA FAMILY NOMINEE REALTY TRUST 1700 SW 16TH AVE OAK HARBOR, WA 98277 | % Ownership: | 100.0000000000% |
| | | Exemptions: | |
Taxes and Assessment Details
Values
| (+) Improvement Homesite Value: | + | $0 | |
| (+) Improvement Non-Homesite Value: | + | $312,601 | |
| (+) Land Homesite Value: | + | $200,000 | |
| (+) Land Non-Homesite Value: | + | $0 | |
| (+) Curr Use (HS): | + | $0 | $0 |
| (+) Curr Use (NHS): | + | $0 | $0 |
| | | -------------------------- | |
| (=) Market Value: | = | $512,601 | |
| (–) Productivity Loss: | – | $0 | |
| | | -------------------------- | |
| (=) Subtotal: | = | $512,601 | |
| (+) Senior Appraised Value: | + | $0 | |
| (+) Non-Senior Appraised Value: | + | $512,601 | |
| | | -------------------------- | |
| (=) Total Appraised Value: | = | $512,601 | |
| (–) Senior Exemption Loss: | – | $0 | |
| (–) Exemption Loss: | – | $0 | |
| | | -------------------------- | |
| (=) Taxable Value: | = | $512,601 | |
Taxing Jurisdiction
| Owner: | DEROSA TTEE, MICHAEL E. | | |
| % Ownership: | 100.0000000000% | | |
| Total Value: | $512,601 | | |
| Tax Area: | 100 - APPRAISER-OH Schl Dist, in OH |
| CF | Conservation Futures | 0.0316035091 | $512,601 | $512,601 | $16.20 | | |
| CEM1 | Cemetery #1 | 0.0040320932 | $512,601 | $512,601 | $2.07 | | |
| COH | City of Oak Harbor | 2.3001546061 | $512,601 | $512,601 | $1,179.06 | | |
| OAKBOND | City of Oak Harbor BOND | 0.1926904192 | $512,601 | $512,601 | $98.77 | | |
| HOBOND | Hospital BOND | 0.1910887512 | $512,601 | $512,601 | $97.95 | | |
| HOGEN | Hospital GEN | 0.3902502903 | $512,601 | $512,601 | $200.04 | | |
| CE | County Current Expense | 0.3708482477 | $512,601 | $512,601 | $190.10 | | |
| ISLANDEMS | Hospital GEN (EMS) | 0.5000000000 | $512,601 | $512,601 | $256.30 | | |
| LIB | Library Sno-Isle GEN | 0.3153421757 | $512,601 | $512,601 | $161.64 | | |
| NWHIDPRMT | P & R N Whidbey GEN | 0.2004466701 | $512,601 | $512,601 | $102.75 | | |
| SCH201MO | School 201 Enrichment | 1.8559231640 | $512,601 | $512,601 | $951.35 | | |
| ST | State School | 1.3035497053 | $512,601 | $512,601 | $668.20 | | |
| ST2 | State School Part 2 | 0.8169543533 | $512,601 | $512,601 | $418.77 | | |
| | Total Tax Rate: | 8.4728839852 | | | | | |
| | | | | Taxes w/Current Exemptions: | $4,343.20 | | |
| | | | | Taxes w/o Exemptions: | $4,343.20 | | |
Improvement / Building
| Improvement #1: | RESIDENTIAL | State Code: | Y | 1722.8 sqft | Value: | $312,601 |
| Bathrooms: | 2.5 | Bedrooms: | 3 | | Ceiling: | DRYWALL PAINTED | Exterior Wall/Cover: | CEMENT FIBER | | Floor Covering: | CARPET/VINYL 60-40 | Floor Structure: | WOOD W/SUBFLOOR | | Foundation: | CONCRETE | Heating: | FHA GAS | | Interior Finish: | DRYWALL PAINT | Plumbing Fixture Cnt: | 11 | | Roof Slope: | 5" IN 12" | Roof Structure/Cover: | CJ ASPHALT |
|
| | Type | Description | Class CD | Sub Class CD | Year Built | Area |
| | BAS | BASE/MAIN FLOOR | 3 | 0 | 1996 | 954.8 |
| | OP4 | OPEN PORCH W/CEILING-ROOF | 3 | 0 | 1996 | 24.0 |
| | BIG | BUILT IN GARAGE | 3 | 0 | 1996 | 400.0 |
| | UPS | UPPER STORY | 3 | 0 | 1996 | 768.0 |
| | OWP | OPEN WOOD PORCH W/STEPS | 3 | 0 | 1996 | 120.0 |
Sketch
Property Image
Land
| 1 | 14 | SQ (08001-12000) | 0.0000 | 0.00 | 0.00 | 0.00 | 1.00 | $200,000 | $0 |
Roll Value History
| 2026 | N/A | N/A | N/A | N/A | N/A |
| 2025 | $312,601 | $200,000 | $0 | $512,601 | $512,601 |
| 2024 | $299,843 | $190,000 | $0 | $489,843 | $489,843 |
| 2023 | $295,945 | $180,000 | $0 | $475,945 | $92,264 |
| 2022 | $271,288 | $160,000 | $0 | $431,288 | $160,660 |
| 2021 | $238,766 | $130,000 | $0 | $368,766 | $160,660 |
| 2020 | $232,496 | $100,000 | $0 | $332,496 | $160,660 |
| 2019 | $170,046 | $150,000 | $0 | $320,046 | $160,660 |
| 2018 | $170,545 | $130,000 | $0 | $300,545 | $160,660 |
| 2017 | $156,139 | $120,000 | $0 | $276,139 | $160,660 |
| 2016 | $158,044 | $90,000 | $0 | $248,044 | $160,660 |
| 2015 | $159,949 | $70,000 | $0 | $229,949 | $159,949 |
| 2014 | $161,853 | $65,000 | $0 | $226,853 | $226,853 |
| 2013 | $163,755 | $65,000 | $0 | $228,755 | $228,755 |
| 2012 | $165,660 | $65,000 | $0 | $230,660 | $230,660 |
| 2011 | $167,049 | $45,000 | $0 | $212,049 | $212,049 |
| 2010 | $175,152 | $45,000 | $0 | $220,152 | $220,152 |
| 2009 | $182,685 | $75,000 | $0 | $257,685 | $257,685 |
| 2008 | $184,898 | $95,000 | $0 | $279,898 | $279,898 |
| 2007 | $187,134 | $95,000 | $0 | $282,134 | $282,134 |
Deed and Sales History
| 1 | 05/01/2024 | WD | Warranty Deed | AUSTIN JR, CHARLES H | DEROSA TTEE, MICHAEL E. | | | $560,000.00 | 59938 | 4572303 |
| 2 | 06/27/2006 | WD | Warranty Deed | HUBBARD, BRET & | AUSTIN JR, CHARLES H | | | $294,000.00 | 62871 | 4174927 |
| 3 | 08/01/1996 | OTHER | Other - Misc. Documents | KRIEG, DEVELOPMENT G | HUBBARD, BRET & | | | $40,000.00 | 63068 | 96015035 |
| 4 | 01/01/1900 | OTHER | Other - Misc. Documents | Unknown | KRIEG, DEVELOPMENT G | | | $0.00 | 32598 | 93013405 |
Payout Agreement
| No payout information available.. |