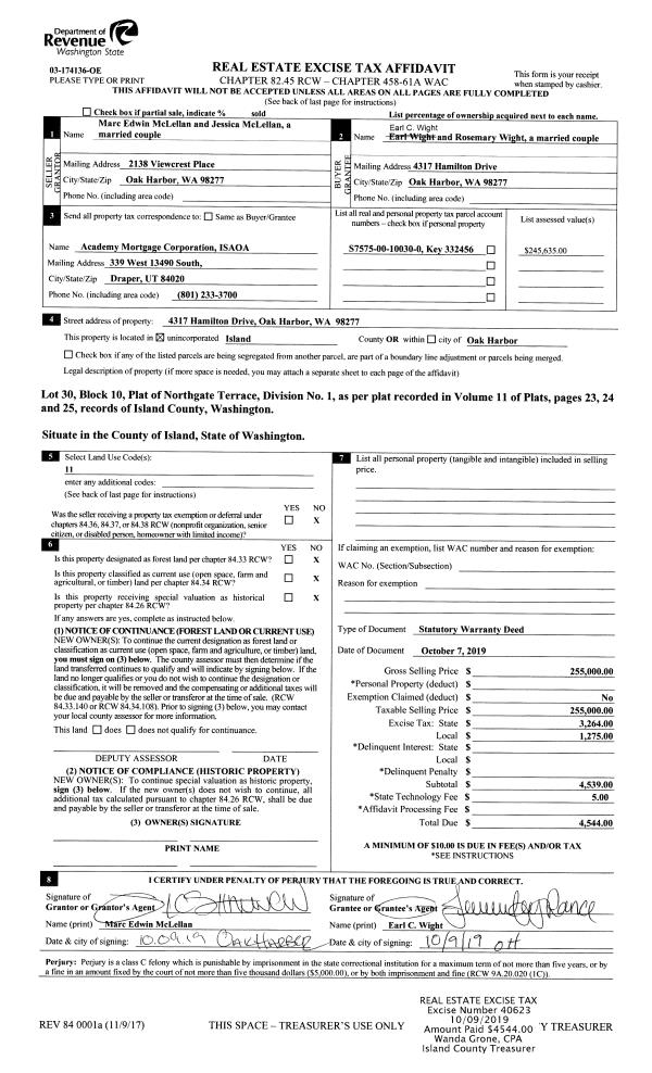
Property
Account |
| Property ID: | 692986 | Abbreviated Legal Description: | LOT 4 SP 23-93.23123.320-3290 V2 SP P460 AF#94009409 |
| Geographic ID: | R23123-312-3000 | Agent Code: | |
| Type: | Real | | |
| Tax Area: | 512 - APPRAISER-Stan/Cam Schl Dist, improved, greater than 1 acre | Land Use Code | 11 |
| Open Space: | N | DFL | N |
| Historic Property: | N | Remodel Property: | N |
| Multi-Family Redevelopment: | N | | |
| Township: | 31 | Section: | 23 |
| Range: | R2 |
Location |
| Address: | 575 CHESTNUT LN CAMANO ISLAND, WA 98282 | Mapsco: | |
| Neighborhood: | Cycle 5 | Map ID: | 503 |
| Neighborhood CD: | 5 |
Owner |
| Name: | SYRNYK, PETER RANDOLPH | Owner ID: | 309633 |
| Mailing Address: | BARBARA JANE SYRNYK JENNIFER ALEXANDRA SYRNYK 575 CHESTNUT LN CAMANO ISLAND, WA 98282 | % Ownership: | 100.0000000000% |
| | | Exemptions: | |
Taxes and Assessment Details
Values
| (+) Improvement Homesite Value: | + | $0 | |
| (+) Improvement Non-Homesite Value: | + | $363,498 | |
| (+) Land Homesite Value: | + | $0 | |
| (+) Land Non-Homesite Value: | + | $290,000 | |
| (+) Curr Use (HS): | + | $0 | $0 |
| (+) Curr Use (NHS): | + | $0 | $0 |
| | | -------------------------- | |
| (=) Market Value: | = | $653,498 | |
| (–) Productivity Loss: | – | $0 | |
| | | -------------------------- | |
| (=) Subtotal: | = | $653,498 | |
| (+) Senior Appraised Value: | + | $0 | |
| (+) Non-Senior Appraised Value: | + | $653,498 | |
| | | -------------------------- | |
| (=) Total Appraised Value: | = | $653,498 | |
| (–) Senior Exemption Loss: | – | $0 | |
| (–) Exemption Loss: | – | $0 | |
| | | -------------------------- | |
| (=) Taxable Value: | = | $653,498 | |
Taxing Jurisdiction
| Owner: | SYRNYK, PETER RANDOLPH | | |
| % Ownership: | 100.0000000000% | | |
| Total Value: | $653,498 | | |
| Tax Area: | 512 - APPRAISER-Stan/Cam Schl Dist, improved, greater than 1 acre |
| CF | Conservation Futures | 0.0316035091 | $653,498 | $653,498 | $20.65 | | |
| EMS1 | Fire & Rescue Dist #1 Camano GEN (EMS) | 0.3677864386 | $653,498 | $653,498 | $240.35 | | |
| FIRE1 | Fire & Rescue Dist #1 Camano GEN | 1.2502910536 | $653,498 | $653,498 | $817.06 | | |
| FIRE1BOND | Fire & Rescue Dist #1 Camano BOND | 0.1570001679 | $653,498 | $653,498 | $102.60 | | |
| CE | County Current Expense | 0.3708482477 | $653,498 | $653,498 | $242.35 | | |
| CR | County Roads | 0.4584763726 | $653,498 | $653,498 | $299.61 | | |
| LCIB | Library Sno-Isle BOND (Camano Island) | 0.0396325772 | $653,498 | $653,498 | $25.90 | | |
| LIB | Library Sno-Isle GEN | 0.3153421757 | $653,498 | $653,498 | $206.08 | | |
| SCH205_401 | School 205-401 Enrichment | 1.2698420524 | $653,498 | $653,498 | $829.84 | | |
| SCH205BOND | School 205-401 BOND | 0.9396497583 | $653,498 | $653,498 | $614.06 | | |
| ST | State School | 1.3035497053 | $653,498 | $653,498 | $851.87 | | |
| ST2 | State School Part 2 | 0.8169543533 | $653,498 | $653,498 | $533.88 | | |
| | Total Tax Rate: | 7.3209764117 | | | | | |
| | | | | Taxes w/Current Exemptions: | $4,784.25 | | |
| | | | | Taxes w/o Exemptions: | $4,784.25 | | |
Improvement / Building
| Improvement #1: | RESIDENTIAL | State Code: | Y | 1743.0 sqft | Value: | $363,498 |
| Bathrooms: | 2 | Bedrooms: | 3 | | Ceiling: | DRYWALL PAINTED | Cooling: | HEAT PUMP/CONV/V | | Exterior Wall/Cover: | PLY/HARDBOARD T-111 | Floor Covering: | HARDWOOD/CARP 20-80 | | Floor Structure: | WOOD W/SUBFLOOR | Foundation: | CONCRETE | | Interior Finish: | DRYWALL PAINT | Plumbing Fixture Cnt: | 11 | | Roof Slope: | 5" IN 12" | Roof Structure/Cover: | CJ ASPHALT |
|
| | Type | Description | Class CD | Sub Class CD | Year Built | Area |
| | BAS | BASE/MAIN FLOOR | 3 | 0 | 1996 | 1743.0 |
| | AGR | ATTACHED GARAGE | 3 | 0 | 1996 | 748.0 |
| | OWP | OPEN WOOD PORCH W/STEPS | 3 | 0 | 1996 | 460.0 |
| | UTY | STORAGE/UTILITY | 3 | 0 | 1996 | 179.9 |
Sketch
Property Image
Land
| 1 | 18 | AC (02.01-03.00) | 2.4900 | 108464.40 | 0.00 | 0.00 | 1.00 | $290,000 | $0 |
Roll Value History
| 2026 | N/A | N/A | N/A | N/A | N/A |
| 2025 | $363,498 | $290,000 | $0 | $653,498 | $653,498 |
| 2024 | $366,553 | $280,000 | $0 | $646,553 | $646,553 |
| 2023 | $321,051 | $270,000 | $0 | $591,051 | $591,051 |
| 2022 | $294,210 | $260,000 | $0 | $554,210 | $554,210 |
| 2021 | $244,444 | $180,000 | $0 | $424,444 | $424,444 |
| 2020 | $220,770 | $150,000 | $0 | $370,770 | $370,770 |
| 2019 | $163,602 | $200,000 | $0 | $363,602 | $363,602 |
| 2018 | $164,105 | $180,000 | $0 | $344,105 | $344,105 |
| 2017 | $165,112 | $140,000 | $0 | $305,112 | $305,112 |
| 2016 | $167,125 | $140,000 | $0 | $307,125 | $307,125 |
| 2015 | $166,113 | $63,200 | $0 | $229,313 | $229,313 |
| 2014 | $168,163 | $63,200 | $0 | $231,363 | $231,363 |
| 2013 | $170,215 | $63,200 | $0 | $233,415 | $233,415 |
| 2012 | $172,264 | $63,200 | $0 | $235,464 | $235,464 |
| 2011 | $174,316 | $79,000 | $0 | $253,316 | $253,316 |
| 2010 | $179,891 | $79,000 | $0 | $258,891 | $258,891 |
| 2009 | $187,499 | $130,000 | $0 | $317,499 | $317,499 |
| 2008 | $189,749 | $125,235 | $0 | $314,984 | $314,984 |
| 2007 | $191,997 | $125,235 | $0 | $317,232 | $317,232 |
Deed and Sales History
| 1 | 08/07/2023 | WD | Warranty Deed | KISIEL, JOANNE | SYRNYK, PETER RANDOLPH | | | $770,000.00 | 57594 | 4563342 |
| 2 | 07/23/2021 | WD | Warranty Deed | STITES, CHARLES MARK | KISIEL, JOANNE | | | $674,950.00 | 49438 | 4525860 |
| 3 | 02/06/2020 | WD | Warranty Deed | GIBSON, DAVID A | STITES, CHARLES MARK | | | $405,000.00 | 42061 | 4481071 |
| 4 | 02/01/1995 | WD | Warranty Deed | WICKSTROM, DANIEL L | GIBSON, DAVID A | | | $45,000.00 | 50537 | 95002628 |
| 5 | 01/01/1900 | OTHER | Other - Misc. Documents | Unknown | WICKSTROM, DANIEL L | | | $0.00 | 31825 | 93009573 |
Payout Agreement
| No payout information available.. |