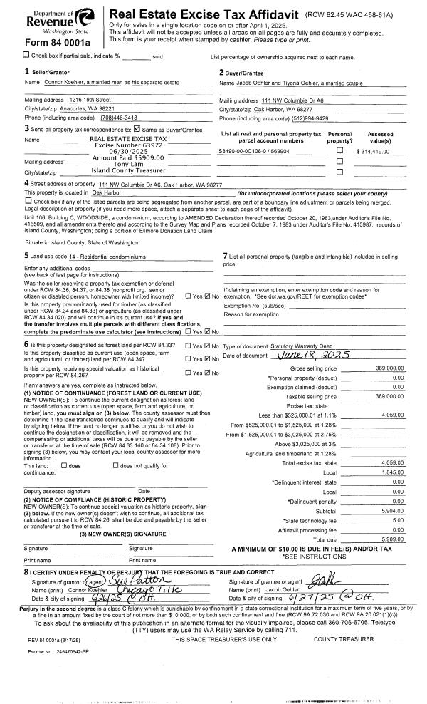
Property
Account |
| Property ID: | 693084 | Abbreviated Legal Description: | OAK LEAF CONDOS UNIT C 6.16% INT |
| Geographic ID: | S7591-00-0001C-0 | Agent Code: | |
| Type: | Real | | |
| Tax Area: | 100 - APPRAISER-OH Schl Dist, in OH | Land Use Code | 14 |
| Open Space: | N | DFL | N |
| Historic Property: | N | Remodel Property: | N |
| Multi-Family Redevelopment: | N | | |
| Township: | | Section: | |
| Range: | |
Location |
| Address: | 441 NE KETTLE ST UNIT C OAK HARBOR, WA 98277 | Mapsco: | |
| Neighborhood: | 6A*OH-oak leaf | Map ID: | 257 |
| Neighborhood CD: | 6A*OHoklef |
Owner |
| Name: | LEE TTEE, KAY C | Owner ID: | 314296 |
| Mailing Address: | 526 1ST AVE SOUTH, UNIT 405 SEATTLE, WA 98104 | % Ownership: | 100.0000000000% |
| | | Exemptions: | |
Taxes and Assessment Details
Values
| (+) Improvement Homesite Value: | + | $0 | |
| (+) Improvement Non-Homesite Value: | + | $136,958 | |
| (+) Land Homesite Value: | + | $0 | |
| (+) Land Non-Homesite Value: | + | $70,000 | |
| (+) Curr Use (HS): | + | $0 | $0 |
| (+) Curr Use (NHS): | + | $0 | $0 |
| | | -------------------------- | |
| (=) Market Value: | = | $206,958 | |
| (–) Productivity Loss: | – | $0 | |
| | | -------------------------- | |
| (=) Subtotal: | = | $206,958 | |
| (+) Senior Appraised Value: | + | $0 | |
| (+) Non-Senior Appraised Value: | + | $206,958 | |
| | | -------------------------- | |
| (=) Total Appraised Value: | = | $206,958 | |
| (–) Senior Exemption Loss: | – | $0 | |
| (–) Exemption Loss: | – | $0 | |
| | | -------------------------- | |
| (=) Taxable Value: | = | $206,958 | |
Taxing Jurisdiction
| Owner: | LEE TTEE, KAY C | | |
| % Ownership: | 100.0000000000% | | |
| Total Value: | $206,958 | | |
| Tax Area: | 100 - APPRAISER-OH Schl Dist, in OH |
| CF | Conservation Futures | 0.0316035091 | $206,958 | $206,958 | $6.54 | | |
| CEM1 | Cemetery #1 | 0.0040320932 | $206,958 | $206,958 | $0.83 | | |
| COH | City of Oak Harbor | 2.3001546061 | $206,958 | $206,958 | $476.04 | | |
| OAKBOND | City of Oak Harbor BOND | 0.1926904192 | $206,958 | $206,958 | $39.88 | | |
| HOBOND | Hospital BOND | 0.1910887512 | $206,958 | $206,958 | $39.55 | | |
| HOGEN | Hospital GEN | 0.3902502903 | $206,958 | $206,958 | $80.77 | | |
| CE | County Current Expense | 0.3708482477 | $206,958 | $206,958 | $76.75 | | |
| ISLANDEMS | Hospital GEN (EMS) | 0.5000000000 | $206,958 | $206,958 | $103.48 | | |
| LIB | Library Sno-Isle GEN | 0.3153421757 | $206,958 | $206,958 | $65.26 | | |
| NWHIDPRMT | P & R N Whidbey GEN | 0.2004466701 | $206,958 | $206,958 | $41.48 | | |
| SCH201MO | School 201 Enrichment | 1.8559231640 | $206,958 | $206,958 | $384.10 | | |
| ST | State School | 1.3035497053 | $206,958 | $206,958 | $269.78 | | |
| ST2 | State School Part 2 | 0.8169543533 | $206,958 | $206,958 | $169.08 | | |
| | Total Tax Rate: | 8.4728839852 | | | | | |
| | | | | Taxes w/Current Exemptions: | $1,753.54 | | |
| | | | | Taxes w/o Exemptions: | $1,753.54 | | |
Improvement / Building
| Improvement #1: | RESIDENTIAL/COMMERCIAL | State Code: | A1 | 823.0 sqft | Value: | $136,958 |
| Bathrooms: | 1 | Bedrooms: | 2 | | Ceiling: | DRYWALL PAINTED | Exterior Wall/Cover: | CEMENT FIBER | | Floor Covering: | CARPET/VINYL 80-20 | Floor Structure: | WOOD W/SUBFLOOR | | Foundation: | CONCRETE | Heating: | BASEBOARD ELECTRIC | | Interior Finish: | DRYWALL PAINT | Plumbing Fixture Cnt: | 6 | | Roof Slope: | 5" IN 12" | Roof Structure/Cover: | CJ ASPHALT |
|
| | Type | Description | Class CD | Sub Class CD | Year Built | Area |
| | BAS | BASE/MAIN FLOOR | 3 | 0 | 1991 | 823.0 |
| | OP4 | OPEN PORCH W/CEILING-ROOF | 3 | 0 | 1991 | 41.0 |
| | OWP | OPEN WOOD PORCH W/STEPS | 3 | 0 | 1991 | 139.5 |
| | oSIT | Site Improvements | 3 | 0 | 1991 | 0.0 |
Sketch
Property Image
Land
| 1 | 61 | MULTIPLE RESIDENCES | 0.0000 | 1489.00 | 0.00 | 0.00 | 1.00 | $70,000 | $0 |
Roll Value History
| 2026 | N/A | N/A | N/A | N/A | N/A |
| 2025 | $136,958 | $70,000 | $0 | $206,958 | $206,958 |
| 2024 | $141,656 | $70,000 | $0 | $211,656 | $211,656 |
| 2023 | $143,543 | $70,000 | $0 | $213,543 | $213,543 |
| 2022 | $124,998 | $70,000 | $0 | $194,998 | $194,998 |
| 2021 | $110,379 | $50,000 | $0 | $160,379 | $160,379 |
| 2020 | $107,579 | $40,000 | $0 | $147,579 | $147,579 |
| 2019 | $76,501 | $85,000 | $0 | $161,501 | $161,501 |
| 2018 | $76,750 | $65,000 | $0 | $141,750 | $141,750 |
| 2017 | $77,242 | $11,778 | $0 | $89,020 | $89,020 |
| 2016 | $77,612 | $11,778 | $0 | $89,390 | $89,390 |
| 2015 | $78,607 | $11,778 | $0 | $90,385 | $90,385 |
| 2014 | $79,605 | $11,778 | $0 | $91,383 | $91,383 |
| 2013 | $80,602 | $11,778 | $0 | $92,380 | $92,380 |
| 2012 | $82,594 | $11,778 | $0 | $94,372 | $94,372 |
| 2011 | $82,594 | $11,778 | $0 | $94,372 | $94,372 |
| 2010 | $82,844 | $11,778 | $0 | $94,622 | $94,622 |
| 2009 | $86,329 | $17,868 | $0 | $104,197 | $104,197 |
| 2008 | $87,304 | $17,868 | $0 | $105,172 | $105,172 |
| 2007 | $88,278 | $17,868 | $0 | $106,146 | $106,146 |
Deed and Sales History
| 1 | 08/07/2024 | QCD | Quit Claim Deed | ESTATE OF DONALD F GRAF | LEE TTEE, KAY C | | | $0.00 | 61618 | 4578454 |
| 2 | 08/03/2016 | WD | Warranty Deed | OAK LEAF ASSOCIATES, LLC | GRAF, DONALD F | | | $1,565,000.00 | 25551 | 4404564 |
|   | |
| 3 | 12/11/2015 | CHGOFIDENT | DNU - Change In Identity | WEAVMAN ASSOCIATES I | OAK LEAF ASSOCIATES, LLC | | | $0.00 | 22504 | 4391115 |
| 4 | 01/01/1900 | OTHER | Other - Misc. Documents | WEAVMAN, ASSOCIATES I | WEAVMAN ASSOCIATES I, | | | $0.00 | 0 | 0 |
| 5 | 01/01/1900 | OTHER | Other - Misc. Documents | Unknown | WEAVMAN, ASSOCIATES I | | | $0.00 | 95829 | 89018730 |
Payout Agreement
| No payout information available.. |