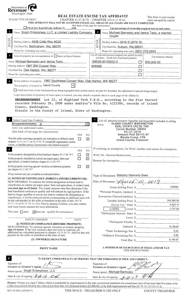
Property
Account |
| Property ID: | 69339 | Abbreviated Legal Description: | N/2 NE NE SE |
| Geographic ID: | R23033-247-4950 | Agent Code: | |
| Type: | Real | | |
| Tax Area: | 319 - APPRAISER-Cpvl Schl Dist, outside Cpvl, vacant & 50 acres or less | Land Use Code | 91 |
| Open Space: | N | DFL | N |
| Historic Property: | N | Remodel Property: | N |
| Multi-Family Redevelopment: | N | | |
| Township: | 30 | Section: | 33 |
| Range: | R2 |
Location |
| Address: | | Mapsco: | |
| Neighborhood: | Cycle 3 | Map ID: | 436 |
| Neighborhood CD: | 3 |
Owner |
| Name: | MORRISSEY, ERIN G | Owner ID: | 289212 |
| Mailing Address: | KATHRYN A CLARK HUNTER P EGGINK AND ANTHONY E EGGINK 1704 BOYLSTON AVE SEATTLE, WA 98122 | % Ownership: | 100.0000000000% |
| | | Exemptions: | |
Taxes and Assessment Details
Values
| (+) Improvement Homesite Value: | + | $0 | |
| (+) Improvement Non-Homesite Value: | + | $0 | |
| (+) Land Homesite Value: | + | $0 | |
| (+) Land Non-Homesite Value: | + | $110,000 | |
| (+) Curr Use (HS): | + | $0 | $0 |
| (+) Curr Use (NHS): | + | $0 | $0 |
| | | -------------------------- | |
| (=) Market Value: | = | $110,000 | |
| (–) Productivity Loss: | – | $0 | |
| | | -------------------------- | |
| (=) Subtotal: | = | $110,000 | |
| (+) Senior Appraised Value: | + | $0 | |
| (+) Non-Senior Appraised Value: | + | $110,000 | |
| | | -------------------------- | |
| (=) Total Appraised Value: | = | $110,000 | |
| (–) Senior Exemption Loss: | – | $0 | |
| (–) Exemption Loss: | – | $0 | |
| | | -------------------------- | |
| (=) Taxable Value: | = | $110,000 | |
Taxing Jurisdiction
| Owner: | MORRISSEY, ERIN G | | |
| % Ownership: | 100.0000000000% | | |
| Total Value: | $110,000 | | |
| Tax Area: | 319 - APPRAISER-Cpvl Schl Dist, outside Cpvl, vacant & 50 acres or less |
| CF | Conservation Futures | 0.0316035091 | $110,000 | $110,000 | $3.48 | | |
| CEM2 | Cemetery #2 | 0.0095056933 | $110,000 | $110,000 | $1.05 | | |
| HOBOND | Hospital BOND | 0.1910887512 | $110,000 | $110,000 | $21.02 | | |
| HOGEN | Hospital GEN | 0.3902502903 | $110,000 | $110,000 | $42.93 | | |
| CE | County Current Expense | 0.3708482477 | $110,000 | $110,000 | $40.79 | | |
| CR | County Roads | 0.4584763726 | $110,000 | $110,000 | $50.43 | | |
| ISLANDEMS | Hospital GEN (EMS) | 0.5000000000 | $110,000 | $110,000 | $55.00 | | |
| LIB | Library Sno-Isle GEN | 0.3153421757 | $110,000 | $110,000 | $34.69 | | |
| LIBCAP | Library Sno-Isle BOND (Cap Fac Imp Area) | 0.0543427938 | $110,000 | $110,000 | $5.98 | | |
| POCOUP | Port of Coupeville GEN | 0.1093371703 | $110,000 | $110,000 | $12.03 | | |
| POCOUPIDD | Port of Coupeville IDD | 0.3409740022 | $110,000 | $110,000 | $37.51 | | |
| COUPSDTECH | School 204 CP (TECH) | 0.7545480007 | $110,000 | $110,000 | $83.00 | | |
| SCH204MO | School 204 Enrichment | 0.6716186034 | $110,000 | $110,000 | $73.88 | | |
| ST | State School | 1.3035497053 | $110,000 | $110,000 | $143.39 | | |
| ST2 | State School Part 2 | 0.8169543533 | $110,000 | $110,000 | $89.86 | | |
| | Total Tax Rate: | 6.3184396689 | | | | | |
| | | | | Taxes w/Current Exemptions: | $695.04 | | |
| | | | | Taxes w/o Exemptions: | $695.04 | | |
Improvement / Building
Sketch
| No sketches available for this property. |
Property Image
Land
| 1 | 32 | AC (03.01-09.99) | 5.0000 | 0.00 | 0.00 | 0.00 | 1.00 | $110,000 | $0 |
Roll Value History
| 2026 | N/A | N/A | N/A | N/A | N/A |
| 2025 | $0 | $110,000 | $0 | $110,000 | $110,000 |
| 2024 | $0 | $80,000 | $0 | $80,000 | $80,000 |
| 2023 | $0 | $85,000 | $0 | $85,000 | $85,000 |
| 2022 | $0 | $85,000 | $0 | $85,000 | $85,000 |
| 2021 | $0 | $85,000 | $0 | $85,000 | $85,000 |
| 2020 | $0 | $85,000 | $0 | $85,000 | $85,000 |
| 2019 | $0 | $85,000 | $0 | $85,000 | $85,000 |
| 2018 | $0 | $85,000 | $0 | $85,000 | $85,000 |
| 2017 | $0 | $50,000 | $0 | $50,000 | $50,000 |
| 2016 | $0 | $50,000 | $0 | $50,000 | $50,000 |
| 2015 | $0 | $50,000 | $0 | $50,000 | $50,000 |
| 2014 | $0 | $50,000 | $0 | $50,000 | $50,000 |
| 2013 | $0 | $50,000 | $0 | $50,000 | $50,000 |
| 2012 | $0 | $50,000 | $0 | $50,000 | $50,000 |
| 2011 | $0 | $62,500 | $0 | $62,500 | $62,500 |
| 2010 | $0 | $62,500 | $0 | $62,500 | $62,500 |
| 2009 | $0 | $77,500 | $0 | $77,500 | $77,500 |
| 2008 | $0 | $80,000 | $0 | $80,000 | $80,000 |
| 2007 | $0 | $80,000 | $0 | $80,000 | $80,000 |
Deed and Sales History
| 1 | 04/11/2019 | WD | Warranty Deed | HEINSDMANN, KEN | MORRISSEY, ERIN G | | | $160,000.00 | 37961 | 4460910 |
|   | |
| 2 | 11/03/2010 | QCD | Quit Claim Deed | HEINSDMANN, KEN | HEINSDMANN, KEN | | | $0.00 | 2994 | 4285940 |
| 3 | 05/01/1980 | EXECUTORD | Executor Deed | OSTLER, ROBERT | CHINN, PAUL, S | | | $24,000.00 | 1924 | 369644 |
| 4 | 02/01/1979 | OTHER | Other - Misc. Documents | Unknown | OSTLER, ROBERT | | | $75,000.00 | 90826 | 348057 |
Payout Agreement
| No payout information available.. |