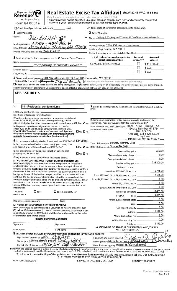
Property
Account |
| Property ID: | 693397 | Abbreviated Legal Description: | 1979 LIBERTY RIDGEWOOD 14X66 VIN# 09L15782 TPO $81858 FROM K-512564 |
| Geographic ID: | M90500000061-1 | Agent Code: | |
| Type: | Mobile Home | | |
| Tax Area: | 100 - APPRAISER-OH Schl Dist, in OH | Land Use Code | 11 |
| Open Space: | N | DFL | N |
| Historic Property: | N | Remodel Property: | N |
| Multi-Family Redevelopment: | N | | |
| Township: | | Section: | |
| Range: | |
Location |
| Address: | 1320 N OAK HARBOR ST # 165 OAK HARBOR, WA 98277 | Mapsco: | |
| Neighborhood: | Cycle 1 | Map ID: | |
| Neighborhood CD: | 1 |
Owner |
| Name: | CARTER, SUSAN | Owner ID: | 316092 |
| Mailing Address: | PO BOX 734 OAK HRBOR, WA 98277 | % Ownership: | 100.0000000000% |
| | | Exemptions: | |
Taxes and Assessment Details
Values
| (+) Improvement Homesite Value: | + | $0 | |
| (+) Improvement Non-Homesite Value: | + | $24,229 | |
| (+) Land Homesite Value: | + | $0 | |
| (+) Land Non-Homesite Value: | + | $0 | |
| (+) Curr Use (HS): | + | $0 | $0 |
| (+) Curr Use (NHS): | + | $0 | $0 |
| | | -------------------------- | |
| (=) Market Value: | = | $24,229 | |
| (–) Productivity Loss: | – | $0 | |
| | | -------------------------- | |
| (=) Subtotal: | = | $24,229 | |
| (+) Senior Appraised Value: | + | $0 | |
| (+) Non-Senior Appraised Value: | + | $24,229 | |
| | | -------------------------- | |
| (=) Total Appraised Value: | = | $24,229 | |
| (–) Senior Exemption Loss: | – | $0 | |
| (–) Exemption Loss: | – | $0 | |
| | | -------------------------- | |
| (=) Taxable Value: | = | $24,229 | |
Taxing Jurisdiction
| Owner: | CARTER, SUSAN | | |
| % Ownership: | 100.0000000000% | | |
| Total Value: | $24,229 | | |
| Tax Area: | 100 - APPRAISER-OH Schl Dist, in OH |
| CF | Conservation Futures | 0.0316035091 | $24,229 | $24,229 | $0.77 | | |
| CEM1 | Cemetery #1 | 0.0040320932 | $24,229 | $24,229 | $0.10 | | |
| COH | City of Oak Harbor | 2.3001546061 | $24,229 | $24,229 | $55.73 | | |
| OAKBOND | City of Oak Harbor BOND | 0.1926904192 | $24,229 | $24,229 | $4.67 | | |
| HOBOND | Hospital BOND | 0.1910887512 | $24,229 | $24,229 | $4.63 | | |
| HOGEN | Hospital GEN | 0.3902502903 | $24,229 | $24,229 | $9.46 | | |
| CE | County Current Expense | 0.3708482477 | $24,229 | $24,229 | $8.99 | | |
| ISLANDEMS | Hospital GEN (EMS) | 0.5000000000 | $24,229 | $24,229 | $12.11 | | |
| LIB | Library Sno-Isle GEN | 0.3153421757 | $24,229 | $24,229 | $7.64 | | |
| NWHIDPRMT | P & R N Whidbey GEN | 0.2004466701 | $24,229 | $24,229 | $4.86 | | |
| SCH201MO | School 201 Enrichment | 1.8559231640 | $24,229 | $24,229 | $44.97 | | |
| ST | State School | 1.3035497053 | $24,229 | $24,229 | $31.58 | | |
| ST2 | State School Part 2 | 0.8169543533 | $24,229 | $24,229 | $19.79 | | |
| | Total Tax Rate: | 8.4728839852 | | | | | |
| | | | | Taxes w/Current Exemptions: | $205.30 | | |
| | | | | Taxes w/o Exemptions: | $205.30 | | |
Improvement / Building
| Improvement #1: | MANUFACTURED HOME | State Code: | Y | 910.8 sqft | Value: | $24,229 |
| Bathrooms: | 0 | Bedrooms: | 0 | | Ceiling: | PLASTER PAINTED | Cooling: | EVAP NO DUCT | | Exterior Wall/Cover: | VINYL | Floor Covering: | CARPET 100% | | Floor Structure: | SLAB ON GRADE | Foundation: | SLAB | | Heating: | FHA ELECTRIC | Interior Finish: | PLASTER | | Plumbing Fixture Cnt: | 1 | Roof Slope: | FLAT | | Roof Structure/Cover: | CJ ALUMINIUM HEAVY |   |   |
|
Sketch
Property Image
Land
No land segments exist for this property.
Roll Value History
| 2026 | N/A | N/A | N/A | N/A | N/A |
| 2025 | $24,229 | $0 | $0 | $24,229 | $24,229 |
| 2024 | $8,501 | $0 | $0 | $8,501 | $8,501 |
| 2023 | $2,894 | $0 | $0 | $2,894 | $2,894 |
| 2022 | $2,859 | $0 | $0 | $2,859 | $2,859 |
| 2021 | $2,589 | $0 | $0 | $2,589 | $2,589 |
| 2020 | $2,715 | $0 | $0 | $2,715 | $2,715 |
| 2019 | $2,218 | $0 | $0 | $2,218 | $2,218 |
| 2018 | $2,376 | $0 | $0 | $2,376 | $2,376 |
| 2017 | $2,499 | $0 | $0 | $2,499 | $2,499 |
| 2016 | $2,660 | $0 | $0 | $2,660 | $2,660 |
| 2015 | $2,821 | $0 | $0 | $2,821 | $2,821 |
| 2014 | $3,063 | $0 | $0 | $3,063 | $3,063 |
| 2013 | $3,224 | $0 | $0 | $3,224 | $3,224 |
| 2012 | $3,386 | $0 | $0 | $3,386 | $3,386 |
| 2011 | $8,828 | $0 | $0 | $8,828 | $8,828 |
| 2010 | $9,089 | $0 | $0 | $9,089 | $9,089 |
| 2009 | $9,269 | $0 | $0 | $9,269 | $9,269 |
| 2008 | $9,273 | $0 | $0 | $9,273 | $9,273 |
| 2007 | $9,278 | $0 | $0 | $9,278 | $9,278 |
Deed and Sales History
| 1 | 04/11/2025 | MANHOME | Manufactured Home | HUEY, TERRA | CARTER, SUSAN | | | $64,000.00 | 63092 | |
| 2 | 11/13/2023 | MANHOME | Manufactured Home | COPE, JONATHAN | HUEY, TERRA | | | $1,000.00 | 58512 | |
| 3 | 08/05/2019 | MANHOME | Manufactured Home | PHIPPS, JAMES | COPE, JONATHAN | | | $500.00 | 39726 | |
| 4 | 06/01/2018 | MANHOME | Manufactured Home | KESTREL LLC | PHIPPS, JAMES | | | $9,000.00 | 34675 | |
| 5 | 01/06/2012 | OTHER | Other - Misc. Documents | OAK HOLLOW LLC | KESTREL LLC | | | $500.00 | 6664 | |
| 6 | 05/11/1999 | OTHER | Other - Misc. Documents | RENTSCHLER, RONDA S | OAK HOLLOW LLC, | | | $0.00 | 91782 | 0 |
| 7 | 05/01/1995 | OTHER | Other - Misc. Documents | MACDONALD, RONALD W | RENTSCHLER, RONDA S | | | $15,500.00 | 51497 | 0 |
| 8 | 04/01/1994 | OTHER | Other - Misc. Documents | Unknown | MACDONALD, RONALD W | | | $2,000.00 | 41355 | 0 |
Payout Agreement
| No payout information available.. |