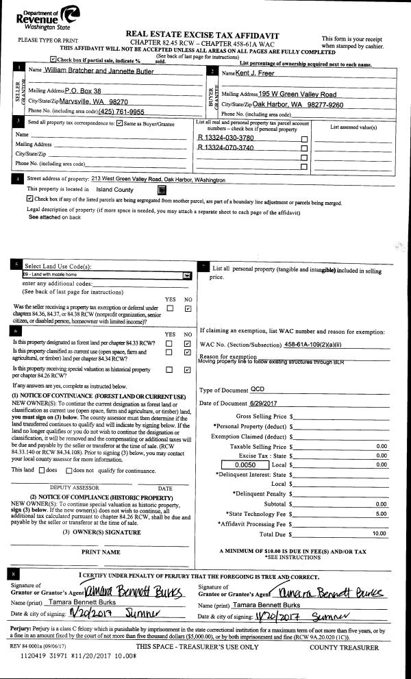
Property
Account |
| Property ID: | 693574 | Abbreviated Legal Description: | SHADOWOOD LOT 15 |
| Geographic ID: | S8142-00-00015-0 | Agent Code: | |
| Type: | Real | | |
| Tax Area: | 710 - APPRAISER-S Whid Schl Dist, outside Langley, improved & 1 acre or less | Land Use Code | 11 |
| Open Space: | N | DFL | N |
| Historic Property: | N | Remodel Property: | N |
| Multi-Family Redevelopment: | N | | |
| Township: | | Section: | |
| Range: | |
Location |
| Address: | 4358 SHADOWOOD DR CLINTON, WA 98236 | Mapsco: | |
| Neighborhood: | Cycle 4 | Map ID: | 804 |
| Neighborhood CD: | 4 |
Owner |
| Name: | WALLIS, MICHELLE | Owner ID: | 282282 |
| Mailing Address: | DARREL TRAVIS GRODA 4358 SHADOWOOOD DR CLINTON, WA 98236 | % Ownership: | 100.0000000000% |
| | | Exemptions: | |
Taxes and Assessment Details
Values
| (+) Improvement Homesite Value: | + | $0 | |
| (+) Improvement Non-Homesite Value: | + | $305,038 | |
| (+) Land Homesite Value: | + | $0 | |
| (+) Land Non-Homesite Value: | + | $240,000 | |
| (+) Curr Use (HS): | + | $0 | $0 |
| (+) Curr Use (NHS): | + | $0 | $0 |
| | | -------------------------- | |
| (=) Market Value: | = | $545,038 | |
| (–) Productivity Loss: | – | $0 | |
| | | -------------------------- | |
| (=) Subtotal: | = | $545,038 | |
| (+) Senior Appraised Value: | + | $0 | |
| (+) Non-Senior Appraised Value: | + | $545,038 | |
| | | -------------------------- | |
| (=) Total Appraised Value: | = | $545,038 | |
| (–) Senior Exemption Loss: | – | $0 | |
| (–) Exemption Loss: | – | $0 | |
| | | -------------------------- | |
| (=) Taxable Value: | = | $545,038 | |
Taxing Jurisdiction
| Owner: | WALLIS, MICHELLE | | |
| % Ownership: | 100.0000000000% | | |
| Total Value: | $545,038 | | |
| Tax Area: | 710 - APPRAISER-S Whid Schl Dist, outside Langley, improved & 1 acre or less |
| CF | Conservation Futures | 0.0316035091 | $545,038 | $545,038 | $17.23 | | |
| FIRE3 | Fire & Rescue Dist #3 S Whidbey GEN | 1.2004855531 | $545,038 | $545,038 | $654.31 | | |
| HOBOND | Hospital BOND | 0.1910887512 | $545,038 | $545,038 | $104.15 | | |
| HOGEN | Hospital GEN | 0.3902502903 | $545,038 | $545,038 | $212.70 | | |
| CE | County Current Expense | 0.3708482477 | $545,038 | $545,038 | $202.13 | | |
| CR | County Roads | 0.4584763726 | $545,038 | $545,038 | $249.89 | | |
| ISLANDEMS | Hospital GEN (EMS) | 0.5000000000 | $545,038 | $545,038 | $272.52 | | |
| LIB | Library Sno-Isle GEN | 0.3153421757 | $545,038 | $545,038 | $171.87 | | |
| PORTWHID | Port of S Whidbey GEN | 0.1094540357 | $545,038 | $545,038 | $59.66 | | |
| SCH206BOND | School 206 BOND | 0.3161759235 | $545,038 | $545,038 | $172.33 | | |
| SCH206MO | School 206 Enrichment | 0.4547169547 | $545,038 | $545,038 | $247.84 | | |
| ST | State School | 1.3035497053 | $545,038 | $545,038 | $710.48 | | |
| ST2 | State School Part 2 | 0.8169543533 | $545,038 | $545,038 | $445.27 | | |
| SWHIDPRBD | P & R S Whidbey BOND | 0.0152817568 | $545,038 | $545,038 | $8.33 | | |
| SWHIDPRBD2 | P & R S Whidbey BOND2 | 0.0138911264 | $545,038 | $545,038 | $7.57 | | |
| SWHIDPRMT | P & R S Whidbey GEN | 0.2053334452 | $545,038 | $545,038 | $111.91 | | |
| | Total Tax Rate: | 6.6934522006 | | | | | |
| | | | | Taxes w/Current Exemptions: | $3,648.19 | | |
| | | | | Taxes w/o Exemptions: | $3,648.19 | | |
Improvement / Building
| Improvement #1: | RESIDENTIAL | State Code: | Y | 1742.2 sqft | Value: | $305,038 |
| Bathrooms: | 2.5 | Bedrooms: | 3 | | Ceiling: | DRYWALL PAINTED | Exterior Wall/Cover: | CEMENT FIBER | | Floor Covering: | VINYL TILE | Floor Structure: | WOOD W/SUBFLOOR | | Foundation: | CONCRETE | Heating: | WALL HEAT ELECTRIC | | Interior Finish: | DRYWALL PAINT | Plumbing Fixture Cnt: | 12 | | Roof Slope: | 6" IN 12" | Roof Structure/Cover: | CJ ASPHALT |
|
| | Type | Description | Class CD | Sub Class CD | Year Built | Area |
| | BAS | BASE/MAIN FLOOR | 3 | 0 | 1995 | 936.2 |
| | AGR | ATTACHED GARAGE | 3 | 0 | 1995 | 388.0 |
| | BIG | BUILT IN GARAGE | 3 | 0 | 1995 | 84.0 |
| | UPS | UPPER STORY | 3 | 0 | 1995 | 806.0 |
| | OWP | OPEN WOOD PORCH W/STEPS | 3 | 0 | 1995 | 380.0 |
| | OWC | OPEN WOOD PORCH W/STEPS/ROOF/C | 3 | 0 | 1995 | 90.0 |
Sketch
Property Image
Land
| 1 | 15 | SQ (12001-21780) | 0.0000 | 0.00 | 0.00 | 0.00 | 1.00 | $240,000 | $0 |
Roll Value History
| 2026 | N/A | N/A | N/A | N/A | N/A |
| 2025 | $305,038 | $240,000 | $0 | $545,038 | $545,038 |
| 2024 | $308,793 | $230,000 | $0 | $538,793 | $538,793 |
| 2023 | $312,548 | $230,000 | $0 | $542,548 | $542,548 |
| 2022 | $286,421 | $210,000 | $0 | $496,421 | $496,421 |
| 2021 | $252,014 | $150,000 | $0 | $402,014 | $402,014 |
| 2020 | $217,081 | $140,000 | $0 | $357,081 | $357,081 |
| 2019 | $158,229 | $150,000 | $0 | $308,229 | $308,229 |
| 2018 | $158,702 | $130,000 | $0 | $288,702 | $288,702 |
| 2017 | $159,655 | $110,000 | $0 | $269,655 | $269,655 |
| 2016 | $161,554 | $65,000 | $0 | $226,554 | $226,554 |
| 2015 | $163,456 | $55,000 | $0 | $218,456 | $218,456 |
| 2014 | $156,356 | $65,000 | $0 | $221,356 | $221,356 |
| 2013 | $158,311 | $65,000 | $0 | $223,311 | $223,311 |
| 2012 | $160,749 | $81,000 | $0 | $241,749 | $241,749 |
| 2011 | $162,704 | $90,000 | $0 | $252,704 | $252,704 |
| 2010 | $169,145 | $90,000 | $0 | $259,145 | $259,145 |
| 2009 | $176,504 | $100,000 | $0 | $276,504 | $276,504 |
| 2008 | $181,706 | $150,000 | $0 | $331,706 | $124,576 |
| 2007 | $183,987 | $150,000 | $0 | $333,987 | $124,576 |
Deed and Sales History
| 1 | 10/02/2017 | WD | Warranty Deed | BYRNE, PATRICK | WALLIS, MICHELLE | | | $264,000.00 | 31370 | 4431365 |
| 2 | 05/24/2013 | WD | Warranty Deed | HALL, BURLEY T | BYRNE, PATRICK | | | $230,000.00 | 11421 | 4340700 |
| 3 | 03/26/2008 | QCD | Quit Claim Deed | HALL, BURLEY T | HALL, BURLEY T | | | $0.00 | 693574 | 4228914 |
| 4 | 11/13/2006 | OTHER | Other - Misc. Documents | HALL, BURLEY T | HALL, BURLEY T | | | $0.00 | 80059 | 0 |
| 5 | 08/01/1996 | WD | Warranty Deed | R, K P | HALL, BURLEY T | | | $147,842.00 | 63139 | 96015341 |
| 6 | 01/01/1900 | OTHER | Other - Misc. Documents | Unknown | R, K P | | | $0.00 | 65286 | 0 |
Payout Agreement
| No payout information available.. |