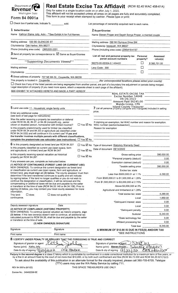
Property
Account |
| Property ID: | 693896 | Abbreviated Legal Description: | REPLACES 049-2700 LOT 1 SP 20-92.23114.260-0550 V2 SP P451-3 AF#94007494 |
| Geographic ID: | R23114-270-0490 | Agent Code: | |
| Type: | Real | | |
| Tax Area: | 510 - APPRAISER-Stan/Cam Schl Dist, improved & 1 acre or less | Land Use Code | 11 |
| Open Space: | N | DFL | N |
| Historic Property: | N | Remodel Property: | N |
| Multi-Family Redevelopment: | N | | |
| Township: | 31 | Section: | 14 |
| Range: | R2 |
Location |
| Address: | 765 CHAPMAN RD CAMANO ISLAND, WA 98282 | Mapsco: | |
| Neighborhood: | Cycle 5 | Map ID: | 481 |
| Neighborhood CD: | 5 |
Owner |
| Name: | MAFNAS TTEE, FRANCISCO CAMACHO | Owner ID: | 305811 |
| Mailing Address: | EDITH MARIE MAFNAS TTEE 765 CHAPMAN RD CAMANO ISLAND, WA 98282 | % Ownership: | 100.0000000000% |
| | | Exemptions: | |
Taxes and Assessment Details
Values
| (+) Improvement Homesite Value: | + | $0 | |
| (+) Improvement Non-Homesite Value: | + | $181,708 | |
| (+) Land Homesite Value: | + | $0 | |
| (+) Land Non-Homesite Value: | + | $300,000 | |
| (+) Curr Use (HS): | + | $0 | $0 |
| (+) Curr Use (NHS): | + | $0 | $0 |
| | | -------------------------- | |
| (=) Market Value: | = | $481,708 | |
| (–) Productivity Loss: | – | $0 | |
| | | -------------------------- | |
| (=) Subtotal: | = | $481,708 | |
| (+) Senior Appraised Value: | + | $0 | |
| (+) Non-Senior Appraised Value: | + | $481,708 | |
| | | -------------------------- | |
| (=) Total Appraised Value: | = | $481,708 | |
| (–) Senior Exemption Loss: | – | $0 | |
| (–) Exemption Loss: | – | $0 | |
| | | -------------------------- | |
| (=) Taxable Value: | = | $481,708 | |
Taxing Jurisdiction
| Owner: | MAFNAS TTEE, FRANCISCO CAMACHO | | |
| % Ownership: | 100.0000000000% | | |
| Total Value: | $481,708 | | |
| Tax Area: | 510 - APPRAISER-Stan/Cam Schl Dist, improved & 1 acre or less |
| CF | Conservation Futures | 0.0316035091 | $481,708 | $481,708 | $15.22 | | |
| EMS1 | Fire & Rescue Dist #1 Camano GEN (EMS) | 0.3677864386 | $481,708 | $481,708 | $177.17 | | |
| FIRE1 | Fire & Rescue Dist #1 Camano GEN | 1.2502910536 | $481,708 | $481,708 | $602.28 | | |
| FIRE1BOND | Fire & Rescue Dist #1 Camano BOND | 0.1570001679 | $481,708 | $481,708 | $75.63 | | |
| CE | County Current Expense | 0.3708482477 | $481,708 | $481,708 | $178.64 | | |
| CR | County Roads | 0.4584763726 | $481,708 | $481,708 | $220.85 | | |
| LCIB | Library Sno-Isle BOND (Camano Island) | 0.0396325772 | $481,708 | $481,708 | $19.09 | | |
| LIB | Library Sno-Isle GEN | 0.3153421757 | $481,708 | $481,708 | $151.90 | | |
| SCH205_401 | School 205-401 Enrichment | 1.2698420524 | $481,708 | $481,708 | $611.69 | | |
| SCH205BOND | School 205-401 BOND | 0.9396497583 | $481,708 | $481,708 | $452.64 | | |
| ST | State School | 1.3035497053 | $481,708 | $481,708 | $627.93 | | |
| ST2 | State School Part 2 | 0.8169543533 | $481,708 | $481,708 | $393.53 | | |
| | Total Tax Rate: | 7.3209764117 | | | | | |
| | | | | Taxes w/Current Exemptions: | $3,526.57 | | |
| | | | | Taxes w/o Exemptions: | $3,526.57 | | |
Improvement / Building
| Improvement #1: | RESIDENTIAL | State Code: | Y | 1749.0 sqft | Value: | $181,708 |
| Bathrooms: | 1.75 | Bedrooms: | 2 | | Ceiling: | PLYWOOD PAINTED | Exterior Wall/Cover: | SHINGLE | | Floor Covering: | SOFTWOOD/VINYL 80-20 | Floor Structure: | WOOD W/SUBFLOOR | | Foundation: | WOOD BLOCKS | Heating: | BASEBOARD ELECTRIC | | Interior Finish: | DRYWALL PAINT | Plumbing Fixture Cnt: | 9 | | Roof Slope: | 10" IN 12" | Roof Structure/Cover: | CJ ASPHALT |
|
| | Type | Description | Class CD | Sub Class CD | Year Built | Area |
| | BAS | BASE/MAIN FLOOR | 3 | 0 | 1904 | 989.0 |
| | UPS | UPPER STORY | 3 | 0 | 1904 | 760.0 |
| | OWP | OPEN WOOD PORCH W/STEPS | 3 | 0 | 1904 | 819.0 |
| | OWC | OPEN WOOD PORCH W/STEPS/ROOF/C | 3 | 0 | 1904 | 300.0 |
Sketch
Property Image
Land
| 1 | 16 | AC (00.51-01.00) | 0.6600 | 28749.60 | 0.00 | 0.00 | 1.00 | $300,000 | $0 |
Roll Value History
| 2026 | N/A | N/A | N/A | N/A | N/A |
| 2025 | $181,708 | $300,000 | $0 | $481,708 | $481,708 |
| 2024 | $189,332 | $310,000 | $0 | $499,332 | $499,332 |
| 2023 | $192,955 | $280,000 | $0 | $472,955 | $472,955 |
| 2022 | $178,000 | $260,000 | $0 | $438,000 | $438,000 |
| 2021 | $154,788 | $160,000 | $0 | $314,788 | $314,788 |
| 2020 | $151,923 | $150,000 | $0 | $301,923 | $301,923 |
| 2019 | $113,201 | $180,000 | $0 | $293,201 | $293,201 |
| 2018 | $113,702 | $150,000 | $0 | $263,702 | $263,702 |
| 2017 | $114,709 | $150,000 | $0 | $264,709 | $264,709 |
| 2016 | $116,721 | $130,000 | $0 | $246,721 | $246,721 |
| 2015 | $116,194 | $92,800 | $0 | $208,994 | $208,994 |
| 2014 | $118,245 | $92,800 | $0 | $211,045 | $211,045 |
| 2013 | $120,297 | $92,800 | $0 | $213,097 | $213,097 |
| 2012 | $122,351 | $92,800 | $0 | $215,151 | $215,151 |
| 2011 | $124,404 | $116,000 | $0 | $240,404 | $240,404 |
| 2010 | $136,241 | $116,000 | $0 | $252,241 | $252,241 |
| 2009 | $137,466 | $125,000 | $0 | $262,466 | $262,466 |
| 2008 | $139,833 | $152,625 | $0 | $292,458 | $292,458 |
| 2007 | $142,215 | $152,625 | $0 | $294,840 | $294,840 |
Deed and Sales History
| 1 | 03/09/2022 | QCD | Quit Claim Deed | MAFNAS, FRANCISCO C / EDITH M | MAFNAS TTEE, FRANCISCO CAMACHO | | | $0.00 | 52430 | 4542119 |
| 2 | 05/01/1994 | WD | Warranty Deed | BEAM, SONJA R | MAFNAS, FRANCISCO C | | | $147,000.00 | 42130 | 94012353 |
| 3 | 04/01/1994 | DECREE | Divorce Decree/Legal Separation | Unknown | BEAM, SONJA R | | | $0.00 | 41586 | 94009760 |
Payout Agreement
| No payout information available.. |