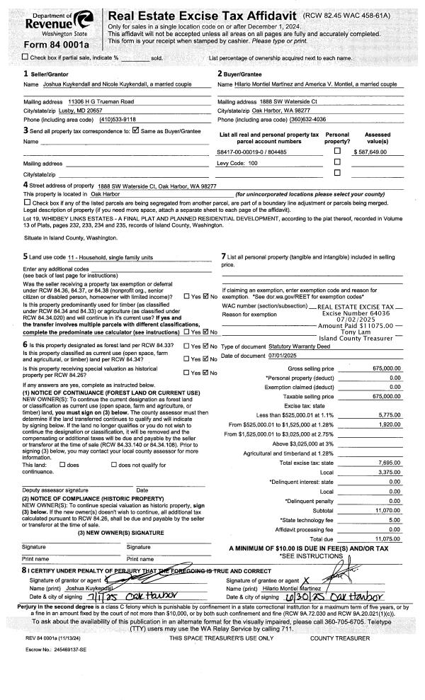
Property
Account |
| Property ID: | 694403 | Abbreviated Legal Description: | LOT 6 V4 SUR P114 AF#311453 FR 465-3370 |
| Geographic ID: | R33227-421-3420 | Agent Code: | |
| Type: | Real | | |
| Tax Area: | 512 - APPRAISER-Stan/Cam Schl Dist, improved, greater than 1 acre | Land Use Code | 11 |
| Open Space: | N | DFL | N |
| Historic Property: | N | Remodel Property: | N |
| Multi-Family Redevelopment: | N | | |
| Township: | 32 | Section: | 27 |
| Range: | R3 |
Location |
| Address: | 1444 OKSENDAHL RD CAMANO ISLAND, WA 98282 | Mapsco: | |
| Neighborhood: | Cycle 5 | Map ID: | 979 |
| Neighborhood CD: | 5 |
Owner |
| Name: | BUTLER, TRAVIS L | Owner ID: | 314475 |
| Mailing Address: | REBECCA J BUTLER 1444 OKSENDAHL RD CAMANO ISLAND, WA 98282 | % Ownership: | 100.0000000000% |
| | | Exemptions: | |
Taxes and Assessment Details
Values
| (+) Improvement Homesite Value: | + | $0 | |
| (+) Improvement Non-Homesite Value: | + | $643,862 | |
| (+) Land Homesite Value: | + | $0 | |
| (+) Land Non-Homesite Value: | + | $360,000 | |
| (+) Curr Use (HS): | + | $0 | $0 |
| (+) Curr Use (NHS): | + | $0 | $0 |
| | | -------------------------- | |
| (=) Market Value: | = | $1,003,862 | |
| (–) Productivity Loss: | – | $0 | |
| | | -------------------------- | |
| (=) Subtotal: | = | $1,003,862 | |
| (+) Senior Appraised Value: | + | $0 | |
| (+) Non-Senior Appraised Value: | + | $1,003,862 | |
| | | -------------------------- | |
| (=) Total Appraised Value: | = | $1,003,862 | |
| (–) Senior Exemption Loss: | – | $0 | |
| (–) Exemption Loss: | – | $0 | |
| | | -------------------------- | |
| (=) Taxable Value: | = | $1,003,862 | |
Taxing Jurisdiction
| Owner: | BUTLER, TRAVIS L | | |
| % Ownership: | 100.0000000000% | | |
| Total Value: | $1,003,862 | | |
| Tax Area: | 512 - APPRAISER-Stan/Cam Schl Dist, improved, greater than 1 acre |
| CF | Conservation Futures | 0.0316035091 | $1,003,862 | $1,003,862 | $31.73 | | |
| EMS1 | Fire & Rescue Dist #1 Camano GEN (EMS) | 0.3677864386 | $1,003,862 | $1,003,862 | $369.21 | | |
| FIRE1 | Fire & Rescue Dist #1 Camano GEN | 1.2502910536 | $1,003,862 | $1,003,862 | $1,255.12 | | |
| FIRE1BOND | Fire & Rescue Dist #1 Camano BOND | 0.1570001679 | $1,003,862 | $1,003,862 | $157.61 | | |
| CE | County Current Expense | 0.3708482477 | $1,003,862 | $1,003,862 | $372.28 | | |
| CR | County Roads | 0.4584763726 | $1,003,862 | $1,003,862 | $460.25 | | |
| LCIB | Library Sno-Isle BOND (Camano Island) | 0.0396325772 | $1,003,862 | $1,003,862 | $39.79 | | |
| LIB | Library Sno-Isle GEN | 0.3153421757 | $1,003,862 | $1,003,862 | $316.56 | | |
| SCH205_401 | School 205-401 Enrichment | 1.2698420524 | $1,003,862 | $1,003,862 | $1,274.75 | | |
| SCH205BOND | School 205-401 BOND | 0.9396497583 | $1,003,862 | $1,003,862 | $943.28 | | |
| ST | State School | 1.3035497053 | $1,003,862 | $1,003,862 | $1,308.58 | | |
| ST2 | State School Part 2 | 0.8169543533 | $1,003,862 | $1,003,862 | $820.11 | | |
| | Total Tax Rate: | 7.3209764117 | | | | | |
| | | | | Taxes w/Current Exemptions: | $7,349.27 | | |
| | | | | Taxes w/o Exemptions: | $7,349.27 | | |
Improvement / Building
| Improvement #1: | RESIDENTIAL | State Code: | Y | 2377.7 sqft | Value: | $643,862 |
| Bathrooms: | 3 | Bedrooms: | 3 | | Ceiling: | DRYWALL PAINTED | Cooling: | HEAT PUMP/CONV/V | | Exterior Wall/Cover: | CEMENT FIBER | Floor Covering: | CERAMIC TILE/CPT 40-60 | | Floor Structure: | WOOD W/SUBFLOOR | Foundation: | CONCRETE | | Interior Finish: | DRYWALL PAINT | Plumbing Fixture Cnt: | 13 | | Roof Slope: | 8" IN 12" | Roof Structure/Cover: | BEAM ASPHALT |
|
| | Type | Description | Class CD | Sub Class CD | Year Built | Area |
| | BAS | BASE/MAIN FLOOR | 4 | 0 | 2001 | 2377.7 |
| | OP4 | OPEN PORCH W/CEILING-ROOF | 4 | 0 | 2001 | 29.5 |
| | AGR | ATTACHED GARAGE | 4 | 0 | 2001 | 1057.5 |
| | OP1 | OPEN PORCH SLAB | 4 | 0 | 2001 | 793.9 |
| | oOBD | Out Buildings | 4 | 0 | 2001 | 0.0 |
| | OWR | OPEN WOOD PORCH W/STEPS/ROOF | 4 | 0 | 2001 | 120.0 |
Sketch
Property Image
Land
| 1 | 32 | AC (03.01-09.99) | 5.4600 | 0.00 | 0.00 | 0.00 | 1.00 | $360,000 | $0 |
Roll Value History
| 2026 | N/A | N/A | N/A | N/A | N/A |
| 2025 | $643,862 | $360,000 | $0 | $1,003,862 | $1,003,862 |
| 2024 | $650,828 | $340,000 | $0 | $990,828 | $990,828 |
| 2023 | $657,794 | $320,000 | $0 | $977,794 | $977,794 |
| 2022 | $606,668 | $300,000 | $0 | $906,668 | $906,668 |
| 2021 | $534,583 | $230,000 | $0 | $764,583 | $764,583 |
| 2020 | $520,779 | $190,000 | $0 | $710,779 | $710,779 |
| 2019 | $405,035 | $220,000 | $0 | $625,035 | $625,035 |
| 2018 | $406,008 | $190,000 | $0 | $596,008 | $596,008 |
| 2017 | $407,916 | $150,000 | $0 | $557,916 | $557,916 |
| 2016 | $411,807 | $150,000 | $0 | $561,807 | $561,807 |
| 2015 | $390,571 | $122,304 | $0 | $512,875 | $512,875 |
| 2014 | $394,357 | $122,304 | $0 | $516,661 | $516,661 |
| 2013 | $398,143 | $122,304 | $0 | $520,447 | $520,447 |
| 2012 | $401,928 | $122,304 | $0 | $524,232 | $524,232 |
| 2011 | $405,714 | $152,880 | $0 | $558,594 | $558,594 |
| 2010 | $421,446 | $152,880 | $0 | $574,326 | $574,326 |
| 2009 | $431,196 | $174,720 | $0 | $605,916 | $605,916 |
| 2008 | $432,824 | $191,100 | $0 | $623,924 | $623,924 |
| 2007 | $438,388 | $174,720 | $0 | $613,108 | $613,108 |
Deed and Sales History
| 1 | 10/29/2024 | WD | Warranty Deed | MORRISON JR, ROBERT W | BUTLER, TRAVIS L | | | $1,343,000.00 | 61763 | 4579063 |
| 2 | 09/15/2010 | QCD | Quit Claim Deed | MORRISON JR, ROBERT W | MORRISON JR, ROBERT W | | | $0.00 | 2490 | 4282363 |
| 3 | 01/14/2002 | WD | Warranty Deed | G A POWELL CONSTRUCTION INC, | MORRISON JR, ROBERT W | | | $361,000.00 | 20182 | 4008443 |
| 4 | 03/14/2001 | WD | Warranty Deed | SIPE, RILEY J | G A POWELL CONSTRUCTION INC, | | | $75,000.00 | 10829 | 20027346 |
| 5 | 06/01/1994 | OTHER | Other - Misc. Documents | SIPE, RILEY J | SIPE, RILEY J | | | $0.00 | 65894 | 0 |
| 6 | 01/01/1900 | OTHER | Other - Misc. Documents | Unknown | SIPE, RILEY J | | | $0.00 | 95955 | 89019227 |
Payout Agreement
| No payout information available.. |