Property
Account |
| Property ID: | 694591 | Abbreviated Legal Description: | IN GL4: E220' OF W420' OF GL4 INCL ADJ TIDES EX GOUGH RD TGW: BG CTR SEC 31 S89*E ALG NLN GL4 420' TO NECR OF E220' OF W420' OF SD GL4 TPB S5*E TO SLN GL4 SWLY ALG SD GL LN TO ELN OF W420' OF GL4 N ALG SD LN TPB INCL ADJ TIDES TGW EZ AF#91016595 |
| Geographic ID: | R33131-250-3150 | Agent Code: | |
| Type: | Real | | |
| Tax Area: | 542 - APPRAISER-Stan/Cam Schl Dist, Special Dist, improved, greater than 1 acre | Land Use Code | 11 |
| Open Space: | N | DFL | N |
| Historic Property: | N | Remodel Property: | N |
| Multi-Family Redevelopment: | N | | |
| Township: | 31 | Section: | 31 |
| Range: | R3 |
Location |
| Address: | 230 GOUGH RD CAMANO ISLAND, WA 98282 | Mapsco: | |
| Neighborhood: | Cycle 5 | Map ID: | 941 |
| Neighborhood CD: | 5 |
Owner |
| Name: | SOLVANG, GREG E | Owner ID: | 280908 |
| Mailing Address: | PAULA S SOLVANG 230 GOUGH DR CAMANO ISLAND, WA 98282 | % Ownership: | 100.0000000000% |
| | | Exemptions: | SNR/DSBL |
Taxes and Assessment Details
Values
| (+) Improvement Homesite Value: | + | $1,492,229 | |
| (+) Improvement Non-Homesite Value: | + | $0 | |
| (+) Land Homesite Value: | + | $901,970 | |
| (+) Land Non-Homesite Value: | + | $0 | |
| (+) Curr Use (HS): | + | $0 | $0 |
| (+) Curr Use (NHS): | + | $0 | $0 |
| | | -------------------------- | |
| (=) Market Value: | = | $2,394,199 | |
| (–) Productivity Loss: | – | $0 | |
| | | -------------------------- | |
| (=) Subtotal: | = | $2,394,199 | |
| (+) Senior Appraised Value: | + | $2,394,199 | |
| (+) Non-Senior Appraised Value: | + | $0 | |
| | | -------------------------- | |
| (=) Total Appraised Value: | = | $2,394,199 | |
| (–) Senior Exemption Loss: | – | $1,436,519 | |
| (–) Exemption Loss: | – | $0 | |
| | | -------------------------- | |
| (=) Taxable Value: | = | $957,680 | |
Taxing Jurisdiction
| Owner: | SOLVANG, GREG E | | |
| % Ownership: | 100.0000000000% | | |
| Total Value: | $2,394,199 | | |
| Tax Area: | 542 - APPRAISER-Stan/Cam Schl Dist, Special Dist, improved, greater than 1 acre |
| CF | Conservation Futures | 0.0316035091 | $2,394,199 | $957,680 | $30.27 | | |
| EMS1 | Fire & Rescue Dist #1 Camano GEN (EMS) | 0.3677864386 | $2,394,199 | $957,680 | $352.22 | | |
| FIRE1 | Fire & Rescue Dist #1 Camano GEN | 1.2502910536 | $2,394,199 | $957,680 | $1,197.38 | | |
| FIRE1BOND | Fire & Rescue Dist #1 Camano BOND | 0.0000000000 | $2,394,199 | $0 | $0.00 | | |
| CE | County Current Expense | 0.3708482477 | $2,394,199 | $957,680 | $355.15 | | |
| CR | County Roads | 0.4584763726 | $2,394,199 | $957,680 | $439.07 | | |
| LCIB | Library Sno-Isle BOND (Camano Island) | 0.0000000000 | $2,394,199 | $0 | $0.00 | | |
| LIB | Library Sno-Isle GEN | 0.3153421757 | $2,394,199 | $957,680 | $302.00 | | |
| SCH205_401 | School 205-401 Enrichment | 0.0000000000 | $2,394,199 | $0 | $0.00 | | |
| SCH205BOND | School 205-401 BOND | 0.0000000000 | $2,394,199 | $0 | $0.00 | | |
| ST | State School | 1.3035497053 | $2,394,199 | $957,680 | $1,248.38 | | |
| ST2 | State School Part 2 | 0.0000000000 | $2,394,199 | $0 | $0.00 | | |
| | Total Tax Rate: | 4.0978975026 | | | | | |
| | | | | Taxes w/Current Exemptions: | $3,924.47 | | |
| | | | | Taxes w/o Exemptions: | $17,527.87 | | |
Improvement / Building
| Improvement #1: | RESIDENTIAL | State Code: | Y | 3813.0 sqft | Value: | $1,492,229 |
| Bathrooms: | 3.5 | Bedrooms: | 3 | | Ceiling: | DRYWALL PAINTED | Cooling: | HEAT PUMP/CONV/V | | Exterior Wall/Cover: | CEMENT FIBER | Floor Covering: | CERAMIC TILE/CPT 40-60 | | Floor Structure: | WOOD W/SUBFLOOR | Foundation: | CONCRETE | | Interior Finish: | DRYWALL PAINT | Plumbing Fixture Cnt: | 18 | | Roof Slope: | 8" IN 12" | Roof Structure/Cover: | CJ ALUMINIUM HEAVY |
|
| | Type | Description | Class CD | Sub Class CD | Year Built | Area |
| | BAS | BASE/MAIN FLOOR | 7 | 0 | 2019 | 2607.5 |
| | UPS | UPPER STORY | 7 | 0 | 2019 | 1205.5 |
| | AGR | ATTACHED GARAGE | 7 | 0 | 2019 | 947.0 |
| | ATU | ATTIC UNFINISHED | 7 | 0 | 2019 | 931.0 |
| | OP4 | OPEN PORCH W/CEILING-ROOF | 7 | 0 | 2019 | 353.0 |
| | DGR | DETACHED GARAGE | 7 | 0 | 2019 | 900.0 |
Sketch
Property Image
Land
| 1 | LB | LOW BANK | 1.1700 | 50965.20 | 197.00 | 0.00 | 1.00 | $900,000 | $0 |
| 2 | 55 | TIDES | 0.0000 | 0.00 | 197.00 | 0.00 | 1.00 | $1,970 | $0 |
Roll Value History
| 2026 | N/A | N/A | N/A | N/A | N/A |
| 2025 | $1,492,229 | $901,970 | $0 | $2,394,199 | $957,680 |
| 2024 | $1,504,262 | $901,970 | $0 | $2,406,232 | $962,493 |
| 2023 | $1,516,296 | $901,970 | $0 | $2,418,266 | $967,306 |
| 2022 | $1,383,929 | $851,970 | $0 | $2,235,899 | $2,235,899 |
| 2021 | $846,302 | $860,970 | $0 | $1,707,272 | $1,707,272 |
| 2020 | $829,950 | $860,970 | $0 | $1,690,920 | $1,690,920 |
| 2019 | $666,587 | $901,070 | $0 | $1,567,657 | $1,567,657 |
| 2018 | $67,409 | $901,070 | $0 | $968,479 | $968,479 |
| 2017 | $124,960 | $901,070 | $0 | $1,026,030 | $1,026,030 |
| 2016 | $126,826 | $1,501,970 | $0 | $1,628,796 | $1,628,796 |
| 2015 | $124,350 | $1,501,970 | $0 | $1,626,320 | $1,626,320 |
| 2014 | $126,459 | $1,501,970 | $0 | $1,628,429 | $1,628,429 |
| 2013 | $128,567 | $1,343,903 | $0 | $1,472,470 | $1,472,470 |
| 2012 | $130,673 | $1,343,903 | $0 | $1,474,576 | $1,474,576 |
| 2011 | $97,903 | $1,679,386 | $0 | $1,777,289 | $1,777,289 |
| 2010 | $118,694 | $1,679,386 | $0 | $1,798,080 | $1,798,080 |
| 2009 | $125,326 | $1,805,698 | $0 | $1,931,024 | $1,931,024 |
| 2008 | $127,660 | $2,376,626 | $0 | $2,504,286 | $2,504,286 |
| 2007 | $130,005 | $1,553,717 | $0 | $1,683,722 | $1,683,722 |
Deed and Sales History
| 1 | 07/20/2017 | QCD | Quit Claim Deed | RICHMOND TRUSTEE, RUTH F | SOLVANG, GREG E | | | | 30122 | 4426119 |
| 2 | 07/07/2017 | WD | Warranty Deed | RICHMOND TRUSTEE, RUTH F | RICHMOND TRUSTEE, RUTH F | | | $875,000.00 | 30162 | 4425893 |
| 3 | 01/14/2000 | BLA | DNU - Boundary Line Adjustment | RICHMOND, RUTH F | RICHMOND, RUTH F | | | $0.00 | 68541 | 4425893 |
| 4 | 05/11/1999 | ESTSEPPROP | Establish Separate Property | RICHMOND, RUTH F | RICHMOND, RUTH F | | | $0.00 | 91779 | 99011228 |
| 5 | 06/01/1994 | OTHER | Other - Misc. Documents | RICHMOND, JOHN D | RICHMOND, JOHN D | | | $0.00 | 65902 | 94012506 |
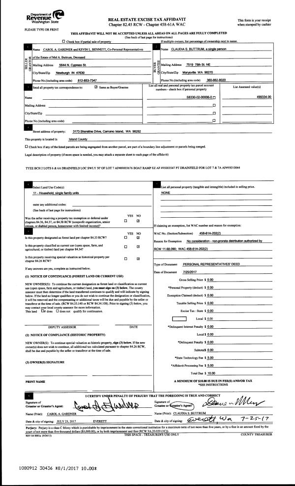
| 6 | 06/01/1994 | PRD | Personal Representatives Deed | RICHMOND, JOHN D | RICHMOND, RUTH F | | | $0.00 | 42661 | 94014661 |
| 7 | 01/01/1900 | OTHER | Other - Misc. Documents | Unknown | RICHMOND, JOHN D | | | $0.00 | 12292 | 91009800 |
Payout Agreement
| No payout information available.. |